Meinungen zur Grundrissplanung (Iso Ansichten, Grundrisse, Bebauungsplan)

4,30 Stern(e) 6 Votes
Zuletzt aktualisiert 10.01.2026
Sie befinden sich auf der Seite 6 der Diskussion zum Thema: Meinungen zur Grundrissplanung (Iso Ansichten, Grundrisse, Bebauungsplan)
>> Zum 1. Beitrag <<

D

Dopamin

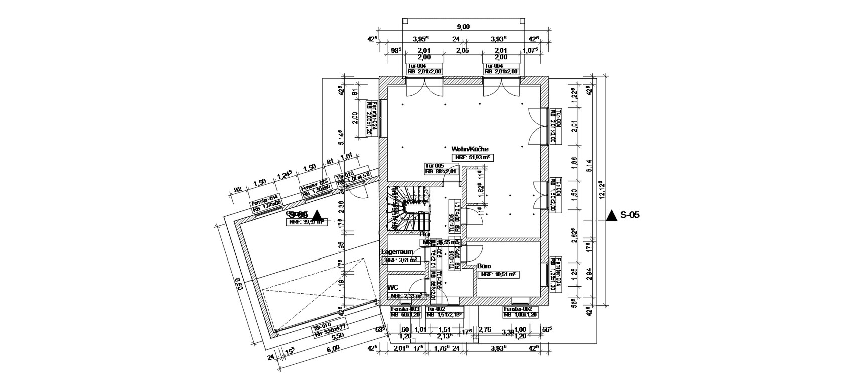
Wir waren letzte Woche noch mal bei unserem Bauunternehmer und haben noch etwas verändert. Das Auge der Wendeltreppe ist nun kleiner (30cm), dadurch können die Kinderzimmer breiter werden. Jedoch rät unser BU zu 42,5er T9 ( evtl. sohar T8) wegen der besseren Dämmung und somit werden die Kinderzimmer wieder so groß wie vorher. Beide Kinder sollen später eine Galerie bekommen (Holz)
Nur ein Bad im OG halte ich für 4 Personen zu wenig. Ich stell mir grad vor wenn um 6:30 jeder duschen, Toilette und Zähneputzen will und zugesperrt wird dann sowieso von jedem...

Im EG werden wir wohl mit kleinem Büro planen, da sonst der Wohn/Essbereich zu üppig wird und wir eh zu wenig Stauraum für unser Zeug haben.

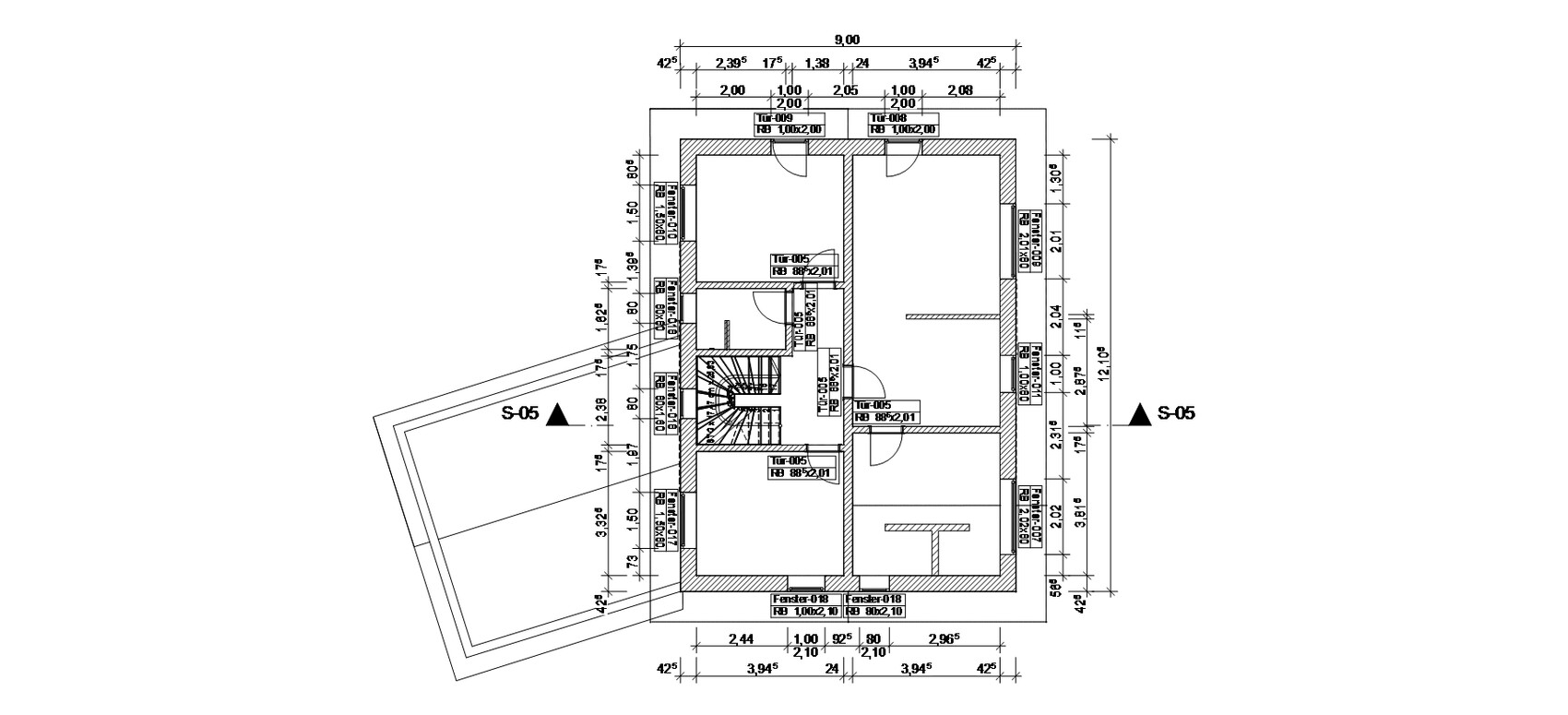
Ich habe noch andere Aufteilungen im DG probiert, hab dann aber immer Probleme mit den Türen. Hat jemand hierfür einen Vorschlag?

Viel Glück Thomas

Grundriss eines Hauses: zentrale Wohnküche, Büro, Lagerraum, Treppenhaus, Türen und Maße.


Grundriss eines Gebäudes mit Innenwänden, Türen, Treppen und Maßangaben.
 
Y

ypg

Alles steht und fällt mit der Treppe und der Bereitschaft, ein paar Abstriche von den Qm in WZ und Schlafzimmer.
Treppe um Pimaldaumen 50cm nach planoben verschieben, so dass die Kinderzimmer gleichmäßig verteilt werden.
Unten rechts Kinderbad neben des Elternbades. Wenn man auf das T verzichtet und für sich weniger Platz zu Zweit beansprucht, funktioniert das auch. Rest wird natürlich angepasst.
Wahrscheinlich gibt es noch bessere Vorschläge, wenn man mal oben ordentlich die Räume schüttelt und weiß, wo Norden liegt.
 
Y

ypg

Ich hab noch mal geschrollt und nachgeschaut, wo ynorden ist.

Mir fällt auf, dass Du zwar Kritik einforderst, diese auch eindeutig ist, aber an der bescheidenen Aufteilung und Platzfresser Schlafzimmer, Ankleide und Bad gehst Du nicht ran
 
D

Dopamin

Ich hab noch mal geschrollt und nachgeschaut, wo ynorden ist.
Damit man Norden besser erkennt hier noch ein Bild.
Außerdem habe ich für das DG selbst zwei Vorschläge gefunden. Hier fehlt halt das Kinderbad.
Bevor ich diese poste: Darf ich Grundrisse aus dem Netz hier einfach hochladen?

Grundriss des Erdgeschosses eines Gebäudes mit Innenwänden, Treppenhaus, Türen und Maßangaben.
 
Zuletzt aktualisiert 10.01.2026
Im Forum Grundrissplanung / Grundstücksplanung gibt es 2565 Themen mit insgesamt 88793 Beiträgen


Ähnliche Themen zu Meinungen zur Grundrissplanung (Iso Ansichten, Grundrisse, Bebauungsplan)
Nr.ErgebnisBeiträge
1Grundrissplanung Hanghaus mit 5 Kinderzimmer - Seite 26370
2Größe vom Schlafzimmer und Kinderzimmer - Seite 338
3Kinderzimmer und Schlafzimmer - Welche Größe ist zu empfehlen? 56
4Schallschutztür Schlafzimmer / Kinderzimmer 23
5Grundrissplanung Einfamilienhaus (Stadtvilla) ca.140m² (3 Kinderzimmer) 42
6Grundrissplanung ca. 200qm (3 Kinderzimmer + Schlafen) - Seite 529
7Neubau Einfamilienhaus 160-170qm, 3 Kinderzimmer 39
8Badplanung in Neubau (Eltern+Kinderbad) - Seite 635
9Grundrissentwurf für 220m² Einfamilienhaus - Seite 31488
10Wohin mit der Treppe? Dachausbau Walmdachbungalow - Seite 319
11Ankleide/Schlafzimmer Problem - Grundrissdiskussion - Seite 425
12Kinderzimmer in Dachgeschoss zu klein geplant? - Seite 233
13Grundrissfrage, Garage, Treppe - Seite 533
14Ups...! Wir brauchen jetzt doch ein Kinderzimmer... 19
15Kinderzimmer mit bodentiefen Fenstern 22
16Kork oder Bambus für Kinderzimmer? 41
17Treppe - Sind die Treppenmaße 2.00x2.00m in Ordnung? - Seite 668
18Einfamilienhaus ca. 150 qm Grundriss - Treppe wie planen? 65
19Schallschutz Kinderzimmer 12
20Schalldämmung - geräusche aus dem Schlafzimmer 27

Oben