Meinungen zur Grundrissplanung (Iso Ansichten, Grundrisse, Bebauungsplan)

4,30 Stern(e) 6 Votes
Zuletzt aktualisiert 24.11.2025
Sie befinden sich auf der Seite 5 der Diskussion zum Thema: Meinungen zur Grundrissplanung (Iso Ansichten, Grundrisse, Bebauungsplan)
>> Zum 1. Beitrag <<

Kevinius

Kevinius

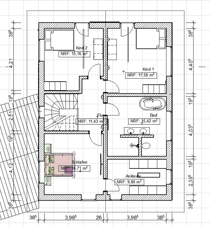
Wenn die Kinder auf's Klo müssen stehen Sie immer in eurem Schlafzimmer - wollt ihr das wirklich?
 
H

haydee

Bei der Hausgröße sind 15-16 qm gut für’s Kinderzimmer
Wenn du Kindern die Wahl läßt Platz zum Spielen später Platz um sich mit Freunden zurück zuziehen oder Mini-Kinderbad würden die Meisten den Platz wählen

Kinderbäder sind ein Hype. Die mehr vor sich hinstauben als benutzt werden
 
H

haydee

Ohne Kinderbad gefällt mir besser. Nur der Badzugang gehört geändert.

Tauscht doch Schlafen mit Kind 1
Bad mit Ankleide

Bad vom Flur zugänglich
Keine Schlafzimmerwand am Kinderzimmer

Garderobe ist recht klein
Für 3-4 Personen
 
D

Dopamin

Jetzt hab ich die Zimmer getauscht, aber ein Problem mit dem Zugang von Kind1 und Kind2 ;(

Aber gar kein zweites Bad im DG? Wir haben jetzt eine zweite Toilette und nutzen das schon oft.
ich kann Max noch eine Dusche ins EG machen, da jetzt das kleine Klo größer geworden ist.

Grundriss eines Stockwerks mit Schlafzimmer, Ankleide, Flur, Bad und zwei Kinderzimmern
 
H

haydee

Viele Familien haben nur 1 Bad
Ein paar Schritte weiter und im EG ist noch eine Toilette

Noch seit ihr zu Zweit. Dann wird jahrelang euer Bad als Familienbad genutzt, irgendwann wird das Kinderbad genutzt, in der Phase in der Eltern kompliziert werden, muss es wieder das große sein, weil nur da ...

Gleich Große Kinderzimmer gibt keinen Streit und jüngere Kinder finden es nicht toll, das kleinere Zimmer zu haben, die gebrauchten Kleider, weniger Geschenke ist ja schon alles da
 
Zuletzt aktualisiert 24.11.2025
Im Forum Grundrissplanung / Grundstücksplanung gibt es 2536 Themen mit insgesamt 88009 Beiträgen


Ähnliche Themen zu Meinungen zur Grundrissplanung (Iso Ansichten, Grundrisse, Bebauungsplan)
Nr.ErgebnisBeiträge
1Größe vom Schlafzimmer und Kinderzimmer - Seite 338
2Grundrissplanung Hanghaus mit 5 Kinderzimmer - Seite 26370
3Grundrissplanung ca. 200qm (3 Kinderzimmer + Schlafen) - Seite 529
4Badplanung in Neubau (Eltern+Kinderbad) - Seite 635
5Grundrissplanung: Elternbad und Kinderbad - ja oder nein? - Seite 952
6Grundriss-Aufteilung OG - Elternbereich / 2 Kinderzimmer mit Bad 26
7Positionierung von WC und Waschtisch im Kinderbad 22
8Alternativen zum Dixi-Klo? - Seite 214
9Bungalow120 Meinung Tipps Grundriss - Seite 320
10Größe Kinderzimmer/Grundriss 12
11Wanddicke Kinderzimmer / Bad 35
12Jalousien in Kinderzimmer und Bad auf der Südseite 12
13Kinderzimmer in Dachgeschoss zu klein geplant? - Seite 233
14Kinderzimmer im Obergeschoss bis zum Dach offen 25
15Ups...! Wir brauchen jetzt doch ein Kinderzimmer... 19
16Umbau Kinderzimmer - Fenster in zwei Fenster aufteilen? 20
17Kinderzimmer mit bodentiefen Fenstern 22
18Kork oder Bambus für Kinderzimmer? 41
19Kinderzimmer und Schlafzimmer - Welche Größe ist zu empfehlen? 56
20Einrichtung Kinderzimmer - Wie sollen wir die gestalten? 15

Oben