Meinungen zum Grundriss Bungalow

4,60 Stern(e) 5 Votes
Zuletzt aktualisiert 23.11.2025
Sie befinden sich auf der Seite 7 der Diskussion zum Thema: Meinungen zum Grundriss Bungalow
>> Zum 1. Beitrag <<

B

Bauherren2014

Entschuldige, wenn ich noch einmal meinen Senf dazugebe:
Meiner Meinung nach geht Ihr die Planung falsch an. So wie ich das verstanden habt, habt Ihr Euch ein Haus nach Euren Vorstellungen, mit der von Euch gewünschten Ausstattung, Aufteilung planen lassen inkl. einer überdachten Doppelgarage und einer überdachten Terrasse und habt dann gemerkt, dass das bei Eurem Budget nicht machbar ist. Und jetzt rudert Ihr in eine völlig andere Richtung.

So wie ich das sehe, ist Euer Budget deutlich begrenzt.
Auf der anderen Seite generiert Ihr aber wieder Kosten, die eigentlich nicht sein müssten:
Ihr wollt einen Winkelbungalow, der vermutlich die teuerste Variante darstellt, um die angegebenen 127 m² Wohnfläche zu erreichen (berichtigt mich, falls ich falsch liege).
Nebenbei habt Ihr dadurch höhere Kosten für die Erdarbeiten.
Ihr wollt eine überdachte Garage mit Abstellraum, die zusätzliche Kosten generiert. - Warum keine Fertiggarage, die Du hinstellen kannst, wo Du willst, wenn das Geld knapp ist? Oder erst mal nur Stellplätze...
Ihr verliert Euch teilweise in Details (Gäste-WC an der Terrasse, die Problematik der Ankleidezimmer...) und vergesst, auf das große Ganze zu schauen.

Gerade bei knappem Budget sollte man sich überlegen, was wirklich gebraucht wird?
Welche Zimmer brauche ich wirklich und wie groß müssen diese wirklich sein? Brauche ich wirklich 2 Bäder, oder reicht eines? Brauche ich das Arbeitszimmer wirklich? Ist es nicht doch sinnvoller, den Kindern mehr Platz einzuräumen und dafür an anderer Stelle zu sparen? Muss ich das Elternzimmer wirklich nach Westen ausrichten oder sollte ich nicht vielleicht doch den Kindern ein bißchen mehr Tageslicht gönnen?.... etc..... Das sind alles nur Beispiele und das soll keineswegs heißen, dass Ihr das so machen müsst, aber ihr solltet Euch wirklich überlegen, was wichtig ist und worauf man vielleicht verzichten kann, damit Ihr am Ende ein Haus habt, in dem Ihr Euch alle! wohlfühlen könnt.
 
kbt09

kbt09

Ich konnte es wieder mal nicht lassen und habe mich mal an zwei Beispielen versucht.

Variante 1 - Wohnfläche 114 qm im EG:
  • Garage wieder von Ost befahrbar, Zuweg auch gleichzeitig Zuweg zur Eingangstür ... optimierte Schneeschiebbedingungen. Einfahrt so lang, dass dort auch mal ein Auto stehen kann.
  • Kinderzimmer nach Osten .. evtl. mit Verbindungstür/Durchgang. Kind 1 kann bei Ausbau des DG dann zum erweiterten Elternbad/Ankleidezimmer werden. Kind 2 kann dann reines Gästezimmer werden. Der Elterntrakt kann dann auch mit einer Tür abgetrennt werden.
  • Schrankraum für ca. 700 cm Schrank .. hier kann dann schon eine Bodentreppe mit integriert werden. Später kleiner Schrankraum und Treppenhaus
  • Gästebad ... etwas ungünstig mit dem Eingang Richtung Diele
  • Hauswirtschaftsraum/Technikraum ohne Garagenzugang, weil Garagentor und Eingangstür quasi direkt über Eck daneben sind. Vorteil, keine Besonderheiten wg. thermischer Hülle etc.
  • Kochen / Essen mit großem Terrassenzugang und um die Ecke Wohnen mit Kamin
  • Im DG könnten durch die Gaube 2 große Kinder/Jugendzimmer und ein Bad ausgebaut werden. Weiterhin würde noch Abstellfläche bleiben.
  • Dachneigung ca. 35°, Garage 25°
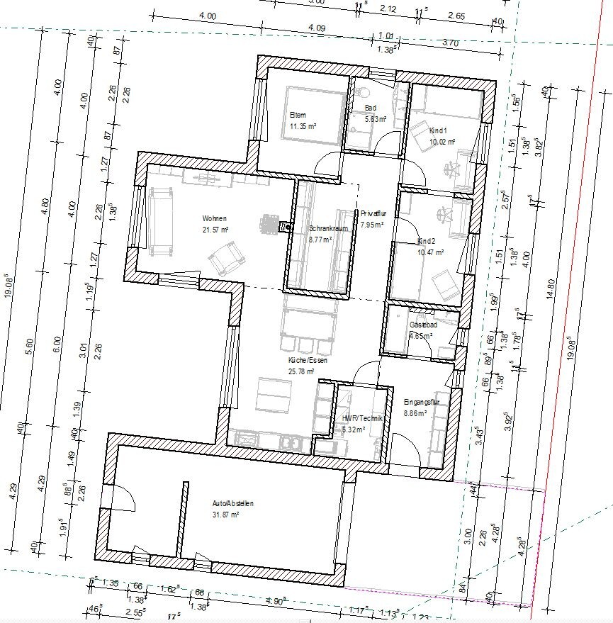
EG-Grundriss 1. Ausbaustufe:

Grundriss eines Einfamilienhauses mit Wohnen, Küche, Eltern-/Kinderzimmer, Bäder, Garage.

EG-Grundriss nach Ausbau DG

Grundriss eines Hauses mit Küche, Wohnen, Bad, Flur, Treppe und Gästezimmer.

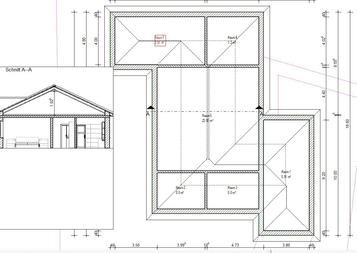
OG-Grundriss 1. Ausbaustufe:

Architekturplan: Querschnitt eines Hauses links, Grundriss mit Zimmern und Treppenhaus rechts.

OG-Grundriss nach Ausbau DG mit Treppe

Grundriss eines Wohnhauses: mehrere Räume, Treppenhaus, Flur, Abstellraum, Bad und Garage.


Auflistung der Wohnflächen eines Gebäudes (DG/EG) mit Raumangaben und Gesamtfläche.


Ein 3D-Modell eines roten Ziegelhauses mit Garage, Eingangstür und Dachfenstern auf grünem Gelände.


Ziegelhaus mit grauem Dach auf grünem Rasen; neben dem Haus liegt eine Person.


Grundriss eines Hauses von oben: Wohnzimmer, Küche, Essbereich, Schlafzimmer, Bad, auf grünem Grund.
 

Anhänge

kbt09

kbt09

Und dann Variante 2:

Hier Grundausbau 140 qm Wohnfläche - Dachausbau eigentlich nicht geplant, maximal Stauraum mit Bodentreppe, die im Flur sein kann.
  • Kinderzimmer im Süden
  • Schrankraum und Flurschränke ca. 700 cm
  • Großer Dielenschrank
  • Extra Gäste/Bürozimmer
  • größeres Familienbad mit Dusche und Wanne
  • Garage von Süden befahrbar, Hauseingang im Osten, Durchgang von Garage in Hauswirtschaftsraum
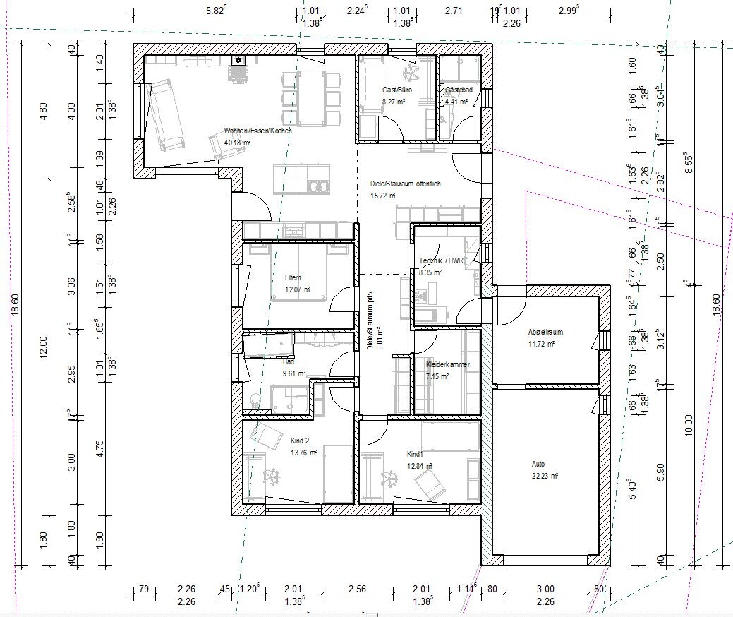
EG-Grundriss

Grundriss Einfamilienhaus: Wohnen/Essen/Kochen, Eltern- und zwei Kinderzimmer, Bad, HWR, Garage.


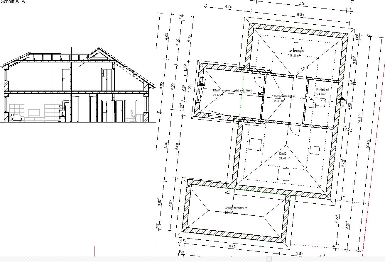
Dach mit Schnitt

Grundriss eines Gebäudes: Zentraler Raum 6 ca. 23 m²; linke Seitenansicht (Schnitt A-A).


Wohnflächenaufstellung: EG, Dach, Garage, Gesamtfläche 174,21 m²


3D-Render eines Einfamilienhauses aus Backstein mit grünem Rasen, Eingang vorne links, Garage rechts.


Ein rotes Ziegelhaus mit braunem Satteldach, weißen Fenstern und weißer Tür auf grünem Rasen.


Grundriss eines Hauses von oben mit Zimmern, Möbeln, Fluren, Küche, Bad und Gartenanlage.
 

Anhänge

kbt09

kbt09

Wäre ich Architekt, würde ich hier sicherlich im Forum nicht so ausführlich skizzieren. Raumplanung ist mein Hobby .. und danke.

Erläutere mal, was dir in welcher Variante gefällt und was dir weniger gefällt.
 
S

Steffi33

Hallo kbt09, gefallen mir auch gut, deine Ideen. Darf ich nachfragen, mit welchem Programm du das erstellst?
 
kbt09

kbt09

Virtual Architecture von EU-Software - Hausdesigner Professional .. bekommt man meist in Angebotsaktionen für um die 100 Euro. Ist es meiner Meinung nach Wert.
 
Zuletzt aktualisiert 23.11.2025
Im Forum Grundrissplanung / Grundstücksplanung gibt es 2535 Themen mit insgesamt 87992 Beiträgen


Ähnliche Themen zu Meinungen zum Grundriss Bungalow
Nr.ErgebnisBeiträge
1Einfamilienhaus-Grundriss 170 qm für 4 Personen mit Garage 20
2Grundriss mit Garage auf Grundstück realisierbar? - Seite 329
3Grundriss Einfamilienhaus, 230 qm Wohnfläche, Osthang, Bauhausstil - Seite 1375
4Grundriss Einfamilienhaus ohne Keller, 3 Kinderzimmer und Büro 18
5Grundriss Einfamilienhaus, 200m2, 2 Vollgeschosse, Garage, ohne Keller 39
6Grundriss Einfamilienhaus 155m², ohne Keller, 3 Kinderzimmer, 1 Büro 38
7Grundriss: Ein Leben im Traum- oder Albtraumhaus? 20
8Grundriss und Ansichten zu Einfamilienhaus mit ca. 160 m² in Hanglage 74
9Grundriss Einfamilienhaus, leichte Hanglage, NW-Ausrichtung - Seite 1175
10Terrasse vom Nachbar grenzt an Garage 11
11Grundriss Einfamilienhaus (ca. 170 qm) mit Garage - Hanglage 35
12Grundriss 140 m2 Einfamilienhaus mit Garage - Hausausrichtung ok? - Seite 218
13Wie Gebäude platzieren? Haus Terrasse Garage Werkstatt 24
14Grundriss Bungalow 150qm mit Garage 79
15Grundriss Einfamilienhaus mit Keller und Garage - Seite 250
16Grundriss Einfamilienhaus mit 240m² mit Einliegerwohnung 75m² und Garage 39
17Grundriss Einfamilienhaus ca. 135 m³, Grundriss. Garage, 1,5 Geschossig, 4 Personen 11
18Bungalow mit 140qm und Garage im Grundriss 13
19Grundriss Einfamilienhaus mit Doppelgarage und Terrasse - Seite 219
20Grundriss Bungalow 150qm geschlossene Küche, überdachte Terrasse - Seite 440

Oben