Kosteneinschätzung in aktueller Zeit

4,80 Stern(e) 8 Votes
Zuletzt aktualisiert 19.12.2025
Sie befinden sich auf der Seite 3 der Diskussion zum Thema: Kosteneinschätzung in aktueller Zeit
>> Zum 1. Beitrag <<

Y

Ysop***

Guten Morgen,

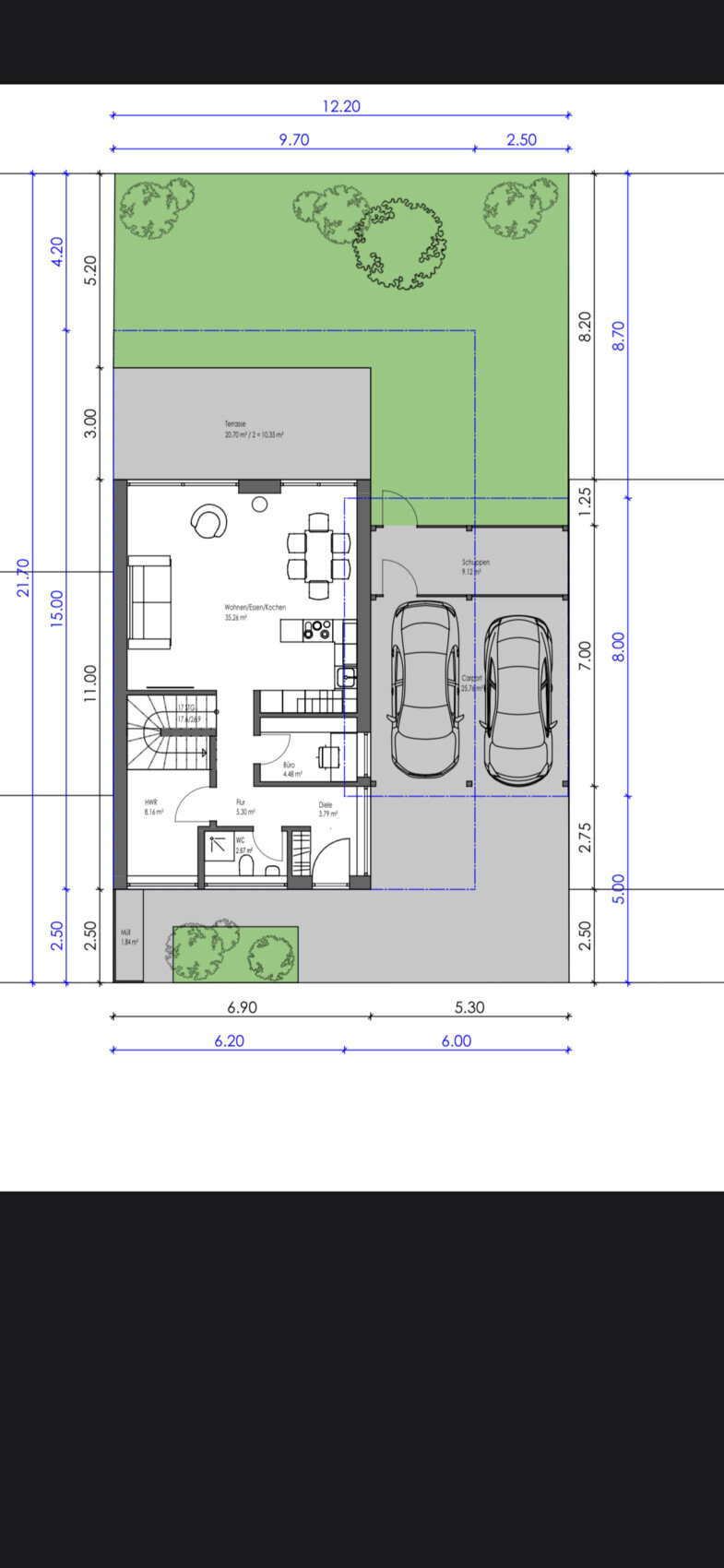
Mit deinem EG bin ich noch nicht so ganz glücklich. Da hast du so viele kleine Räume, dass du nun kein Wohnzimmer mehr hast. Und durch den Eingang rechts hast du recht viel Flur. Möchtest du nicht wenigstens WC und Eingang tauschen? Da könntest du Flur sparen und Büro oder WC größer machen.

Aber ich würde auch empfehlen, den Allraum nicht quadratisch zu lassen, den wie gesagt, hast du irgendwie kein richtig zoniertes Wohnzimmer.

Kostenschätzung finde ich heutzutage leider extrem schwierig :confused:
 
D

driver55

Das Haus darf nur so breit werden wir dargestellt?
Weshalb 2 Fzge. nebeneinander? Das funktioniert doch nicht. Außer, man bleibt im Auto sitzen. :D
 
Z

Zaba12

Ich selbst habe auch einen Allraum und habe durch das Einbinden von Wegen den Raum auf 55qm vergrößert. Nur ist es so dass die 55qm nicht übermäßig groß wirken. Ich will mir nicht vorstellen wie winzig dann 35qm anmuten. An deiner Stelle würde ich egal wie versuchen hier ein paar qm mehr rauszuholen oder breiter zu bauen.
 
Z

Zaba12

Am OG gibt es nichts auszusetzen. Das Bad finde ich gelungen. Die Kinderzimmer muss man bei der Geschossfläche nicht so groß machen, aber das ist Geschmacksache. Nur das ggf. das Schlafzimmer je nach Größe des Bettes nicht funktioniert. Was mir noch aufgefallen ist, wahrscheinlich kannst Du den Kamin an der Stelle knicken. Mit richtig eingezeichneten Kamin + vorgeschriebener Abstandsfläche, wird so kein Esstisch dort stehen können. Sorry wenn ich das sagen muss aber das EG ist ne Mogelpackung. Es verspricht mehr als das es halten kann. Auch wenn die Planung bemaßt sein mag. Das sind Rohbaumaß also geh mal mit dem
Lineal durch, behalte das im Hinterkopf und zeichne Dir echte Möbel rein.

Überlegt euch mal eine Einfachgarage zu bauen und den entstandenen Platz für Wohnen zu nutzen.
 
Zuletzt aktualisiert 19.12.2025
Im Forum Baukosten / Baunebenkosten / Baupreise gibt es 878 Themen mit insgesamt 29655 Beiträgen


Ähnliche Themen zu Kosteneinschätzung in aktueller Zeit
Nr.ErgebnisBeiträge
1Grundriss: Offenes Wohnzimmer inkl. Kamin - Feedback 11
2Wohnzimmer: Wie Sofa, TV und Schränke stellen? - Seite 432
3Grundriss Einfamilienhaus 141 qm - offensichtliche Schwachstellen? 41
4Wohnzimmer Grundrissplanungs-Ideen? - Seite 239
5Treppe im Flur, Grundriss steht eigentlich schon :o( - Seite 320
6Hauseingang mit Flur oder ohne 15
7Doppelflügeltür / Pendeltür zum Wohnzimmer 13
8Kamin innen- oder außenliegend? - Seite 222
9Grundrissplanung Wohnzimmer-Küche 18
10Kamin und kohlenstoffmonoxid - Seite 329
11Grundriss für 150qm Einfamilienhaus mit Wohnzimmer nach Norden - Seite 321
123. Zimmer im 40qm Wohnzimmer unterkriegen. Ideen 74
13Wohnzimmer / Esszimmer gestalten. Ideen gesucht 10
14Luftwärmepumpe und Wasserführender Kamin - Erfahrungen 12
15LED-Einbaulampen in Allraum Küche, Wohn- und Essbereich 17
16Ist ein Kamin heute noch sinnvoll im Neubaut - Erfahrungen? - Seite 1063
17Treppe im Wohnzimmer als Hype - Pro & Contra? - Seite 426
18Einseitiger oder zweiseitiger Kamin - Seite 550
19Standort Küche und Wohnzimmer - Seite 355
20Wärmepumpe und wasserführender Kamin kombinieren - Seite 260

Oben