Kosten für Sanitär & Wärmepumpe

4,00 Stern(e) 10 Votes
Zuletzt aktualisiert 08.01.2026
Sie befinden sich auf der Seite 3 der Diskussion zum Thema: Kosten für Sanitär & Wärmepumpe
>> Zum 1. Beitrag <<

M

MisterMatze

Anbei das Angebot für die Wärmepumpe.
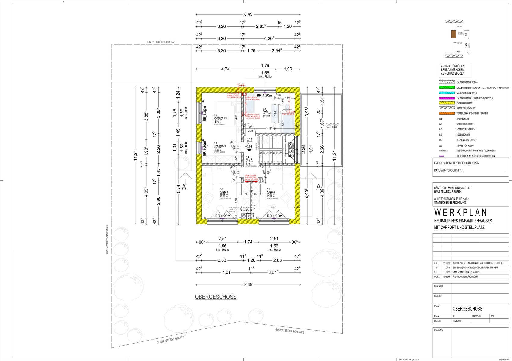
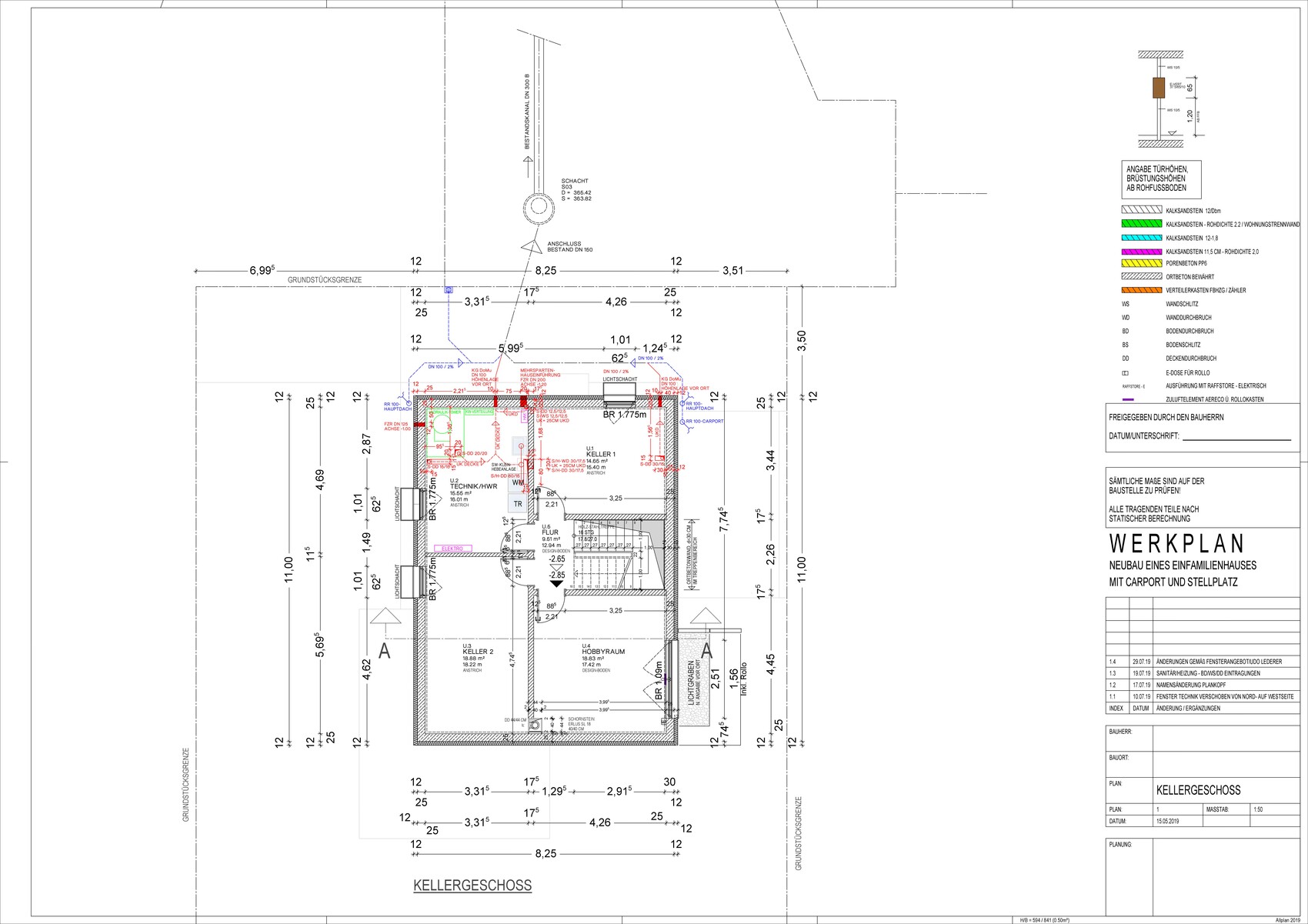
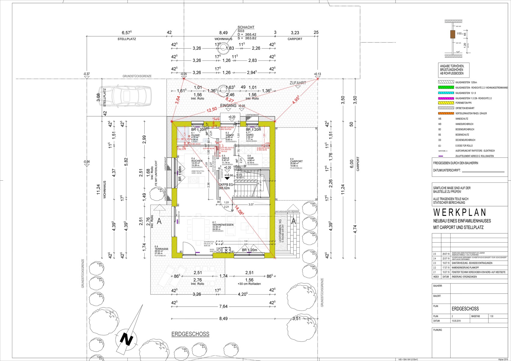
Zudem die Werkspläne.

Das Bad oben wir noch etwas verändert. Die mittlere Wand des T-Stücks wandert weiter nach oben.
Dadurch ist die Dusche größer. Die Badewanne kommt links an das T-Stück.
Das Waschbecken wird dann auf die linke Seite gesetzt. Dort wo die Badewanne aktuell auf dem Plan steht.

Fußbodenheizung wird in jedem Raum gelegt, außer Hauswirtschaftsraum und im Keller die zwei hinteren Räume.

Fließen und Lüftung wird über eine anderes Gewerk erledigt.
Trockenbau auch.

Anhang anzeigen grundriss-werkplan-einfamilienhaus-mit-carport.jpg

Anhang anzeigen untergeschoss-keller-grundriss-plan-hausbau.jpg

Anhang anzeigen grundriss-obergeschoss-einfamilienhaus-werkplan-neubau.jpg

Rechnungsbrief vom 23.06.2019, Seite 1 von 5, enthält Positionen zur Wärmepumpe und Zubehör.


Rechnung: Tabelle mit Positionen, Mengen, Bezeichnungen, Einzel- und Gesamtpreisen.


Rechnungsseite mit Artikelliste, Positionen, Preisen und Gesamtsumme (Datum 23.06.2019).


Kostenvoranschlag 2019-03111: Tabellen mit Positionen, Mengen, Preisen und Gesamtsumme.


Dokument mit Datum 23.06.2019 und Gesamtsumme 30.841,49 €, Angebotsbrief.
 
B

boxandroof

Ein paar Anmerkungen was mit Wärmepumpe nicht optimal ist:
  • Pufferspeicher
  • Zirkulation
  • Heizkörper, auch im Bad: 1. bringt nichts, 2. Oxidation. Alternativ:
    • Fußbodenheizung zusätzlich in Wand und/oder Decke im Bad oder
    • E-Heizkörper um das Bad nur kurzzeitig aber kurzfristig zu beheizen
  • Einzelraumregelung (befreien oder hinterher stilllegen/Thermostate nicht verbauen)
Jeder einzelne - ich nenne es mal Planungsfehler - kostet Dich dauerhaft Effizienz und damit Strom im laufenden Betrieb.

Was ich unbedingt nachholen würde falls nicht vorliegend: Flächenheizung detailliert nach raumweiser Heizlast planen lassen und dabei Deine Raumtemperaturen vorgeben statt Temperaturen nach DIN.

Den Hauswirtschaftsraum würde ich auch mit Fußbodenheizung belegen, sonst heizt Du den Raum indirekt über die anderen Räume mit und verschenkst dabei wichtige Heizfläche. Den-Hauswirtschaftsraum Kreis könnte man teilweise in Garderobe/Flur legen. Ebenso beim Gästebad, so hat man keine Mini-Kreise. Beim Gästebad natürlich die warme Seite in das Bad mit enger Verlegung und die kalte Seite in einen Teil des Flures.

Beim Aufheizen des Estrichs würde ich darauf achten, nicht höher zu gehen als bis zur maximale berechneten Vorlauftemperatur (ca. 30°).
 
G

guckuck2

Hauswirtschaftsraum sehe ich unkritisch, wenn da eh die Heizung drin steht. Der Raum ist durch Wärmeverluste des Warmwasserspeichers, der Verrohrung und Anbindung der Fußbodenheizung bei mir der wärmste.
 
B

boxandroof

Kommt darauf an. Ja vermutlich gibt es hier kritischere Stellen. Der Hauswirtschaftsraum hat zwar wenig Außenwand, heizt hier ggf. aber auch das Treppenhaus mit. Unser Hauswirtschaftsraum ist mit leicht mitlaufender Fußbodenheizung kühler als andere Räume, trotz Heizungshydraulik und Speicher in dem Raum.

Eine Raumweise Heizlastberechnung kann Aufschluss geben.
 
B

Bookstar

Ein paar Anmerkungen was mit Wärmepumpe nicht optimal ist:
  • Pufferspeicher
  • Zirkulation
  • Heizkörper, auch im Bad: 1. bringt nichts, 2. Oxidation. Alternativ:
    • Fußbodenheizung zusätzlich in Wand und/oder Decke im Bad oder
    • E-Heizkörper um das Bad nur kurzzeitig aber kurzfristig zu beheizen
  • Einzelraumregelung (befreien oder hinterher stilllegen/Thermostate nicht verbauen)
Jeder einzelne - ich nenne es mal Planungsfehler - kostet Dich dauerhaft Effizienz und damit Strom im laufenden Betrieb.

Was ich unbedingt nachholen würde falls nicht vorliegend: Flächenheizung detailliert nach raumweiser Heizlast planen lassen und dabei Deine Raumtemperaturen vorgeben statt Temperaturen nach DIN.

Den Hauswirtschaftsraum würde ich auch mit Fußbodenheizung belegen, sonst heizt Du den Raum indirekt über die anderen Räume mit und verschenkst dabei wichtige Heizfläche. Den-Hauswirtschaftsraum Kreis könnte man teilweise in Garderobe/Flur legen. Ebenso beim Gästebad, so hat man keine Mini-Kreise. Beim Gästebad natürlich die warme Seite in das Bad mit enger Verlegung und die kalte Seite in einen Teil des Flures.

Beim Aufheizen des Estrichs würde ich darauf achten, nicht höher zu gehen als bis zur maximale berechneten Vorlauftemperatur (ca. 30°).
Zirkulation als Planungsfehler zu bezeichnen finde ich falsch. Es ist Komfort und kostet Geld. Einzelraumregler finde ich fallen auch darunter. Beim Rest bin ich dabei.
 
Zuletzt aktualisiert 08.01.2026
Im Forum Baukosten / Baunebenkosten / Baupreise gibt es 878 Themen mit insgesamt 29665 Beiträgen


Ähnliche Themen zu Kosten für Sanitär & Wärmepumpe
Nr.ErgebnisBeiträge
1Fußbodenheizung auch im Technikraum / Hauswirtschaftsraum - Seite 319
2Fußbodenheizung oder Heizkörper? 12
3Altbausanierung - Gasheizung + Heizkörper oder Fußbodenheizung? 10
4Heizkörper oder Fußbodenheizung: Was ist unter diesen Umständen zu empfehlen? 23
5Fußbodenheizung + Heizkörper -> Zwei Thermostate in einem Raum - Seite 210
6Wasserführender Kaminofen Fußbodenheizung, Wärmepumpe Photovoltaik Neubau? 28
7Kühlung über Fußbodenheizung mit Sole-Wärmepumpe - Seite 345
8Fußbodenheizung im EG und OG, Heizkörper im Keller? 15
9Angebot Luft-Wasser-Wärmepumpe incl Fußbodenheizung ok? 19
10Heizkreise/Thermostate für Wohnen/Essen/Küche bei Fußbodenheizung/Wärmepumpe 35
11Kühlen im Sommer mit Luft-Wasser-Wärmepumpe, Fußbodenheizung und/oder Lüftungsanlage? 29
12Luft-Wasser-Wärmepumpe mit Fußbodenheizung richtig einstellen - Seite 554
13Fußbodenheizung in Kinderzimmer? Einige Räume ohne Fußbodenheizung geplant? Luft-Wasser-Wärmepumpe raus? 48
14Fußbodenheizung unter Badewanne und Dusche 13
15Keller Fußbodenheizung oder niedertemperatur Heizkörper - Seite 222
16Kühlen mit Wärmepumpe über Fußbodenheizung? - Seite 2117
17Fußbodenheizung und Luft-Wasser-Wärmepumpe im Neubau: handele ich mir Probleme ein? 28
18Luft-Wasser-Wärmepumpe in Kombination mit Fußbodenheizung arbeitet nicht korrekt 65
19Altbau Wohnung mit Gastherme - Fußbodenheizung jetzt, Wärmepumpe später 14
20Luft-Wasser-Wärmepumpe + Fußbodenheizung + Kontrollierte-Wohnraumlüftung m. Wärmerückgewinnung - Einzeln. Raum unterschiedlich temperierbar? 10

Oben