ᐅ Kniestock erhöhen - Traufhöhe überschreiten?
Erstellt am: 20.10.19 10:49
L
LotteBerlin20.10.19 10:49Hallo!
Wir befinden uns aktuell in der konkreteren Planung für unser Bauvorhaben bzw. holen aktuell Angebote potenzieller Bauunternehmen ein.
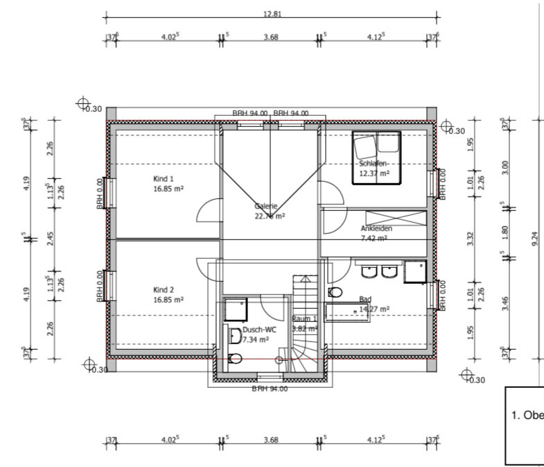
Wir haben aktuell eine Planung erhalten, die uns grundsätzlich zusagt. Problem hierbei ist allerdings der Kniestock im OG von 75cm nach Ausbau bei einer Dachneigung von 42°.
Es gibt für unser Grundstück keinen Bebauungsplan, sondern nur Auflagen des Bauamts, die eine Traufhöhe von 4m und eine Giebelhöhe von 8,50m vorgeben.
Wie kann man den Kniestock eventuell noch erhöhen? Ginge das nur über eingezogene Wände und somit Verlust von Grundfläche im OG?
Ein Berater eines anderen Unternehmens sagte mir, dass eine Drempelerhöhung überhaupt kein Problem und auch ohne Grundflächenverlust möglich sei...
Wir hätte gerne einen Kniestock von mindestens 90cm, lieber 1m, dafür müsste man ja aber, nach meinem laienhaften Verständnis, die Traufhöhe überschreiten?!
In den Räumen geht einfach wahnsinnig viel Platz verloren und auch die Aufteilung im Bad finde ich mehr als ungünstig.
Ich freue mich über Ideen.

Wir befinden uns aktuell in der konkreteren Planung für unser Bauvorhaben bzw. holen aktuell Angebote potenzieller Bauunternehmen ein.
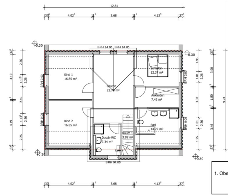
Wir haben aktuell eine Planung erhalten, die uns grundsätzlich zusagt. Problem hierbei ist allerdings der Kniestock im OG von 75cm nach Ausbau bei einer Dachneigung von 42°.
Es gibt für unser Grundstück keinen Bebauungsplan, sondern nur Auflagen des Bauamts, die eine Traufhöhe von 4m und eine Giebelhöhe von 8,50m vorgeben.
Wie kann man den Kniestock eventuell noch erhöhen? Ginge das nur über eingezogene Wände und somit Verlust von Grundfläche im OG?
Ein Berater eines anderen Unternehmens sagte mir, dass eine Drempelerhöhung überhaupt kein Problem und auch ohne Grundflächenverlust möglich sei...
Wir hätte gerne einen Kniestock von mindestens 90cm, lieber 1m, dafür müsste man ja aber, nach meinem laienhaften Verständnis, die Traufhöhe überschreiten?!
In den Räumen geht einfach wahnsinnig viel Platz verloren und auch die Aufteilung im Bad finde ich mehr als ungünstig.
Ich freue mich über Ideen.
Zu den Höhen da bin ich raus. Da werden dir andere antworten
Mit dem Drempel
Schaue dich bei Pinterest um.
Drempelschränke etc. Gibt pfiffige Ideen um den Bereich als Stauraum zu nutzen.
In einem Musterhaus wurde die Dusche so positioniert, dass unter der Schräge eine Sitzbank eingebaut war
Mit dem Drempel
Schaue dich bei Pinterest um.
Drempelschränke etc. Gibt pfiffige Ideen um den Bereich als Stauraum zu nutzen.
In einem Musterhaus wurde die Dusche so positioniert, dass unter der Schräge eine Sitzbank eingebaut war
L
LotteBerlin20.10.19 18:51Lieben Dank für deine Antwort. Ich habe mal geschaut und wirklich ganz tolle Ideen bzw. Umsetzungen gefunden.
Wir haben jetzt mal die Pläne eines ähnlichen Hauses angesehen und festgestellt, dass wir lediglich eine Erhöhung der Traufhöhe auf 4,30m bräuchten um das Haus so zu bauen, wie wir es uns vorstellen.
Besteht da Chance auf eine Ausnahmegenehmigung (ohne Bebauungsplan)? Es geht ja immerhin nicht um 2 Meter...
Wir haben jetzt mal die Pläne eines ähnlichen Hauses angesehen und festgestellt, dass wir lediglich eine Erhöhung der Traufhöhe auf 4,30m bräuchten um das Haus so zu bauen, wie wir es uns vorstellen.
Besteht da Chance auf eine Ausnahmegenehmigung (ohne Bebauungsplan)? Es geht ja immerhin nicht um 2 Meter...
LotteBerlin schrieb:
Besteht da Chance auf eine Ausnahmegenehmigung (ohne Bebauungsplan)?Wer hat die 4m festgelegt, welcher Bezugspunkt wurde bestimmt und welche Umfeldanalyse lag der Entscheidung zu Grunde?Wenn Du der Behörde andere Werte in der näheren Umgebung nachweisen kannst, braucht es keine Ausnahmegenehmigung. Ansonsten gibt es noch die Möglichkeit, mit absoluten oder relativen Höhen zu argumentieren, je nach dem, was für Dich günstiger ist.
Wenn Du aber unabhängig von der Betrachtungsweise die Traufhöhen der Nachbarbebauung überschreiten willst, bist Du auf die Überredungskunst deines Entwurfsverfassers angewiesen, da mir aus der Ferne ohne Kenntnis des Grundstücks und der Nachbarbebauung keine sachdienlichen Argumente einfallen.
Also bei 42° DN ziehst du 30cm die Wand herein und hast deinen gewünschten Kniestock. In die 30cm integrierst du Regale oder Stauraum zB...rechne es dir mal aus was du wirklich verlierst...in meinen Augen reden wir hier über Peanuts...Kinderzimmer mit knapp 17qm sind nun auch wirklich rieseig, das bisl was da verloren geht merkt kein Mensch...
Ähnliche Themen