Klimaanlage Naubau Erfahrungen?

4,60 Stern(e) 7 Votes
Zuletzt aktualisiert 19.11.2025
Sie befinden sich auf der Seite 3 der Diskussion zum Thema: Klimaanlage Naubau Erfahrungen?
>> Zum 1. Beitrag <<

C

Curly

also bei uns funktioniert das abendliche Kühlen gut, wir kühlen immer auf 21,5 Grad (von ca. 25 Grad) und haben morgens etwa 22-23 Grad, das ist angenehm.
Nachts ist die Klimaanlage dann aus und die Lüftungsanlage an.

LG
Sabine
 
E

Elias_dee

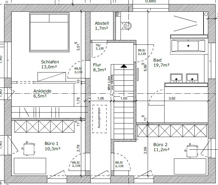
Hi zusammen, den Thread hier finde ich sehr spannend! Ich bin auch gerade beim Anfragen meiner Klimaanlage für den Neubau und würde mein OG gerne "angenehm" haben. Anbei findet ihr meinen Grundriss. Ich würde v.a. gerne bei kühleren Temperaturen schlafen und auch allgemein die Büros im OG kühl haben. Daher die Idee, ein Innengerät im Schlafzimmer und eines irgendwo an zentraler Position im Flur zu haben, so dass sich die Luft verteilt.

Dafür würde ich im Schlafzimmer auf ein 2,5 kW Gerät (oder so) gehen und im Flur ein etwas stärkeres.

Was denkt ihr, funktioniert das so? Und wo würdet ihr die Position der beiden Geräte im Schlafzimmer und Flur jeweils setzen?

Vielen Dank im Voraus!

Grundriss eines Hauses: Schlafzimmer, Ankleide, Büro1, Büro2, Flur, Bad, Abstellraum.
 
C

Crixton

Hi zusammen, den Thread hier finde ich sehr spannend! Ich bin auch gerade beim Anfragen meiner Klimaanlage für den Neubau und würde mein OG gerne "angenehm" haben. Anbei findet ihr meinen Grundriss. Ich würde v.a. gerne bei kühleren Temperaturen schlafen und auch allgemein die Büros im OG kühl haben. Daher die Idee, ein Innengerät im Schlafzimmer und eines irgendwo an zentraler Position im Flur zu haben, so dass sich die Luft verteilt.

Dafür würde ich im Schlafzimmer auf ein 2,5 kW Gerät (oder so) gehen und im Flur ein etwas stärkeres.

Was denkt ihr, funktioniert das so? Und wo würdet ihr die Position der beiden Geräte im Schlafzimmer und Flur jeweils setzen?

Vielen Dank im Voraus!
Ein zentrales Klima Gerät wurde ich nur machen wenn ihr eine zentrale Lüftungsanlage habt. Ansonsten gibt es wahrscheinlich zu wenig Luftaustausch zwischen den räumen.
(Bei 200m3/h und angenommen Gebäudevolumen von 600m3 alle 3 stunden einmal komplett umgewälzt)
Im Idealfall an der Lüftungsanlage einen enthalpie-WT verbauen, damit die Zuluft von außen an die entfeuchtete Abluft die Luftfeuchtigkeit überträgt.
Dadurch kommt die Zuluft gleich schon mit reduzierter Temperatur und Feuchtigkeit ins Haus, speziell die entfeuchtung einer Klima macht es ja angenehm.

Wir werden es so machen wie beschrieben, mit je einem Gerät im EG und OG.
 
E

Elias_dee

Ein zentrales Klima Gerät wurde ich nur machen wenn ihr eine zentrale Lüftungsanlage habt. Ansonsten gibt es wahrscheinlich zu wenig Luftaustausch zwischen den räumen.
(Bei 200m3/h und angenommen Gebäudevolumen von 600m3 alle 3 stunden einmal komplett umgewälzt)
Im Idealfall an der Lüftungsanlage einen enthalpie-WT verbauen, damit die Zuluft von außen an die entfeuchtete Abluft die Luftfeuchtigkeit überträgt.
Dadurch kommt die Zuluft gleich schon mit reduzierter Temperatur und Feuchtigkeit ins Haus, speziell die entfeuchtung einer Klima macht es ja angenehm.

Wir werden es so machen wie beschrieben, mit je einem Gerät im EG und OG.
Danke für den HInweis. Wir haben tatsächlich eine zentrale Lüftungsanlage geplant. Die Klima hätte ich jetzt aber unabhängig davon konzipiert...

edit: Danke auch für den Hinweis mit dem Enthalpie-WT! Den haben wir auch geplant, allerdings erst 1-2 Jahre nach Bezug. Habe öfters gelesen, dass man den am Anfang bewusst NICHT nehmen soll, damit man die Baufeuchte besser rausbekommt...
 
Mycraft

Mycraft

Moderator
Ja das sind zwei völlig unabhängige Systeme und beide haben Sinn in den heutigen Häusern. Wenn das Geld da ist, dann unbedingt das Eine oder Andere oder eben beides einbauen lassen.

Natürlich wäre es ideal auch noch wenn beides zusammenspielt und nicht gegeneinander arbeitet.
 
Zuletzt aktualisiert 19.11.2025
Im Forum Heizung / Klima gibt es 1845 Themen mit insgesamt 26879 Beiträgen


Ähnliche Themen zu Klimaanlage Naubau Erfahrungen?
Nr.ErgebnisBeiträge
1Abluft im Schlafzimmer - Zuluft im Abstellraum - Seite 424
2Beschlagene Fenster trotz Lüftungsanlage - Seite 649
3Dezentrale Lüftungsanlage nachrüsten sinnvoll? 13
4Macht es Sinn eine Klimaanlage nachzurüsten? 12
5Klima mit Fußbodenheizung oder über die Lüftungsanlage steuern? 66
6Kontrollierte-Wohnraumlüftung Lüftungsanlage - Entscheidungshilfe - Seite 431
7Schlafzimmer warm im Haus mit Lüftung inkl. Wärmerückgewinnung 24
8Lüftungsanlage falsch angeschlossen? - Seite 213
9Lüftungsanlage im Sommer? - Seite 345
10Kühlen im Sommer mit Luft-Wasser-Wärmepumpe, Fußbodenheizung und/oder Lüftungsanlage? 29
11zentrale Lüftungsanlage - Feuchtigkeitsrückgewinnung nötig? - Seite 19113
12Lüftungsanlage im warmen Sommer 47
13Hohe Luftfeuchtigkeit trotz dezentraler Lüftungsanlage - Seite 216
14Kühldecken statt Klimaanlage sinnvoll? - Seite 215
15Zehnder Kontrollierte-Wohnraumlüftung ppm Messung Schlafzimmer 22
16Geräuschentwicklung bei der Lüftungsanlage 19
17KfW 55 - Lüftungsanlage ja/nein? - Erfahrungen - Seite 11222
18Lüftungsanlage - was tun, wenn Umnutzung des Raums geplant ist? 10
19Lüftungsanlage mit Wärmerückgewinnung - Sinn oder Unsinn? 18
20Automatisierung einer Kontrollierte-Wohnraumlüftung (Lüftungsanlage) - Seite 332

Oben