ᐅ Anbau für 4 köpfige Familie am Waldrand
Erstellt am: 06.02.22 17:25
A
aw39_bonn06.02.22 17:25Hallo liebes Forum,
Wir saßen nun mit dem Hirngespinst eines Anbaus unseres 2014/15 erworbenen EFHs (BJ 1962) schon seit längerer Zeit herum und überlegten vor uns hin. Irgendwann haben wir uns dann dazu entschlossen, mit einem Architekten die konkrete Planung basierend auf unseren Anforderungen und Ideen in Angriff zu nehmen.
Zum Hintergrund: Wir haben das Haus 2014 in “desolatem” Zustand gekauft. Mit Hilfe von Freunden, Bekannten und gutmütigen Handwerkern haben wir damals die Kernsanierung (Böden, Putz, Elektrik, Wasser/Abwasser/Heizungsrohre, Bäder) mit viel EL selbst gestemmt und in 3 Monaten die ganze Immobilie - neben regulären Jobs - auf links gedreht. Soweit so gut. Schon damals war uns aber klar, dass dies nicht das Ende der Fahnenstange ist, spätestens mit Nachwuchs würden wir früher oder später nochmal aktiv werden müssen.
Das Haus liegt in direkter Nachbarschaft zu meinen Schwiegereltern, am Rande eines kleinen Wäldchens (Wald im Süden). Da wir zu meinen Schwiegereltern/Eltern meiner Frau ein sehr gutes Verhältnis haben und die zu Ihnen liegende Seite des Grundstückes kaum genutzt haben, wurde dort in der Zwischenzeit (2019) von den Schwiegereltern sowohl eine Doppelgarage (mit zwei davor liegenden Stellplätzen) als auch ein Pool errichtet (wogegen wir uns nicht wirklich gewehrt haben 😉 ). Bebauung in diese Richtung ist also quasi ausgeschlossen (Weil Pool und Garage dort liegen). Auf der anderen Seite des Hauses (und in den Plänen des UG eingezeichnet) liegt die Wasserversorgungsleitung der Stadt Bonn (mit dazugehörigen Schutzstreifen von 4m in beide Richtungen), was die Anbaufläche ebenfalls stark limitiert. Somit können wir quasi nur auf der bestehenden Fläche und nach hinten raus (an)bauen.
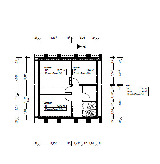
Hier die Pläne vom Objekt im aktuellen Zustand (Bestehend aus UG - faktisch Keller -, EG und OG). Das Haus verfügt auch über einen ausgebauten Spitzboden aber dieser ist nicht der Rede Wert.


UG:

EG:

OG:

Nun haben wir einige Jahre hier im Haus gelebt und kennen unsere Wege und Bedürfnisse ganz gut. Darauf basierend haben wir ein wenig unseren Raumbedarf in das nachfolgende Formular eingetragen um die Anforderungen bestmöglich mit euch zu teilen.
Bebauungsplan/Einschränkungen
Größe des Grundstücks -
1023 m2
Hang:
Nein
Grundflächenzahl:
Nicht im Online Bebauungsplan der Stadt Bonn eingetragen => Einfügung ins Umfeld (kleinstes Haus auf der Straße). Architekt war bereits auf der Straße und hat sich einen guten Überblick verschafft.
Geschossflächenzahl:
Siehe Grundflächenzahl
Baufenster, Baulinie und -grenze: Bestand steht bereits leicht aus der Linie aufgrund Schutzstreifen der Wahnbachtalsperre
Randbebauung:
Garage und Pool im Jahr 2019 an das Haus gesetzt, mit Nachbarn (Schwiegereltern abgestimmt) und von der Stadt genehmigt
(Putz, Böden, Elektrik, Heizungsrohre und Wasserleitungen)
3
Geschossigkeit:
Nebenhäuser alle mindestens 2,5 geschossig
Dachform:
Auf der Straße ist alles vorhanden, flachdach, Pultdach, Spitzdach
Stilrichtung:
Flexibel
Ausrichtung:
Terrasse Richtung Süden
Maximale Höhen/Begrenzungen:
Vom Architekten berücksichtigt, aufgrund §§33/34 aber recht viel “Luft” nach oben
weitere Vorgaben
8m Schutzstreifen (jeweils 4 m in beide Richtungen) zur über das Grundstück verlaufenden Wasser-Hauptversorgungsleitung (In Plänen des UG eingezeichnet).
Anforderungen der Bauherren
Stilrichtung, Dachform, Gebäudetyp
Bestandsbau von 1962, 2015 kernsaniert (Putz, Böden, Elektrik, Heizungsrohre und Wasserleitungen) in EL + Handwerker für Spezialgewerke
Erweiterung der bestehenden Wohnfläche (ca. 85m2) durch Anbau und Änderung der Grundrisse. Stilistisch wünschen wir uns eine gute Mischung aus dem Bestand (klassisches 1962er Häuschen) mit modernen Elementen und einem eher geradlinigen Anbau mit viel Glas/Licht.
Keller, Geschosse
Keller besteht bereits und wird auch benötigt + Flexible Anzahl Geschosse (was wir für ein entspanntes Familienleben benötigen)
Anzahl der Personen, Alter
4 Personen:
Eltern (31/32)
Kinder (2 Töchter 3/1)
2 Hunde
Raumbedarf im EG, OG
EG soll der Familienwohnraum sein mit allem was dazugehört (Küche, Esszimmer, Wohn & Lebensbereich)
Im OG soll mindestens Platz für die Mädels sein mit eigenem Badezimmer. Bereits nun enthalten ist ein großer Büroraum.
In den Plänen enthalten ist nun auch bereits ein DG, das erweitert und ausgebaut wird. Hier ist Platz für Elternschlafzimmer, eigenes Bad + große Dachterrasse.
Büro: Familiennutzung oder Homeoffice?
Nutzung als Homeoffice (Sowohl meine Frau als auch ich sind Laptoparbeiter, die überall arbeiten können)
Schlafgäste pro Jahr
Überschaubar bis wenig
offene oder geschlossene Architektur
Wir sind hier recht flexibel, hat beides sein Für und Wider. Im EG/DG ist es aktuell eher offen, im OG eher geschlossen (weil Kinderzimmer, Büro, Bad)
konservativ oder moderne Bauweise
Eher moderne Bauweise mit vielen Fenstern und Blick ins Grüne (Haus liegt direkt am Waldrand mit Blick ins Grüne)
offene Küche, Kochinsel
Küche ist bereits im Bestand recht offen gestaltet mit Durchgang ins Wohnzimmer/Esszimmer. Dies möchten wir auch gerne in Zukunft beibehalten für Kommunikation mit Gästen (Wir laden gerne ein) oder eine eher lebhafte Atmosphäre im EG (Stichwort “Familienwohnraum”). In den Durchgang Richtung Terrasse/Esszimmer planen wir aktuell eine Erweiterung der Küche (110-120cm) als Küchenhalbinsel (Nutzbar als Arbeitsfläche, Buffet, Tresen, Kaffeetrinktheke)
Anzahl Essplätze
Im Alltag sind es 4, Für Weihnachten eher 15, für normale Gästeabende eher 8
Kamin
Überlegen wir derzeit noch, auch wo es ins Budget passt.
Musik/Stereowand
Nein
Balkon, Dachterrasse
Dachterrasse im DG ans Schlafzimmer anliegend (für laue Sommerabend bei nem guten Wein). Im EG ist ein Balkon/Terrasse geplant zur Erweiterung der Familien- und Gästefläche” und auch für die Möglichkeit im Sommer “draußen” zu essen.
Garage, Carport
Hier sind wir bestens versorgt durch die bereits bestehende Garage im KG sowie der 2020 neu angebauten Garage mit 2 Stellplätzen davor
Nutzgarten, Treibhaus
Nicht benötigt bzw. Teilweise schon auf dem Grundstück in den letzten 7 Jahren entstanden (kleinere Beete + Hühnerhaus mit Freigehege)
weitere Wünsche/Besonderheiten/Tagesablauf, gern auch Begründungen, warum dieses oder das nicht sein soll
Wir möchten das Haus so gestalten, dass wir als Familie die nächsten 20 Jahre unseren Bedürfnissen entsprechend wohnen können.
Zusätzlich haben wir uns überlegt, dass wir das Haus prinzipiell so gestalten wollen, dass es in zwei Wohneinheiten teilbar wäre (falls wir mal für längere Zeit ins Ausland gehen oder wir im Alter weniger Bedarf an Raum und die Möglichkeit der Vermietung hätten). Zugang zur zweiten Wohneinheit wäre dann über eine an der rechten Gebäudeseite liegende Außentreppe.
WE1 wäre dann das gesamte EG + Treppe ins OG sowie direkt angrenzendem Zimmer sowie Bad. Abgetrennt wird das ganze dann im Flur.
WE2 wäre dann die andere Hälfte des OG + das geasmte DG mit Dachterrasse.
Aus unserer Sicht wären beide WEs für sich funktionierend und ließen sich auch gut vermieten. WE1 würde für uns im Alter mehr als ausreichen.
Hausentwurf
Von wem stammt die Planung:
-Architekt, basierend auf unseren Wünschen und unter anderem aus Nachhaltigkeitsgründen in Holzständerbauweise geplant.
Was gefällt besonders? Warum?
Insgesamt die Menge an Fenstern/Glas in Richtung Wald. Die Lage war zum damaligen Zeitpunkt ein großer Pluspunkt für uns (Straßenendlage direkt an einen kleinen Wald angrenzend).
Auch das Dachgeschoss mit der Terrasse ist für uns reizvoll und gefällt uns gut. Das Büro im OG ist ebenfalls toll und könnte von uns beiden gemeinsam genutzt werden (ggf. Im Trockenbau eine Zwischenwand einziehen). Auch die Öffnung der Küche in Richtung Esszimmer und der zusätzliche Balkon sind toll.
Was gefällt nicht? Warum?
Der Zugang zur potentiellen zweiten Wohneinheit über die Außentreppe wäre Stand jetzt eher suboptimal aber aus unserer Sicht die beste Lösung um perspektivisch 2 WEs zu erhalten.
Preisschätzung lt Architekt/Planer:
Unser Architekt schätzt aktuell grob in der Dimension 250 bis 300 k€ (Komplette Übernahme durch Handwerker)
Persönliches Preislimit fürs Haus, inkl Ausstattung:
Das Haus gekauft haben wir damals für 280 k€, für den Anbau wollen wir uns zusätzlich mit höchstens 150 k€ verschulden. Wir haben aktuell ca. 50 k€ an Eigenmitteln gespart und schielen derzeit auf die Wiederaufnahme der 261/262er Programme der KfW (laut Energieexperte/Architekt eher eine Frage der Zeit) was uns nochmal 60 bzw. 120 k€ beim Ausbau zu zwei Wohneinheiten bringen würde.
favorisierte Heiztechnik:
Wir haben aktuell eine Ölheizung. Diese wollen und werden wir im Rahmen der Sanierung ersetzen. Hier sind wir noch nicht final mit dem Architekten/Energieexperten. Zusätzlich wollen wir auch noch Photovoltaik oder Solarthermie einbauen, je nach Sinnhaftigkeit/Budget. Vermutlich wird es aber auf Pellets hinauslaufen.
Ziel ist insgesamt die Sanierung zum Kfw 70 EE Haus.
Wenn Ihr verzichten müsst, auf welche Details/Ausbauten
-könnt Ihr verzichten: Was nötig ist.
-könnt Ihr nicht verzichten: Alles was uns viel Wohnraum für “wenig” Geld kostet.
Warum ist der Entwurf so geworden, wie er jetzt ist?
Der Entwurf basiert auf Ideen und Wünschen, die sich die letzten Jahre angesammelt, von uns laufend neu bewertet wurden und dann final in das Briefing für den Architekten eingeflossen sind. Das Haus abzureißen steht wegen Garage und Pool der Schwiegereltern nicht zur Debatte, da stehen wir zu unserem Wort.
Wir wollen aus verschiedenen Gründen gerne in Holzständerbauweise anbauen.
Was ist die wichtigste/grundlegende Frage zum Grundriss in 130 Zeichen zusammengefasst?
Verzetteln wir uns mit dem Haus und dem geplanten Anbau komplett oder ist es vor dem Hintergrund unserer Wünsche, Bedürfnisse und Budgets das “bestmögliche”?
Hier nun also die aktuellen Pläne des Architekten aus denen vieles ersichtlich ist. Der “überdimensionierte” Pfosten fängt die Last des Daches ab um die Ecke vor der Garage auskragen zu lassen (hier hat das Bauamt bzw. Die Wahnbachtalsperre signalisiert, dass ihnen lieb wäre, wenn der vom Vorbesitzer errichtete Pfosten unter der Terrasse verschwindet.


EG:

OG:

DG:

Wir saßen nun mit dem Hirngespinst eines Anbaus unseres 2014/15 erworbenen EFHs (BJ 1962) schon seit längerer Zeit herum und überlegten vor uns hin. Irgendwann haben wir uns dann dazu entschlossen, mit einem Architekten die konkrete Planung basierend auf unseren Anforderungen und Ideen in Angriff zu nehmen.
Zum Hintergrund: Wir haben das Haus 2014 in “desolatem” Zustand gekauft. Mit Hilfe von Freunden, Bekannten und gutmütigen Handwerkern haben wir damals die Kernsanierung (Böden, Putz, Elektrik, Wasser/Abwasser/Heizungsrohre, Bäder) mit viel EL selbst gestemmt und in 3 Monaten die ganze Immobilie - neben regulären Jobs - auf links gedreht. Soweit so gut. Schon damals war uns aber klar, dass dies nicht das Ende der Fahnenstange ist, spätestens mit Nachwuchs würden wir früher oder später nochmal aktiv werden müssen.
Das Haus liegt in direkter Nachbarschaft zu meinen Schwiegereltern, am Rande eines kleinen Wäldchens (Wald im Süden). Da wir zu meinen Schwiegereltern/Eltern meiner Frau ein sehr gutes Verhältnis haben und die zu Ihnen liegende Seite des Grundstückes kaum genutzt haben, wurde dort in der Zwischenzeit (2019) von den Schwiegereltern sowohl eine Doppelgarage (mit zwei davor liegenden Stellplätzen) als auch ein Pool errichtet (wogegen wir uns nicht wirklich gewehrt haben 😉 ). Bebauung in diese Richtung ist also quasi ausgeschlossen (Weil Pool und Garage dort liegen). Auf der anderen Seite des Hauses (und in den Plänen des UG eingezeichnet) liegt die Wasserversorgungsleitung der Stadt Bonn (mit dazugehörigen Schutzstreifen von 4m in beide Richtungen), was die Anbaufläche ebenfalls stark limitiert. Somit können wir quasi nur auf der bestehenden Fläche und nach hinten raus (an)bauen.
Hier die Pläne vom Objekt im aktuellen Zustand (Bestehend aus UG - faktisch Keller -, EG und OG). Das Haus verfügt auch über einen ausgebauten Spitzboden aber dieser ist nicht der Rede Wert.
UG:
EG:
OG:
Nun haben wir einige Jahre hier im Haus gelebt und kennen unsere Wege und Bedürfnisse ganz gut. Darauf basierend haben wir ein wenig unseren Raumbedarf in das nachfolgende Formular eingetragen um die Anforderungen bestmöglich mit euch zu teilen.
Bebauungsplan/Einschränkungen
Größe des Grundstücks -
1023 m2
Hang:
Nein
Grundflächenzahl:
Nicht im Online Bebauungsplan der Stadt Bonn eingetragen => Einfügung ins Umfeld (kleinstes Haus auf der Straße). Architekt war bereits auf der Straße und hat sich einen guten Überblick verschafft.
Geschossflächenzahl:
Siehe Grundflächenzahl
Baufenster, Baulinie und -grenze: Bestand steht bereits leicht aus der Linie aufgrund Schutzstreifen der Wahnbachtalsperre
Randbebauung:
Garage und Pool im Jahr 2019 an das Haus gesetzt, mit Nachbarn (Schwiegereltern abgestimmt) und von der Stadt genehmigt
(Putz, Böden, Elektrik, Heizungsrohre und Wasserleitungen)
3
Geschossigkeit:
Nebenhäuser alle mindestens 2,5 geschossig
Dachform:
Auf der Straße ist alles vorhanden, flachdach, Pultdach, Spitzdach
Stilrichtung:
Flexibel
Ausrichtung:
Terrasse Richtung Süden
Maximale Höhen/Begrenzungen:
Vom Architekten berücksichtigt, aufgrund §§33/34 aber recht viel “Luft” nach oben
weitere Vorgaben
8m Schutzstreifen (jeweils 4 m in beide Richtungen) zur über das Grundstück verlaufenden Wasser-Hauptversorgungsleitung (In Plänen des UG eingezeichnet).
Anforderungen der Bauherren
Stilrichtung, Dachform, Gebäudetyp
Bestandsbau von 1962, 2015 kernsaniert (Putz, Böden, Elektrik, Heizungsrohre und Wasserleitungen) in EL + Handwerker für Spezialgewerke
Erweiterung der bestehenden Wohnfläche (ca. 85m2) durch Anbau und Änderung der Grundrisse. Stilistisch wünschen wir uns eine gute Mischung aus dem Bestand (klassisches 1962er Häuschen) mit modernen Elementen und einem eher geradlinigen Anbau mit viel Glas/Licht.
Keller, Geschosse
Keller besteht bereits und wird auch benötigt + Flexible Anzahl Geschosse (was wir für ein entspanntes Familienleben benötigen)
Anzahl der Personen, Alter
4 Personen:
Eltern (31/32)
Kinder (2 Töchter 3/1)
2 Hunde
Raumbedarf im EG, OG
EG soll der Familienwohnraum sein mit allem was dazugehört (Küche, Esszimmer, Wohn & Lebensbereich)
Im OG soll mindestens Platz für die Mädels sein mit eigenem Badezimmer. Bereits nun enthalten ist ein großer Büroraum.
In den Plänen enthalten ist nun auch bereits ein DG, das erweitert und ausgebaut wird. Hier ist Platz für Elternschlafzimmer, eigenes Bad + große Dachterrasse.
Büro: Familiennutzung oder Homeoffice?
Nutzung als Homeoffice (Sowohl meine Frau als auch ich sind Laptoparbeiter, die überall arbeiten können)
Schlafgäste pro Jahr
Überschaubar bis wenig
offene oder geschlossene Architektur
Wir sind hier recht flexibel, hat beides sein Für und Wider. Im EG/DG ist es aktuell eher offen, im OG eher geschlossen (weil Kinderzimmer, Büro, Bad)
konservativ oder moderne Bauweise
Eher moderne Bauweise mit vielen Fenstern und Blick ins Grüne (Haus liegt direkt am Waldrand mit Blick ins Grüne)
offene Küche, Kochinsel
Küche ist bereits im Bestand recht offen gestaltet mit Durchgang ins Wohnzimmer/Esszimmer. Dies möchten wir auch gerne in Zukunft beibehalten für Kommunikation mit Gästen (Wir laden gerne ein) oder eine eher lebhafte Atmosphäre im EG (Stichwort “Familienwohnraum”). In den Durchgang Richtung Terrasse/Esszimmer planen wir aktuell eine Erweiterung der Küche (110-120cm) als Küchenhalbinsel (Nutzbar als Arbeitsfläche, Buffet, Tresen, Kaffeetrinktheke)
Anzahl Essplätze
Im Alltag sind es 4, Für Weihnachten eher 15, für normale Gästeabende eher 8
Kamin
Überlegen wir derzeit noch, auch wo es ins Budget passt.
Musik/Stereowand
Nein
Balkon, Dachterrasse
Dachterrasse im DG ans Schlafzimmer anliegend (für laue Sommerabend bei nem guten Wein). Im EG ist ein Balkon/Terrasse geplant zur Erweiterung der Familien- und Gästefläche” und auch für die Möglichkeit im Sommer “draußen” zu essen.
Garage, Carport
Hier sind wir bestens versorgt durch die bereits bestehende Garage im KG sowie der 2020 neu angebauten Garage mit 2 Stellplätzen davor
Nutzgarten, Treibhaus
Nicht benötigt bzw. Teilweise schon auf dem Grundstück in den letzten 7 Jahren entstanden (kleinere Beete + Hühnerhaus mit Freigehege)
weitere Wünsche/Besonderheiten/Tagesablauf, gern auch Begründungen, warum dieses oder das nicht sein soll
Wir möchten das Haus so gestalten, dass wir als Familie die nächsten 20 Jahre unseren Bedürfnissen entsprechend wohnen können.
Zusätzlich haben wir uns überlegt, dass wir das Haus prinzipiell so gestalten wollen, dass es in zwei Wohneinheiten teilbar wäre (falls wir mal für längere Zeit ins Ausland gehen oder wir im Alter weniger Bedarf an Raum und die Möglichkeit der Vermietung hätten). Zugang zur zweiten Wohneinheit wäre dann über eine an der rechten Gebäudeseite liegende Außentreppe.
WE1 wäre dann das gesamte EG + Treppe ins OG sowie direkt angrenzendem Zimmer sowie Bad. Abgetrennt wird das ganze dann im Flur.
WE2 wäre dann die andere Hälfte des OG + das geasmte DG mit Dachterrasse.
Aus unserer Sicht wären beide WEs für sich funktionierend und ließen sich auch gut vermieten. WE1 würde für uns im Alter mehr als ausreichen.
Hausentwurf
Von wem stammt die Planung:
-Architekt, basierend auf unseren Wünschen und unter anderem aus Nachhaltigkeitsgründen in Holzständerbauweise geplant.
Was gefällt besonders? Warum?
Insgesamt die Menge an Fenstern/Glas in Richtung Wald. Die Lage war zum damaligen Zeitpunkt ein großer Pluspunkt für uns (Straßenendlage direkt an einen kleinen Wald angrenzend).
Auch das Dachgeschoss mit der Terrasse ist für uns reizvoll und gefällt uns gut. Das Büro im OG ist ebenfalls toll und könnte von uns beiden gemeinsam genutzt werden (ggf. Im Trockenbau eine Zwischenwand einziehen). Auch die Öffnung der Küche in Richtung Esszimmer und der zusätzliche Balkon sind toll.
Was gefällt nicht? Warum?
Der Zugang zur potentiellen zweiten Wohneinheit über die Außentreppe wäre Stand jetzt eher suboptimal aber aus unserer Sicht die beste Lösung um perspektivisch 2 WEs zu erhalten.
Preisschätzung lt Architekt/Planer:
Unser Architekt schätzt aktuell grob in der Dimension 250 bis 300 k€ (Komplette Übernahme durch Handwerker)
Persönliches Preislimit fürs Haus, inkl Ausstattung:
Das Haus gekauft haben wir damals für 280 k€, für den Anbau wollen wir uns zusätzlich mit höchstens 150 k€ verschulden. Wir haben aktuell ca. 50 k€ an Eigenmitteln gespart und schielen derzeit auf die Wiederaufnahme der 261/262er Programme der KfW (laut Energieexperte/Architekt eher eine Frage der Zeit) was uns nochmal 60 bzw. 120 k€ beim Ausbau zu zwei Wohneinheiten bringen würde.
favorisierte Heiztechnik:
Wir haben aktuell eine Ölheizung. Diese wollen und werden wir im Rahmen der Sanierung ersetzen. Hier sind wir noch nicht final mit dem Architekten/Energieexperten. Zusätzlich wollen wir auch noch Photovoltaik oder Solarthermie einbauen, je nach Sinnhaftigkeit/Budget. Vermutlich wird es aber auf Pellets hinauslaufen.
Ziel ist insgesamt die Sanierung zum Kfw 70 EE Haus.
Wenn Ihr verzichten müsst, auf welche Details/Ausbauten
-könnt Ihr verzichten: Was nötig ist.
-könnt Ihr nicht verzichten: Alles was uns viel Wohnraum für “wenig” Geld kostet.
Warum ist der Entwurf so geworden, wie er jetzt ist?
Der Entwurf basiert auf Ideen und Wünschen, die sich die letzten Jahre angesammelt, von uns laufend neu bewertet wurden und dann final in das Briefing für den Architekten eingeflossen sind. Das Haus abzureißen steht wegen Garage und Pool der Schwiegereltern nicht zur Debatte, da stehen wir zu unserem Wort.
Wir wollen aus verschiedenen Gründen gerne in Holzständerbauweise anbauen.
Was ist die wichtigste/grundlegende Frage zum Grundriss in 130 Zeichen zusammengefasst?
Verzetteln wir uns mit dem Haus und dem geplanten Anbau komplett oder ist es vor dem Hintergrund unserer Wünsche, Bedürfnisse und Budgets das “bestmögliche”?
Hier nun also die aktuellen Pläne des Architekten aus denen vieles ersichtlich ist. Der “überdimensionierte” Pfosten fängt die Last des Daches ab um die Ecke vor der Garage auskragen zu lassen (hier hat das Bauamt bzw. Die Wahnbachtalsperre signalisiert, dass ihnen lieb wäre, wenn der vom Vorbesitzer errichtete Pfosten unter der Terrasse verschwindet.
EG:
OG:
DG:
K
K a t j a06.02.22 17:47Wie man so schön sagt. Ich habe mir den ganzen langen Text und die hübschen Bildchen rein gezogen. Hängen geblieben ist vor allem das:
Budget = 150K max.
Kosten = 300K (eher min.)
Klar ist das cool. Aber nicht bezahlbar. Also Tonne und nicht weiter hinterherheulen.
Trotz des langen Textes ist mir nicht klar geworden, was genau denn momentan an Wohnraum fehlt? Ich sehe im Altbestand 2 Kinderzimmer, 1 Elternschlafzimmer, WZ, Küche, Bad und ein Keller. Soll das alles einfach nur größer sein?
Momentan hab ich den Eindruck von verträumten Größenwahn - was wirklich keine Beleidigung sein soll.
Budget = 150K max.
Kosten = 300K (eher min.)
Klar ist das cool. Aber nicht bezahlbar. Also Tonne und nicht weiter hinterherheulen.
Trotz des langen Textes ist mir nicht klar geworden, was genau denn momentan an Wohnraum fehlt? Ich sehe im Altbestand 2 Kinderzimmer, 1 Elternschlafzimmer, WZ, Küche, Bad und ein Keller. Soll das alles einfach nur größer sein?
Momentan hab ich den Eindruck von verträumten Größenwahn - was wirklich keine Beleidigung sein soll.
A
aw39_bonn06.02.22 18:41K a t j a schrieb:
Wie man so schön sagt. Ich habe mir den ganzen langen Text und die hübschen Bildchen rein gezogen. Hängen geblieben ist vor allem das:
Budget = 150K max.
Kosten = 300K (eher min.)
Klar ist das cool. Aber nicht bezahlbar. Also Tonne und nicht weiter hinterherheulen.
Trotz des langen Textes ist mir nicht klar geworden, was genau denn momentan an Wohnraum fehlt? Ich sehe im Altbestand 2 Kinderzimmer, 1 Elternschlafzimmer, WZ, Küche, Bad und ein Keller. Soll das alles einfach nur größer sein?
Momentan hab ich den Eindruck von verträumten Größenwahn - was wirklich keine Beleidigung sein soll.Ich fasse den langen Text oben mal fix zusammen um auch Missverständnissen vorzubeugen:
Das Haus ist von 1962, energetisch eine Katastrophe (es zieht und pfeifft an allen Ecken) und mit der Ölheizung auch eher suboptimal. Die Wohnfläche ist mit (Schrägen rausgerechnet) um die 85m2 relativ klein. Klar kann man darauf wohnen, aber "Platz haben" ist anders. Gut getrennte Büros oder ein "vernünftiges Bad" sind ebenfalls nicht vorhanden (1,80x2m ist dann eher klein und maximal durch eine Person gut nutzbar).
Der Anbau in finaler Größe würde insgesamt zu einer Wohnfläche von 160 m2 führen, bringt uns Büro, ein weiteres Bad und insgesamt mehr Raum für alle Beteiligten (Vergrößerung der Kinderzimmer, hinreichend großes Büro, Platz für einen vernünftigen Esstisch um mal mehr als mit 4 Leuten sitzen zu können, weitere Etage mit großem Schlafzimmer). Klar kann ich das alles auf 85m2 quetschen aber mit Möbeln ist das alles nicht sonderlich schön in den Wegen und auch im Platzangebot pro Kopf wirklich mau.
Was das Budget betrifft: 150 k€ Nettoneuverschuldung + 50 k€ Eigenmitteln (es ist praktisch gesehen noch mehr vorhanden aber angelegt und mit 5-6% Rendite besser platziert als ein Kredit der mich eventuell 2% kostet) + Tilgungszuschuss in Höhe von 60 k € machen nach meiner Rechnung 260 k€ (320 k€ falls man daraus 2 WEs macht). Hinzu kommen 3 Monate EL-Leistung von mir (Überstundenabbau + bereits laufende Ansparung von Sabbaticalmonaten). Die 150 k€ Nettoneuverschuldung sind ein von uns gesetzter Wert, den wir nicht sklavisch halten müssen, eventuell sind wir mit dem Kaufpreis von damals 280 k€ aber auch zu niedrig geankert.
Sorry, dass das aus dem Text in der Deutlichkeit bzw. teilweise gar nicht hervorgeht.
M
Myrna_Loy06.02.22 18:50Ich hab mich beim Scrollen richtiggehend erschrocken, als ich plötzlich die Bilder sah. Sorry, aber das ist gigantisch hässlich und nicht das, was ich erwartet habe, als ich gelesen habe, dass ihr eine Mischung aus dem alten Häuschen mit was Neuem bauen wollt.
Sorry, subjektiv, aber ich hatte noch nie, dass ich hier bei einem Forumsbeitrag „Oh wie scheußlich““ laut gesagt habe. 😱
Sorry, subjektiv, aber ich hatte noch nie, dass ich hier bei einem Forumsbeitrag „Oh wie scheußlich““ laut gesagt habe. 😱
K
K a t j a06.02.22 18:54aw39_bonn schrieb:
Sorry, dass das aus dem Text in der Deutlichkeit bzw. teilweise gar nicht hervorgeht 😉Das hatte ich wohl fehlinterpretiert. Von daher sorry, meinerseits.
Zum Entwurf: Find ich super. Die Dachterrasse würde ich vermutlich weglassen bzw. wesentlich kleiner machen. Auch um die Fenster darunter nicht so sehr zu verschatten. Ansonsten fürchte ich dennoch, dass das Budget nicht reicht. Aber wenn da Flexibilität da ist, baut los. Das Leben ist kurz. 🙂
Myrna_Loy schrieb:
„Oh wie scheußlich“So unterschiedlich sind die Geschmäcker.M
Myrna_Loy06.02.22 18:58Komplett subjektiv. Ich weiß.
Aber:?Naja, vorne bescheidenes Siedlungshäuschen, hinten protziges Chalet. Das passt für mich überhaupt nicht zusammen. Die Seitenansicht sieht entsprechend aus wie eine indoor Skihalle.
Ich vermute auch, dass ein Abriss und Neubau billiger ist, als den Erweiterungsbau sauber an den Altbau anzubinden.
Aber:?Naja, vorne bescheidenes Siedlungshäuschen, hinten protziges Chalet. Das passt für mich überhaupt nicht zusammen. Die Seitenansicht sieht entsprechend aus wie eine indoor Skihalle.
Ich vermute auch, dass ein Abriss und Neubau billiger ist, als den Erweiterungsbau sauber an den Altbau anzubinden.
Ähnliche Themen