ᐅ Haus passend zum Grundstück? Größe vom Grundstück ausreichend?
Erstellt am: 15.06.19 17:38
M
Mecky815Moin Moin zusammen,
Ich bin schon lange stiller und interessierter Leser dieses Forums und begeistert von der Hilfsbereitschaft.
Wir planen ein Friesenhaus zu bauen (9,7m x 11,7m). Nun haben wir auch endlich ein Grundstück gefunden, welches passen könnte. Allerdings sind wir uns nicht sicher, ob das Haus nicht zu groß für das Grundstück ist.
Bebauungsplan/Einschränkungen



Größe des Grundstücks - 530m2
Hang - nein
Grundflächenzahl- 0,3
Geschossflächenzahl
Baufenster, Baulinie und -grenze - 5m Abstand zur Grenze
Anzahl Stellplatz - 1 Carport und 1 separater Stellplatz
Geschossigkeit - 2 geschossig
Dachform - Satteldach
Stilrichtung - Nordisch friesenstil
Ausrichtung - Süd/West
Maximale Höhen/Begrenzungen - Max Firsthöhe 10m
weitere Vorgaben - Energieträger nur Fernwärme, Regenwasser muss auf dem Grundstück versickern
Hausentwurf


Von wem stammt die Planung:
-Den Grundriss haben wir so selber geplant, er ist aber vom Bauunternehmer „abgenommen“ und Barbar.
Was gefällt besonders? Warum? Wir möchten unbedingt eine Galerie bauen und dort eine gemütliche Ecke zum lesen einrichten
Was gefällt nicht? Warum? Eine Stadtvilla sagt uns nicht zu. Wir möchten gern schrägen haben.
Preisschätzung lt Architekt/Planer: 250000€
Persönliches Preislimit fürs Haus, inkl Ausstattung: 270000€
favorisierte Heiztechnik: im Baugebiet nur Fernwärme möglich, sonst wäre es Gas geworden.
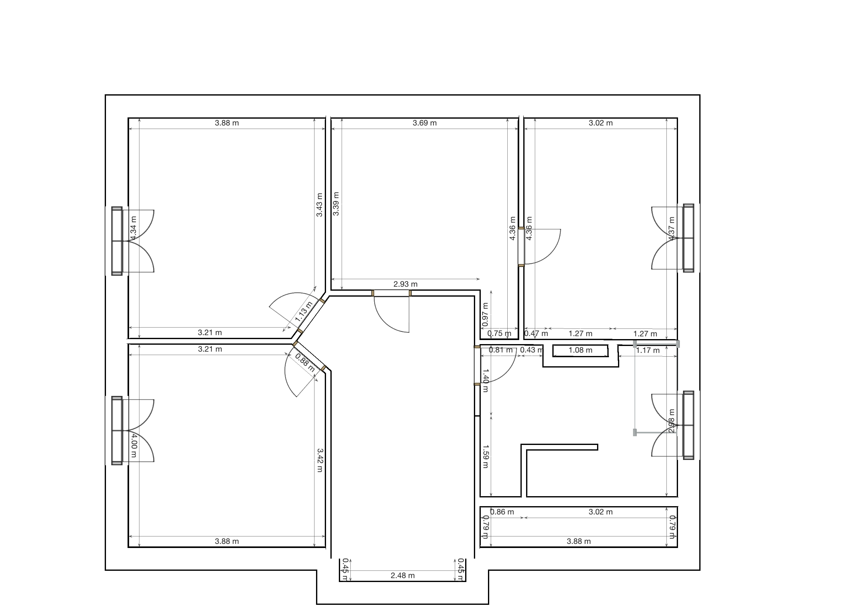
Was haltet ihr von dem Grundriss? Gibt es da Verbesserungsvorschläge?
Passt es so wie das Haus auf dem Grundstück platziert ist? Oder gibt es da noch Potential?
Der kleine Kasten neben dem Haus soll das Carport sein. Leider ist das ursprüngliche Doppelcarport hier nicht möglich...
Vielen Dank für eure Hilfe

Ich bin schon lange stiller und interessierter Leser dieses Forums und begeistert von der Hilfsbereitschaft.
Wir planen ein Friesenhaus zu bauen (9,7m x 11,7m). Nun haben wir auch endlich ein Grundstück gefunden, welches passen könnte. Allerdings sind wir uns nicht sicher, ob das Haus nicht zu groß für das Grundstück ist.
Bebauungsplan/Einschränkungen
Größe des Grundstücks - 530m2
Hang - nein
Grundflächenzahl- 0,3
Geschossflächenzahl
Baufenster, Baulinie und -grenze - 5m Abstand zur Grenze
Anzahl Stellplatz - 1 Carport und 1 separater Stellplatz
Geschossigkeit - 2 geschossig
Dachform - Satteldach
Stilrichtung - Nordisch friesenstil
Ausrichtung - Süd/West
Maximale Höhen/Begrenzungen - Max Firsthöhe 10m
weitere Vorgaben - Energieträger nur Fernwärme, Regenwasser muss auf dem Grundstück versickern
Hausentwurf
Von wem stammt die Planung:
-Den Grundriss haben wir so selber geplant, er ist aber vom Bauunternehmer „abgenommen“ und Barbar.
Was gefällt besonders? Warum? Wir möchten unbedingt eine Galerie bauen und dort eine gemütliche Ecke zum lesen einrichten
Was gefällt nicht? Warum? Eine Stadtvilla sagt uns nicht zu. Wir möchten gern schrägen haben.
Preisschätzung lt Architekt/Planer: 250000€
Persönliches Preislimit fürs Haus, inkl Ausstattung: 270000€
favorisierte Heiztechnik: im Baugebiet nur Fernwärme möglich, sonst wäre es Gas geworden.
Was haltet ihr von dem Grundriss? Gibt es da Verbesserungsvorschläge?
Passt es so wie das Haus auf dem Grundstück platziert ist? Oder gibt es da noch Potential?
Der kleine Kasten neben dem Haus soll das Carport sein. Leider ist das ursprüngliche Doppelcarport hier nicht möglich...
Vielen Dank für eure Hilfe
Vielen Dank für die schnelle Antwort.
1. Es liegt bereits ein konkretes Angebot für das Haus vor. „Schlüsselfertig „ bekommen wir es für 254000€
2. wir haben im Haus folgende Sachen geplant:
- Zentrale Lüftungsanlage von Vallox
- Photovoltaik mit 5 Kwp
- elektrische Rollläden im UG und OG
- 4 Dachflächenfenster
- Bodengleich Dusche
- Dusche UG und OG
- SAT und Netzwerk Verkabelung
3. wir haben uns über die Kosten und Bau Nebenkosten informiert. Und eine Finanzierung haben wir auch schon angefragt. Der Finanzierer hatte soweit auch keine Bedenken.
1. Es liegt bereits ein konkretes Angebot für das Haus vor. „Schlüsselfertig „ bekommen wir es für 254000€
2. wir haben im Haus folgende Sachen geplant:
- Zentrale Lüftungsanlage von Vallox
- Photovoltaik mit 5 Kwp
- elektrische Rollläden im UG und OG
- 4 Dachflächenfenster
- Bodengleich Dusche
- Dusche UG und OG
- SAT und Netzwerk Verkabelung
3. wir haben uns über die Kosten und Bau Nebenkosten informiert. Und eine Finanzierung haben wir auch schon angefragt. Der Finanzierer hatte soweit auch keine Bedenken.
Da fehlt trotzdem noch einiges. Beispielsweise bei der Elektro Leuchtenauslässe/Spots, Steckdosen, anderes Schalterprogramm oder Rollladenschalter an der Tür.
Treppe wird Standard Buche sein.
Fliesenformen und Verlegeart kosten auch etwas.
Fenster. Sicherheitspakete? Andere Griffe?
Sanitärobjekte
Wenn man sich zusammen reißt dann kann man da halt viel Geld sparen. Aber das sind Dinge, die später schnell eine hübsche Summe ausmachen.
Dann kommen natürlich noch die anderen Dinge, wo eure Hausbaufirma nichts mit am Hut hat.
Küche, Boden, Malen, Außenanlagen, Innenausstattung.
Ich halte den Preis dennoch für sehr sportlich.
Edit: Wenn ihr das Haus noch weiter nach rechts setzt, sodass ihr da immer an der 3m Linie seid, dann gewinnt ihr links Platz. Da das Grundstück leicht schräg verläuft wäre eventuell Platz für das Doppelcarport. Der Grundriss müsste dann halt entsprechend angepasst werden.
Treppe wird Standard Buche sein.
Fliesenformen und Verlegeart kosten auch etwas.
Fenster. Sicherheitspakete? Andere Griffe?
Sanitärobjekte
Wenn man sich zusammen reißt dann kann man da halt viel Geld sparen. Aber das sind Dinge, die später schnell eine hübsche Summe ausmachen.
Dann kommen natürlich noch die anderen Dinge, wo eure Hausbaufirma nichts mit am Hut hat.
Küche, Boden, Malen, Außenanlagen, Innenausstattung.
Ich halte den Preis dennoch für sehr sportlich.
Edit: Wenn ihr das Haus noch weiter nach rechts setzt, sodass ihr da immer an der 3m Linie seid, dann gewinnt ihr links Platz. Da das Grundstück leicht schräg verläuft wäre eventuell Platz für das Doppelcarport. Der Grundriss müsste dann halt entsprechend angepasst werden.
Mit Nichtmal 20000 für Baunebenkosten, alle bauseits Kosten, Bodenbeläge und Malerarbeiten, Außenanlage wird es eng. Mit dem Grundpreis ist auch nur schlichte und Mindestausstattung dabei.
Das Haus paßt auf das Grundstück. Ob euch das stört nur Einzelcarport statt Doppelcarport müsst ihr entscheiden
Zum Grundriss kann man nicht viel sagen. Bitte füllt den Fragebogen aus und bezeichnet die Räume.
Die 2 Meter Linie im OG fehlt
Zeichnet in allen Räumen im Maßstab die vorhanden und gewünschten Möbel ein
Das Haus paßt auf das Grundstück. Ob euch das stört nur Einzelcarport statt Doppelcarport müsst ihr entscheiden
Zum Grundriss kann man nicht viel sagen. Bitte füllt den Fragebogen aus und bezeichnet die Räume.
Die 2 Meter Linie im OG fehlt
Zeichnet in allen Räumen im Maßstab die vorhanden und gewünschten Möbel ein
Ok vielleicht habe ich mich nicht klar ausgedrückt, das Haus ist insgesamt mit Bodenbelägen und allem mit 300000€ geplant. Garten, Außenanlagen, Carport und Terrasse mit 24000€. Die Baunebenkosten mit 20000€ und zusätzlich noch mal 10000€ für eventuelle Erdarbeiten.
Die Grundrisse werde ich Morgen noch mal bearbeiten. Hoffentlich werden die dann aussagekräftiger.
Die Grundrisse werde ich Morgen noch mal bearbeiten. Hoffentlich werden die dann aussagekräftiger.
Ähnliche Themen