Haus-Form bei komplizierter Lage mit Hanglage

4,50 Stern(e) 4 Votes
Zuletzt aktualisiert 24.11.2025
Sie befinden sich auf der Seite 2 der Diskussion zum Thema: Haus-Form bei komplizierter Lage mit Hanglage
>> Zum 1. Beitrag <<

J

j.bautsch

bei meinen Schwiegereltern tatsächlich kommt ?ein mal im Jahr? eine Firma. wie teuer sowas ist, keine Ahnung
 
B

Bauexperte

Guten Tag @Bremediana

ich denke, Du solltest Dich ganz schnell von einer fixen Vorstellung Bungalow, zur Bebauung Deines Grundstückes verabschieden. Das wirst Du nicht praktikabel umsetzen können; auch nicht der kreativste Architekt. Ganz davon ab, daß ein Bungalow in dieser vorhandenen Bebauung einfach untergehen _muß_. Ich sehe eher eine Variante eines Langhauses _mit_ Keller auf Deinem Grundstück; allerdings wirst Du Dein Budget dann aufstocken müssen - was Du imho eh müsstest, ein Bungalow ist nicht preiswert zu haben.

Wieso Keller: Du hast ein Hanggrundstück gekauft; Erde anzuschütten wird mit ziemlicher Sicherheit fast ebenso teuer werden, wie einen Keller zu bauen und ich weiß noch nichts über vorhandene Bodenverhältnisse.

Wieso Langhaus: das Grundstück läßt es zu und es läßt sich allemal besser planen, als einen Entwurf, der zwangsweise und mit der Einschränkung Licht irgendwie "gefrickelt" wird.

Ich bin mir auch ziemlich sicher, daß der Nachbar zur Rechten (vor dem Grundstück stehend) ganz sicher seine Fenster nicht schwarz eingebaut hat. Ein 3-FH erfordert meist einen regulären Bauantrag und dessen Umsetzung wird durch das Bauamt akribisch überwacht.

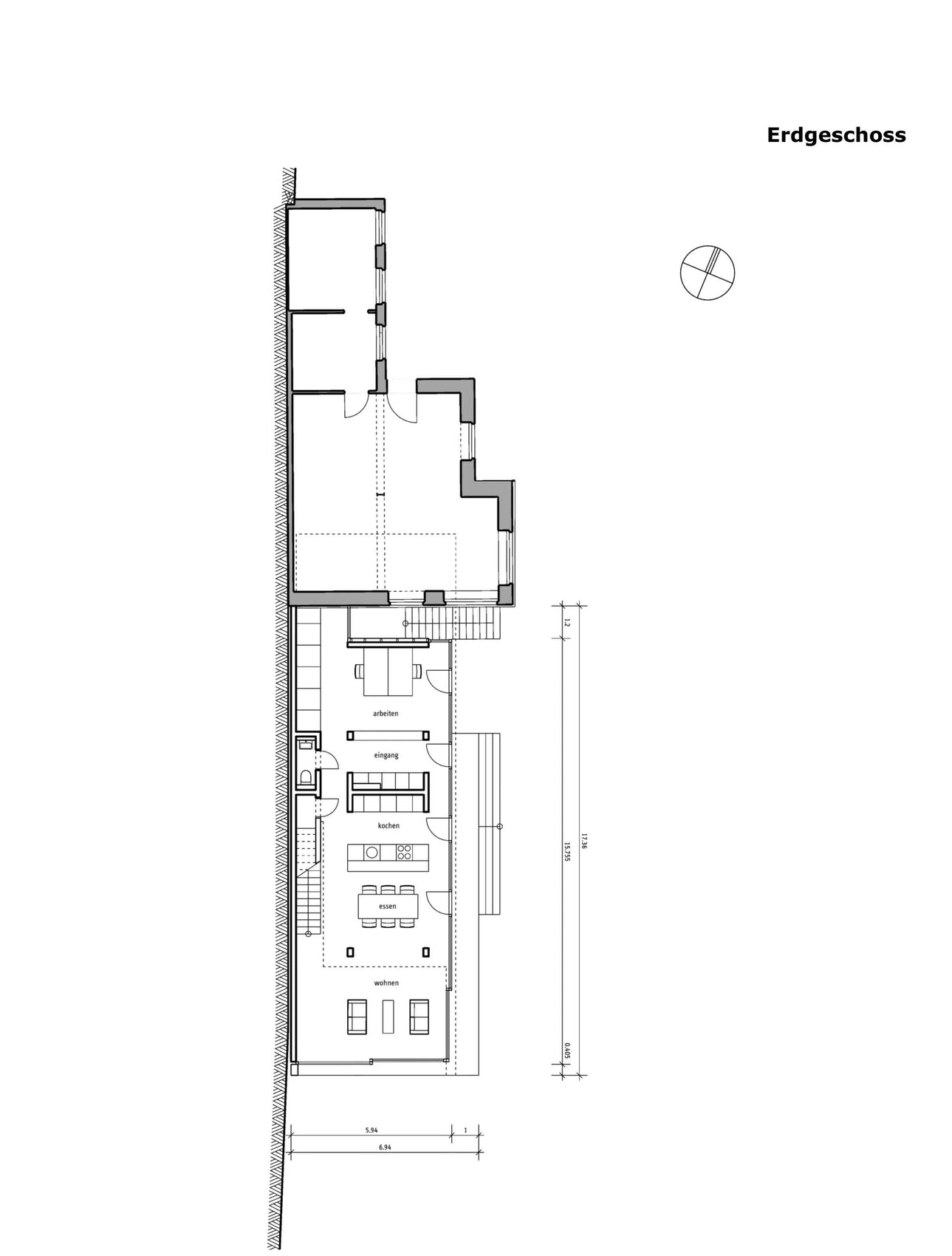
Vorschlag: denke über ein Langhaus nach; Barrierefreiheit läßt sich auch mit vernünftig breiter Treppe herstellen. Wohnraum (mit Blick in den Garten - weshalb solltest Du dieses Highlight brach liegen lassen?), Küche und HAR im Untergeschoss; Schlafräume und Bad im EG. Wir haben mal etwas ähnliches für eine selbstständige Kosmetikerin geplant; dummerweise finde ich die Entwürfe gerade nicht. Dafür zumindest etwas in meinem Fundus, daß ich Dir verdeutlichen kann, was ich meine.

Den Lückenanschluß hinten bitte wegdenken; ebenso die hintere Treppe. Stell Dir dann den Grundriss gedreht vor - arbeiten ist vorne (würde ich als HAR/Hauswirtschaftsraum anlegen) und Lebensräume hinten. Die auf 6.94 m begrenzte Breite erlaubt Dir sogar einen Lichthof vor Gäste-WC und Küche, nach hinten eh kein Problem. Dann ebenerdig Schlafräume, Bad und davon separierter Zugang über die Treppe nach unten. Ein guter Architekt - davon gibt es sicherlich auch in Bremen reichlich, wird Dir noch ganz andere Möglichkeiten aufzeigen. Dein Grundstück ist nicht einfach, aber ganz sicher eine Herausforderung es so zu planen, daß es nicht zwischen II- und III-Geschosser "verloren geht".

Grüße, Bauexperte

Grundriss Erdgeschoss: offener Wohn-/Essbereich, Kochen, Arbeiten, Eingang.
 
D

DG

Das mit den Fenstern beim Nachbarn sehe ich ganz ähnlich - die sind nicht rein zufällig im zurückgesetzten Gebäudeteil. Die Wahrscheinlichkeit eines Schwarzbaus ist hier äußerst gering.

Kann man natürlich mal abklopfen, einfach beim Bauamt melden. Das berechtigte Interesse zur Einsicht in die Bauakten der beiden Nachbarn ist durch den Grundstückserwerb gegeben. Kann man sich andererseits aber auch sparen, weil hier sowieso ein Architekt gebraucht wird, der den eigenen Bauantrag stellt und dabei natürlich auch die Nachbarbebauung grob abchecken sollte bzw. darauf aufbauend den Neubau plant.

MfG
Dirk Grafe
 
Bremediana

Bremediana

@Bauexperte @ypg und @Dirk Grafe Danke für die Rückmeldungen!
Kann alles nachvollziehen: Bungalow geht unter zwischen den anderen Häusern, die Nachbarfenster will ich sowieso respektieren, und auf den Keller zu verzichten, finde ich eigentlich auch schade.
Vielleicht tut es ja eine halbe Unterkellerung...

Ebenso schade ist es, auf ein OG und den schönen Weserblick zu verzichten. Aber man kann eben nicht alles haben...

Langhaus ist ne nette Idee. Mitte November werde ich eine Architektin treffen und ihr das vorschlagen.

Budgetmäßig muss ich wohl in den sauren Apfel beißen - ist irgendwie unbefriedigend: man zahlt ein Wahnsinns Geld, verschuldet sich bis über den Tod hinaus und hat dann immer noch nicht alles, was man sich wünschen würde... (Deshalb wollte ich zunächst auch nur sanieren, trotz der schiefen Fußböden).
 
D

DG

Budgetmäßig muss ich wohl in den sauren Apfel beißen - ist irgendwie unbefriedigend: man zahlt ein Wahnsinns Geld, verschuldet sich bis über den Tod hinaus und hat dann immer noch nicht alles, was man sich wünschen würde... (Deshalb wollte ich zunächst auch nur sanieren, trotz der schiefen Fußböden).
Hallo Diana,

ohne Dir zu nahe treten zu wollen, aber Du hast einen Liebhaberkauf getätigt, wenn ich Deinen ET korrekt in Erinnerung habe. Über "Wahnsinnsgeld" zu diskutieren ist an der Stelle (fast) sinnlos, es sei denn, Du würdest Dich mit dem Bau tatsächlich überschulden. Das wirst Du allerdings nur in Zusammenarbeit mit Deiner Bank und einem Architekten herausfinden können. Da das Kind aber schon in den Brunnen gefallen ist, würde ich das ganz locker angehen, denn es gibt zwei Ausstiegsszenarien:

1. Das Grundstück incl. Haus so wie es ist erneut zum Kauf anbieten. Die Immo-Preise sind derzeit so gut, dass man das durchaus in Erwägung ziehen kann, mit ein wenig Glück kommst Du +/- Null aus der Sache raus.

2. Haus abreißen und das freie Grundstück zum Verkauf anbieten. Das aber vor dem Abriss mit Deinem Architekten durchdiskutieren. Vermutlich wirst Du dann viel Zeit benötigen, um auf Deinen Gesamt-Preis zu kommen, aber beide Varianten haben einen Vorteil:

Du bist am Ende nicht ruiniert.

MfG
Dirk Grafe
 
Zuletzt aktualisiert 24.11.2025
Im Forum Bauplanung gibt es 5072 Themen mit insgesamt 100818 Beiträgen


Ähnliche Themen zu Haus-Form bei komplizierter Lage mit Hanglage
Nr.ErgebnisBeiträge
1Grundstück reserviert, Baufinanzierung Plan, Architekt/Bauantrag 21
2Altbau auf Grundstück - Bungalow Anbau - Diverse Probleme 10
3200m2 Einfamilienhaus für 4-5 Personen ohne Keller auf schmalem Grundstück 67
4Grundrissoptimierung Einfamilienhaus mit Keller auf kleinem Grundstück - Seite 5178
5Bungalow - macht das auf einem solchen Grundstück Sinn? 21
6Probleme Bauamt - Mangelhaftes Grundstück gekauft 56
7Einfamilienhaus 220qm mit Keller auf 700qm Grundstück 41
8Grundriss Bungalow 160-170qm mit Keller 175
9Grundriss-Entwurf: Einfamilienhaus; mit Keller; 800qm Grundstück 10
10Grundstück Aktionshäuser Erfahrungen? - Seite 434
11Bungalow an Brandwand 32
12Entwurf Grundriss Bungalow - Eure Meinungen bitte! 14
13Wert Grundstück und Bungalow B55 11
14Kostenplanung Einfamilienhaus inkl. Grundstück, Nebenkosten, Architekten 32
15Budget Grundstück und bauen mit Keller 21
16Hilfe benötigt - Realteilung eines schmalen Grundstücks - Seite 347
17130 m² Bungalow mit Doppelcarport bei 600m² Grundstück? 64
18Bauantrag stellen bevor das Grundstück bezahlt ist? 11
19Keller oder Grundstück begradigen? 43
20Einfamilienhaus bauen mit/ohne Keller bei kleinem Grundstück - Seite 765

Oben