Haus am Hang - ca. 200qm Wohnfläche

4,80 Stern(e) 4 Votes
Zuletzt aktualisiert 23.11.2025
Sie befinden sich auf der Seite 7 der Diskussion zum Thema: Haus am Hang - ca. 200qm Wohnfläche
>> Zum 1. Beitrag <<

S

SupaCriz

Hui, ihr holt Angebote für den Rohbau ein, habt sogar schon eine Finanzierung stehen aber im Endeffekt noch keinen Grundriss? Das finde ich jetzt doch etwa gewagt.
Wir haben sogar schon eine Baugenehmigung - allerdings für den alten Grundriss mit dem Wohnzimmer im EG.

Wir sind wie oben beschrieben aber noch mal ins Nachdenken gekommen, ob wir es wirklich so realisieren wollen.

Da im oben gelisteten Grundriss aber die Außenmauern unverändert sind, Wohnfläche auch nicht mehr wird und ansonsten auf den ersten Blick auch keine Kostentreiber dazu kommen, müssten die Kosten im selben Rahmen bleiben.

@Maria: Wir würden uns freuen, wenn du was zum neuen Grundriss schreibst. Du hattest davor ja auch schon ein paar gute Tipps und eine klare Meinung
 
S

SupaCriz

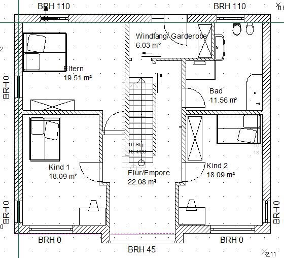
Für‘s EG (Schlafbereich) haben wir jetzt noch mal zwei unterschiedliche Varianten entwickelt, die etwas mehr Privatsphäre ermöglichen - alle Türen gehen hier nach dem Abgang der Treppe in den Wohnbereich unten ab.

Uns würde interessieren, welchen der beiden Grundrisse ihr besser findet bzw. was ihr ändern würdet. (Planunten befindet sich der Garten in Südostausrichtung)
Grundriss eines Hauses: Elternzimmer, zwei Kinderzimmer, Flur/Empore, Bad, Windfang mit Garderobe.


Grundriss Erdgeschoss: Eingangsbereich, Treppe, Flur, Elternzimmer, Bad, Kind 1, Kind 2.
 
Y

ypg

Zu den Gesamtexemplaren sag ich mal nichts,
Aber fällt Dir nicht selbst auf, dass Du Deine Gästezimmer mit Deiner angedachten Möblierung kaum benutzen kannst (Zimmerbreite von < 270), Du überall viele Ecken einbaust, die Positionierung der meisten Schränke ein Nadelöhr fabrizieren, aber auch in Fluren , Deine Sofas gerade mal größere Sessel darstellen. Woanders hast Du wiederum Platz zum Tanzen, wo er aber gar nicht gebraucht wird.
Es ist alles Willkür, oder?
Ich bin froh, dass Du jetzt mal von einem Architekten sprichst. Zeig ihm bitte nicht Deine Zeichnungen, sondern nur ein verschriftetes Raumprogramm, sodass er nicht vorbelastet ist.

Wer hat denn bei Euch die Kostenplanung und den Bauantrag erstellt?
 
Zuletzt aktualisiert 23.11.2025
Im Forum Grundrissplanung / Grundstücksplanung gibt es 2535 Themen mit insgesamt 87992 Beiträgen


Ähnliche Themen zu Haus am Hang - ca. 200qm Wohnfläche
Nr.ErgebnisBeiträge
1Grundriss - Haus mit Einliegerwohnung 23
2Wie findet ihr diesen Grundriss? - Seite 211
3Bitte um ehrliche Meinung zu unserem Grundriss!! 29
4Grobe Kostenrechnung anhand Grundriss 13
5Grundriss die IV! :-) 18
6Meinungen zum Grundriss EG 10
7Grundriss über 200qm - Was haltet die Experten davon? 13
8Einfamilienhaus, geschätzte Kosten und Anregungen Grundriss - Seite 649
9Eure Meinung zum Grundriss für das EG - Seite 528
10Meinung zum Grundriss eines geplanten Bauhauses 23
11Was sagt ihr zu unserem Grundriss? 15
12Grundriss Einfamilienhaus. Eure Anregungen sind gefragt. - Seite 317
13Grundriss, Wohnbereich zu eng, Ideen / Vorschläge 17
14Hilfe beim Grundriss des Hauses, Verbesserungsvorschläge? 28
15Grundriss, Ideen zur räumlichen Trennung innerhalb der Küche - Seite 223
16Stadtvilla -> Eure Meinung zum Grundriss, Vorschläge - Seite 321
17Grundriss erster Entwurf - Meinungen erwünscht 21
18Grundriss Bungalow, sucht wertvolle Tipps / Bemerkungen 24
19Unser Grundriss von 120qm auf 469qm Grundstück - Seite 1073
20Grundriss Einfamilienhaus mit Doppelgarage und Terrasse - Seite 219

Oben