A
Anson Argyris02.10.20 12:22Hallo Hausbau-Forum,
Wir stehen mehr oder weniger kurz vor dem finalen Startschuß und endlich hat der Vermesser die Daten an unsere Architektin weitergeleitet.
Nun habe wir ein Problem mit der Bezugshöhe unser Baufenster beginnt 7m von der Grundstücksgrenze und die Unterkante von unserer Garage liegt nach den Angaben der Architektin in ca. 4m Höhe, somit ist es unmöglich eine Vernünftige Zufahrt direkt in die Garage zumachen, Steigung ca. 50%.
Habt ihr evtl. Vorschläge wie man das ganze in einem sinnvollen Rahmen halten kann, ohne gleich Serpentinen zur Garageneinfahrt zu machen?
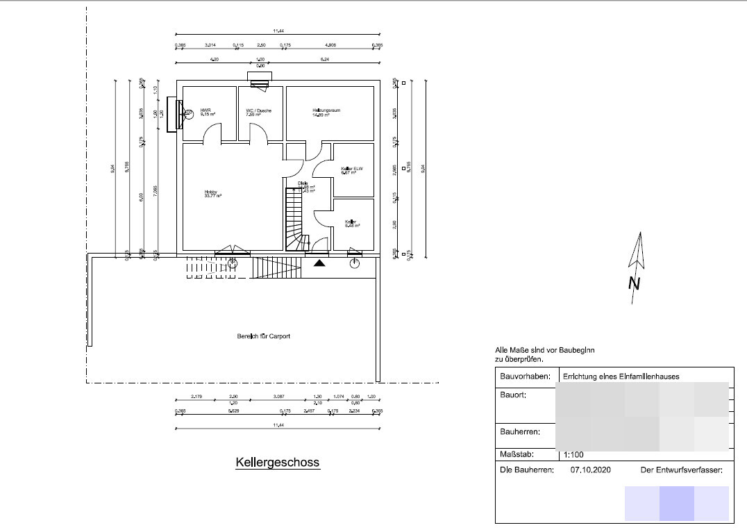
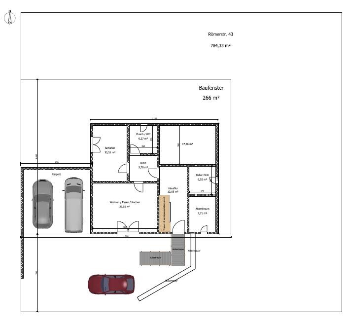
Ich habe mal die Bilder der Architektin mit angehängt.
Vielen Dank und Grüße, Anson




Wir stehen mehr oder weniger kurz vor dem finalen Startschuß und endlich hat der Vermesser die Daten an unsere Architektin weitergeleitet.
Nun habe wir ein Problem mit der Bezugshöhe unser Baufenster beginnt 7m von der Grundstücksgrenze und die Unterkante von unserer Garage liegt nach den Angaben der Architektin in ca. 4m Höhe, somit ist es unmöglich eine Vernünftige Zufahrt direkt in die Garage zumachen, Steigung ca. 50%.
Habt ihr evtl. Vorschläge wie man das ganze in einem sinnvollen Rahmen halten kann, ohne gleich Serpentinen zur Garageneinfahrt zu machen?
Ich habe mal die Bilder der Architektin mit angehängt.
Vielen Dank und Grüße, Anson
Spontan fallen mir nur zwei Lösungen ein: eine Befreiung für eine Garage außerhalb des Baufensters oder die Garage anderthalb Meter tiefer legen, dann hätte sie etwa vier Meter Raumhöhe und der Keller müßte umgeplant werden. Oder sich ein Attest vom Bauamt in den SUV legen, daß man den leider braucht
https://www.instagram.com/11antgmxde/
https://www.linkedin.com/company/bauen-jetzt/
https://www.instagram.com/11antgmxde/
https://www.linkedin.com/company/bauen-jetzt/
N
Nice-Nofret02.10.20 14:43Was war den die Idee des Architekten? Ich meine es ist ja nett ein Haus mit innenliegender Garage auf erhöhtem Gelände zu planen, sich dann aber erst nachträglich Gedanken über die Zufahrt zu machen?
Abgesehen davon könntet ihr natürlich auch einen Autolift vor die Garage setzen.
Abgesehen davon könntet ihr natürlich auch einen Autolift vor die Garage setzen.
Nice-Nofret schrieb:
Abgesehen davon könntet ihr natürlich auch einen Autolift vor die Garage setzen.Wegen der auch von oben gesehen nicht geraden Zufahrt würde der aber leicht teurer als beide Autos https://www.instagram.com/11antgmxde/
https://www.linkedin.com/company/bauen-jetzt/
N
Nice-Nofret02.10.20 14:58Ähnliche Themen