ᐅ Grundstückserschliessung abgelehnt
Erstellt am: 05.07.21 21:06
C
Chrissi128805.07.21 21:06Hallo zusammen,
ich bräuchte mal euren Rat.
Ich habe Oktober 2017 einen Antrag zur Grundstückserschliessung bei der Gemeinde gestellt. Hierbei handelt es sich um ein nicht erschlossenens Grundstück welches ich von meiner Oma bekommen habe. Der Antrag lief nun über 3Jahre und wurde im letzten Gemeinderat mysteriöser Weise abgelehnt.Bei der Ratsabstimmung lag es lediglich an einer! Stimme zu viel die dagegensprach.
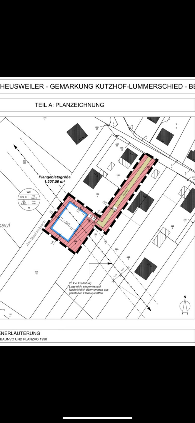
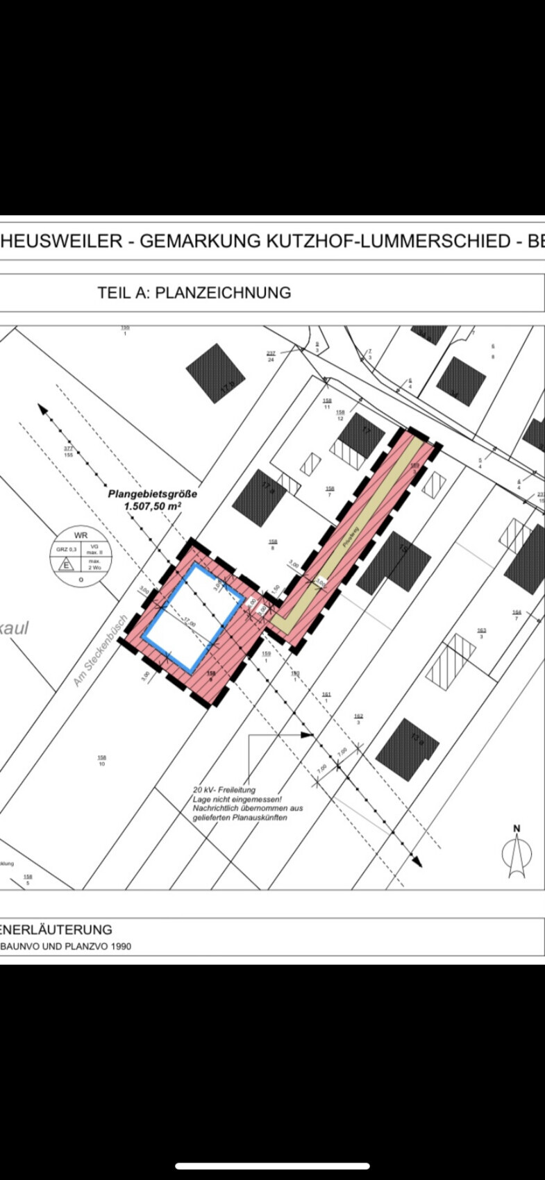
Wie man auf dem Lageplan sehen kann wurde in der gleichen Flucht unter uns bereits gebaut. Auch haben wir bereits das schmale Grundstück (bereits erschlossen) dazugekauft damit die private Erschliessung mit Wasser,Strom etc. gegeben ist.
Das kuriose daran ist,eine schriftliche Ablehnung oder gar eine Rechnung der Gemeinde für die immerhin 3 Jahre Arbeit haben wir nie bekommen.
Nun habe ich auch von mehreren gehört man könne auch den Gemeinderat umgehen und sich direkt an das untere Bauamt in Saarbrücken wenden? Sieht hier noch irgendjemand eine Chance oder habe ich einfach Pech nur weil irgendjemandem im Gemeinderat gerade nicht danach war dem Plan zuzustimmen? Falls ich wichtige Informationen vergessen habe ergänze ich diese gerne.
LG

ich bräuchte mal euren Rat.
Ich habe Oktober 2017 einen Antrag zur Grundstückserschliessung bei der Gemeinde gestellt. Hierbei handelt es sich um ein nicht erschlossenens Grundstück welches ich von meiner Oma bekommen habe. Der Antrag lief nun über 3Jahre und wurde im letzten Gemeinderat mysteriöser Weise abgelehnt.Bei der Ratsabstimmung lag es lediglich an einer! Stimme zu viel die dagegensprach.
Wie man auf dem Lageplan sehen kann wurde in der gleichen Flucht unter uns bereits gebaut. Auch haben wir bereits das schmale Grundstück (bereits erschlossen) dazugekauft damit die private Erschliessung mit Wasser,Strom etc. gegeben ist.
Das kuriose daran ist,eine schriftliche Ablehnung oder gar eine Rechnung der Gemeinde für die immerhin 3 Jahre Arbeit haben wir nie bekommen.
Nun habe ich auch von mehreren gehört man könne auch den Gemeinderat umgehen und sich direkt an das untere Bauamt in Saarbrücken wenden? Sieht hier noch irgendjemand eine Chance oder habe ich einfach Pech nur weil irgendjemandem im Gemeinderat gerade nicht danach war dem Plan zuzustimmen? Falls ich wichtige Informationen vergessen habe ergänze ich diese gerne.
LG
Du musst doch eine Begründung bekommen haben
Chrissi1288 schrieb:Ich sehe da unterhalb von Euch nichts.
Wie man auf dem Lageplan sehen kann wurde in der gleichen Flucht unter uns bereits gebaut.
N'abend,
also eine schriftliche Begründung müssten die dir schon noch liefern. Aber abgesehen davon, da ist eine 20 kV Freileitung direkt über dem Baufenster eingezeichnet? Das kann doch gar nicht gehen. Unabhängig davon, ob du unter so einer Leitung leben willst: Die 20 kV Masten sind relativ klein, nur so 10-14 Meter hoch. Da passt kein Haus drunter!
Wenn das also kein Fehler in dem Plan ist, kann ich die Ablehnung gut verstehen. Dafür hätte man aber auch keine 3 Jahre gebraucht, da hätten 3 Minuten gereicht.
Viele Grüße,
Andreas
also eine schriftliche Begründung müssten die dir schon noch liefern. Aber abgesehen davon, da ist eine 20 kV Freileitung direkt über dem Baufenster eingezeichnet? Das kann doch gar nicht gehen. Unabhängig davon, ob du unter so einer Leitung leben willst: Die 20 kV Masten sind relativ klein, nur so 10-14 Meter hoch. Da passt kein Haus drunter!
Wenn das also kein Fehler in dem Plan ist, kann ich die Ablehnung gut verstehen. Dafür hätte man aber auch keine 3 Jahre gebraucht, da hätten 3 Minuten gereicht.
Viele Grüße,
Andreas
M
majuhenema05.07.21 23:05Wie andimann bereits geschrieben hat, ist die 20 kV ein ganz schönes Problem.
Vielleicht liegt das auch Grundstück innerhalb der Flucht, aber außerhalb der Ortsabrundungssatzung. Das ist sehr viel im Trüben fischen. Wie intensiv wart ihr mit dem/r Bürgermeister/in im Gespräch? Wart ihr in der Gemeinderatssitzung anwesend. Sowas wird üblicherweise im öffentlichen Teil behandelt.
Ich möchte euch nicht in die Mangel nehmen, aber ihr habt den Antrag 2017 gestellt und habt die Entscheidung 2021 abgewartet. Bei einem ehrenamtlichen Gremium. Das wäre mir viel zu wenig Eigeninitiative.
Vielleicht liegt das auch Grundstück innerhalb der Flucht, aber außerhalb der Ortsabrundungssatzung. Das ist sehr viel im Trüben fischen. Wie intensiv wart ihr mit dem/r Bürgermeister/in im Gespräch? Wart ihr in der Gemeinderatssitzung anwesend. Sowas wird üblicherweise im öffentlichen Teil behandelt.
Ich möchte euch nicht in die Mangel nehmen, aber ihr habt den Antrag 2017 gestellt und habt die Entscheidung 2021 abgewartet. Bei einem ehrenamtlichen Gremium. Das wäre mir viel zu wenig Eigeninitiative.
Chrissi1288 schrieb:
Ich habe Oktober 2017 einen Antrag zur Grundstückserschliessung bei der Gemeinde gestellt.Was genau hast Du in welcher Form beantragt?Chrissi1288 schrieb:
wurde im letzten Gemeinderat mysteriöser Weise abgelehnt.Was genau wurde wann genau abgelehnt?Durch Euer Ratsinformationssystem blicke ich nicht so ganz durch. Ich habe es so verstanden, dass der Bebauungsplan im Mai 2020 als Satzung beschlossen wurde, dieser Beschluss jedoch nicht öffentlich bekannt gemacht wurde, so dass der Bebauungsplan (noch) nicht rechtskräftig ist.
Chrissi1288 schrieb:
Das kuriose daran ist,eine schriftliche Ablehnung oder gar eine Rechnung der Gemeinde für die immerhin 3 Jahre Arbeit haben wir nie bekommen.Ich weiß ja nicht wie Ihr das geschafft habt, aber anscheinend hat die Gemeinde völlig eigenständig - also ohne städtebaulichen Vertrag nach §11 Baugesetzbuch o.ä. - den Bebauungsplan aufgestellt. Dann hättet Ihr in der Tat mit dem ganzen Bebauungsplanverfahren nichts zu tun.Chrissi1288 schrieb:
Nun habe ich auch von mehreren gehört man könne auch den Gemeinderat umgehen und sich direkt an das untere Bauamt in Saarbrücken wenden?Ja vielleicht. Dazu müsste man rechtssicher den Planungsstand ermitteln. So aus der Ferne betrachtet könnte eine Genehmigungsfähigkeit nach §33 Baugesetzbuch in Frage kommen. Die Genehmigungsbehörde beteiligt zwar die Gemeinde, muss sich aber deren Stellungnahme nicht fügen. Chrissi1288 schrieb:
oder habe ich einfach Pech nur weil irgendjemandem im Gemeinderat gerade nicht danach war dem Plan zuzustimmen?Nun ja, es ist ja nicht nur irgendjemand. Nach kurzem Überfliegen der Entstehungsgeschichte gab es schon von Anfang an ernsthafte Zweifel an der rechtmäßigen Aufstellung dieses Bebauungsplans, insbesondere vom Ministerium für Inneres und Sport, Landesplanung, Bauleitplanung. Auch der Widerstand der Nachbarn war nicht unerheblich. Das hat dann ja auch zu den diversen Überarbeitungen und Verzögerungen geführt. Vielmehr bin ich verwundert, dass für ein Haus dieses aufwändige Verfahren so weit durchgezogen wurde.
C
Chrissi128806.07.21 06:02ypg schrieb:
Du musst doch eine Begründung bekommen haben
Ich sehe da unterhalb von Euch nichts.Genau das ist was ich meine.Wir haben keine schriftliche Ablehnung bekommen.Lediglich telefonisch eine Aussage bekommen dass der Antrag mehrstimmig abgelehnt wurde.
Ähnliche Themen