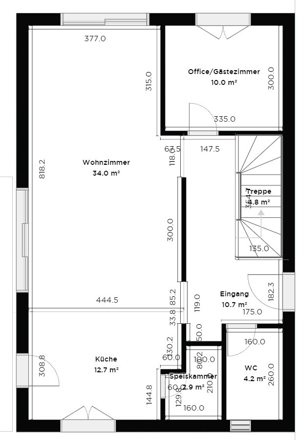
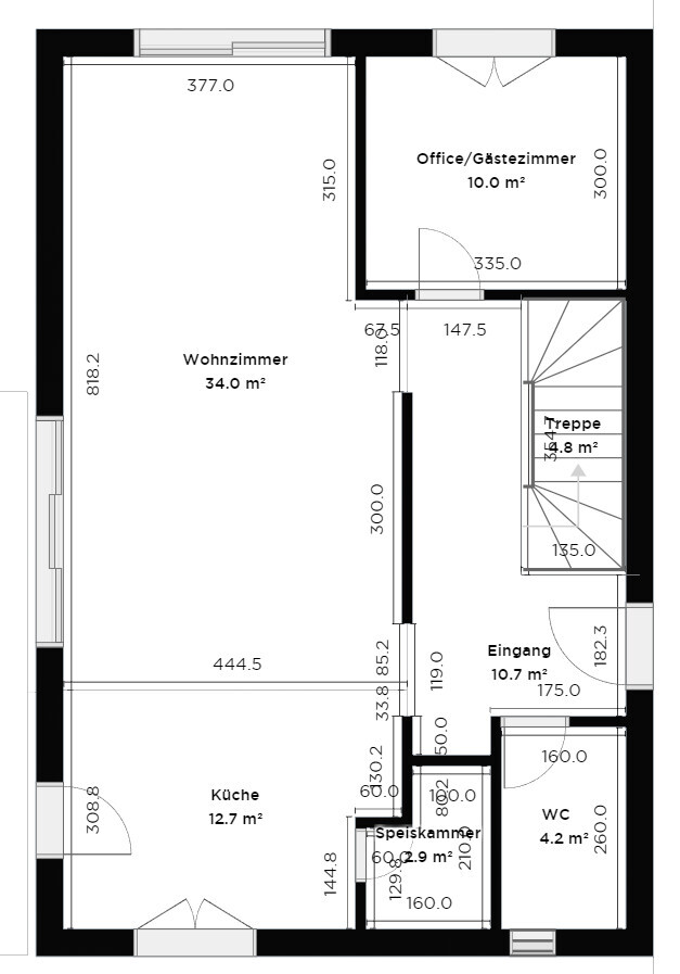
wir haben ein Grundstück im Neubaugebiet Jahnplatz in Lachen-Speyerdorf und hatten die ersten Gespräche mit einem Generalunternehmen (Massivbau). Der nachgebildete Plan (wir bekommen den richtigen Plan erst nach Unterschrift

, ich hab ihn so gut es ging nachgestellt - Raumgrößen und grobe Masse sollten stimmen) entspricht unseren Wunschvorstellungen, passt aber definitiv nicht ins Budget. Gemäss Generalunternehmer wäre das kein Problem, wir tüfteln zusammen weiter bis wir auf einen Nenner kommen. Nächster Termin ist in 1 Monat. Wir haben 2 neue Pläne (1x weniger Grundfläche aber weiterhin mit Keller, 1x ohne Keller) mit Kalkulation angefordert, bis dahin wollte ich aber auch mal hier im Forum nach offensichtlichen Problemstellen/Verbesserungsvorschläge/Ideen fragen und weitere Meinungen einholen.