Grundrissplanung Stadtvilla 170m2

4,60 Stern(e) 7 Votes
Zuletzt aktualisiert 23.12.2025
Sie befinden sich auf der Seite 3 der Diskussion zum Thema: Grundrissplanung Stadtvilla 170m2
>> Zum 1. Beitrag <<

Grundrissplanung Stadtvilla

  • Grundriss ist Ok

    Stimmen: 3 50,0%
  • Grundriss ändern

    Stimmen: 3 50,0%

  • Anzahl der Umfrageteilnehmer
    6
K a t j a

K a t j a

Das Budget muss und will ich nicht genau angeben...Ich habe irgendwas hingeschrieben.
???
Ohne Budget lässt sich der Grundriss nicht einschätzen. So wie es dort steht, kannst Du nur ein halb so großes Haus bauen. Ergo würde man versuchen, alles extrem zu schrumpfen. Das Budget ist eine entscheidend wichtige Information.
Man darf nur so bauen und die Örtlichkeiten lassen nichts anderes zu. War auch nicht meine Frage…… es geht nur um den Grundriss…….
Was darf man nur so bauen? Keinerlei Angaben zum Bebauungsplan. Willst Du nun Hilfe oder nicht?
 
askforafriend

askforafriend

Naja voran geht es wegen Schwangerschaft, Kind usw. nicht. Dann wollten wir auch nicht im Winter anfangen. Das Budget muss und will ich nicht genau angeben. Ich finde es ganz schön mies, sowas zu schreiben, ohne die Hintergründe zu kennen. Ich habe irgendwas hingeschrieben. Zwar habe ich schon gelesen, dass einem alles schlecht gemacht wird. Aber dann so….. mir ist bewusst, dass der Grundriss doof ist. Deswegen frage ich ja nach Verbesserungsvorschlägen.
Man darf nur so bauen und die Örtlichkeiten lassen nichts anderes zu. War auch nicht meine Frage…… es geht nur um den Grundriss…….
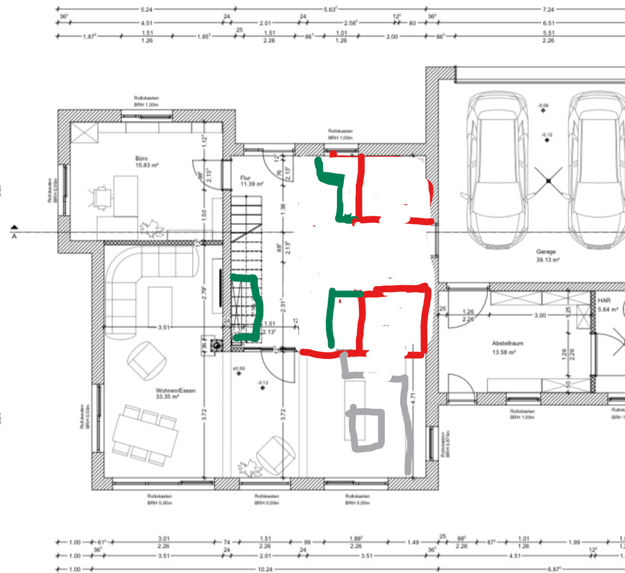
Hier im Forum weht ein rauer Ton von manchen Leuten. Du musst die Kritik ertragen können und für dich das hilfreiche herausfiltern. Mein Input bzgl. deinem Garderobenproblem wäre z.B. um nicht den ganzen Entwurf über den Haufen zu werfen:
Schieb die Speisekammer und das WC an die Wand der Garage - dann entstehen im Flur die erforderlichen Nischen für eine paar Garderobenplätze (in grün)


Grundriss eines Hauses: Erdgeschoss mit Garage, Büro, Wohn-/Essbereich; Rot/Grün Markierungen.



Ansonsten meine Anmerkungen:

- ich würde auf den Rücksprung für das Büro verzichten, und den Grundriss wieder quadratischer machen. Wenn du auf Stadtvillen abfährst, hol dir von Musterhäusern/Flyern Ideen, wie das geht.
- Wenn der Grundriss sich ändert , entstehen auch solche Probleme wie der geringe Abstand wand / sofa nicht
- Der durchgangsraum von der Garage ins Haus macht nur Sinn, wenn der auch nutzbar ist aktuell nur ein durchgangsschlauch, da muss der Architekt wirklich ran
- das Haus ist in den ausmaßen 11,24 x 11 meter - da ist bei sinnvoller Planung mehr drin
- HAR liegt weit weg vom geschehen - das verlängert Leitungen und dementsprechend Kosten (nur als Tipp)
- In der Küche einen Durchgang zur Speis planen, versteckt
 
11ant

11ant

Im Fragebogen sind wohl einige Angaben verrutscht oder mißverstanden worden. Bei 1600 qm Grundstück brauchen wir Grundflächenzahl und Geschossflächenzahl tatsächlich nicht zu wissen, das würde selbst bei 0.15/0.3 für eine Anstattvilla dieser Größe reichen. In "Budget" hätte wohl hingehört, was hier unter "Kostenschätzung" steht - allerdings dann als "Kostenwunsch". Die Angabe "mit viel Eigenleistung" wäre allerdings zu spezifizieren, weil man sonst mit den 380k nur wenig anfangen kann. Langen werden sie allerdings wohl dennoch recht sicher nicht. Aber Kohle ist ja ausreichend vorhanden, wie ich den beiden Q5 entnehme ;-)

Die Kritik des HAR in JWD vollziehe ich nicht nach, der liegt doch in gerader Schußlinie vom Ende der Sackgasse. Allerdings finde ich eine andere Kritik freundlich gesagt sehr sehr nachvollziehbar: nämlich die an den metastasierenden Grundrißreste-Ecken, die in wilder Mischung in die Schublade "Gattung: Nutzflächenräume" gesteckt werden. Abstell- und ähnliche Räume sind wohl in der "Summe" nicht zu wenig da, aber von einem Zufallsgenerator wie Pferdeäpfel verteilt. Am lustigsten im "richtig gut gewordenen" OG *ROTFL* finde ich den "direkt an der Hauptstraße" sitzenden Pinkler im Bad.

Die Arbeitszimmerbeule und das turmhohe Garagendach (mit King Size Überständen rundum) sind "Muster ohne Wert", und die einläufige gerade Treppe als offenbar absolute Must-have-Furunkel jeder richtigen Anstattvilla natürlich eine Hypothek für den Grundriss ebenso wie symmetrische Größen. In der Küche könnte die Frau von @tumaa auftreten, genug Freifläche für die Kamera ist im Wohnzimmer ja vorhanden.

wir planen seit über einem Jahr unseren Grundriss. Leider bin ich nach dem 5. Entwurf immer noch nicht zufrieden. Jedenfalls mit dem EG. Das OG ist m.E. Richtig gut geworden.
Leider kennen wir die Vorgängerentwürfe nicht. Wart Ihr denn meinem Rat gefolgt, mit dem OG zu beginnen ?
Wir möchten auch nicht wieder bei 0 anfangen.
Vielleicht hättet Ihr genau das einmal tun sollen - ist Entwurf 5 vielleicht eigentlich nur ein Patch von Entwurf 4, und auch der schon nur eine Version von Entwurf 3, oder sehen wir hier gar nur Version 5 als Patchpatchpatch von Entwurf 2 ?
Diskutiere hier doch einmal Entwurf 1 (und sage dazu, weshalb Ihr den nicht gut genug fandet).

Übrigens bekommt man hier recht gut geholfen (und an den Kommentaren von @driver55 kannst Du ziemlich 1:1 ablesen, welcher Ton Dir im grünen Forum entgegengeschlagen wäre).
 
K a t j a

K a t j a

Im Fragebogen sind wohl einige Angaben verrutscht oder mißverstanden worden. Bei 1600 qm Grundstück brauchen wir Grundflächenzahl und Geschossflächenzahl tatsächlich nicht zu wissen, das würde selbst bei 0.15/0.3 für eine Anstattvilla dieser Größe reichen.
Als erstes würde ich mich fragen, welche Abstände in alle Richtungen einzuhalten sind? Die 8m von der Straße erscheinen mir doch reichlich. Dafür klebt das Haus im Westen ziemlich nah am Zaun. Außerdem gibt es offenbar 2 Bäume zu umschiffen. Man fragt sich dennoch, ob die Autos nicht besser im Norden stehen dürften oder zumindest die Zufahrt erheblich eingekürzt würde, wenn man gerade von der Straße aus in die Garage fährt, als diesen riesen Bogen zu schlagen.
In der Küche könnte die Frau von @tumaa auftreten, genug Freifläche für die Kamera ist im Wohnzimmer ja vorhanden.
Ja, köstlich - aber nur im übertragenen Sinne. ;)
Übrigens bekommt man hier recht gut geholfen (und an den Kommentaren von @driver55 kannst Du ziemlich 1:1 ablesen, welcher Ton Dir im grünen Forum entgegengeschlagen wäre).
Wenn man sich in einem anonymen Forum nicht traut, dass Budget zu nennen, wie will man dann so einen Hausbau durchstehen?
 
Zuletzt aktualisiert 23.12.2025
Im Forum Grundrissplanung / Grundstücksplanung gibt es 2555 Themen mit insgesamt 88574 Beiträgen


Ähnliche Themen zu Grundrissplanung Stadtvilla 170m2
Nr.ErgebnisBeiträge
1Unser Grundriss-Entwurf, eure Meinungen 20
2Entwurf Einfamilienhaus mit Garage/Carport - bitte um Bewertung 22
3Hausbau 2.0 - erster Grundriss-Entwurf - Seite 13155
4Grundriss-Entwurf Stadtvilla mit Doppelgarage - Seite 238
5Grundriss-Entwurf: Einfamilienhaus mit Keller; 560qm Grundstück - Seite 765
6Bitte schaut kritisch über unseren Grundriss-Entwurf 13
7Entwurf Grundriss Einfamilienhaus (als Zweifamilienhaus im Alter möglich) in Hanglage - Seite 753
8Grundriss erster Entwurf - Meinungen erwünscht 21
9Grundriss-Entwurf für Einfamilienhaus 135 qm - Ideen und Ratschläge gesucht 29
10Grundriss mit Garage auf Grundstück realisierbar? - Seite 329
11Grundriss Bungalow 150qm mit Garage 79
12Einfamilienhaus-Grundriss 170 qm für 4 Personen mit Garage 20
13Bungalow mit 140qm und Garage im Grundriss 13
14Grundriss Einfamilienhaus, 200m2, 2 Vollgeschosse, Garage, ohne Keller 39
15Grundriss Einfamilienhaus mit 240m² mit Einliegerwohnung 75m² und Garage 39
16Grundriss Einfamilienhaus Stadtvilla ca. 240m² ohne Keller - Seite 10132
17Grundriss Familienhaus in Randlage mit freien Sicht - Seite 24153
18Grundriss Einfamilienhaus, 230 qm Wohnfläche, Osthang, Bauhausstil - Seite 1375
19Grundriss Einfamilienhaus ca. 140 m² zur Diskussion 28
20Grundriss Einfamilienhaus mit Satteldach, 1,5 Geschossig - Verbesserungen? - Seite 5124

Oben