Liebes Forum-Mitglieder,
wir haben eine Vorplanung für unser Haus zusammen mit einer Firma fertiggestellt und befinden uns nun am Anfang der Detailplanung. Daher würden wir uns über Verbesserungsvorschläge, kritische Worte und weitere Anregungen sowie Tipps zum Grundriss sehr freuen.
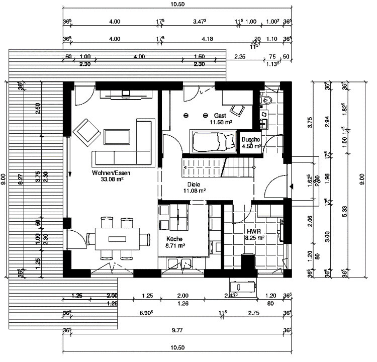
Ein Lageplan lieger leider noch nicht vor, aber die Grundrisse EG und OG im Maßstab 1:100 sowie Zeichnungen des Hauses.
Danke vorab!
Bebauungsplan/Einschränkungen
Größe des Grundstücks: 700qm
Ansonsten Bebauung nach §34 Baugesetzbuch; in der Nachbarschaft sind so ziemlich alle Haustypen, Größen, Geschosse, Dachtypen etc vertreten. Positive Bauvoranfrage für zweigeschossige Stadtvilla bis 200qm liegt vor.
Anforderungen der Bauherren
Stilrichtung, Dachform, Gebäudetyp: flaches Satteldach, Stadthaus
Keller, Geschosse: ohne Keller, 2 Geschosse
Anzahl der Personen, Alter: 2 Erwachsene, 1 Kinde (1 Jahr), eventuell 2. Kind geplant
Raumbedarf im EG, OG: 150qm
Büro: Familiennutzung oder Homeoffice? Homeoffice beide Erwachsene durschnittlich 3 Tage / Woche
Schlafgäste pro Jahr: Schwiegereltern mehrmals im Jahr
offene oder geschlossene Architektur: offen
konservativ oder moderne Bauweise: modern
offene Küche, Kochinsel: offene Küche falls möglich mit Kochinsel
Anzahl Essplätze: 4-8
Kamin: nein
Musik/Stereowand: nein
Balkon, Dachterrasse: nein
Garage, Carport: ja ein Stellplatz inkl. Schuppen
Nutzgarten, Treibhaus: eventuell
weitere Wünsche/Besonderheiten/Tagesablauf, gern auch Begründungen, warum dieses oder das nicht sein soll:
- größeres Gästezimmer im EG mit Platz für doppelbett da häufiger die Schwiegereltern zu Besuch kommen
- Gästezimmer im EG muss auch als Büro nutzbar sein
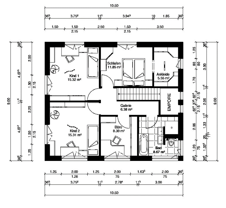
- lichtdurchflutete Räume / Empore
- Offener Eingangsbereich mit offenen Räumen und Blick in den Garten (eine Sichtachse)
- Gerade Betontreppe in das OG wegen Hunde und für Stellplatz daruner (Einbauschränke)
- Büro im OG soll zusätzlicher Hauswirtschaftsraum bzw der Wäschraum sein
- Fassade steingrau mit Holzverkleidungselementen
Hausentwurf
Von wem stammt die Planung: Planer eines Bauunternehmens
Was gefällt besonders? Warum?
- Sehr praktische Raumaufteilung und gute Größe der Räume
- Barrierfreier Zugang zur Gästedusche im EG
- Zusätzlicher Stauraum im Dach als Lagerraumbinder
- Viel Licht durch große Fenster
- Wäschraum im OG in der Nähe der Schlaf-/Kinderzimmer
Was gefällt nicht? Warum?
- Küche könnte zu klein / eng sein
- Frage ob Durchgang zur Küche notwendig
- Hauseingang nicht barrierefrei (auch Terrassenausgang nicht)
- Die grauen Elemente in der Fassade sollen durch Holzverkleidungen ersetzt werden, damit das Haus von außen einen besondereren Eindruck macht.
favorisierte Heiztechnik: Wärmepumpe
Wenn Ihr verzichten müsst, auf welche Details/Ausbauten
-könnt Ihr verzichten: zweites Waschbecken Bad OG, Rundes Fenster Ankleide (kann andere Form haben), Kochinsel, falls es nicht passt
-könnt Ihr nicht verzichten: gerade Betontreppe, Fenster, große Hebeschiebetür, größeres Gästezimmer, Empore, Gästedusche EG, Walk-in Duschen, Wäscheraum OG
Warum ist der Entwurf so geworden, wie er jetzt ist? ZB
Individueller Erstentwurf, bislang ohne Anpassung unsererseits. Gewünscht war explizit Empore, größeres Gästezimmer EG, Stauraum im Dach und Wäschraum im OG. Dies wurde so umgesetzt.






wir haben eine Vorplanung für unser Haus zusammen mit einer Firma fertiggestellt und befinden uns nun am Anfang der Detailplanung. Daher würden wir uns über Verbesserungsvorschläge, kritische Worte und weitere Anregungen sowie Tipps zum Grundriss sehr freuen.
Ein Lageplan lieger leider noch nicht vor, aber die Grundrisse EG und OG im Maßstab 1:100 sowie Zeichnungen des Hauses.
Danke vorab!
Bebauungsplan/Einschränkungen
Größe des Grundstücks: 700qm
Ansonsten Bebauung nach §34 Baugesetzbuch; in der Nachbarschaft sind so ziemlich alle Haustypen, Größen, Geschosse, Dachtypen etc vertreten. Positive Bauvoranfrage für zweigeschossige Stadtvilla bis 200qm liegt vor.
Anforderungen der Bauherren
Stilrichtung, Dachform, Gebäudetyp: flaches Satteldach, Stadthaus
Keller, Geschosse: ohne Keller, 2 Geschosse
Anzahl der Personen, Alter: 2 Erwachsene, 1 Kinde (1 Jahr), eventuell 2. Kind geplant
Raumbedarf im EG, OG: 150qm
Büro: Familiennutzung oder Homeoffice? Homeoffice beide Erwachsene durschnittlich 3 Tage / Woche
Schlafgäste pro Jahr: Schwiegereltern mehrmals im Jahr
offene oder geschlossene Architektur: offen
konservativ oder moderne Bauweise: modern
offene Küche, Kochinsel: offene Küche falls möglich mit Kochinsel
Anzahl Essplätze: 4-8
Kamin: nein
Musik/Stereowand: nein
Balkon, Dachterrasse: nein
Garage, Carport: ja ein Stellplatz inkl. Schuppen
Nutzgarten, Treibhaus: eventuell
weitere Wünsche/Besonderheiten/Tagesablauf, gern auch Begründungen, warum dieses oder das nicht sein soll:
- größeres Gästezimmer im EG mit Platz für doppelbett da häufiger die Schwiegereltern zu Besuch kommen
- Gästezimmer im EG muss auch als Büro nutzbar sein
- lichtdurchflutete Räume / Empore
- Offener Eingangsbereich mit offenen Räumen und Blick in den Garten (eine Sichtachse)
- Gerade Betontreppe in das OG wegen Hunde und für Stellplatz daruner (Einbauschränke)
- Büro im OG soll zusätzlicher Hauswirtschaftsraum bzw der Wäschraum sein
- Fassade steingrau mit Holzverkleidungselementen
Hausentwurf
Von wem stammt die Planung: Planer eines Bauunternehmens
Was gefällt besonders? Warum?
- Sehr praktische Raumaufteilung und gute Größe der Räume
- Barrierfreier Zugang zur Gästedusche im EG
- Zusätzlicher Stauraum im Dach als Lagerraumbinder
- Viel Licht durch große Fenster
- Wäschraum im OG in der Nähe der Schlaf-/Kinderzimmer
Was gefällt nicht? Warum?
- Küche könnte zu klein / eng sein
- Frage ob Durchgang zur Küche notwendig
- Hauseingang nicht barrierefrei (auch Terrassenausgang nicht)
- Die grauen Elemente in der Fassade sollen durch Holzverkleidungen ersetzt werden, damit das Haus von außen einen besondereren Eindruck macht.
favorisierte Heiztechnik: Wärmepumpe
Wenn Ihr verzichten müsst, auf welche Details/Ausbauten
-könnt Ihr verzichten: zweites Waschbecken Bad OG, Rundes Fenster Ankleide (kann andere Form haben), Kochinsel, falls es nicht passt
-könnt Ihr nicht verzichten: gerade Betontreppe, Fenster, große Hebeschiebetür, größeres Gästezimmer, Empore, Gästedusche EG, Walk-in Duschen, Wäscheraum OG
Warum ist der Entwurf so geworden, wie er jetzt ist? ZB
Individueller Erstentwurf, bislang ohne Anpassung unsererseits. Gewünscht war explizit Empore, größeres Gästezimmer EG, Stauraum im Dach und Wäschraum im OG. Dies wurde so umgesetzt.
Ich fange mal an
Treppe ... ca. 340 cm ohne Angabe von Steigungsverhältnis. Wird auf jeden Fall steil mir recht geringer Auftrittstiefe.
Küche 3 m Rohbaumaß .. großzügig ist es nicht.
Wohnzimmer, wenn Einrichtung wie Zeichnung geplant, dann viel Spaß beim Erreichen des Sofas.
Garderobe???? fehlt ganz bzw. maximal der Platz unter der Treppe, das ist nicht so viel, wenn man an Saisonjacken, Schuhe usw. denkt.
OG - Schlafzimmer .. da sollte man lieber erst den Schrankraum und dann den Schlafbereich planen. So ist wenig Platz rechts und links vom Bett, die Tür gleich neben der Kopfposition. Die Schrankzeichnungen sind mit ihren vielfach eingesetzten Eckschränken auch nicht super.
Die Fenster
Kind 1 hat beim Schreibtisch ein bodentiefes Fenster. Und beim anderen Fenster gibt es nicht genug Platz bis zur Wand, um einen normaltiefen Schrank zu stellen.
Büro und Badezimmer haben dafür Kellerfenster, soweit zu
Bad
Es musste ein T sein, richtig?
Wenn man da einen ordentlichen Waschtisch und eine etwas nett eingefaßte Badewanne hat, dann wird der Durchgang dazwischen supereng
Barrierefrei hast du jetzt mehrmals benutzt, welcher Gedanke steckt dahinter?
Treppe ... ca. 340 cm ohne Angabe von Steigungsverhältnis. Wird auf jeden Fall steil mir recht geringer Auftrittstiefe.
Küche 3 m Rohbaumaß .. großzügig ist es nicht.
Wohnzimmer, wenn Einrichtung wie Zeichnung geplant, dann viel Spaß beim Erreichen des Sofas.
Garderobe???? fehlt ganz bzw. maximal der Platz unter der Treppe, das ist nicht so viel, wenn man an Saisonjacken, Schuhe usw. denkt.
OG - Schlafzimmer .. da sollte man lieber erst den Schrankraum und dann den Schlafbereich planen. So ist wenig Platz rechts und links vom Bett, die Tür gleich neben der Kopfposition. Die Schrankzeichnungen sind mit ihren vielfach eingesetzten Eckschränken auch nicht super.
Die Fenster
Kind 1 hat beim Schreibtisch ein bodentiefes Fenster. Und beim anderen Fenster gibt es nicht genug Platz bis zur Wand, um einen normaltiefen Schrank zu stellen.
Büro und Badezimmer haben dafür Kellerfenster, soweit zu
LeFy2023 schrieb:
- Viel Licht durch große Fenster
Bad
Es musste ein T sein, richtig?
Wenn man da einen ordentlichen Waschtisch und eine etwas nett eingefaßte Badewanne hat, dann wird der Durchgang dazwischen supereng
LeFy2023 schrieb:Ich glaube es nicht, warum dafür nicht eher diesen Platz "Empore" nutzen?
Büro im OG soll zusätzlicher Hauswirtschaftsraum bzw der Wäschraum sein
LeFy2023 schrieb:Glaube ich auch nicht, Duschtür und Badezimmertür werden immer in Konkurrenz stehen.
Barrierfreier Zugang zur Gästedusche im EG
Barrierefrei hast du jetzt mehrmals benutzt, welcher Gedanke steckt dahinter?
LeFy2023 schrieb:Wie soll der erreicht werden? Auszugtreppe? Was soll gelagert werden?
Zusätzlicher Stauraum im Dach als Lagerraumbinder
Danke für das schnelle Feedback @kbt09
Die eingezeichneten Einrichtungsgegenstände kannst Du dir wegdenken, dass sind nur Platzhalter des Zeichners.
Möglichkeit wäre es, die Küche in das Wohn-/Esszimmer übergehen zu lassen. Hast Du eine zusätzliche Idee?
Soll unter der Treppe sein. Hast Du eine weitere Idee / einen Vorschlag?
Alternativer Gedanke wäre, die Ankleide wegzulassen, das Bett unter das runde Fenster zu stellen und an der Treppenseite einen langen Kleiderschrank zu platzieren.
Was meinst Du hier mit "soweit zu"?
Ist korrekt. Die Tür ist nicht richtig eingezeichnet im EG Bad.
Gedanke bei barrierefrei war bezogen auf die Möglichkeit im EG zu "wohnen", falls man einmal durch eine Verletztung o. ä. für eine längere Zeit keine Treppen laufen kann bzw. nicht mobil ist.
Die eingezeichneten Einrichtungsgegenstände kannst Du dir wegdenken, dass sind nur Platzhalter des Zeichners.
kbt09 schrieb:Hast Du hier eine gute Idee bzw. einen Anpassungsvorschlag?
Treppe ... ca. 340 cm ohne Angabe von Steigungsverhältnis. Wird auf jeden Fall steil mir recht geringer Auftrittstiefe.
kbt09 schrieb:
Küche 3 m Rohbaumaß .. großzügig ist es nicht.
Möglichkeit wäre es, die Küche in das Wohn-/Esszimmer übergehen zu lassen. Hast Du eine zusätzliche Idee?
kbt09 schrieb:
Garderobe???? fehlt ganz bzw. maximal der Platz unter der Treppe, das ist nicht so viel, wenn man an Saisonjacken, Schuhe usw. denkt.
Soll unter der Treppe sein. Hast Du eine weitere Idee / einen Vorschlag?
kbt09 schrieb:
OG - Schlafzimmer .. da sollte man lieber erst den Schrankraum und dann den Schlafbereich planen. So ist wenig Platz rechts und links vom Bett, die Tür gleich neben der Kopfposition. Die Schrankzeichnungen sind mit ihren vielfach eingesetzten Eckschränken auch nicht super.
Alternativer Gedanke wäre, die Ankleide wegzulassen, das Bett unter das runde Fenster zu stellen und an der Treppenseite einen langen Kleiderschrank zu platzieren.
kbt09 schrieb:Guter Hinweis bezüglich der Schranktiefe. Schreibtisch vor bodentiefem Fenster müssen wir uns nochmal Gedanken machen.
Die Fenster
Kind 1 hat beim Schreibtisch ein bodentiefes Fenster. Und beim anderen Fenster gibt es nicht genug Platz bis zur Wand, um einen normaltiefen Schrank zu stellen.
kbt09 schrieb:
Büro und Badezimmer haben dafür Kellerfenster, soweit zu
Was meinst Du hier mit "soweit zu"?
kbt09 schrieb:T ist gwünscht. Man könnte die Wand des Waschzimmers (aktuell Büro noch etwas verschieben.
Bad
Es musste ein T sein, richtig?
Wenn man da einen ordentlichen Waschtisch und eine etwas nett eingefaßte Badewanne hat, dann wird der Durchgang dazwischen supereng
kbt09 schrieb:Was meinst Du? Unsere Überlegung war, dass es praktisch ist Waschmaschine im OG bei den Schlafzimmern zu haben und gleichzeitig einen Raum zu trocknen. Ein zweites Büro brauchen wir nicht.
Ich glaube es nicht, warum dafür nicht eher diesen Platz "Empore" nutzen?
kbt09 schrieb:
Glaube ich auch nicht, Duschtür und Badezimmertür werden immer in Konkurrenz stehen.
Barrierefrei hast du jetzt mehrmals benutzt, welcher Gedanke steckt dahinter?
Ist korrekt. Die Tür ist nicht richtig eingezeichnet im EG Bad.
Gedanke bei barrierefrei war bezogen auf die Möglichkeit im EG zu "wohnen", falls man einmal durch eine Verletztung o. ä. für eine längere Zeit keine Treppen laufen kann bzw. nicht mobil ist.
kbt09 schrieb:Auszugstreppe wäre unsere erste Idee. Gelagert werden soll alles was man sonst im Keller hat (Koffer, Saisonsachen, etc.)
Wie soll der erreicht werden? Auszugtreppe? Was soll gelagert werden?
LeFy2023 schrieb:
Was meinst Du hier mit "soweit zu"?Lies nochmal meinen Beitrag, ich habe danach ein Zitat von dir bezüglich lichtdurchfluteter Räume eingestellt.Warum plant ihr die Räume nicht mit der geplanten Einrichtung?
LeFy2023 schrieb:
Alternativer Gedanke wäre, die Ankleide wegzulassen, das Bett unter das runde Fenster zu stellen und an der Treppenseite einen langen Kleiderschrank zu platzieren.Die Wand unter dem runden Fenster ist 3m breit, das werden schmale Gänge rechts und links vom Bett.LeFy2023 schrieb:
Was meinst Du? Unsere Überlegung war, dass es praktisch ist Waschmaschine im OG bei den Schlafzimmern zu haben und gleichzeitig einen Raum zu trocknen. Ein zweites Büro brauchen wir nicht.Nee, du hattest dochLeFy2023 schrieb:
Homeoffice beide Erwachsene durschnittlich 3 Tage / Wochegeschrieben. Wären da nicht 2 getrennte Büros sinnvoll, gerade bei Telefonkonferenzen/Onlinemeetings genieße ich es, dass keine zweite Person in meinem Homeoffice ist.Und das Doppelbett im unteren Büro sehe ich auch noch nicht so richtig.
Du schreibst
LeFy2023 schrieb:
Hast Du eine zusätzliche Idee?LeFy2023 schrieb:
Hast Du eine weitere Idee / einen Vorschlag?usw. Man kann nicht so an Einzeldetails direkt etwas ändern, wenn die Treppe zu steil ist, muss sie länger werden und dann funktioniert der Grundriss nicht mehr. Und das gilt für einige der von mir bemängelten Punkte.LeFy2023 schrieb:
Hast Du hier eine gute Idee bzw. einen Anpassungsvorschlag?Was ist denn deine Geschosshöhe? Entweder mit einer steilen Treppe leben oder die Treppe länger machen und den Grundriss zu zerschießen. Wenn die Treppe so bleiben soll, kann ich euch nur raten euch eine anzusehen und zu begehen die eine ähnliche Steigung hat.LeFy2023 schrieb:
Auszugstreppe wäre unsere erste Idee. Gelagert werden soll alles was man sonst im Keller hat (Koffer, Saisonsachen, etc.)Wie hoch wir dein Dachboden bzw. hast du einen Hausquerschnitt? So geschätzt aus der Seitenansicht heraus denke ich dass die Höhe nur sehr begrenzt ist und ihr wenig Platz haben werdet.LeFy2023 schrieb:
Gedanke bei barrierefrei war bezogen auf die Möglichkeit im EG zu "wohnen", falls man einmal durch eine Verletztung o. ä. für eine längere Zeit keine Treppen laufen kann bzw. nicht mobil ist.Bei dem schmalen Bad im EG wird aber sehr wenig Spaß haben. Meine besser Hälfte ist nach einem Wirbelbruch einige Zeit mit einem Rollator durchs Haus. Da müsstest du rückwärts rein, denn umdrehen mit einem Rollator kannst du vergessen.LeFy2023 schrieb:
Ein Lageplan lieger leider noch nicht vor,Aber Du wirst doch eine Skizze haben, wo das Grundstück als Rechteck mit Maßen und mit einskizziertem Haus und Stellplatzfläche zu erkennen ist?LeFy2023 schrieb:
könnt Ihr nicht verzichten: …, größeres Gästezimmer, EmporeWozu dient denn hier der Luftraum? Eine Empore sehe ich nicht.Das Gästezimmer kann man nicht so ohne weiteres mit einem Doppelbett möblieren. Eine Möblierung, die altersgerecht ist, sehe ich im Gästezimmer sowie im Dusch-WC nicht!
LeFy2023 schrieb:
Die eingezeichneten Einrichtungsgegenstände kannst Du dir wegdenken, dass sind nur Platzhalter des Zeichners.Aber sie sollten doch zu Euch passen? Dass der Planer seine Schablonen nutzt, ist verständlich. Aber Eure Aufgabe als zukünftige Bewohner sollte es sein, dass Ihr Eure Möblierung „da mal rein zeichnet“ und schaut, ob auch alles passt.LeFy2023 schrieb:
Wäschraum im OG.Wo ist der?LeFy2023 schrieb:
Was meinst Du? Unsere Überlegung war, dass es praktisch ist Waschmaschine im OG bei den Schlafzimmern zu haben und gleichzeitig einen Raum zu trocknen. Ein zweites Büro brauchen wir nicht.Die WM ist im EG eingezeichnet. Soll der gefangene Raum mit dem Bullauge der Wäscheraum sein? Wenn ja, wo ist der Kleiderschrank geplant? Aber auch ohne WM: so richtig kann man die Ankleide auch nicht nutzen, zumindest nicht mit gebräuchlichen Schränken. Diese Eckschränke haben doch kaum Fläche… Meter, um da mehr als einen Meter Stangenlänge unterzubringen.LeFy2023 schrieb:
Gedanke bei barrierefrei war bezogen auf die Möglichkeit im EG zu "wohnen", falls man einmal durch eine Verletzung o. ä. für eine längere Zeit keine Treppen laufen kann bzw. nicht mobil ist.Wie schon gesagt: sehe ich hier nicht.Ohne Zitate anzuwenden: es gibt kaum begehbaren Stauraum unterm Dach, vom Luftraum hat man nix außer Akustik im OG und etwas Platzmangel, Wäscheraum hat der Planer nicht geplant und steht wenn, in Konkurrenz mit der Ankleide, Bad ist zu schmal für die Wanne/Waschbecken/T-Version, bodentiefe Fenster nimmt Intimsphäre in den Kinderzimmer. Im Schlafzimmer ist das Bett auf zu wenig Fläche eingekesselt.
3 Meter auf Kante im RBM ist schlicht 10cm zu wenig.
Garderobe (mind.50/60cm Breite pP) ist gar nicht geplant, Hauswirtschaftsraum von 8,x ist ausreichend, wenn es weiteren erreichbaren Stauraum gibt, Küche finde ich persönlich schmerzhaft und auch nicht modern, wie gewünscht.
Beim WC frage ich mich, warum man keinen rechteckigen Entwurf plant (das Gästezimmer würde es danken) und die Dusche nach hinten, das Fenster zum Norden plant.
Im WZ bietet sich an, das Sofa rücks an die Wand zu stellen, aber die Lage des Seitenfensters an der Hausecke ist dann wiederum fraglich.
Außenansichten finde ich auch nicht gelungen. Bullauge finde ich als Akzent toll, dann aber mittig im Giebel. Die zwei schmalen Fenster im Giebel mag ich persönlich auch, aber nicht in Kombi mit dem Bullauge. Und in einer „Empore“ sehe ich innen dann auch keinen Mehrwert dieser Extravaganz.
Die Fassaden an sich finde ich alle vier nicht gelungen - ich sehe da auch überhaupt keinen Gedanken oder Sinn an der farbigen Akzentuierung. Denn diese wäre eigentlich dazu da, führende Linien zu unterstützen und nicht noch welche in einer schon wirren Anordnung dazu zu planen.
Interessant ist hier am Haus die Carport/Stellplatz-Situation.
Ich sehe hier noch nicht das Runde vom Ei, eher die runde Ablage.
Ähnliche Themen