Hallo zusammen,
mein Mann und ich planen gerade ein Einfamilienhaus, welches wir nächstes Jahr bauen wollen. Dazu haben wir mithilfe eines Bauzeichners diesen Grundriss entworfen und würden uns nun gerne eure Ideen / Verbesserungsvorschläge hierzu einholen. Hier einmal die Details:
Bebauungsplan/Einschränkungen:
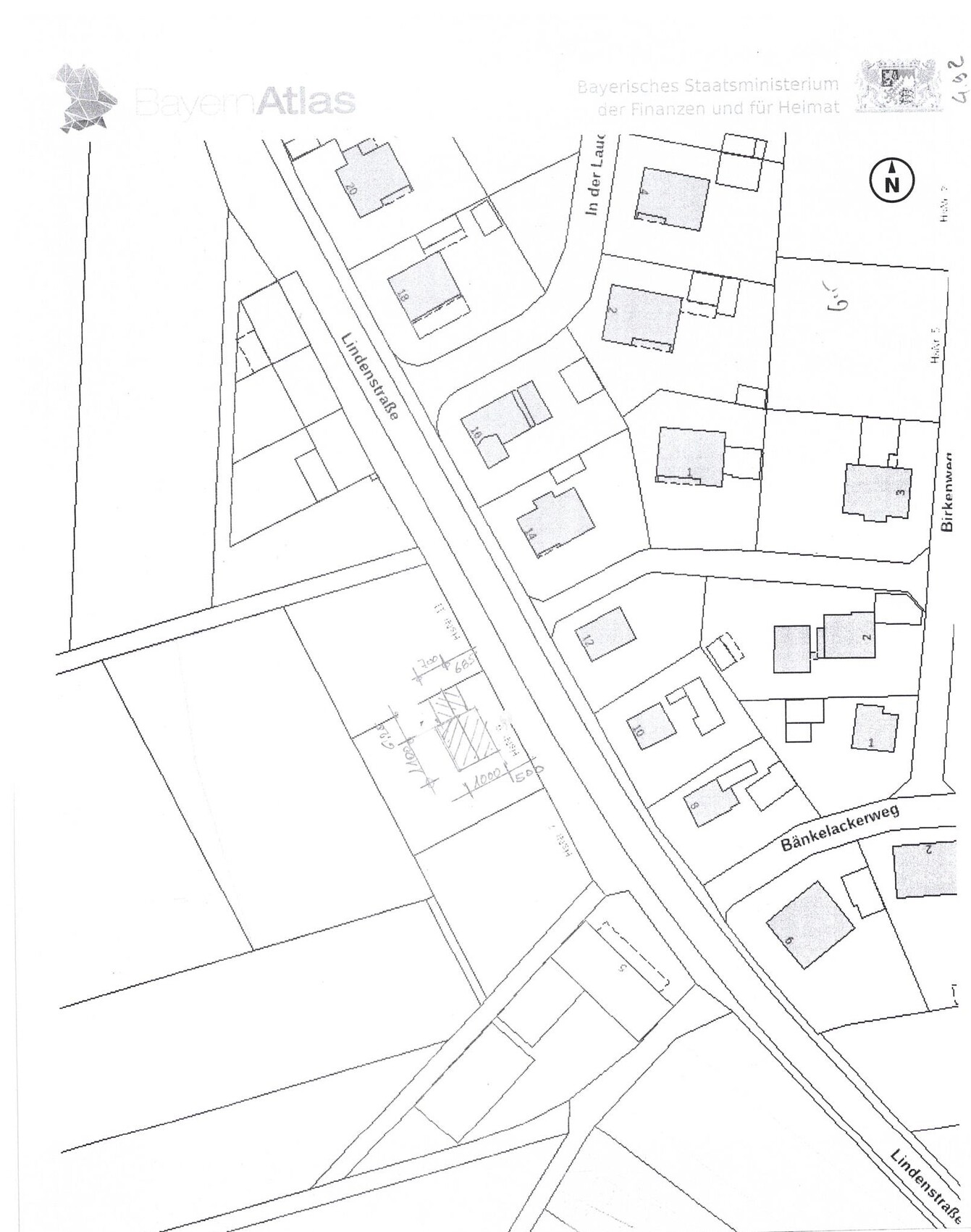
Größe des Grundstücks: 880 m2
Hang: nein
Geschossigkeit: max. 2 Vollgeschosse
Dachform: SD
ansonsten keine Einschränkungen gem. Bebauungsplan
Anforderungen der Bauherren
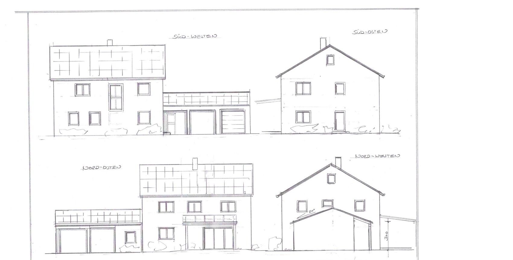
Stilrichtung, Dachform, Gebäudetyp: klassisches Einfamilienhaus/Jurahaus, SD
Keller, Geschosse: ohne Keller, 2 Vollgeschosse
Anzahl der Personen, Alter: 2 Erwachsene und 2-3 Kinder
Raumbedarf im EG: Duschbad, offene Küche/Essbereich, Wohnzimmer, Hauswirtschaftsraum-& Technikraum, Speis, Eingangsbereich
Raumbedarf im OG:3 Schlafzimmer, 1 Büro (was evtl. später noch Kinderzimmer wird), Bad, ggf. Abstellraum
Büro: Familiennutzung oder Homeoffice?: zunächst Homeoffice, evtl. später als weiteres Kinderzimmer
Schlafgäste pro Jahr: nicht relevant
offene oder geschlossene Architektur: offener Koch-/Ess-/Wohnbereich, sonst eher geschlossen
konservativ oder moderne Bauweise: konservativ
offene Küche, Kochinsel: offene Küche mit Kochinsel
Anzahl Essplätze: 8
Kamin: ja
Musik/Stereowand: nein
Balkon, Dachterrasse: nein
Garage, Carport: je ein Stellplatz Garage und Carport
Nutzgarten, Treibhaus: eher nicht
weitere Wünsche/Besonderheiten/Tagesablauf, gern auch Begründungen, warum dieses oder das nicht sein soll:
- Eingangsbereich mit Tür zum Wohnraum/Warmbereich (zum einen als Schmutzfang / Windfang, aber auch Abtrennung wegen Hund/Kindern nach draußen)
- WC und Treppe auch im „Warmbereich“, also Zugang nicht durch Eingangsbereich
- großzügiger Hauswirtschaftsraum/Technikraum: möglichst, dass auch Wäsche drin aufgehängt werden kann
- Seitlicher Eingang über Carport/Garage
Hausentwurf
Von wem stammt die Planung: Bauzeichner
Was gefällt besonders? Warum?
- Ausrichtung der wichtigsten Räume (gemäß Himmelsrichtungen)
- Garage/Carport Kombination und gleichzeitig überdachter Eingang
- Raumaufteilung/Raumnutzung OG
Was gefällt nicht? Warum?
- Eingangsbereich evtl. zu klein und dunkel, kein wirklicher Platz für eine Garderobe, wohin mit Schuhen/Jacken etc.? (wir hatten erst überlegt im Wohnzimmer dafür eine Nische zu machen, glauben aber es würde uns mit so einem Eck drin im Wohnzimmer nicht so gefallen bzw wäre auch schwieriger zu stellen)
- Hauswirtschaftsraum/Technik vlt. zu klein?
- Außerdem überlegen wir ob das WC direkt neben der Küche etwas schwierig ist v.a. wenn Gäste da sind
(- Ursprünglich wollten wir das Wohnzimmer etwas mehr räumlich getrennt, also keine Tür zum Wohn-Essbereich, sondern zb. einen Ofen mit einer kleinen Wand als Raumteiler, eine gerade Treppe als Trennung oder das Wohnzimmer etwa in einer Art Nische/ohne Sichtachse)
Preisschätzung lt Architekt/Planer: noch nicht vorhanden
Persönliches Preislimit fürs Haus, inkl Ausstattung: ca. 550.000 €
favorisierte Heiztechnik: Nahwärme
Wenn Ihr verzichten müsst, auf welche Details/Ausbauten
-könnt Ihr verzichten: Ofen, Abstellraum oben
-könnt Ihr nicht verzichten: Speis
Warum ist der Entwurf so geworden, wie er jetzt ist? Entsprechende/Welche Wünsche wurden vom Architekten umgesetzt?
Was macht ihn in Euren Augen besonders gut oder schlecht?
- kein Standardentwurf, Zusammenarbeit und Versuch all unsere Wünsche irgendwie bestmöglich und kosteneffizient umzusetzen ohne viel Raum zu "verschwenden"
- an sich wurden unsere wichtigsten Punkte umgesetzt, es entspricht damit unseren Anforderungen und gefällt uns auch ganz gut
- in dem Entwurf des Bauzeichners sind keine Möbel eingezeichnet, dadurch ist es für uns etwas schwierig die Größenverhältnisse einzuschätzen (wir sind aber gerade dabei den Plan in einem Programm inkl. Möbeln nachzubilden, damit wir uns das Ganze besser vorstellen können)
Was ist die wichtigste/grundlegende Frage zum Grundriss in 130 Zeichen zusammengefasst?
- allgemein würden wir gerne wissen, wie oder auch ob wir das Ganze noch irgendwie optimieren könnten, also gerne auch Vorschläge/kleine Änderungen, was wir vlt. nicht bedacht haben
- Wir haben noch etwas Bedenken, ob das ganze (von innen) gut/harmonisch wirkt oder bspw. der Eingangsbereich und damit der erste Eindruck zu erdrückend/dunkel wirkt; gibt es Ideen wie man das in diesem Plan lösen könnte (ohne die Tür wegzulassen)?
Wir freuen uns auf eure Anregungen. Vielen Dank für eure Hilfe und liebe Grüße




mein Mann und ich planen gerade ein Einfamilienhaus, welches wir nächstes Jahr bauen wollen. Dazu haben wir mithilfe eines Bauzeichners diesen Grundriss entworfen und würden uns nun gerne eure Ideen / Verbesserungsvorschläge hierzu einholen. Hier einmal die Details:
Bebauungsplan/Einschränkungen:
Größe des Grundstücks: 880 m2
Hang: nein
Geschossigkeit: max. 2 Vollgeschosse
Dachform: SD
ansonsten keine Einschränkungen gem. Bebauungsplan
Anforderungen der Bauherren
Stilrichtung, Dachform, Gebäudetyp: klassisches Einfamilienhaus/Jurahaus, SD
Keller, Geschosse: ohne Keller, 2 Vollgeschosse
Anzahl der Personen, Alter: 2 Erwachsene und 2-3 Kinder
Raumbedarf im EG: Duschbad, offene Küche/Essbereich, Wohnzimmer, Hauswirtschaftsraum-& Technikraum, Speis, Eingangsbereich
Raumbedarf im OG:3 Schlafzimmer, 1 Büro (was evtl. später noch Kinderzimmer wird), Bad, ggf. Abstellraum
Büro: Familiennutzung oder Homeoffice?: zunächst Homeoffice, evtl. später als weiteres Kinderzimmer
Schlafgäste pro Jahr: nicht relevant
offene oder geschlossene Architektur: offener Koch-/Ess-/Wohnbereich, sonst eher geschlossen
konservativ oder moderne Bauweise: konservativ
offene Küche, Kochinsel: offene Küche mit Kochinsel
Anzahl Essplätze: 8
Kamin: ja
Musik/Stereowand: nein
Balkon, Dachterrasse: nein
Garage, Carport: je ein Stellplatz Garage und Carport
Nutzgarten, Treibhaus: eher nicht
weitere Wünsche/Besonderheiten/Tagesablauf, gern auch Begründungen, warum dieses oder das nicht sein soll:
- Eingangsbereich mit Tür zum Wohnraum/Warmbereich (zum einen als Schmutzfang / Windfang, aber auch Abtrennung wegen Hund/Kindern nach draußen)
- WC und Treppe auch im „Warmbereich“, also Zugang nicht durch Eingangsbereich
- großzügiger Hauswirtschaftsraum/Technikraum: möglichst, dass auch Wäsche drin aufgehängt werden kann
- Seitlicher Eingang über Carport/Garage
Hausentwurf
Von wem stammt die Planung: Bauzeichner
Was gefällt besonders? Warum?
- Ausrichtung der wichtigsten Räume (gemäß Himmelsrichtungen)
- Garage/Carport Kombination und gleichzeitig überdachter Eingang
- Raumaufteilung/Raumnutzung OG
Was gefällt nicht? Warum?
- Eingangsbereich evtl. zu klein und dunkel, kein wirklicher Platz für eine Garderobe, wohin mit Schuhen/Jacken etc.? (wir hatten erst überlegt im Wohnzimmer dafür eine Nische zu machen, glauben aber es würde uns mit so einem Eck drin im Wohnzimmer nicht so gefallen bzw wäre auch schwieriger zu stellen)
- Hauswirtschaftsraum/Technik vlt. zu klein?
- Außerdem überlegen wir ob das WC direkt neben der Küche etwas schwierig ist v.a. wenn Gäste da sind
(- Ursprünglich wollten wir das Wohnzimmer etwas mehr räumlich getrennt, also keine Tür zum Wohn-Essbereich, sondern zb. einen Ofen mit einer kleinen Wand als Raumteiler, eine gerade Treppe als Trennung oder das Wohnzimmer etwa in einer Art Nische/ohne Sichtachse)
Preisschätzung lt Architekt/Planer: noch nicht vorhanden
Persönliches Preislimit fürs Haus, inkl Ausstattung: ca. 550.000 €
favorisierte Heiztechnik: Nahwärme
Wenn Ihr verzichten müsst, auf welche Details/Ausbauten
-könnt Ihr verzichten: Ofen, Abstellraum oben
-könnt Ihr nicht verzichten: Speis
Warum ist der Entwurf so geworden, wie er jetzt ist? Entsprechende/Welche Wünsche wurden vom Architekten umgesetzt?
Was macht ihn in Euren Augen besonders gut oder schlecht?
- kein Standardentwurf, Zusammenarbeit und Versuch all unsere Wünsche irgendwie bestmöglich und kosteneffizient umzusetzen ohne viel Raum zu "verschwenden"
- an sich wurden unsere wichtigsten Punkte umgesetzt, es entspricht damit unseren Anforderungen und gefällt uns auch ganz gut
- in dem Entwurf des Bauzeichners sind keine Möbel eingezeichnet, dadurch ist es für uns etwas schwierig die Größenverhältnisse einzuschätzen (wir sind aber gerade dabei den Plan in einem Programm inkl. Möbeln nachzubilden, damit wir uns das Ganze besser vorstellen können)
Was ist die wichtigste/grundlegende Frage zum Grundriss in 130 Zeichen zusammengefasst?
- allgemein würden wir gerne wissen, wie oder auch ob wir das Ganze noch irgendwie optimieren könnten, also gerne auch Vorschläge/kleine Änderungen, was wir vlt. nicht bedacht haben
- Wir haben noch etwas Bedenken, ob das ganze (von innen) gut/harmonisch wirkt oder bspw. der Eingangsbereich und damit der erste Eindruck zu erdrückend/dunkel wirkt; gibt es Ideen wie man das in diesem Plan lösen könnte (ohne die Tür wegzulassen)?
Wir freuen uns auf eure Anregungen. Vielen Dank für eure Hilfe und liebe Grüße
Die Garderobenfrage sehe ich auch lösungsbedürftig, im Wesentlichen gefällt mir nur der Zuschnitt des Schlafzimmers nicht. Ich empfehle Euch, ohne Zeichnungen zum Architekten zu gehen. Der Bauzeichner sollte ja einen kennen ;-)
https://www.instagram.com/11antgmxde/
https://www.linkedin.com/company/bauen-jetzt/
https://www.instagram.com/11antgmxde/
https://www.linkedin.com/company/bauen-jetzt/
S
Sunshine38717.07.23 20:45Warum Nahwärme und keine Luft-Wasser-Wärmepumpe? So seid ihr doch preislich viel unabhängiger.
A
Allthewayup17.07.23 20:50Dieses riesige Fenster im Treppenhaus würde ich durch ein halb so großes ersetzen. Wir haben hier ein 214cm hohes und 63,5cm breites genommen was absolut ausreichend Licht ins Treppenhaus bringt. Die Eingangsthematik mit der Diele wurde ja schon angesprochen. Wenn Kinder im Haus sind ist da Platz Gold wert - Jacken, Gummistiefel, Regenschirm ablegen, etc.
Auch finde ich den Bereich vor dem Hauseingang verbesserungswürdig. Warum der Geräteschuppen direkt am Haus? Den Würde ich definitiv in den Garten packen wo er gebraucht wird. Du rennst doch nicht durchs Carport um dann von vorne den Rasenmäher für‘s Rasenmähen rauszuziehen. Bei 880qm findet sich da eine besserer Ort für sowas. Die Speisekammer ist meiner Meinung nach mit 5qm sehr groß. Im Hinblick auf euer Budget sehe ich hier Sparpotential. Wir haben in dem jetzigen Miethaus 2qm und es steht drin ein Fachbodenregal, 2x 50L Mülleimer, 3x 12er Pack Milch, 2x 6er Wasser, Dyson Standladestation, meine Komplette Grillausrüstung, uvm. Bei 5qm könnte ja sogar noch die Schwiegermutter drin schlafen…. 🙂
Ich will euren Entwurf nicht durch den Dreck ziehen aber er wirkt an so vielen Stellen nicht durchdacht. Sucht euch doch mal Grundrisse aus dem Internet die euch zusagen und/oder legt das Skizzenpapier über den jetzigen Entwurf und überlegt euch wie die Räume aussehen sollten wenn ihr euch Gedanklich durchs Haus bewegt. Wir haben auch viele Schleifen geflogen bevor wir gelandet sind. Das braucht einige Nächte zum drüber schlafen.
*Edit weil jetzt erst so richtig gesehen:
Dieser Satteldachanbau mit Schuppen, CP und Garage wird mit dem Budget eher ein Wunsch bleiben. Das würde ich definitiv Kostenoptimieren.
Auch finde ich den Bereich vor dem Hauseingang verbesserungswürdig. Warum der Geräteschuppen direkt am Haus? Den Würde ich definitiv in den Garten packen wo er gebraucht wird. Du rennst doch nicht durchs Carport um dann von vorne den Rasenmäher für‘s Rasenmähen rauszuziehen. Bei 880qm findet sich da eine besserer Ort für sowas. Die Speisekammer ist meiner Meinung nach mit 5qm sehr groß. Im Hinblick auf euer Budget sehe ich hier Sparpotential. Wir haben in dem jetzigen Miethaus 2qm und es steht drin ein Fachbodenregal, 2x 50L Mülleimer, 3x 12er Pack Milch, 2x 6er Wasser, Dyson Standladestation, meine Komplette Grillausrüstung, uvm. Bei 5qm könnte ja sogar noch die Schwiegermutter drin schlafen…. 🙂
Ich will euren Entwurf nicht durch den Dreck ziehen aber er wirkt an so vielen Stellen nicht durchdacht. Sucht euch doch mal Grundrisse aus dem Internet die euch zusagen und/oder legt das Skizzenpapier über den jetzigen Entwurf und überlegt euch wie die Räume aussehen sollten wenn ihr euch Gedanklich durchs Haus bewegt. Wir haben auch viele Schleifen geflogen bevor wir gelandet sind. Das braucht einige Nächte zum drüber schlafen.
*Edit weil jetzt erst so richtig gesehen:
Dieser Satteldachanbau mit Schuppen, CP und Garage wird mit dem Budget eher ein Wunsch bleiben. Das würde ich definitiv Kostenoptimieren.
Für mich ein Entwurf, an dem man lernen kann, dass ein erster Entwurf dazu da ist zu sehen, wie man es nicht machen sollte. Aber auch, zu sehen, dass _Anders_ nicht gleich besser ist.
Insofern macht er durchaus Sinn. Aber nicht, um ihn zu diskutieren, sondern sofort zusehen, dass
- Diele ohne Platz und Garderobe keinen Sinn macht
- die Küche nicht einfach nur Platzhalter ist
- die Speis und der Zugang auch einen Plan verfolgen sollte
- und ja: Dielen sind heutzutage genauso warm wie der Rest des Hauses. Man kann also auch die Diele entsprechend planen.
Garderobe fehlt, Bewegungsfläche für 5 Personen plus Hund in der Diele fehlt, Küche ist hier tatsächlich mal ein Durchgangsraum, wo Küchenmöbel sogar stören könnten, ich würde sogar sagen, da steht man im Zug.
Dusch-WC als Ausweichbad führt dazu, dass man erstmal in der Küche steht, bevor und nachdem man sie benutzt.
Wozu dient der Raum vor der Treppe?
OG würd ich jetzt gar nicht beachten, bevor nicht irgendwie mal Tetris im EG geschoben wird.
Zb könnte man sehen, dass Diele eine Wand hat, wo ein Garderobenschrank hin sollte. Du hast recht: EZ würde damit nicht gewinnen, aber eventuell die Küche mit Hochschränken. Speis sehe ich eher im Bereich des Abstellraumes, Küche dort, wo jetzt WZ ist.
Großer Zugang zum Allraum ggü der Treppe mit Sichtachse nach draußen in den Garten.
Eventuell aber auch Technik neben dem Geräteraum, dann habt Ihr Euren Wäschetrockenplatz im Garten mit Direktzugang. Im Haus sehe ich so etwas gar nicht.
Ich würde da viel, sehr viel ausprobieren und mich nicht zufrieden geben, wenn nicht eine schöne große Küche Platz hat, das Dusch-WC etwas privater zu erreichen ist und der Eingang das hat, wozu er da ist, nämlich Platz zum Heimkommen und genügend Platz für mind. 15 Jacken, 30 Paar Schuhe und eine große Kommode für Schals, Hundesachen und Taschen hat.
Auf eine Speis kann man bei der Lage des Geräteraumes und TK absolut verzichten. Im Übrigen würde ich den Zugang des Geräteraumes ggü des Holzlagers legen.
Insofern macht er durchaus Sinn. Aber nicht, um ihn zu diskutieren, sondern sofort zusehen, dass
- Diele ohne Platz und Garderobe keinen Sinn macht
- die Küche nicht einfach nur Platzhalter ist
- die Speis und der Zugang auch einen Plan verfolgen sollte
- und ja: Dielen sind heutzutage genauso warm wie der Rest des Hauses. Man kann also auch die Diele entsprechend planen.
Garderobe fehlt, Bewegungsfläche für 5 Personen plus Hund in der Diele fehlt, Küche ist hier tatsächlich mal ein Durchgangsraum, wo Küchenmöbel sogar stören könnten, ich würde sogar sagen, da steht man im Zug.
Dusch-WC als Ausweichbad führt dazu, dass man erstmal in der Küche steht, bevor und nachdem man sie benutzt.
Wozu dient der Raum vor der Treppe?
OG würd ich jetzt gar nicht beachten, bevor nicht irgendwie mal Tetris im EG geschoben wird.
Zb könnte man sehen, dass Diele eine Wand hat, wo ein Garderobenschrank hin sollte. Du hast recht: EZ würde damit nicht gewinnen, aber eventuell die Küche mit Hochschränken. Speis sehe ich eher im Bereich des Abstellraumes, Küche dort, wo jetzt WZ ist.
Großer Zugang zum Allraum ggü der Treppe mit Sichtachse nach draußen in den Garten.
Eventuell aber auch Technik neben dem Geräteraum, dann habt Ihr Euren Wäschetrockenplatz im Garten mit Direktzugang. Im Haus sehe ich so etwas gar nicht.
Ich würde da viel, sehr viel ausprobieren und mich nicht zufrieden geben, wenn nicht eine schöne große Küche Platz hat, das Dusch-WC etwas privater zu erreichen ist und der Eingang das hat, wozu er da ist, nämlich Platz zum Heimkommen und genügend Platz für mind. 15 Jacken, 30 Paar Schuhe und eine große Kommode für Schals, Hundesachen und Taschen hat.
Auf eine Speis kann man bei der Lage des Geräteraumes und TK absolut verzichten. Im Übrigen würde ich den Zugang des Geräteraumes ggü des Holzlagers legen.
Ähnliche Themen