Grundrissplanung mit einigen Anforderungen - Ideen?

4,70 Stern(e) 3 Votes
Zuletzt aktualisiert 25.11.2025
Sie befinden sich auf der Seite 4 der Diskussion zum Thema: Grundrissplanung mit einigen Anforderungen - Ideen?
>> Zum 1. Beitrag <<

kaho674

kaho674

Zum Blick in den Garten: Seh ich völlig entspannt: Fensterfläche so verschieben oder vergrößern, dass Du bequem raus schauen kannst.
 
A

Anitra

Das ist ja ein schönes Kompliment, Yvonne. Danke Du meinst also dass es gut ist, dass wir uns gegen eine Zweiteilung entschieden haben?

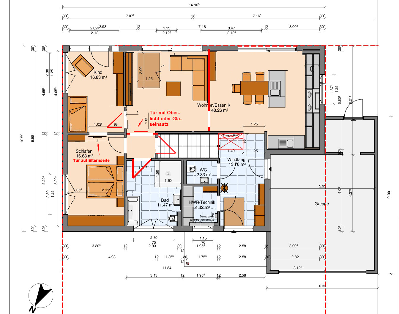
Uns fehlt im Allraum ja planlinks die Ecke, die wir für den Flur zum Kinderzimmer und Bad brauchen. Wenn die 2,70x2,70 große Couch mal voll besetzt ist, wird es schwierig mit dem Fernsehen oder wie seht ihr das? Die, die an der Kinderzimmerwand sitzen lehnen sich nach vorne um besser zu sehen bzw. die, die planoben an der Außenwand sitzen bekommen Genickstarre
Vielleicht erkennt man kahos Bild was ich meine:


Wie sieht es aus mit Spiegelungen durch die Sonne?
Hat noch jemand eine Idee für den Bereich Kinderzimmer/Flur/Eckcouch bzw den Raum an sich?

Denke mal ihr wolltet euch damit die Möglichkeit schaffen, nach oben zu können um mal Wäsche zu waschen oder nach kranken Kindern zu schauen.
Wir werden unsere Tochter mit hoch nehmen wenn wir mal länger oben sind. Es wäre besser wenn das OG rollstuhltauglicher wäre. Aber die Umsetzung ist schwieriger als gedacht.

Wünsche euch allen ein gutes neues Jahr!
 
Y

ypg

Das sind zu viel Wände und somit Ecken, die einem Rolli stören könnten.
Sofaecke: Ideen habe ich leider nicht [emoji17] Man könnte allerdings den TV etwas drehen

Zum späteren Trennen der Geschosse, hab ich eigentlich gedacht, dass das noch aktuell ist.
Im EG seh ich da schon eine kleine altersgerechte Wohnung. Im OG sind dafür Wände einzureißen. Allerdings wären die zwei Einheiten eher besser geeignet, wenn man die „in Familie“ bewohnt.
 
11ant

11ant

Ich hatte noch mit einer Trennung der Räume rumprobiert. Ob das allerdings eine Verbesserung ist, wage ich zu bezweifeln.
Dem Zweifel schließe ich mich an. Die Teilung des Allraums erzeugt eher Kleinstaaten als Gemütlichkeit. Mir scheint, Du hast Breite herausgenommen, ohne sie an anderer Stelle wieder einzusetzen (?)
Manchmal hilft ja auch die Visualisierung einer Sackgasse weiter

Sofaecke: Ideen habe ich leider nicht
Der Gedanke mit der Sofadrehung wie in #21 kam mir zwar auch schon, aber eben wegen der (m.E. auch ohne Wand) gefühlt verkleinernden Wirkung dieser Gliederung habe ich das wieder verworfen.
 
Zuletzt aktualisiert 25.11.2025
Im Forum Grundrissplanung / Grundstücksplanung gibt es 2536 Themen mit insgesamt 88016 Beiträgen


Ähnliche Themen zu Grundrissplanung mit einigen Anforderungen - Ideen?
Nr.ErgebnisBeiträge
1Kinderzimmer in Dachgeschoss zu klein geplant? - Seite 633
2Schallschutz Kinderzimmer 12
3Einfamilienhaus ~190qm, drei Kinderzimmer, ohne Keller - Feedback wäre mega - Seite 219
4Schallschutztür Schlafzimmer / Kinderzimmer 23
5Entwurf Einfamilienhaus mit 3 Kinderzimmer, Keller und Grenzbebauung - Seite 232
6Parkett von Flur in Zimmer durchlegen - Seite 217
7Grundriss-Aufteilung OG - Elternbereich / 2 Kinderzimmer mit Bad 26
8Wie viele Lampen im 7m langen Flur? 13
9Flur-Grundriss vergrößern REH von 1921: Tipps? - Seite 227
10Entwurf Einfamilienhaus mit Garage/Carport - bitte um Bewertung - Seite 322
11Renovieren von Kinderzimmer 11
12Größe Kinderzimmer/Grundriss 12
13Jalousien in Kinderzimmer und Bad auf der Südseite 12
14Größe vom Schlafzimmer und Kinderzimmer 38
15Kinderzimmer im Obergeschoss bis zum Dach offen 25
16Ups...! Wir brauchen jetzt doch ein Kinderzimmer... 19
17Kinderzimmer mit bodentiefen Fenstern 22
18Kork oder Bambus für Kinderzimmer? 41
19Grundrissplanung Hanghaus mit 5 Kinderzimmer - Seite 4370
20Kinderzimmer und Schlafzimmer - Welche Größe ist zu empfehlen? 56

Oben