Grundrissplanung mit einigen Anforderungen - Ideen?

4,70 Stern(e) 3 Votes
Zuletzt aktualisiert 25.11.2025
Sie befinden sich auf der Seite 2 der Diskussion zum Thema: Grundrissplanung mit einigen Anforderungen - Ideen?
>> Zum 1. Beitrag <<

H

haydee

EG gefällt mir gut.
OG wirkt nicht rollstuhltauglich, gerade der Zugang zum Hauswirtschaftsraum.

Braucht ihr einen eigenen Therapieraum? Evtl muss später das Bett von der Wand gerückt werden, damit man zu zweit einen Erwachsenen umlagern kann.
 
11ant

11ant

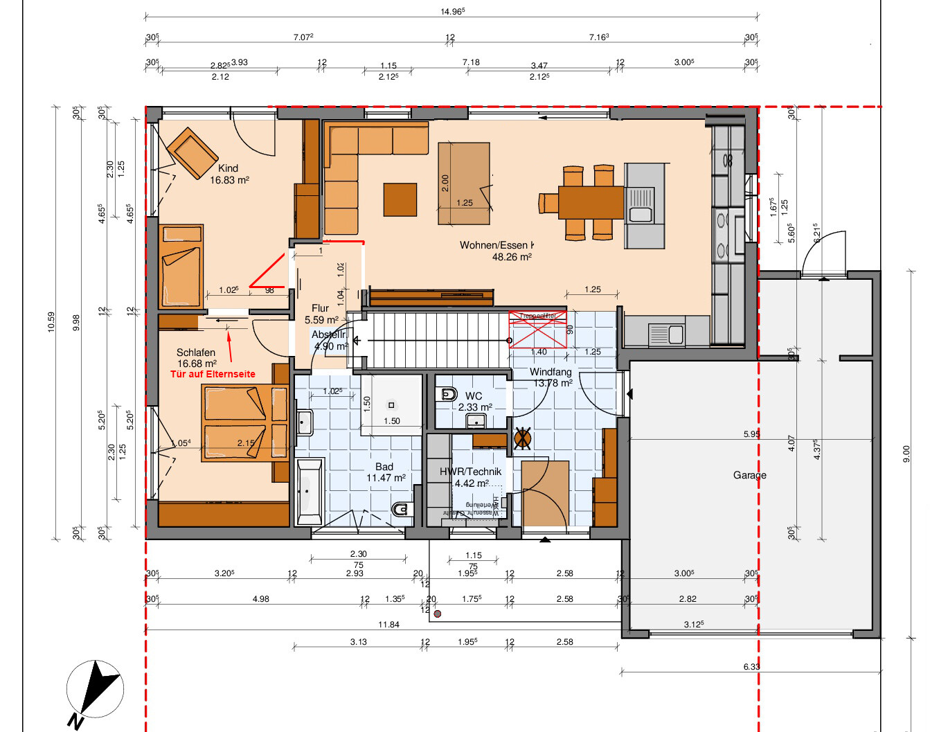
Wohnzimmer zu lang und schmal:
Die Proportionen finde ich noch o.k., einen Allraum mit einer klaren Achse finde ich schöner als einen kompakten.

Meine Sorge ist auch, dass der Allraum durch die fehlende Trennung ungemütlich werden könnte.
Da lassen sich gestalterisch Zonen bilden, die Sorge teile ich also nicht.

Ich meine es eher so:
Ggü. dem Vorschlag von kaho674 finde ich hier zum einen die Küche gelungener positioniert (eine Speisekammer scheint mir hier verzichtbar), und die Abgrenzung Allraum / Flur besser als ganz offen.
 
Z

zizzi

Moin, ich freue mich für euch wegen Erschließung und die Möglichkeit für weitere Schritte.
Ich finde es sinnvoll, wenn das Kindbett von den beiden Seiten erreichbar wäre.
Therapieraum im Haus finde ich eher unpraktisch. Wenn Therapie irgendwann mal zu Hause statt finden soll, würde ich das Kinderzimmer als Therapie nutzen, für Kind ist auch so angenehmer.
Ich habe mittlerweile ein Haus mit installierte Deckenlifter besichtigt und mit unserer Sanitär.h. mich kurz informiert. Ich werde aber nachher noch mal ausführlich für konkrete Planung damit beschäftigt sein.
Als PN werde ich gleich paar Fotos senden.
 
kaho674

kaho674

Ich meine es eher so:
eine Speisekammer scheint mir hier verzichtbar
Ah, ja auch nicht schlecht. Wobei ich die Tür zum Flur nur als Durchgang lassen würde. Mit Rollstuhl hat man sicher so schon genug zu tun. Da brauchts keine 2 Türen hintereinander, denke ich. Flur wird dadurch allerdings sehr viel dunkler, was ich persönlich nicht so mag.

Speisekammer würde ich in dem Fall auch nicht machen, war nur Option, da der Wunsch nach mehr Abstellfläche kam.
Wird das mit dem Esstisch auch nicht zu eng? Ich hab mal den Tisch so rein gemalt, aber der ist eher klein oder? (Küchenzeile /-teile mangels Zeichenprogramm einfach breitgemacht - Anordnung natürlich anders.)


Grundriss eines Einfamilienhauses: Wohnzimmer, Küche, Schlafzimmer, Kinderzimmer, Bad, Garage.
 
A

Anitra

Wow, ich bin begeistert von euren guten Rückmeldungen!
Habe leider gerade keine Zeit ausführlich zu antworten, daher nur kurz auf die Schnelle:
Garagenposition ist leider zwingend vorgeschrieben. Wohnzimmer und Küche getauscht gefällt mir gut.
Therapieraum können wir keinen machen. Sind eh schon über 220qm...

Den Rest schreibe ich später in Ruhe

Danke euch allen!
 
11ant

11ant

Wobei ich die Tür zum Flur nur als Durchgang lassen würde.
Na ja, man will vielleicht auch mal ins Bad, aber nicht durch das Blickfeld der Frühstückenden. Oder nachts nicht alle Hausgeräusche überall haben.

Therapieraum können wir keinen machen.
Was davon zuhause geschieht, wird wohl entweder im Zimmer des Kindes oder als Teil des Familienlebens im Wohnbereich stattfinden. Auch Teilhabe am "normalen Leben" ist Therapie
 
Zuletzt aktualisiert 25.11.2025
Im Forum Grundrissplanung / Grundstücksplanung gibt es 2536 Themen mit insgesamt 88016 Beiträgen


Ähnliche Themen zu Grundrissplanung mit einigen Anforderungen - Ideen?
Nr.ErgebnisBeiträge
1Einteilung Grundriss Allraum Küche Wohnen Essen - Seite 358
2Fliesen oder Vinyl in Küche und Flur 19
3LED-Einbaulampen in Allraum Küche, Wohn- und Essbereich 17
4Speisekammer vs. größere Küche vs. Hauswirtschaftsraum 13
5Grundriss: Speisekammer oder größere Küche? Erfahrungen? - Seite 314
6Grundriss: Planung Türen Wohnraum + Speisekammer 17
7Einfamilienhaus für 4 Personen - Meinungen - Seite 16250
8Wohnen/Essen/Küche: Wie wohnt ihr oder werdet ihr wohnen? - Seite 852
9Beleuchtung in Diele und Küche: Deckeneinbau-Strahler benötigt? - Seite 219
10Grundriss Einfamilienhaus - Problemfall Küche 20
11Türanschlag zum Wohn/-Essbereich und Beleuchtung Küche 13
12Welcher Bodenbelag im Eingang/Flur? Wer hat Erfahrungen? Bilder? 14
13Grundrissplanung: Flur im EG breit genug? 57
14Standort Küche und Wohnzimmer 55
15Heizung in Küche "notwendig"? - Seite 635
16Flur und Wohn-/Essbereich selben Bodenbelag? - Seite 350
17Grundriss Zugang von Küche in Speis / Abstellraum - Seite 329
18Offene Küche bereut oder doch das Non plus Ultra? - Seite 10104
19Flur-Grundriss vergrößern REH von 1921: Tipps? - Seite 227
20Küche: geschlossen oder offen? Welche Raumaufteilung? 86

Oben