ᐅ Grundrissplanung für unser Einfamilienhaus Einfamilienhaus in SH
Erstellt am: 21.08.18 17:54
O
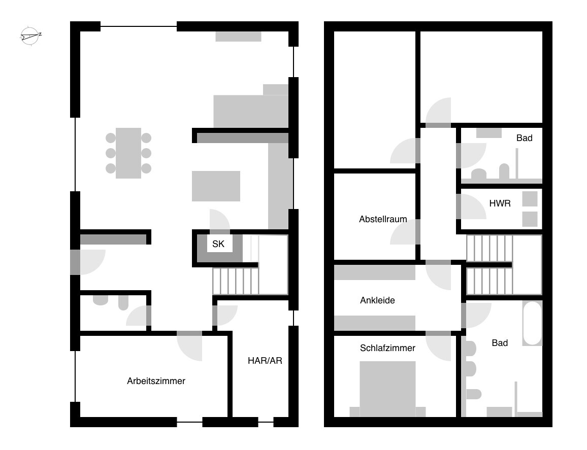
opalauDas Wohnhaus in der Muhl hat bei näherer Betrachtung wirklich einige interessante Ideen drin. Die Sichtachsen brauchen mir zu viel Verkehrsfläche, aber in Hinblick auf die Tanzfläche im Wohn-Ess-Bereich habe ich mal ein wenig geklaut. (OG ist quasi gleich geblieben)
Die Speisekammer ist jetzt wirklich nur das, der HAR jetzt auch AR. Die Küche wurde etwas kleiner, dafür bleibt mehr Raum im Rest vom Raum. Mal drüber schlafen.
(Die Kinderbadentwässerung wäre sicher eine Herausforderung, das war's aber wohl für's Elternbad in der Muhl auch)

Die Speisekammer ist jetzt wirklich nur das, der HAR jetzt auch AR. Die Küche wurde etwas kleiner, dafür bleibt mehr Raum im Rest vom Raum. Mal drüber schlafen.
(Die Kinderbadentwässerung wäre sicher eine Herausforderung, das war's aber wohl für's Elternbad in der Muhl auch)
opalau schrieb:
Die Sichtachsen brauchen mir zu viel Verkehrsfläche,Ich lasse meine Blicke lieber schweifen, als sie auf eine Kegelbahn zu schicken.Nicht, daß ich in der Diskussion keinen Qualitätsgewinn sähe, aber: ich habe den Eindruck, die schiere Anzahl der durchgespielten Variationen potenziert sich noch stärker. Wobei ich im Seitenwechsel des Eingangs noch am ehesten eine wirklich wesentliche Änderung sehe.
Nach meinem Empfinden war bereits der Ausgangsentwurf schon nur um die Veredelungsstufe "Architektengespräch" von der "finalen Vorentwurfsreife" entfernt. Schon was ich daran anders gemacht hätte, lag eher auf dem Gebiet der verschiedenen Geschmäcker als daß darin Katastrophen eingebaut gewesen wären. Wenn es Dir dennoch Freude macht, ist es ja gut - aber manchmal kann ich Diejenigen gut verstehen, die erst nach gefallenen Würfeln ihr Bodenplattenbild präsentieren. Mancher Entwurf wird hier m.E. auch unnötig pürriert.
https://www.instagram.com/11antgmxde/
https://www.linkedin.com/company/bauen-jetzt/
Otus11 schrieb:
** Baumann & Dürr, Wohnhaus in der Muhl, HomburgNa das sieht wirklich schick aus! Würd ich direkt nehmen! Ob Sichtachsen soviel Verkehrsfläche benötigen? Unser Architekt hat sehr darauf geachtet, aber mir kommt es nicht so vor, als wenn deshalb mehr Fläche benötigt wurden.
Mir gefallen die letzten Grundrisse schon wirklich gut. Sucht Euch einen pfiffigen Architekten, der holt noch mal das letzte Quäntchen aus einem Grundriss raus. Sieht nach meiner Meinung nicht so aus, als wenn die ersten Ideen noch arg verschandelt werden können Das ist doch ein super Ausgangspunkt!
Also das Wohnzimmer würde ich auch in dieser Form anstreben.
Es hakt hier und da noch ein wenig. Die Speisekammer ist jetzt ziemlich klein und verursacht diese Kante im Flur. Grenzwertig - auf jeden Fall nicht so richtig traumhausgerecht. Die Kücheninsel steht wieder verkehrt herum wegen Platzmangel - braucht Ihr die vielen Schränke? Seid Ihr große Köche? Oder könnte sie auch an eine Wand?
Wenn Ihr nur ein Carport baut, wäre es doch angenehmer, den Eingang neben dem Auto zu haben, als 1x ums Haus zu müssen. Das ist zwar kein Drama aber wäre nice to have.
Der Hauswirtschaftsraum oben ist ziemlich schmal. Wenn da nur die Waschmaschine drin steht, ok. Allerdings frage ich mich, was Du in der Abstellkammer alles unterbringen willst und ob die Waschmaschine dort nicht mit rein könnte? So eine Art Wäschelegeplatz mit Bügelbrett und großen Schränken für die Taucherausrüstung + Weihnachtsdeko o.ä.
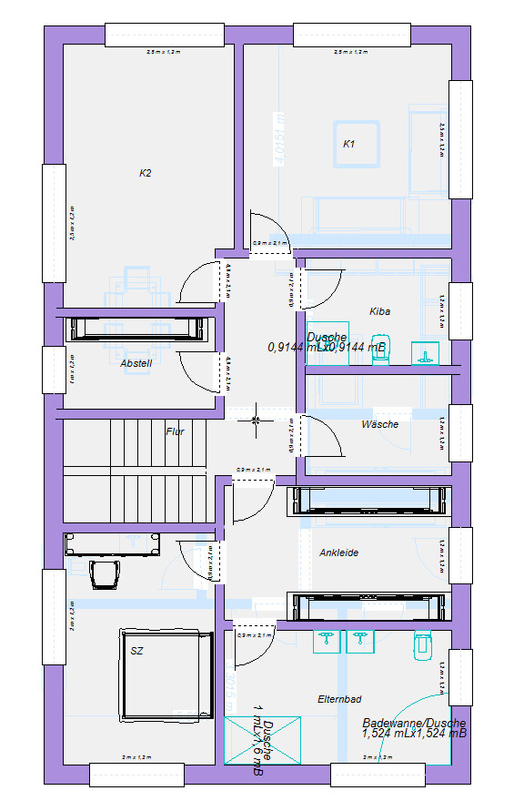
Nochmal ein Ansatz mit einer etwas schmaleren Küche (3,50m). Damit rückt die Treppe etwas Richtung Garten und schafft im OG eine wunderbar große Ankleide und Schlafzimmer mit Ausblick. Im EG kommen Büro, WC, Speisekammer und Windfang gut unter (man sollte die Speisekammer unter der Treppe nicht zum Zwang werden lassen, damit kann man sich auch den Blick für Alternativen vernebeln).
Eingang rechts.

Es hakt hier und da noch ein wenig. Die Speisekammer ist jetzt ziemlich klein und verursacht diese Kante im Flur. Grenzwertig - auf jeden Fall nicht so richtig traumhausgerecht. Die Kücheninsel steht wieder verkehrt herum wegen Platzmangel - braucht Ihr die vielen Schränke? Seid Ihr große Köche? Oder könnte sie auch an eine Wand?
Wenn Ihr nur ein Carport baut, wäre es doch angenehmer, den Eingang neben dem Auto zu haben, als 1x ums Haus zu müssen. Das ist zwar kein Drama aber wäre nice to have.
Der Hauswirtschaftsraum oben ist ziemlich schmal. Wenn da nur die Waschmaschine drin steht, ok. Allerdings frage ich mich, was Du in der Abstellkammer alles unterbringen willst und ob die Waschmaschine dort nicht mit rein könnte? So eine Art Wäschelegeplatz mit Bügelbrett und großen Schränken für die Taucherausrüstung + Weihnachtsdeko o.ä.
Nochmal ein Ansatz mit einer etwas schmaleren Küche (3,50m). Damit rückt die Treppe etwas Richtung Garten und schafft im OG eine wunderbar große Ankleide und Schlafzimmer mit Ausblick. Im EG kommen Büro, WC, Speisekammer und Windfang gut unter (man sollte die Speisekammer unter der Treppe nicht zum Zwang werden lassen, damit kann man sich auch den Blick für Alternativen vernebeln).
Eingang rechts.
@11ant , @Wickie Das freut mich ja schon mal zu hören. Es ist beruhigend zu wissen, dass wir aktuell nichts Kapitales übersehen. Ich denke im Grund sind wir an einem Punkt, wo vieles fest steht und sich ja auch zwischen Entwürfen wenig ändert (fast das ganze OG, grobe Verteilung im EG). Letztendlich macht es gerade auch Spaß noch mal ein wenig zu experimentieren.
@kaho674 Die Speisekammer ist in der Tat nicht ideal. Magst du erklären, inwiefern eine Kücheninsel falsch rum sein kann? Das gefiel mir jetzt nicht schlecht (War auch in der Muhl geklaut)
Da das Carport verlängert am Haus einen Schuppen erhalten soll (6x6+3x3m, s. Lageplan auf der 1. Seite) ist es mit dem Hauseingang planrechts schwer. Aber auch nur mit Carport müsste man sich zwischen den Autos durchzwängen. Ich möchte das Haus nicht daran ausrichten, aber dennoch würde ich aktuell beim Eingang planlinks bleiben.
@kaho674 Die Speisekammer ist in der Tat nicht ideal. Magst du erklären, inwiefern eine Kücheninsel falsch rum sein kann? Das gefiel mir jetzt nicht schlecht (War auch in der Muhl geklaut)
Da das Carport verlängert am Haus einen Schuppen erhalten soll (6x6+3x3m, s. Lageplan auf der 1. Seite) ist es mit dem Hauseingang planrechts schwer. Aber auch nur mit Carport müsste man sich zwischen den Autos durchzwängen. Ich möchte das Haus nicht daran ausrichten, aber dennoch würde ich aktuell beim Eingang planlinks bleiben.
Wickie schrieb:
Ob Sichtachsen soviel Verkehrsfläche benötigen?Wenn ich den Seeblick vom Sofa aus habe, genügt mir das - ich muß nicht die Wohnzimmertür so anordnen, daß ich den Seeblick schon acht Meter vorher genießen kann, sobald ich zur Haustür hereinkomme. Man kann alles treiben und übertreiben. Wobei ich persönlich da recht schmerzfrei bin: wenn ich den Blick vom Gemüseschnippeln hebe, darf da gerne eine Fototapete mit der Tür zur Speisekammer dahinter sein opalau schrieb:
Ich denke im Grund sind wir an einem Punkt, wo vieles fest steht und sich ja auch zwischen Entwürfen wenig ändert (fast das ganze OG, grobe Verteilung im EG). Letztendlich macht es gerade auch Spaß noch mal ein wenig zu experimentieren.Dann vergiß´ mal nicht, aufzuhören, wenn es am schönsten ist. Danach geht es bergab, d.h. bald sind so viele Varianten zusammengekommen, daß sie sich noch auf der fünften Nachkommastelle unterscheiden - und dann beschleicht Dich die Angst, daß das Münzenwerfen (denn wenn es für die Streichmethode zum Lichten der Liste zu spät ist, "hilft" nur noch die) die Entscheidung auch "falsch" treffen könnte.Angesichts dessen, daß die "Filterstufe Architekt" ja noch kommt, würde ich so langsam ´mal die Diskussion schließen und ggf. auf ein Voting für die bestehenden Vorschläge 01 bis 88 umschwenken.
Mehr Substantielles sehe ich jetzt nicht mehr kommen können - auch wenn noch nicht jede Wand in jeder denkbaren Position einmal gezeichnet wurde.
https://www.instagram.com/11antgmxde/
https://www.linkedin.com/company/bauen-jetzt/
Ähnliche Themen