ᐅ Grundrissplanung für unser Einfamilienhaus Einfamilienhaus in SH
Erstellt am: 21.08.18 17:54
O
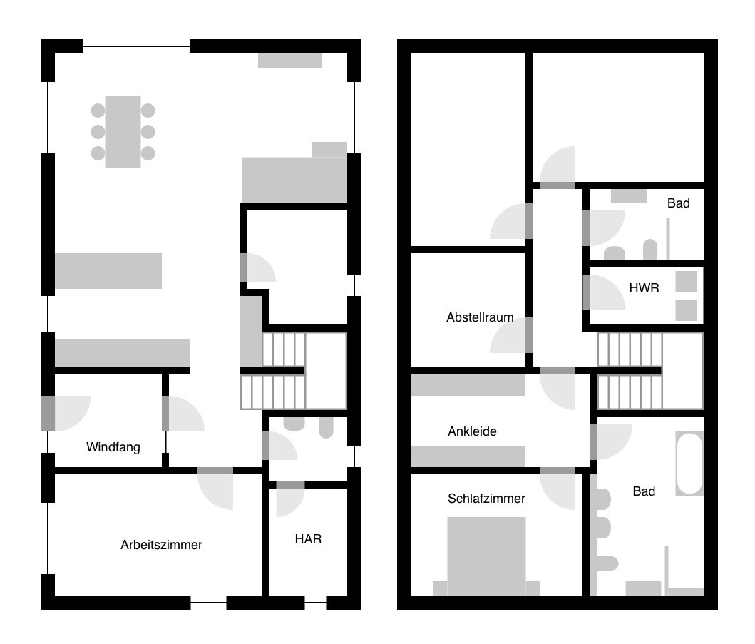
opalauIn der Zwischenzeit noch mal ein Entwurf, bei dem ich einiges von der vorherigen Version wieder rückgängig gemacht und neues versucht habe.

- Keine Trennwand mehr für das Wohnzimmer, dafür die Ecke etwas verkleinert, so dass die Ausrichtung der Möbel geändert werden kann.
- Küche wieder quer, weil's geht und weil wir uns ja geeinigt haben, dass es schöner ist
- Nische bei der "Speisekammer" um Platz für hohe Schrankzeilen mit Kühlschrank/Backofen zu schaffen
- Durch die Verschiebung der Treppe leicht nach planoben wird oben das Bad jetzt geradezu riesig. Frage mich ob's zu groß wird (ca. 3x5m)
- HAR erst mal weiterhin gefangen
- Das Kinderbad wieder in den Norden, zum einen wegen der Leitungsthematik, die über dem Esszimmer kaum zu lösen ist, vermute ich. Zum anderen weil so der Weg von den Kinderzimmern zu ihrem Bad schön kurz ist.
Auf jeden Fall eine Verbesserung. Ich würde die namenlose - ich nenns mal - "Rumpelkammer" noch ein klein wenig einkürzen zu Gunsten des Sofas.
Und dann kannst Du ja mal überlegen, ob Du den Abstell killst und dafür den lustigen Dreier einmal durchwirbelst: Kinderbad wird HAR (Trennung zum Hauswirtschaftsraum kicken, dann geht da noch ein Schrank rein, wo jetzt 2 Türen sind), Abstell wird Kinderbad, HAR kommt zum Arbeitszimmer.
WC unten länger und schmaler. Könnte klappen. Fehlt zwar dann ein Abstellraum, dafür Mega Arbeitszimmer für die Trapezschwünge zu zweit.
Und dann kannst Du ja mal überlegen, ob Du den Abstell killst und dafür den lustigen Dreier einmal durchwirbelst: Kinderbad wird HAR (Trennung zum Hauswirtschaftsraum kicken, dann geht da noch ein Schrank rein, wo jetzt 2 Türen sind), Abstell wird Kinderbad, HAR kommt zum Arbeitszimmer.
WC unten länger und schmaler. Könnte klappen. Fehlt zwar dann ein Abstellraum, dafür Mega Arbeitszimmer für die Trapezschwünge zu zweit.
Das WZ sollte auch nicht zu groß werden, damit der Abstand zum TV nicht ungemütlich/unpraktisch wird. Aktuell sind's 4,2m, das ist schon mehr als wir aktuell haben. Oder wir planen direkt mit einem größeren TV um das auszugleichen.
Rumpelkammer halte ich für Unterstellung! Trapezschwünge auch
Das durchwirbeln werde ich mal durchdenken und -testen. Da entsteht dann aber z.B. das Problem mit dem Kinderbad über der Küche und der damit verbundenen Leitungsführung.
So langsam mache ich mir Sorge um die Menge der Abstellfläche…
Rumpelkammer halte ich für Unterstellung! Trapezschwünge auch
Das durchwirbeln werde ich mal durchdenken und -testen. Da entsteht dann aber z.B. das Problem mit dem Kinderbad über der Küche und der damit verbundenen Leitungsführung.
So langsam mache ich mir Sorge um die Menge der Abstellfläche…
opalau schrieb:
Oder wir planen direkt mit einem größeren TV um das auszugleichen.Also die 4,20m sind ziemlich optimal. Aber größerer TV ist natürlich geiler. opalau schrieb:
Da entsteht dann aber z.B. das Problem mit dem Kinderbad über der Küche und der damit verbundenen Leitungsführung.In der Küche hat man sowieso Leitungen, wo's a bissl plätschert, wegen Spüle und Geschirrspüler. Da muss also eine Wand mit Rohren in Kauf genommen werden.opalau schrieb:
So langsam mache ich mir Sorge um die Menge der Abstellfläche…Ja, das war die Frage, ob man wirklich so viel Arbeitsraum braucht. Wenn ja, ok, ansonsten ist eine "Rumpelkammer" auch immer gut zu haben. opalau schrieb:
In der Zwischenzeit noch mal ein Entwurf, bei dem ich einiges von der vorherigen Version wieder rückgängig gemacht und neues versucht habe.
- Keine Trennwand mehr für das Wohnzimmer, dafür die Ecke etwas verkleinert, so dass die Ausrichtung der Möbel geändert werden kann.
- Küche wieder quer, weil's geht und weil wir uns ja geeinigt haben, dass es schöner ist
- Nische bei der "Speisekammer" um Platz für hohe Schrankzeilen mit Kühlschrank/Backofen zu schaffen
- Durch die Verschiebung der Treppe leicht nach planoben wird oben das Bad jetzt geradezu riesig. Frage mich ob's zu groß wird (ca. 3x5m)
- HAR erst mal weiterhin gefangen
- Das Kinderbad wieder in den Norden, zum einen wegen der Leitungsthematik, die über dem Esszimmer kaum zu lösen ist, vermute ich. Zum anderen weil so der Weg von den Kinderzimmern zu ihrem Bad schön kurz ist.
Ich würde hier das Schiebefenster planlinks neben dem Essplatz vergrößern; aber ansonsten finde ich den Entwurf am besten.
Climbee schrieb:
Ich würde hier das Schiebefenster planlinks neben dem Essplatz vergrößern; aber ansonsten finde ich den Entwurf am besten.Guter Hinweis. Fenster waren hier aber auch noch nicht wirklich geplant.
Ähnliche Themen