Ok, zweiter Eingang (DH) fällt preislich raus!
Eine Verlegung von Anschlüssen für eine zweite Küche finde ich völlig unverhältnismäßig, genauso wie das dritte Bad.
Was nicht ist, ist nicht. Man kann generell eh anzweifeln, dass Erwachsene Kinder gern bei den Eltern wohnen bleiben, und wenn es hier der Fall sein sollte, lebt man unter einem Dach und benutzt die Hausküche gemeinsam.
Wenn ihr schon von Problemen mit dem Hauswirtschaftsraum gehört habt, dann würde ich an Eurer Stelle das machen, was Euch am wenigstens Bauchschmerzen bereitet.
Zum OG setze ich mich heute Nachmittag mal ran
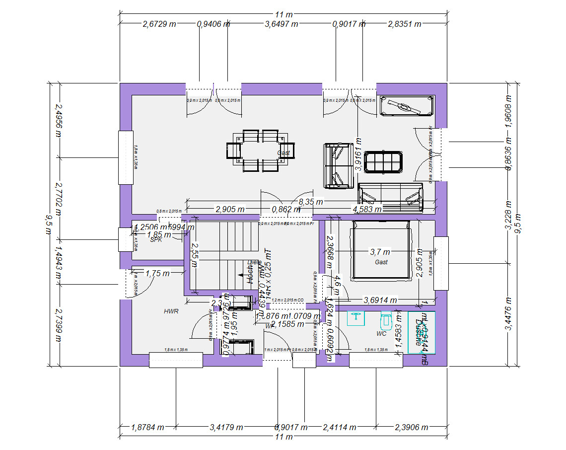
Edit: die Drehung von der Treppe gefällt mir gut.
Bei uns war es so, dass der BU unsere Treppe falsch herum eingezeichnet hat, und mir die Variante viel besser gefiel. Ähnlich bei uns wie bei Euch.
Kannst mal die Verlinkung zum Baublog folgen
Eine Verlegung von Anschlüssen für eine zweite Küche finde ich völlig unverhältnismäßig, genauso wie das dritte Bad.
Was nicht ist, ist nicht. Man kann generell eh anzweifeln, dass Erwachsene Kinder gern bei den Eltern wohnen bleiben, und wenn es hier der Fall sein sollte, lebt man unter einem Dach und benutzt die Hausküche gemeinsam.
Wenn ihr schon von Problemen mit dem Hauswirtschaftsraum gehört habt, dann würde ich an Eurer Stelle das machen, was Euch am wenigstens Bauchschmerzen bereitet.
Zum OG setze ich mich heute Nachmittag mal ran
Edit: die Drehung von der Treppe gefällt mir gut.
Bei uns war es so, dass der BU unsere Treppe falsch herum eingezeichnet hat, und mir die Variante viel besser gefiel. Ähnlich bei uns wie bei Euch.
Kannst mal die Verlinkung zum Baublog folgen
RobsonMKK schrieb:
Und zu dem Arbeitslosigkeit: woher nimmst du das? In einem Land das "quasi Vollbeschäftigung" hat finde ich solche Aussagen befremdlich. Dazu noch auf angesprochene Berufsgruppen. Wenn ein Facharbeiter in der heutigen Zeit keinen Job findet läuft irgendwas verkehrt. Ich kenne etliche Branchen wo einfach keine Leute da sind aber etliche freie Stellen.Beschäftigt und beschäftigt ist nich das gleiche - es werden immer mehr Stellen bei Neubesetzung mit befristeten Verträgen vergeben, das ist bonitätsmäßig eine andere "Klasse" und läßt eine Finanzierung schnell einmal neu bewerten. Ich bin mit einem Schuldnerberater befreundet und selbst ehrenamtlich auch für seinen Verein tätig. Die Mitglieder sind die berühmten sprichwörtlichen "ganz normalen Leute", von denen keiner mit dem Plastiklöffel geboren ist. Es stecken hinter mehr heilen Fassaden Geldsorgen als man vermuten würde. Wenn einer gerade liquide war als sein Nachbar klamm war, hat jetzt der eine zwei Häuser und beide werden nicht darüber reden. Nach außen fährt er weiterhin den Fünfer, und sie läßt ihre Nägel im Studio designen. Mitten unter uns, ob du es übersiehst oder nicht. Leider.
https://www.instagram.com/11antgmxde/
https://www.linkedin.com/company/bauen-jetzt/
Treppe)
Der Entwurf (wie in #26) mit der Treppe mit Antritt Richtung Wohnbereich und Austritt Richtung Haustür scheint mir im Grunde in Ordnung, allerdings wurde ich die Tur nicht in der rechten Hälfte öffnen lassen, mit dem Türblatt zum Gästezimmer hin, sondern in die linke Hälfte versetzt, wo man beim Betreten des Hauses dann in der Achse zur Wohnzimmertür schaut, anstatt der Treppe unter den Rock. Ansonsten vollzöge ich da die Kritik nur nach, wenn die Treppe in dieser Lage mit dem Antritt zur Tür orientiert wäre, aber da liegt ja der Austritt.
Kindereinliegerwohnung)
Nein, da meinte ich nicht, per Außentreppe einen zweiten Eingang ins OG zu legen - sondern eine Anlage des später abtrennbaren Bereiches nach unten.
Nebeneingang)
Einbruchsichere Außentüren kosten auch ohne Designspirenzchen großes Geld. Eine zweite Tür nur um wenige Meter Wasserkistenschlepperei zu sparen, kann da schnell mal die Grenze zwischen Komfort und Luxus überspringen.
Architekt)
Den freien Architekten würde ich bitten, die bestmögliche Vereinbarkeit von Wunsch-Flächenverteilung und Katalog-Grundrissplan zu suchen. Nachträglich ein Kataloghaus in ein Architektenhaus umzumodeln, ist eine Quadratur des Kreises Marke Sisyphos. Dabei kann ich Erfolg zwar wünschen, aber nicht daran glauben. Gleichzeitig in einem Rahmen bleiben UND 4/7 ändern muß m.E. ein frommer Wunsch bleiben.
https://www.instagram.com/11antgmxde/
https://www.linkedin.com/company/bauen-jetzt/
Der Entwurf (wie in #26) mit der Treppe mit Antritt Richtung Wohnbereich und Austritt Richtung Haustür scheint mir im Grunde in Ordnung, allerdings wurde ich die Tur nicht in der rechten Hälfte öffnen lassen, mit dem Türblatt zum Gästezimmer hin, sondern in die linke Hälfte versetzt, wo man beim Betreten des Hauses dann in der Achse zur Wohnzimmertür schaut, anstatt der Treppe unter den Rock. Ansonsten vollzöge ich da die Kritik nur nach, wenn die Treppe in dieser Lage mit dem Antritt zur Tür orientiert wäre, aber da liegt ja der Austritt.
Kindereinliegerwohnung)
Nein, da meinte ich nicht, per Außentreppe einen zweiten Eingang ins OG zu legen - sondern eine Anlage des später abtrennbaren Bereiches nach unten.
Nebeneingang)
Einbruchsichere Außentüren kosten auch ohne Designspirenzchen großes Geld. Eine zweite Tür nur um wenige Meter Wasserkistenschlepperei zu sparen, kann da schnell mal die Grenze zwischen Komfort und Luxus überspringen.
Architekt)
Den freien Architekten würde ich bitten, die bestmögliche Vereinbarkeit von Wunsch-Flächenverteilung und Katalog-Grundrissplan zu suchen. Nachträglich ein Kataloghaus in ein Architektenhaus umzumodeln, ist eine Quadratur des Kreises Marke Sisyphos. Dabei kann ich Erfolg zwar wünschen, aber nicht daran glauben. Gleichzeitig in einem Rahmen bleiben UND 4/7 ändern muß m.E. ein frommer Wunsch bleiben.
https://www.instagram.com/11antgmxde/
https://www.linkedin.com/company/bauen-jetzt/
Ich würde die Haustür einfach nur nach links verschieben. Die Drehrichtung gleich lassen. Es ist die Haustür. Die bleibt gewöhnlich nicht ständig offen stehen. Und wenn der Gast 5x im Jahr hinein will, dann kann man die Tür eventuell komplett rum klappen?
Ansonsten noch ein Denkanstoß mit halbgewendelt - ohne Anspruch auf Exaktheit und (bislang) ohne OG.


Ansonsten noch ein Denkanstoß mit halbgewendelt - ohne Anspruch auf Exaktheit und (bislang) ohne OG.
kaho674 schrieb:
Ich würde die Haustür einfach nur nach links verschieben. Die Drehrichtung gleich lassen.so meinte ich es auch.
https://www.instagram.com/11antgmxde/
https://www.linkedin.com/company/bauen-jetzt/
Ich kann mich nur immer wieder für die tollen Tipps und Anregungen bedanken! Ich komme mit dem Schreiben gar nicht hinterher.
@ypg
Hauswirtschaftsraum und WC getauscht: Wegen der Lautstärke frage ich einfach mal den Planer am Dienstag. Wenn er da ausweicht, würde ich den Raum lieber wieder nach unten weit weg von der Küche legen wollen.
OG: Ich würde mich wahnsinnig freuen, wenn du da etwas zeichnen könntest!
Treppe und Baublog: Ihr habt ein superschickes Haus und auch eine tolle Treppe. Bei euch ist sie aber von der Diele aus nicht sichtbar. Ich werde mich im Blog weiter einlesen.
@11ant
Treppe: Ich müsste so etwas mal in einem echten Haus sehen. Umgedrehte Treppen finde ich im Netz leider nicht viele. Hier sind zwei, die ähnlich nah oder sogar direkt am Eingang sind.
Verschieben der Eingangstür: Gute Idee! Aber ob das dann so gut aussieht mit dem Anschlag, weiß ich nicht (ich habe mal ein Bild gemacht, den rechten Knauf einfach wegdenken). Oder ihr meintet etwas anderes. Ich werde beim Planungsgepräch nachfragen, was es so für weitere Möglichkeiten bei den Türen gibt. Die wollen ja immer noch was extra verkaufen. Mir gefällt auch die Variante mit den 2 Seitenteilen links und rechts. Damit wäre der Blick auf die Treppe auch etwas entschärft.
Einliegerwohnung: Ich glaube, dass sprengt dann den Rahmen. Aber ich habe noch eine etwas abwegige Idee: Im Kinderzimmer nach Süden hinaus könnte man ein Fenster bodentief machen (kostet nicht viel beim Bauunternehmen), oder gleich alle drei auf der Seite. Draußen würde dann später bei Bedarf einfach eine Wendeltreppe angebaut werden. Als kleine Erheiterung habe ich dafür ein Bild beigefügt.
Nebeneingang, Einbrauchschutz: Die Nebeneingangstür ist inklusive. Ich müsste dann "nur" noch den Einbruchschutz verbessern lassen und etwas an Geld drauflegen.
@kaho674
Vielen lieben Dank für den Grundriss und die Mühe!!! Er sieht sehr gut aus! Wir überlegen es uns, ob solch eine Treppenform besser ist und damit sich natürlich auch der Grundriss ändert. Allerdings weiß ich aus dem TM-Bauforum, dass solche Treppen beim Bauunternehmen einen nicht unerheblichen Mehrpreis kosten. Vielen Dank noch mal!
@Curly
Treppe zu nah am Eingang: Vielleicht verbessert sich die Sache, wenn die Tür weiter links aufgeht (siehe oben).
Küche: Wir hatten erst eine Küchenplanung hinter uns und sind gespannt, was die nächsten bringen. Ich könnte im Süden noch ein Fenster über der Spüle einplanen. Das würde vom Platz noch passen. An die Nordseite (planlinks) würde ich nur auf das Carport und die Autos schauen. Da wollte ich kein Fenster haben.
Wohnzimmer: Ich habe überlegt, ob man in die Nische noch etwas stellen könnte. Anbei sind zwei Beispiele (nur zu Verdeutlichung, die Objekte im Programm sind recht einfach), einer mit und einer ohne kleinen Gang dazwischen. So hätte man jede Menge Stauraum (3,70 m lange Wand) und würde auch näher am Fernseher sitzen. Oder ist das alles zu unpraktisch? Ich finde solche großen Wohnlandschaften zum Lümmeln gut.




@ypg
Hauswirtschaftsraum und WC getauscht: Wegen der Lautstärke frage ich einfach mal den Planer am Dienstag. Wenn er da ausweicht, würde ich den Raum lieber wieder nach unten weit weg von der Küche legen wollen.
OG: Ich würde mich wahnsinnig freuen, wenn du da etwas zeichnen könntest!
Treppe und Baublog: Ihr habt ein superschickes Haus und auch eine tolle Treppe. Bei euch ist sie aber von der Diele aus nicht sichtbar. Ich werde mich im Blog weiter einlesen.
@11ant
Treppe: Ich müsste so etwas mal in einem echten Haus sehen. Umgedrehte Treppen finde ich im Netz leider nicht viele. Hier sind zwei, die ähnlich nah oder sogar direkt am Eingang sind.
Verschieben der Eingangstür: Gute Idee! Aber ob das dann so gut aussieht mit dem Anschlag, weiß ich nicht (ich habe mal ein Bild gemacht, den rechten Knauf einfach wegdenken). Oder ihr meintet etwas anderes. Ich werde beim Planungsgepräch nachfragen, was es so für weitere Möglichkeiten bei den Türen gibt. Die wollen ja immer noch was extra verkaufen. Mir gefällt auch die Variante mit den 2 Seitenteilen links und rechts. Damit wäre der Blick auf die Treppe auch etwas entschärft.
Einliegerwohnung: Ich glaube, dass sprengt dann den Rahmen. Aber ich habe noch eine etwas abwegige Idee: Im Kinderzimmer nach Süden hinaus könnte man ein Fenster bodentief machen (kostet nicht viel beim Bauunternehmen), oder gleich alle drei auf der Seite. Draußen würde dann später bei Bedarf einfach eine Wendeltreppe angebaut werden. Als kleine Erheiterung habe ich dafür ein Bild beigefügt.
Nebeneingang, Einbrauchschutz: Die Nebeneingangstür ist inklusive. Ich müsste dann "nur" noch den Einbruchschutz verbessern lassen und etwas an Geld drauflegen.
@kaho674
Vielen lieben Dank für den Grundriss und die Mühe!!! Er sieht sehr gut aus! Wir überlegen es uns, ob solch eine Treppenform besser ist und damit sich natürlich auch der Grundriss ändert. Allerdings weiß ich aus dem TM-Bauforum, dass solche Treppen beim Bauunternehmen einen nicht unerheblichen Mehrpreis kosten. Vielen Dank noch mal!
@Curly
Treppe zu nah am Eingang: Vielleicht verbessert sich die Sache, wenn die Tür weiter links aufgeht (siehe oben).
Küche: Wir hatten erst eine Küchenplanung hinter uns und sind gespannt, was die nächsten bringen. Ich könnte im Süden noch ein Fenster über der Spüle einplanen. Das würde vom Platz noch passen. An die Nordseite (planlinks) würde ich nur auf das Carport und die Autos schauen. Da wollte ich kein Fenster haben.
Wohnzimmer: Ich habe überlegt, ob man in die Nische noch etwas stellen könnte. Anbei sind zwei Beispiele (nur zu Verdeutlichung, die Objekte im Programm sind recht einfach), einer mit und einer ohne kleinen Gang dazwischen. So hätte man jede Menge Stauraum (3,70 m lange Wand) und würde auch näher am Fernseher sitzen. Oder ist das alles zu unpraktisch? Ich finde solche großen Wohnlandschaften zum Lümmeln gut.
Ähnliche Themen