ᐅ Grundrissplanung Einfamilienhaus Massivholzbauweise 140qm in Niedersachsen
Erstellt am: 02.01.23 15:30
-
-LotteS-
Moin liebes Hausbau-Forum!
Nachfolgend einige Infos - nach bestem Wissen und Gewissen - zu unserem Hausbauprojekt...
Bebauungsplan/Einschränkungen
Größe des Grundstücks 576 qm - Flurstück 17/28 (siehe Liegenschaftskarte)
Hang nein - Grundstück hat nur wenige cm Höhenunterschied
Grundflächenzahl 0,3 = 172,8
Geschossflächenzahl nicht definiert
Baufenster, Baulinie und -grenze 24x24 Meter Grundstück = N-O-S-W 16x18x16x18 Baufenster
Randbebauung nein, Ausnahmen ggf. siehe nds. Bauverordnung
Anzahl Stellplatz nicht vorgeschrieben
Geschossigkeit eingeschossig
Dachform Sattel/Walm/Krüppelwalm 35-50 Grad Dachneigung
Stilrichtung klassisches Einfamilienhaus
Ausrichtung Firstrichtung vorgegeben = Firstlinie in West-Ost Richtung
Maximale Höhen/Begrenzungen TH 4,0 FH 8,5 Meter
weitere Vorgaben keine Ölheizung, 50% der Süddachfläche mit solarpflicht, keine Bebauung zwischen Haus und Strasse zugelassen (= kein Parkplatz ö.ä. im Vorgarten)
Das Grundstück ist gekauft und die Erschließungsarbeiten im Neubaugebiet bereits abgeschlossen (wir liegen sogar an der vorasphaltierten Strasse).
Anforderungen der Bauherren
Stilrichtung, Dachform, Gebäudetyp Holzhaus aus massiven Blockbohlen innen, Einblasdämmung und Aussenverschalung
Keller, Geschosse kein Keller - nur EG + OG
Anzahl der Personen, Alter drei im Alter von 36, 29 und fünfeinhalb Jahren
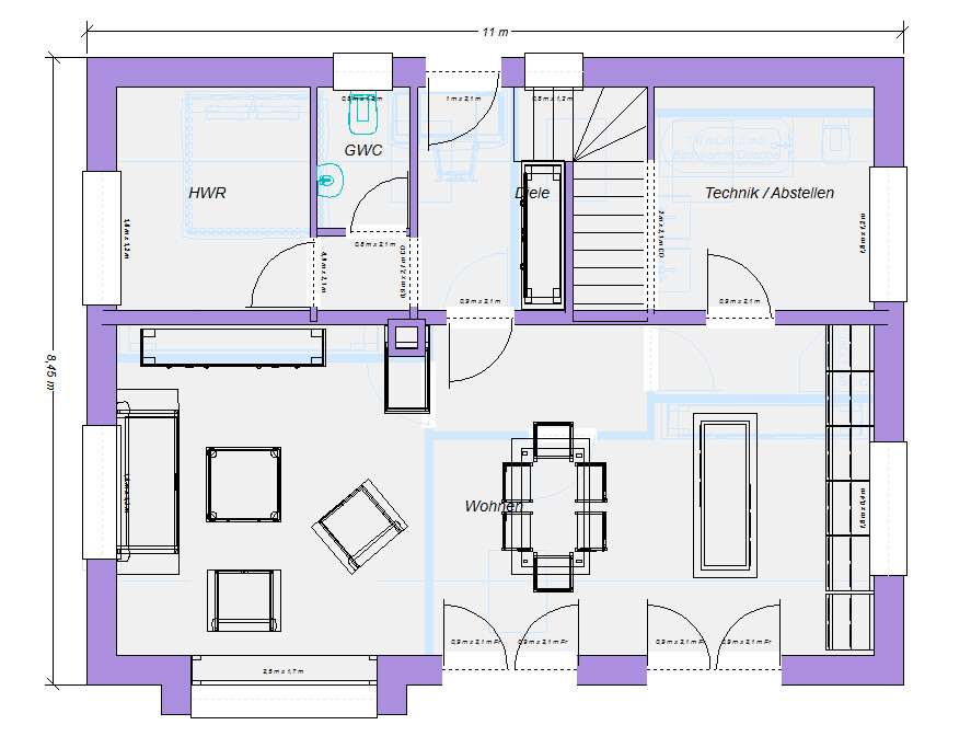
Raumbedarf im EG, OG Standard Einfamilienhaus mit 3 Schlafzimmern + Bad oben, unten offener Wohnbereich, Gäste-WC und grosser HAR/Hauswirtschaftsraum
Büro: Familiennutzung oder Homeoffice? Ein Zimmer aktuell als Buero/Gast nutzbar (Backup für Nachwuchs-Eventualitäten), wir haben derzeit beide keine Jobs mit Homeoffice-Option
offene oder geschlossene Architektur Wohn/Ess/Koch gerne offen
konservativ oder moderne Bauweise konservativ
offene Küche, Kochinsel offene Küche ja, Kochinsel aktuell nicht geplant
Anzahl Essplätze im Alltag 3, dürfte aber in der Essecke für genügend Leute ausreichen
Kamin geplant ist ein Grundofen
Musik/Stereowand nein
Balkon, Dachterrasse nein
Garage, Carport Carport mit Werkraum
Nutzgarten, Treibhaus nein
weitere Wünsche/Besonderheiten/Tagesablauf, gern auch Begründungen, warum dieses oder das nicht sein soll
Hausentwurf
Von wem stammt die Planung: Plan nach Grundsätzen von uns, dann mit dem angestellten Architekten des Herstellers optimiert
Was gefällt besonders? Warum? Die herausgezogene Essecke mit umlaufender Bank gefällt uns sehr gut, generell sind unsere Vorstellungen von Raumgrößen gut umgesetzt - ob das alles so sinnvoll ist, wie wir uns das ausmalen und vorstellen, würden wir hier gerne erfragen.
Was gefällt nicht? Warum? Die Position des Schornsteines könnte im Kinderzimmer störend sein? Oder ist das im Alltag zu vernachlässigen? Wir sind mit der Küche sowie dem Bad oben noch nicht zufrieden und sind gerade auf der Suche nach einer guten Loesung fuer die Moeblierung bzw Einrichtung dafuer
Preisschätzung lt Architekt/Planer: Da wir nicht mit einem GU arbeiten, sondern nach dem "Rohbau" selbst vergeben und viel in Eigenleistung machen, haben wir noch nicht alle Zahlen. Die aufbauenden Gewerke lassen wir uns derzeit durchrechnen.
Persönliches Preislimit fürs Haus, inkl. Ausstattung: 400.000 bis einzugsfertig, alles "draussen" außen vor gelassen, Grundstück ist bezahlt
favorisierte Heiztechnik: Wärmepumpe mit Fußbodenheizung sowie Photovoltaik mit ggf. Speicher
Wenn Ihr verzichten müsst, auf welche Details/Ausbauten
-könnt Ihr verzichten: Wir haben versucht, unsere Ansprüche dem Budget schon weitgehend anzupassen - sieht jemand noch Einsparpotential?
-könnt Ihr nicht verzichten: Als aller letztes würden wir, wenns sonst gar nicht ausgeht, die Essecke rausplanen und das EG neu planen - ausserdem ist der Grundofen bei uns gesetzt (wir lieben diese Gemütlichkeit einfach total)
Warum ist der Entwurf so geworden, wie er jetzt ist?
Standardentwurf vom Planer? Der Hersteller bietet keine Häuser von der Stange an, da ist alles individuell geplant
Entsprechende/Welche Wünsche wurden vom Architekten umgesetzt? Der aktuelle Plan ist nach unseren Wünschen schon ganz gut umgesetzt. Jetzt fehlt noch das Feintuning, bei dem wir auf eure Einschätzungen, Ideen und Erfahrungen hoffen.
Ein Gemisch aus vielen Beispielen aus div. Magazinen... Inspirationen haben wir uns natürlich aus allen möglichen Quellen geholt (gute und schlechte…) 😀
Was macht ihn in Euren Augen besonders gut oder schlecht? Für uns fühlt es sich bisher jedenfalls gut an - unsere möbel passen alle rein und die Dinge, die uns in unserem Mietshaus aktuell stören, sind im Entwurf alle abgestellt
Was ist die wichtigste/grundlegende Frage zum Grundriss in 130 Zeichen zusammengefasst?
- Funktioniert der Grundriss so, oder gibt es bestimmte Anordnungen, die Mist sind?
- Ist die Position und Anzahl der Fenster ausreichend?
- Benötigen wir im OG in den Kinderzimmern zwei Dachflächenfenster oder reicht jeweils eines?
- Haben wir irgendwas wichtiges vergessen/übersehen/nicht bedacht?
- Können wir grundsätzlich (ohne Detailplanung) eine Küche (umlaufend als U) im vorhandenen Raum sinnvoll planen, oder muessen wir im Vorfeld die Wände unten nochmal umplanen?
- Sind die Türen so gesetzt, dass es in Breite/Wandabstand/Anschlagsseite passt?
- Ist der HAR (nicht möblierter Raum hinter dem Hauswirtschaftsraum an der Nord/Ost Seite des EG) von den Dimensionen her ausreichend?
- Welcher Kniestock ist erfahrungsgemäss im OG sinnvoll? Aktuell stehen 40cm, die würden wir in jedem Fall aufstocken, da wir sonst spätestens im Badezimmer im OG große Probleme bekommen (allerdings wollen wir in unserem Bad auch keinen Tango tanzen, das darf gerne "so gross wie eben noetig" sein - wir wuerden vermutlich die Wanne lieber in die Nord-Ost Ecke des Raumes setzen - wuerde das dann so passen?)
- Wir würden noch einen Abwurfschacht vom Bad OG in den Hauswirtschaftsraum planen - hat da jemand eine Idee für eine gute Stelle?
Eine Anmerkung noch zu unserem generellen Konzept:
Wir würden vom Hersteller das Haus inkl. Dämmung, Verschalung und Dachaufbau kaufen. Der Aufbau erfolgt dann nach dem Prinzip der Richtmeistermontage (Die Firma stellt zwei erfahrene Leute, dazu kommen 4-5 Bauhelfer von uns - volle Garantie und Einsparungen im Bereich 15.000-20.000 Euro, ca drei bis vier Wochen harte Arbeit) Zusaetzlich sind im "Basispaket" des Herstellers Fenster und Haustuer mit drin, da diese aufgrund der Setzung des Hauses speziell eingebaut werden muessen.
Die Gewerke Bodenplatte, Dacheindeckung und Sanitaer wuerden wir vergeben wollen. Elektro (in Absprache mit dem oertlichen Elektromeister), Innenausbau (Zimmertueren, Estrich, Fußbodenheizung, Fußbodenbelag) und Kleinkram kann der Mann machen (gelernter Elektriker, sehr interessiert an fast allem, handwerklich begabt und erfahren mit Holz). Ich bin beruflich im Buero eines Baustoffhandels taetig, kann hier also auf gute Konditionen, Zwischenlagerkapazitaeten sowie gewachsene Kontakte in der Branche zurueck greifen. Ebenfalls haben wir tolle Freunde und eine grosse Familie, die alle Bock auf unser Projekt haben und uns gerne unterstuetzen wollen. Wir wissen, dass es sehr viel Arbeit fuer uns wird - Zeit, Nerven und das Budget stark beansprucht werden - aber wir wollen es dennoch gerne wagen.
Und nun freuen wir uns auf die Anregungen, kritischen Bemerkungen und alles, was uns dabei helfen kann, im Verlauf möglichst wenig Fehler zu machen
Ganz herzlichen Dank schonmal vorab!



Nachfolgend einige Infos - nach bestem Wissen und Gewissen - zu unserem Hausbauprojekt...
Bebauungsplan/Einschränkungen
Größe des Grundstücks 576 qm - Flurstück 17/28 (siehe Liegenschaftskarte)
Hang nein - Grundstück hat nur wenige cm Höhenunterschied
Grundflächenzahl 0,3 = 172,8
Geschossflächenzahl nicht definiert
Baufenster, Baulinie und -grenze 24x24 Meter Grundstück = N-O-S-W 16x18x16x18 Baufenster
Randbebauung nein, Ausnahmen ggf. siehe nds. Bauverordnung
Anzahl Stellplatz nicht vorgeschrieben
Geschossigkeit eingeschossig
Dachform Sattel/Walm/Krüppelwalm 35-50 Grad Dachneigung
Stilrichtung klassisches Einfamilienhaus
Ausrichtung Firstrichtung vorgegeben = Firstlinie in West-Ost Richtung
Maximale Höhen/Begrenzungen TH 4,0 FH 8,5 Meter
weitere Vorgaben keine Ölheizung, 50% der Süddachfläche mit solarpflicht, keine Bebauung zwischen Haus und Strasse zugelassen (= kein Parkplatz ö.ä. im Vorgarten)
Das Grundstück ist gekauft und die Erschließungsarbeiten im Neubaugebiet bereits abgeschlossen (wir liegen sogar an der vorasphaltierten Strasse).
Anforderungen der Bauherren
Stilrichtung, Dachform, Gebäudetyp Holzhaus aus massiven Blockbohlen innen, Einblasdämmung und Aussenverschalung
Keller, Geschosse kein Keller - nur EG + OG
Anzahl der Personen, Alter drei im Alter von 36, 29 und fünfeinhalb Jahren
Raumbedarf im EG, OG Standard Einfamilienhaus mit 3 Schlafzimmern + Bad oben, unten offener Wohnbereich, Gäste-WC und grosser HAR/Hauswirtschaftsraum
Büro: Familiennutzung oder Homeoffice? Ein Zimmer aktuell als Buero/Gast nutzbar (Backup für Nachwuchs-Eventualitäten), wir haben derzeit beide keine Jobs mit Homeoffice-Option
offene oder geschlossene Architektur Wohn/Ess/Koch gerne offen
konservativ oder moderne Bauweise konservativ
offene Küche, Kochinsel offene Küche ja, Kochinsel aktuell nicht geplant
Anzahl Essplätze im Alltag 3, dürfte aber in der Essecke für genügend Leute ausreichen
Kamin geplant ist ein Grundofen
Musik/Stereowand nein
Balkon, Dachterrasse nein
Garage, Carport Carport mit Werkraum
Nutzgarten, Treibhaus nein
weitere Wünsche/Besonderheiten/Tagesablauf, gern auch Begründungen, warum dieses oder das nicht sein soll
Hausentwurf
Von wem stammt die Planung: Plan nach Grundsätzen von uns, dann mit dem angestellten Architekten des Herstellers optimiert
Was gefällt besonders? Warum? Die herausgezogene Essecke mit umlaufender Bank gefällt uns sehr gut, generell sind unsere Vorstellungen von Raumgrößen gut umgesetzt - ob das alles so sinnvoll ist, wie wir uns das ausmalen und vorstellen, würden wir hier gerne erfragen.
Was gefällt nicht? Warum? Die Position des Schornsteines könnte im Kinderzimmer störend sein? Oder ist das im Alltag zu vernachlässigen? Wir sind mit der Küche sowie dem Bad oben noch nicht zufrieden und sind gerade auf der Suche nach einer guten Loesung fuer die Moeblierung bzw Einrichtung dafuer
Preisschätzung lt Architekt/Planer: Da wir nicht mit einem GU arbeiten, sondern nach dem "Rohbau" selbst vergeben und viel in Eigenleistung machen, haben wir noch nicht alle Zahlen. Die aufbauenden Gewerke lassen wir uns derzeit durchrechnen.
Persönliches Preislimit fürs Haus, inkl. Ausstattung: 400.000 bis einzugsfertig, alles "draussen" außen vor gelassen, Grundstück ist bezahlt
favorisierte Heiztechnik: Wärmepumpe mit Fußbodenheizung sowie Photovoltaik mit ggf. Speicher
Wenn Ihr verzichten müsst, auf welche Details/Ausbauten
-könnt Ihr verzichten: Wir haben versucht, unsere Ansprüche dem Budget schon weitgehend anzupassen - sieht jemand noch Einsparpotential?
-könnt Ihr nicht verzichten: Als aller letztes würden wir, wenns sonst gar nicht ausgeht, die Essecke rausplanen und das EG neu planen - ausserdem ist der Grundofen bei uns gesetzt (wir lieben diese Gemütlichkeit einfach total)
Warum ist der Entwurf so geworden, wie er jetzt ist?
Standardentwurf vom Planer? Der Hersteller bietet keine Häuser von der Stange an, da ist alles individuell geplant
Entsprechende/Welche Wünsche wurden vom Architekten umgesetzt? Der aktuelle Plan ist nach unseren Wünschen schon ganz gut umgesetzt. Jetzt fehlt noch das Feintuning, bei dem wir auf eure Einschätzungen, Ideen und Erfahrungen hoffen.
Ein Gemisch aus vielen Beispielen aus div. Magazinen... Inspirationen haben wir uns natürlich aus allen möglichen Quellen geholt (gute und schlechte…) 😀
Was macht ihn in Euren Augen besonders gut oder schlecht? Für uns fühlt es sich bisher jedenfalls gut an - unsere möbel passen alle rein und die Dinge, die uns in unserem Mietshaus aktuell stören, sind im Entwurf alle abgestellt
Was ist die wichtigste/grundlegende Frage zum Grundriss in 130 Zeichen zusammengefasst?
- Funktioniert der Grundriss so, oder gibt es bestimmte Anordnungen, die Mist sind?
- Ist die Position und Anzahl der Fenster ausreichend?
- Benötigen wir im OG in den Kinderzimmern zwei Dachflächenfenster oder reicht jeweils eines?
- Haben wir irgendwas wichtiges vergessen/übersehen/nicht bedacht?
- Können wir grundsätzlich (ohne Detailplanung) eine Küche (umlaufend als U) im vorhandenen Raum sinnvoll planen, oder muessen wir im Vorfeld die Wände unten nochmal umplanen?
- Sind die Türen so gesetzt, dass es in Breite/Wandabstand/Anschlagsseite passt?
- Ist der HAR (nicht möblierter Raum hinter dem Hauswirtschaftsraum an der Nord/Ost Seite des EG) von den Dimensionen her ausreichend?
- Welcher Kniestock ist erfahrungsgemäss im OG sinnvoll? Aktuell stehen 40cm, die würden wir in jedem Fall aufstocken, da wir sonst spätestens im Badezimmer im OG große Probleme bekommen (allerdings wollen wir in unserem Bad auch keinen Tango tanzen, das darf gerne "so gross wie eben noetig" sein - wir wuerden vermutlich die Wanne lieber in die Nord-Ost Ecke des Raumes setzen - wuerde das dann so passen?)
- Wir würden noch einen Abwurfschacht vom Bad OG in den Hauswirtschaftsraum planen - hat da jemand eine Idee für eine gute Stelle?
Eine Anmerkung noch zu unserem generellen Konzept:
Wir würden vom Hersteller das Haus inkl. Dämmung, Verschalung und Dachaufbau kaufen. Der Aufbau erfolgt dann nach dem Prinzip der Richtmeistermontage (Die Firma stellt zwei erfahrene Leute, dazu kommen 4-5 Bauhelfer von uns - volle Garantie und Einsparungen im Bereich 15.000-20.000 Euro, ca drei bis vier Wochen harte Arbeit) Zusaetzlich sind im "Basispaket" des Herstellers Fenster und Haustuer mit drin, da diese aufgrund der Setzung des Hauses speziell eingebaut werden muessen.
Die Gewerke Bodenplatte, Dacheindeckung und Sanitaer wuerden wir vergeben wollen. Elektro (in Absprache mit dem oertlichen Elektromeister), Innenausbau (Zimmertueren, Estrich, Fußbodenheizung, Fußbodenbelag) und Kleinkram kann der Mann machen (gelernter Elektriker, sehr interessiert an fast allem, handwerklich begabt und erfahren mit Holz). Ich bin beruflich im Buero eines Baustoffhandels taetig, kann hier also auf gute Konditionen, Zwischenlagerkapazitaeten sowie gewachsene Kontakte in der Branche zurueck greifen. Ebenfalls haben wir tolle Freunde und eine grosse Familie, die alle Bock auf unser Projekt haben und uns gerne unterstuetzen wollen. Wir wissen, dass es sehr viel Arbeit fuer uns wird - Zeit, Nerven und das Budget stark beansprucht werden - aber wir wollen es dennoch gerne wagen.
Und nun freuen wir uns auf die Anregungen, kritischen Bemerkungen und alles, was uns dabei helfen kann, im Verlauf möglichst wenig Fehler zu machen
Ganz herzlichen Dank schonmal vorab!
-LotteS- schrieb:
Die Form der Küche bzw die Einrichtung ist noch nicht fest. Hier sind auch Ideen mit L-Form und Arbeitsinsel dabei - da sind wir uns noch unsicher, wie man das am Besten lösen könnte. Ohne ein Verschieben der Essecke bekommen wir die Terrassentür aber auch nicht näher an die Küche - täten wir dies, wäre auch der Giebel in einem Kinderzimmer drin. Giebel mittig belassen über der Essecke fällt aufgrund der Konstruktion weg, das hatten wir ursprünglich mal geplant, dann aber verworfen, weil es leider kaum nutzbar für die Kinderzimmer wäre. Hast Du da vielleicht eine zündende Idee?
Bei dieser Hausgröße hat man kaum Spielraum für große Änderungen, ohne den gesamten Grundriss auszutauschen. Je knapper die Kiste wird, desto genauer muss man werden. Hier mal ein Vorschlag mit Kochinsel und Kapitänsgiebel im Kinderzimmer. Die Sitzecke fliegt raus, siehe dazu die Bemerkungen von @Climbee in #19. Dafür kommt ein Sitzfenster rein - die liegen voll im Trend (oder gibt's schon was Neues? 🙂). Aber, wie gesagt, das sind Laienskizzen, welche bei Blockbohlen möglicherweise nicht funktionieren. Da kenn ich mich leider nicht aus. Kniestock bei 1m angenommen - ich sehe nix, was dagegen spräche.
ypg schrieb:
Ich lese immer noch nichts vom Wunsch einer Insel.Siehe 2ter Satz im obigem Zitat aus #43.K a t j a schrieb:
Siehe 2ter Satz im obigem Zitat aus #43.hm… deshalb jetzt auf Krampf eine Insel bei gewünscht konservativ und altbacken… ich wüsste nicht, ob man Lotte da einen Gefallen macht, wenn man ihr Deinen oder meinen oder Mister DX Grschmacks aufstempelt 😕-LotteS- schrieb:
Hier die Gegebenheiten des Grundstückes mit dem Bebauungsplan und unserem Hauskörperplan zusammen zu bekommen, scheint nun also erstmal unsere allererste, wichtigste Hausaufgabe zu sein - sehe ich das richtig?richtig / siehe Skizze: diese Fertighöhe müßt Ihr in Erfahrung bringen.i_b_n_a_n schrieb:
Dann habe ich irgendwo gelesen das die Planung unbedingt im OG anzufangen hat, d.h. ich empfehle alles über den Haufen zu werfen und erst mal das Raumprogramm genauestens zu hinterfragen und aufzuschreiben.ypg schrieb:
ja, das hat @11ant mal vorgeschlagen. Ich mache es mittlerweile auch bei Reihen/Doppelhäusern und bei Treppenproblemen mit Dachschräge - ein sehr hilfreicher Tipp!Ich habe das Prinzip in einem Beitrag erläutert, der "Das Obergeschoss hat Vorrang" heißt, wobei die Überschrift freilich nur eine verkürzte Darstellung des Prinzips ist. Auf Hanggrundstücke sowie auf "Stadtvillen" mit Binderdächern ist es sinngemäß umzuinterpretieren. Absolut seiner Überschrift entsprechend gilt es vor allem bei solchen Eigenheimen mit der klassischen Aufteilung Wohn- und Eingangsgeschoss im Erdgeschoss, wenn auch das Obergeschoss tragende Wände enthält - andernfalls in mildererer Form (guckstdu bauen-jetzt). Die Planungsreihenfolge ist: 1. Raumprogramm erstellen; 2. Raumprogramm qualifizieren (= ungefähr in Quadratmetern gewichten); 3. Obergeschoss aufteilen; 4. Erdgeschoßaufteilung davon ableiten (Koordination von Treppe / Deckendurchbrüchen / Fallrohren). Am Ende von Schritt 2 verteilt sich die "Achslast" der Flächen von OG und EG prozentual im Sollverhältnis 50:50 ("Stadtvilla") bzw. rund 35:65 ("Anderthalbgeschösser" mit sinnvollem Kniestock, siehe weiterer Beitrag a.a.O.). Man erkennt also die Bedeutung der hinreichend genauen Klärung des konkreten Kniestockpotentials für das weitere Vorgehen vor dem "Ende" von Schritt 2. Eingeschossige Erker sowie Lufträume beeinflussen die "Rechnung" entsprechend.https://www.instagram.com/11antgmxde/
https://www.linkedin.com/company/bauen-jetzt/
ypg schrieb:
hm… deshalb jetzt auf Krampf eine Insel bei gewünscht konservativ und altbacken… ich wüsste nicht, ob man Lotte da einen Gefallen macht, wenn man ihr Deinen oder meinen oder Mister DX Grschmacks aufstempelt 😕Als krampfhaft würde ich das nicht beschreiben. TE fragt - TE kriegt Antwort, mehr nicht. Ich habe hier eher das Gefühl, dass der Zusammenhang zwischen Grundriss und möglicher möblierung noch nicht ganz klar ist. Wer altbacken wünscht, bekommt altbacken. Das muss nicht schlecht sein, nur darf man sich später nicht wundern, wenn im Küchenstudio keine der ausgestellten Insellösungen für dieses Haus in Frage kommen.
Ähnliche Themen