ᐅ Grundrissplanung Einfamilienhaus Massivholzbauweise 140qm in Niedersachsen
Erstellt am: 02.01.23 15:30
-
-LotteS-
Moin liebes Hausbau-Forum!
Nachfolgend einige Infos - nach bestem Wissen und Gewissen - zu unserem Hausbauprojekt...
Bebauungsplan/Einschränkungen
Größe des Grundstücks 576 qm - Flurstück 17/28 (siehe Liegenschaftskarte)
Hang nein - Grundstück hat nur wenige cm Höhenunterschied
Grundflächenzahl 0,3 = 172,8
Geschossflächenzahl nicht definiert
Baufenster, Baulinie und -grenze 24x24 Meter Grundstück = N-O-S-W 16x18x16x18 Baufenster
Randbebauung nein, Ausnahmen ggf. siehe nds. Bauverordnung
Anzahl Stellplatz nicht vorgeschrieben
Geschossigkeit eingeschossig
Dachform Sattel/Walm/Krüppelwalm 35-50 Grad Dachneigung
Stilrichtung klassisches Einfamilienhaus
Ausrichtung Firstrichtung vorgegeben = Firstlinie in West-Ost Richtung
Maximale Höhen/Begrenzungen TH 4,0 FH 8,5 Meter
weitere Vorgaben keine Ölheizung, 50% der Süddachfläche mit solarpflicht, keine Bebauung zwischen Haus und Strasse zugelassen (= kein Parkplatz ö.ä. im Vorgarten)
Das Grundstück ist gekauft und die Erschließungsarbeiten im Neubaugebiet bereits abgeschlossen (wir liegen sogar an der vorasphaltierten Strasse).
Anforderungen der Bauherren
Stilrichtung, Dachform, Gebäudetyp Holzhaus aus massiven Blockbohlen innen, Einblasdämmung und Aussenverschalung
Keller, Geschosse kein Keller - nur EG + OG
Anzahl der Personen, Alter drei im Alter von 36, 29 und fünfeinhalb Jahren
Raumbedarf im EG, OG Standard Einfamilienhaus mit 3 Schlafzimmern + Bad oben, unten offener Wohnbereich, Gäste-WC und grosser HAR/Hauswirtschaftsraum
Büro: Familiennutzung oder Homeoffice? Ein Zimmer aktuell als Buero/Gast nutzbar (Backup für Nachwuchs-Eventualitäten), wir haben derzeit beide keine Jobs mit Homeoffice-Option
offene oder geschlossene Architektur Wohn/Ess/Koch gerne offen
konservativ oder moderne Bauweise konservativ
offene Küche, Kochinsel offene Küche ja, Kochinsel aktuell nicht geplant
Anzahl Essplätze im Alltag 3, dürfte aber in der Essecke für genügend Leute ausreichen
Kamin geplant ist ein Grundofen
Musik/Stereowand nein
Balkon, Dachterrasse nein
Garage, Carport Carport mit Werkraum
Nutzgarten, Treibhaus nein
weitere Wünsche/Besonderheiten/Tagesablauf, gern auch Begründungen, warum dieses oder das nicht sein soll
Hausentwurf
Von wem stammt die Planung: Plan nach Grundsätzen von uns, dann mit dem angestellten Architekten des Herstellers optimiert
Was gefällt besonders? Warum? Die herausgezogene Essecke mit umlaufender Bank gefällt uns sehr gut, generell sind unsere Vorstellungen von Raumgrößen gut umgesetzt - ob das alles so sinnvoll ist, wie wir uns das ausmalen und vorstellen, würden wir hier gerne erfragen.
Was gefällt nicht? Warum? Die Position des Schornsteines könnte im Kinderzimmer störend sein? Oder ist das im Alltag zu vernachlässigen? Wir sind mit der Küche sowie dem Bad oben noch nicht zufrieden und sind gerade auf der Suche nach einer guten Loesung fuer die Moeblierung bzw Einrichtung dafuer
Preisschätzung lt Architekt/Planer: Da wir nicht mit einem GU arbeiten, sondern nach dem "Rohbau" selbst vergeben und viel in Eigenleistung machen, haben wir noch nicht alle Zahlen. Die aufbauenden Gewerke lassen wir uns derzeit durchrechnen.
Persönliches Preislimit fürs Haus, inkl. Ausstattung: 400.000 bis einzugsfertig, alles "draussen" außen vor gelassen, Grundstück ist bezahlt
favorisierte Heiztechnik: Wärmepumpe mit Fußbodenheizung sowie Photovoltaik mit ggf. Speicher
Wenn Ihr verzichten müsst, auf welche Details/Ausbauten
-könnt Ihr verzichten: Wir haben versucht, unsere Ansprüche dem Budget schon weitgehend anzupassen - sieht jemand noch Einsparpotential?
-könnt Ihr nicht verzichten: Als aller letztes würden wir, wenns sonst gar nicht ausgeht, die Essecke rausplanen und das EG neu planen - ausserdem ist der Grundofen bei uns gesetzt (wir lieben diese Gemütlichkeit einfach total)
Warum ist der Entwurf so geworden, wie er jetzt ist?
Standardentwurf vom Planer? Der Hersteller bietet keine Häuser von der Stange an, da ist alles individuell geplant
Entsprechende/Welche Wünsche wurden vom Architekten umgesetzt? Der aktuelle Plan ist nach unseren Wünschen schon ganz gut umgesetzt. Jetzt fehlt noch das Feintuning, bei dem wir auf eure Einschätzungen, Ideen und Erfahrungen hoffen.
Ein Gemisch aus vielen Beispielen aus div. Magazinen... Inspirationen haben wir uns natürlich aus allen möglichen Quellen geholt (gute und schlechte…) 😀
Was macht ihn in Euren Augen besonders gut oder schlecht? Für uns fühlt es sich bisher jedenfalls gut an - unsere möbel passen alle rein und die Dinge, die uns in unserem Mietshaus aktuell stören, sind im Entwurf alle abgestellt
Was ist die wichtigste/grundlegende Frage zum Grundriss in 130 Zeichen zusammengefasst?
- Funktioniert der Grundriss so, oder gibt es bestimmte Anordnungen, die Mist sind?
- Ist die Position und Anzahl der Fenster ausreichend?
- Benötigen wir im OG in den Kinderzimmern zwei Dachflächenfenster oder reicht jeweils eines?
- Haben wir irgendwas wichtiges vergessen/übersehen/nicht bedacht?
- Können wir grundsätzlich (ohne Detailplanung) eine Küche (umlaufend als U) im vorhandenen Raum sinnvoll planen, oder muessen wir im Vorfeld die Wände unten nochmal umplanen?
- Sind die Türen so gesetzt, dass es in Breite/Wandabstand/Anschlagsseite passt?
- Ist der HAR (nicht möblierter Raum hinter dem Hauswirtschaftsraum an der Nord/Ost Seite des EG) von den Dimensionen her ausreichend?
- Welcher Kniestock ist erfahrungsgemäss im OG sinnvoll? Aktuell stehen 40cm, die würden wir in jedem Fall aufstocken, da wir sonst spätestens im Badezimmer im OG große Probleme bekommen (allerdings wollen wir in unserem Bad auch keinen Tango tanzen, das darf gerne "so gross wie eben noetig" sein - wir wuerden vermutlich die Wanne lieber in die Nord-Ost Ecke des Raumes setzen - wuerde das dann so passen?)
- Wir würden noch einen Abwurfschacht vom Bad OG in den Hauswirtschaftsraum planen - hat da jemand eine Idee für eine gute Stelle?
Eine Anmerkung noch zu unserem generellen Konzept:
Wir würden vom Hersteller das Haus inkl. Dämmung, Verschalung und Dachaufbau kaufen. Der Aufbau erfolgt dann nach dem Prinzip der Richtmeistermontage (Die Firma stellt zwei erfahrene Leute, dazu kommen 4-5 Bauhelfer von uns - volle Garantie und Einsparungen im Bereich 15.000-20.000 Euro, ca drei bis vier Wochen harte Arbeit) Zusaetzlich sind im "Basispaket" des Herstellers Fenster und Haustuer mit drin, da diese aufgrund der Setzung des Hauses speziell eingebaut werden muessen.
Die Gewerke Bodenplatte, Dacheindeckung und Sanitaer wuerden wir vergeben wollen. Elektro (in Absprache mit dem oertlichen Elektromeister), Innenausbau (Zimmertueren, Estrich, Fußbodenheizung, Fußbodenbelag) und Kleinkram kann der Mann machen (gelernter Elektriker, sehr interessiert an fast allem, handwerklich begabt und erfahren mit Holz). Ich bin beruflich im Buero eines Baustoffhandels taetig, kann hier also auf gute Konditionen, Zwischenlagerkapazitaeten sowie gewachsene Kontakte in der Branche zurueck greifen. Ebenfalls haben wir tolle Freunde und eine grosse Familie, die alle Bock auf unser Projekt haben und uns gerne unterstuetzen wollen. Wir wissen, dass es sehr viel Arbeit fuer uns wird - Zeit, Nerven und das Budget stark beansprucht werden - aber wir wollen es dennoch gerne wagen.
Und nun freuen wir uns auf die Anregungen, kritischen Bemerkungen und alles, was uns dabei helfen kann, im Verlauf möglichst wenig Fehler zu machen
Ganz herzlichen Dank schonmal vorab!



Nachfolgend einige Infos - nach bestem Wissen und Gewissen - zu unserem Hausbauprojekt...
Bebauungsplan/Einschränkungen
Größe des Grundstücks 576 qm - Flurstück 17/28 (siehe Liegenschaftskarte)
Hang nein - Grundstück hat nur wenige cm Höhenunterschied
Grundflächenzahl 0,3 = 172,8
Geschossflächenzahl nicht definiert
Baufenster, Baulinie und -grenze 24x24 Meter Grundstück = N-O-S-W 16x18x16x18 Baufenster
Randbebauung nein, Ausnahmen ggf. siehe nds. Bauverordnung
Anzahl Stellplatz nicht vorgeschrieben
Geschossigkeit eingeschossig
Dachform Sattel/Walm/Krüppelwalm 35-50 Grad Dachneigung
Stilrichtung klassisches Einfamilienhaus
Ausrichtung Firstrichtung vorgegeben = Firstlinie in West-Ost Richtung
Maximale Höhen/Begrenzungen TH 4,0 FH 8,5 Meter
weitere Vorgaben keine Ölheizung, 50% der Süddachfläche mit solarpflicht, keine Bebauung zwischen Haus und Strasse zugelassen (= kein Parkplatz ö.ä. im Vorgarten)
Das Grundstück ist gekauft und die Erschließungsarbeiten im Neubaugebiet bereits abgeschlossen (wir liegen sogar an der vorasphaltierten Strasse).
Anforderungen der Bauherren
Stilrichtung, Dachform, Gebäudetyp Holzhaus aus massiven Blockbohlen innen, Einblasdämmung und Aussenverschalung
Keller, Geschosse kein Keller - nur EG + OG
Anzahl der Personen, Alter drei im Alter von 36, 29 und fünfeinhalb Jahren
Raumbedarf im EG, OG Standard Einfamilienhaus mit 3 Schlafzimmern + Bad oben, unten offener Wohnbereich, Gäste-WC und grosser HAR/Hauswirtschaftsraum
Büro: Familiennutzung oder Homeoffice? Ein Zimmer aktuell als Buero/Gast nutzbar (Backup für Nachwuchs-Eventualitäten), wir haben derzeit beide keine Jobs mit Homeoffice-Option
offene oder geschlossene Architektur Wohn/Ess/Koch gerne offen
konservativ oder moderne Bauweise konservativ
offene Küche, Kochinsel offene Küche ja, Kochinsel aktuell nicht geplant
Anzahl Essplätze im Alltag 3, dürfte aber in der Essecke für genügend Leute ausreichen
Kamin geplant ist ein Grundofen
Musik/Stereowand nein
Balkon, Dachterrasse nein
Garage, Carport Carport mit Werkraum
Nutzgarten, Treibhaus nein
weitere Wünsche/Besonderheiten/Tagesablauf, gern auch Begründungen, warum dieses oder das nicht sein soll
Hausentwurf
Von wem stammt die Planung: Plan nach Grundsätzen von uns, dann mit dem angestellten Architekten des Herstellers optimiert
Was gefällt besonders? Warum? Die herausgezogene Essecke mit umlaufender Bank gefällt uns sehr gut, generell sind unsere Vorstellungen von Raumgrößen gut umgesetzt - ob das alles so sinnvoll ist, wie wir uns das ausmalen und vorstellen, würden wir hier gerne erfragen.
Was gefällt nicht? Warum? Die Position des Schornsteines könnte im Kinderzimmer störend sein? Oder ist das im Alltag zu vernachlässigen? Wir sind mit der Küche sowie dem Bad oben noch nicht zufrieden und sind gerade auf der Suche nach einer guten Loesung fuer die Moeblierung bzw Einrichtung dafuer
Preisschätzung lt Architekt/Planer: Da wir nicht mit einem GU arbeiten, sondern nach dem "Rohbau" selbst vergeben und viel in Eigenleistung machen, haben wir noch nicht alle Zahlen. Die aufbauenden Gewerke lassen wir uns derzeit durchrechnen.
Persönliches Preislimit fürs Haus, inkl. Ausstattung: 400.000 bis einzugsfertig, alles "draussen" außen vor gelassen, Grundstück ist bezahlt
favorisierte Heiztechnik: Wärmepumpe mit Fußbodenheizung sowie Photovoltaik mit ggf. Speicher
Wenn Ihr verzichten müsst, auf welche Details/Ausbauten
-könnt Ihr verzichten: Wir haben versucht, unsere Ansprüche dem Budget schon weitgehend anzupassen - sieht jemand noch Einsparpotential?
-könnt Ihr nicht verzichten: Als aller letztes würden wir, wenns sonst gar nicht ausgeht, die Essecke rausplanen und das EG neu planen - ausserdem ist der Grundofen bei uns gesetzt (wir lieben diese Gemütlichkeit einfach total)
Warum ist der Entwurf so geworden, wie er jetzt ist?
Standardentwurf vom Planer? Der Hersteller bietet keine Häuser von der Stange an, da ist alles individuell geplant
Entsprechende/Welche Wünsche wurden vom Architekten umgesetzt? Der aktuelle Plan ist nach unseren Wünschen schon ganz gut umgesetzt. Jetzt fehlt noch das Feintuning, bei dem wir auf eure Einschätzungen, Ideen und Erfahrungen hoffen.
Ein Gemisch aus vielen Beispielen aus div. Magazinen... Inspirationen haben wir uns natürlich aus allen möglichen Quellen geholt (gute und schlechte…) 😀
Was macht ihn in Euren Augen besonders gut oder schlecht? Für uns fühlt es sich bisher jedenfalls gut an - unsere möbel passen alle rein und die Dinge, die uns in unserem Mietshaus aktuell stören, sind im Entwurf alle abgestellt
Was ist die wichtigste/grundlegende Frage zum Grundriss in 130 Zeichen zusammengefasst?
- Funktioniert der Grundriss so, oder gibt es bestimmte Anordnungen, die Mist sind?
- Ist die Position und Anzahl der Fenster ausreichend?
- Benötigen wir im OG in den Kinderzimmern zwei Dachflächenfenster oder reicht jeweils eines?
- Haben wir irgendwas wichtiges vergessen/übersehen/nicht bedacht?
- Können wir grundsätzlich (ohne Detailplanung) eine Küche (umlaufend als U) im vorhandenen Raum sinnvoll planen, oder muessen wir im Vorfeld die Wände unten nochmal umplanen?
- Sind die Türen so gesetzt, dass es in Breite/Wandabstand/Anschlagsseite passt?
- Ist der HAR (nicht möblierter Raum hinter dem Hauswirtschaftsraum an der Nord/Ost Seite des EG) von den Dimensionen her ausreichend?
- Welcher Kniestock ist erfahrungsgemäss im OG sinnvoll? Aktuell stehen 40cm, die würden wir in jedem Fall aufstocken, da wir sonst spätestens im Badezimmer im OG große Probleme bekommen (allerdings wollen wir in unserem Bad auch keinen Tango tanzen, das darf gerne "so gross wie eben noetig" sein - wir wuerden vermutlich die Wanne lieber in die Nord-Ost Ecke des Raumes setzen - wuerde das dann so passen?)
- Wir würden noch einen Abwurfschacht vom Bad OG in den Hauswirtschaftsraum planen - hat da jemand eine Idee für eine gute Stelle?
Eine Anmerkung noch zu unserem generellen Konzept:
Wir würden vom Hersteller das Haus inkl. Dämmung, Verschalung und Dachaufbau kaufen. Der Aufbau erfolgt dann nach dem Prinzip der Richtmeistermontage (Die Firma stellt zwei erfahrene Leute, dazu kommen 4-5 Bauhelfer von uns - volle Garantie und Einsparungen im Bereich 15.000-20.000 Euro, ca drei bis vier Wochen harte Arbeit) Zusaetzlich sind im "Basispaket" des Herstellers Fenster und Haustuer mit drin, da diese aufgrund der Setzung des Hauses speziell eingebaut werden muessen.
Die Gewerke Bodenplatte, Dacheindeckung und Sanitaer wuerden wir vergeben wollen. Elektro (in Absprache mit dem oertlichen Elektromeister), Innenausbau (Zimmertueren, Estrich, Fußbodenheizung, Fußbodenbelag) und Kleinkram kann der Mann machen (gelernter Elektriker, sehr interessiert an fast allem, handwerklich begabt und erfahren mit Holz). Ich bin beruflich im Buero eines Baustoffhandels taetig, kann hier also auf gute Konditionen, Zwischenlagerkapazitaeten sowie gewachsene Kontakte in der Branche zurueck greifen. Ebenfalls haben wir tolle Freunde und eine grosse Familie, die alle Bock auf unser Projekt haben und uns gerne unterstuetzen wollen. Wir wissen, dass es sehr viel Arbeit fuer uns wird - Zeit, Nerven und das Budget stark beansprucht werden - aber wir wollen es dennoch gerne wagen.
Und nun freuen wir uns auf die Anregungen, kritischen Bemerkungen und alles, was uns dabei helfen kann, im Verlauf möglichst wenig Fehler zu machen
Ganz herzlichen Dank schonmal vorab!
N
neo-sciliar26.02.23 13:31Ökologie hin, Ökologie her (wer sich mit dem Öko-Thema beim Bauen beschäftigt, der wird schnell über den Wandaufbau hinaus auf ganz andere Themen stoßen). Mir ging es tatsächlich um das Thema Bauphysik und die Erfahrungen, die ich machen durfte. @WilderSueden
Nachteilig beim beschriebenen Wandaufbau in meinen Augen ist u.a.:
- die Wand setzt sich und dehnt sich auch wieder aus. Das ist technisch realisierbar mittels Platz über Türen und Fenstern, entspricht aber nicht meinem Geschmack. Tatsächlich habe ich das Thema nie hinsichtlich der Dämmwerte überdacht (was ist in den Lücken, wenn dich das Holz gesetzt hat??)
- die Ecken sind bei dem Wandaufbau kaum winddicht zu bekommen.
- Steckdosen in den Außenwänden dürften keine vorkommen, vermute ich
- eine Installationsebene würde ich mir auch wünschen.
- fehlende Branddämmung wird später der Versicherer ordentlich beaufschlagen
Das ist das, was mir spontan einfällt.
Nachteilig beim beschriebenen Wandaufbau in meinen Augen ist u.a.:
- die Wand setzt sich und dehnt sich auch wieder aus. Das ist technisch realisierbar mittels Platz über Türen und Fenstern, entspricht aber nicht meinem Geschmack. Tatsächlich habe ich das Thema nie hinsichtlich der Dämmwerte überdacht (was ist in den Lücken, wenn dich das Holz gesetzt hat??)
- die Ecken sind bei dem Wandaufbau kaum winddicht zu bekommen.
- Steckdosen in den Außenwänden dürften keine vorkommen, vermute ich
- eine Installationsebene würde ich mir auch wünschen.
- fehlende Branddämmung wird später der Versicherer ordentlich beaufschlagen
Das ist das, was mir spontan einfällt.
Ein herzliches Moin in die Runde!
Seit meinem letzten Beitrag ist schon einige Zeit vergangen, wir haben uns weiter mal mehr und mal weniger intensiv mit unserem Traumhausbau beschäftigt und glauben, nun eine vorzeigbare Variante gefunden zu haben, die das OG nutzbar macht, die Grundfläche sogar um 4qm verkleinert hat und die trotz der beiden Giebel kostenneutral ist im Gegensatz zur vorherigen Variante mit der Essecke. Wir haben uns eure Anmerkungen zu unserem Grundriss alle zu Herzen genommen und versucht, so viel wie möglich davon umzusetzen...
Wir haben uns aus Kostengründen dazu entschieden, weiter bei der Blockbohle zu bleiben - steinmassiv mit viel Eigenleistung trauen wir uns von der Koordination der Gewerke als Erstbauherren nicht zu und schlüsselfertig mit GU können und wollen wir uns nicht leisten. Uns ist bewusst, dass wir hierbei sehr sehr genau planen müssen und später bei Elektrik/Sanitär/Heizung nichts mehr zu ändern ist, aber das ist eine Herausforderung, der wir uns gerne stellen. Wir haben uns auch dagegen entschieden, das Haus selbst mitzubauen und werden diese Arbeit vom Hersteller ausführen lassen. Wir werden dann "nur" den kompletten Innenausbau selber machen und zum Teil das vergeben, was wir uns selber nicht zutrauen.
Die Hauptpunkte, die wir aus den bisherigen Beiträgen mitgenommen haben, waren im Wesentlichen:
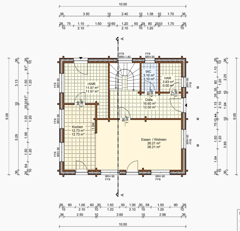
Mehr Fenster, Essecke doof, Garderobe mit Fenster, HAR zu groß, Bad nicht möblierbar aufgrund des Kniestockes (bleibt weiter bei ca 30cm zwischen Oberkante Fußbodenbelag und Unterkante Sparren vom Sichtdachstuhl), generell alles zu sehr dunkle Höhle, Eingangssituation an der Treppe ungünstig, Küche zu gedrängt für einen Neubau und zu viel Flurfläche. Ebenfalls (auch wenn es mir persönlich schwer gefallen ist haben wir uns vom Symmetriegedanken verabschiedet. Die Essecke und der Kamin sind also rausgeflogen, die Küche offener geworden, Giebeleingang, die Treppe in eine Gaube gesetzt, wie @WilderSueden vorgeschlagen hatte, mehr Fenster und durch den grossen Giebel in den Kinderzimmern auch weniger verschenkte Fläche. Das Schlafzimmer ist von den Massen her abgestimmt auf ein 2,00x2,20 Bett und rundherum 75cm Lauffläche, der schrank im Schlafzimmer bekommt eine Schiebetürlösung, hinter dem Bett wäre dann Platz um später eine Regallösung für Staufläche zu schaffen. Im Bad koffern wir vermutlich, da kommt dann die gesamte Verteilung fürs OG aus dem HAR hoch. Nebeneingang unten durch den Hauswirtschaftsraum mit Staufläche und Platz für einen Wäscheständer sowie der Kellerersatznische, die dann komplett mit regalböden ausgestattet wird. Eine Flucht vom Nebeneingang bis zur Terrassentür, diese dann von der Küche aus zugänglich. HAR kleiner, Staufläche am Ende des Flures auch mit bis unter die Treppe möglich - ich hoffe, dass es nicht zu schlauchig wirken wird und durch das Fenster im "Treppenhaus" genügend Tageslicht im Flur ist. Die Tür zum Wohnzimmer wird auch breiter werden und mit Glaselementen ausgestattet.
In den aktuellen Zeichnungen ist ein Balkon mitgeplant, den werden wir aber nicht nehmen. Ebenfalls überlegen wir aktuell, die vier bodentiefen Fenster im OG als normale Fenster zu nehmen, um flexibler mit der Möblierung sein zu können. Zu dunkel wird es dann hoffentlich nicht werden? Bei den eingezeichneten Dachflächenfenstern haben wir uns gegen die angebotene Variante entschieden und würden da gerne Velux Doppelfenster nehmen jeweils mit Rollladen. Wie genau das Fenster im "Treppenhaus" wird, wissen wir noch nicht genau. Ebenfalls nicht, ob wir die Gaube höhenmässig an die Südgaube angleichen sollten - aktuell wurde sie so "gross wie nötig, so klein wie möglich" geplant. Die Treppenmaße sind hier aus dem Standardpost entnommen. Da dort ja auch der Carport vorkommen wird, sieht es hoffentlich nicht mehr so kahl aus auf der Seite mit dem einen kleinen Gäste-WC Fenster, dem grossen Treppenfenster und der Nebentür - oder hat da jemand noch einen besseren Vorschlag?
Durch die vielen tollen Beiträge im ganzen Forum habe ich mich dieses Mal daran gehalten, mit konkretem Raumprogramm von oben nach unten zu entwickeln und mit der Treppe zu starten. Zwei Giebel wollten wir eigentlich nicht, aber bei unserem Handicap mit dem Kniestock bleibt wenig anderes übrig, um die anderen Räume nutzbar zu gestalten. Habe euch hier die übertragenen Pläne vom Hersteller eingestellt und meine Handzeichnung, in der die Möblierung berücksichtigt ist. Dient nur zur Veranschaulichung - ich hoffe, ihr könnt das relevante erkennen und lesen. Die Pläne des Herstellers sind etwas anders geworden, als ich das gezeichnet hatte - Blockbohle hat ja konstruktionell andere Anforderungen. Aber das passt schon so für uns, haben den Herstellergrundriss auf meinen Maßstab gedruckt und mit unseren Papiermöbelschnipseln Tetris gespielt... Der Mann findet das bodentiefe Fenster zwischen Esstisch und Sofa überflüssig - ich hätte das gerne als weitere Tür, damit man nicht immer erst im den Esstisch laufen muss, wenn man vom Klo wieder in den Garten möchte - hätte da jemand eine Meinung zu?
Ich hoffe, alle Infos zusammen zu haben - wenn noch was fehlt, reiche ich das sehr gerne nach.
Wir sind gespannt darauf, wie furchtbar ihr unseren neuen Ansatz findet und hoffe, dass ihr den nicht zu sehr auseinandernehmen müsst.
PS: Wir wissen, dass das eigentlich ein Fall für einen Architekten wäre... Aber das ist preislich nicht drin, und mit Blockbohlenhäusern kennt sich hier im Norden auch eher keiner aus. Wenn wir das Angebot unterschreiben steht aber nochmal ein langer Termin mit einem echten Architekten an wegen des Feintunings. Der sitzt im gleichen Büro wie der Energieberater und der Statiker - wir hoffen, da einiges an Synergieeffekten mitnehmen zu können. Das Architekturbüro arbeitet schon länger mit dem Hersteller zusammen und kennt die Bauweise gut. Grundsätzlich geht es uns hier jetzt erstmal darum, ob wir das so bauen könnten und das Angebot unterschreiben, damit es endlich einen Schritt weiter gehen kann. Für uns passt der Grundriss jetzt sehr viel besser zu dem, was wir ganz ursprünglich mal alles wollten. Wir würden auch einen Standardgrundriss bauen, aber irgendwie war da bisher bei all unseren Recherchen nie einer dabei, der uns bei unseren konkreten Wünschen und Vorstellungen überzeugt hätte...








Seit meinem letzten Beitrag ist schon einige Zeit vergangen, wir haben uns weiter mal mehr und mal weniger intensiv mit unserem Traumhausbau beschäftigt und glauben, nun eine vorzeigbare Variante gefunden zu haben, die das OG nutzbar macht, die Grundfläche sogar um 4qm verkleinert hat und die trotz der beiden Giebel kostenneutral ist im Gegensatz zur vorherigen Variante mit der Essecke. Wir haben uns eure Anmerkungen zu unserem Grundriss alle zu Herzen genommen und versucht, so viel wie möglich davon umzusetzen...
Wir haben uns aus Kostengründen dazu entschieden, weiter bei der Blockbohle zu bleiben - steinmassiv mit viel Eigenleistung trauen wir uns von der Koordination der Gewerke als Erstbauherren nicht zu und schlüsselfertig mit GU können und wollen wir uns nicht leisten. Uns ist bewusst, dass wir hierbei sehr sehr genau planen müssen und später bei Elektrik/Sanitär/Heizung nichts mehr zu ändern ist, aber das ist eine Herausforderung, der wir uns gerne stellen. Wir haben uns auch dagegen entschieden, das Haus selbst mitzubauen und werden diese Arbeit vom Hersteller ausführen lassen. Wir werden dann "nur" den kompletten Innenausbau selber machen und zum Teil das vergeben, was wir uns selber nicht zutrauen.
Die Hauptpunkte, die wir aus den bisherigen Beiträgen mitgenommen haben, waren im Wesentlichen:
Mehr Fenster, Essecke doof, Garderobe mit Fenster, HAR zu groß, Bad nicht möblierbar aufgrund des Kniestockes (bleibt weiter bei ca 30cm zwischen Oberkante Fußbodenbelag und Unterkante Sparren vom Sichtdachstuhl), generell alles zu sehr dunkle Höhle, Eingangssituation an der Treppe ungünstig, Küche zu gedrängt für einen Neubau und zu viel Flurfläche. Ebenfalls (auch wenn es mir persönlich schwer gefallen ist haben wir uns vom Symmetriegedanken verabschiedet. Die Essecke und der Kamin sind also rausgeflogen, die Küche offener geworden, Giebeleingang, die Treppe in eine Gaube gesetzt, wie @WilderSueden vorgeschlagen hatte, mehr Fenster und durch den grossen Giebel in den Kinderzimmern auch weniger verschenkte Fläche. Das Schlafzimmer ist von den Massen her abgestimmt auf ein 2,00x2,20 Bett und rundherum 75cm Lauffläche, der schrank im Schlafzimmer bekommt eine Schiebetürlösung, hinter dem Bett wäre dann Platz um später eine Regallösung für Staufläche zu schaffen. Im Bad koffern wir vermutlich, da kommt dann die gesamte Verteilung fürs OG aus dem HAR hoch. Nebeneingang unten durch den Hauswirtschaftsraum mit Staufläche und Platz für einen Wäscheständer sowie der Kellerersatznische, die dann komplett mit regalböden ausgestattet wird. Eine Flucht vom Nebeneingang bis zur Terrassentür, diese dann von der Küche aus zugänglich. HAR kleiner, Staufläche am Ende des Flures auch mit bis unter die Treppe möglich - ich hoffe, dass es nicht zu schlauchig wirken wird und durch das Fenster im "Treppenhaus" genügend Tageslicht im Flur ist. Die Tür zum Wohnzimmer wird auch breiter werden und mit Glaselementen ausgestattet.
In den aktuellen Zeichnungen ist ein Balkon mitgeplant, den werden wir aber nicht nehmen. Ebenfalls überlegen wir aktuell, die vier bodentiefen Fenster im OG als normale Fenster zu nehmen, um flexibler mit der Möblierung sein zu können. Zu dunkel wird es dann hoffentlich nicht werden? Bei den eingezeichneten Dachflächenfenstern haben wir uns gegen die angebotene Variante entschieden und würden da gerne Velux Doppelfenster nehmen jeweils mit Rollladen. Wie genau das Fenster im "Treppenhaus" wird, wissen wir noch nicht genau. Ebenfalls nicht, ob wir die Gaube höhenmässig an die Südgaube angleichen sollten - aktuell wurde sie so "gross wie nötig, so klein wie möglich" geplant. Die Treppenmaße sind hier aus dem Standardpost entnommen. Da dort ja auch der Carport vorkommen wird, sieht es hoffentlich nicht mehr so kahl aus auf der Seite mit dem einen kleinen Gäste-WC Fenster, dem grossen Treppenfenster und der Nebentür - oder hat da jemand noch einen besseren Vorschlag?
Durch die vielen tollen Beiträge im ganzen Forum habe ich mich dieses Mal daran gehalten, mit konkretem Raumprogramm von oben nach unten zu entwickeln und mit der Treppe zu starten. Zwei Giebel wollten wir eigentlich nicht, aber bei unserem Handicap mit dem Kniestock bleibt wenig anderes übrig, um die anderen Räume nutzbar zu gestalten. Habe euch hier die übertragenen Pläne vom Hersteller eingestellt und meine Handzeichnung, in der die Möblierung berücksichtigt ist. Dient nur zur Veranschaulichung - ich hoffe, ihr könnt das relevante erkennen und lesen. Die Pläne des Herstellers sind etwas anders geworden, als ich das gezeichnet hatte - Blockbohle hat ja konstruktionell andere Anforderungen. Aber das passt schon so für uns, haben den Herstellergrundriss auf meinen Maßstab gedruckt und mit unseren Papiermöbelschnipseln Tetris gespielt... Der Mann findet das bodentiefe Fenster zwischen Esstisch und Sofa überflüssig - ich hätte das gerne als weitere Tür, damit man nicht immer erst im den Esstisch laufen muss, wenn man vom Klo wieder in den Garten möchte - hätte da jemand eine Meinung zu?
Ich hoffe, alle Infos zusammen zu haben - wenn noch was fehlt, reiche ich das sehr gerne nach.
Wir sind gespannt darauf, wie furchtbar ihr unseren neuen Ansatz findet und hoffe, dass ihr den nicht zu sehr auseinandernehmen müsst.
PS: Wir wissen, dass das eigentlich ein Fall für einen Architekten wäre... Aber das ist preislich nicht drin, und mit Blockbohlenhäusern kennt sich hier im Norden auch eher keiner aus. Wenn wir das Angebot unterschreiben steht aber nochmal ein langer Termin mit einem echten Architekten an wegen des Feintunings. Der sitzt im gleichen Büro wie der Energieberater und der Statiker - wir hoffen, da einiges an Synergieeffekten mitnehmen zu können. Das Architekturbüro arbeitet schon länger mit dem Hersteller zusammen und kennt die Bauweise gut. Grundsätzlich geht es uns hier jetzt erstmal darum, ob wir das so bauen könnten und das Angebot unterschreiben, damit es endlich einen Schritt weiter gehen kann. Für uns passt der Grundriss jetzt sehr viel besser zu dem, was wir ganz ursprünglich mal alles wollten. Wir würden auch einen Standardgrundriss bauen, aber irgendwie war da bisher bei all unseren Recherchen nie einer dabei, der uns bei unseren konkreten Wünschen und Vorstellungen überzeugt hätte...
Gut gemacht: der Relaunch hebt sich insofern wohltuend von dem was hier sonst so als angebliche Überarbeitung präsentiert wird ab, daß man schon auf den ersten Blick "etwas wesentlich Anderes" erkennen kann.
Schlecht gedacht: Ihr begeht gleich zwei dicke Denkfehler (aus dem Vorwort des Milchmädchen-Rechenbuches), nämlich:
https://www.instagram.com/11antgmxde/
https://www.linkedin.com/company/bauen-jetzt/
Schlecht gedacht: Ihr begeht gleich zwei dicke Denkfehler (aus dem Vorwort des Milchmädchen-Rechenbuches), nämlich:
-LotteS- schrieb:
steinmassiv mit viel Eigenleistung trauen wir uns von der Koordination der Gewerke als Erstbauherren nicht zu und schlüsselfertig mit GU können und wollen wir uns nicht leisten.
-LotteS- schrieb:"Ein Architekt sei preislich nicht drin" ist insofern der Wahrheit Gegenteil, wie ein Architekt allein beim Ausschreiben und Bauleiten mehrfach wieder reinholt, was er als Grundrissemaler "teurer" ist als wenn man es selbst macht. Und wenn sich in Eurer Region "mit Blockbohlenhäusern eher keiner auskennt", ist das ein Gefahrenpotential für Ausführung und Kosten der einzelvergebenen Gewerke. Und auch Ihr selbst mit dem Wunsch nach Eigenleistung fahrt erheblich besser damit, schon als Wandbildner einen gut selbermacherkompatiblen Baustoff zu wählen. Schlagt beide Knackpunkte mit derselben Klappe, und schaut Euch in den Bausatzhaus-Katalogen von Hebel und Ytong um.
Wir wissen, dass das eigentlich ein Fall für einen Architekten wäre... Aber das ist preislich nicht drin, und mit Blockbohlenhäusern kennt sich hier im Norden auch eher keiner aus.
https://www.instagram.com/11antgmxde/
https://www.linkedin.com/company/bauen-jetzt/
-LotteS- schrieb:
Wir wissen, dass das eigentlich ein Fall für einen Architekten wäre... Aber das ist preislich nicht drin, und mit Blockbohlenhäusern kennt sich hier im Norden auch eher keiner aus. Hä? Wie wäre es denn mit dem:-LotteS- schrieb:
Wenn wir das Angebot unterschreiben steht aber nochmal ein langer Termin mit einem echten Architekten an wegen des Feintunings.Ich versteh leider nicht viel von Blockbohlen aber wieso wollt Ihr denn unbedingt durch die Küche in den Hauswirtschaftsraum rennen? Ist doch gar nicht nötig, die Wäsche an den dreckigen Tellern vorbei zu tragen. Der Platz im Flur reicht dicke für eine Tür. Dazu noch die tote Ecke im Hauswirtschaftsraum.
Üblich wäre wohl eher so etwas:
Muss ja nicht zwingend diese Anordnung der Möbel sein aber die Tür würde ich auf jeden Fall versetzen.
K a t j a schrieb:
Ist doch gar nicht nötig, die Wäsche an den dreckigen Tellern vorbei zu tragen. Der Platz im Flur reicht dicke für eine Tür. Dazu noch die tote Ecke im Hauswirtschaftsraum.sehr. Gar nicht drüber nachgedacht... Bleibt noch genug Platz für eine Garderobe, wenn wir statt des "Verschwindibusquadratmeters" ne Tür setzen?
Eine Tür zwischen Hauswirtschaftsraum und Küche hätte ich wegen des Nebeneinganges vom Carport aber schon trotzdem gerne, damit ich nicht mit den Einkäufen quer durchs Haus muss... Wie siehst Du das? 🙂
-LotteS- schrieb:
Eine Tür zwischen Hauswirtschaftsraum und Küche hätte ich wegen des Nebeneinganges vom Carport aber schon trotzdem gerne, damit ich nicht mit den Einkäufen quer durchs Haus mussKann ich oftmals, und auch hier nicht nachvollziehen. Vom Grundsatz ist ja eine Küche dazu da, um Zucker, Mehl, Essig und Gewürze sowie Brot und Obst und Gemüse zu lagern. Im sog. Hauswirtschaftsraum lagern dann Lagerware. Dafür geht man dann 1x vor dem Kochen in diesen Raum. Beim Tageswerk Putzen, wischen, Wäschewaschen etc. geht man 10 x am Tag in den Hauswirtschaftsraum, also eher zentral vom Flur aus.Meine Sorge hat allerdings der kleine Hauswirtschaftsraum (HAR?) planoben rechts: der wird wohl für die Technik bzw. den Handwerkern etwas zu klein sein.
Ähnliche Themen