J
j.bautsch15.02.17 08:21würde auch die "speis" streichen, außerdem frage ich mich ob man wirklich den kindern zwei so unterschiedlich große zimmer verkaufen will, das sorgt doch früher oder später für zwist, zudem ein 18m² bad? braucht man das ?
Raster)
Ein übliches Rastermaß im Holztafelbau ist 62,5 cm. Dabei steht das Konstruktionsholz im Kern der Außenwände meist mittig auf den Kreuzungspunkten der Rasterlinien, sodaß eine Ständerstärke plus zwei Gesamtdicken der äußeren Beplanung ein üblicher rechnerischer "Überhang" der Außenlängen über eine ganze Zahl von Rastereinheiten ist. In Deinem Fall liegen die Außenwände wohl eher außen an den Rasterlinien an, 12 Einheiten + 2x 29,5 cm = 8,09 m. 9,34 x 9,965 m wären eine Grundfläche etwa gleicher Größe "in Richtung Quadrat" im gleichen Raster.
Bad 18 qm)
Solche Größe kann rasch entstehen, wenn ein Entwurf mit Satteldach ohne Kniestock "1:1" auf 2m Kniestock übertragen wird. Mit zwei Waschbecken, Eckwanne plus Dusche, Bidet und genügend Platz daß Mutti beim Wimperntuschen nicht angerempelt wird, kommt so eine Grundfläche bei "ohne Kniestock" schon mal zusammen.
Außerdem ist eine typische Vorgehensweise bei noch ungeübten Laienplanungen, von einer Geschossfläche erstmal angemessene Einzelflächen für bestimmte Räume abzuteilen, nicht selten bleibt dabei für das Bad zu viel übrig, und eine Speisekammer ohne Gefühl für sinnvolle Maße klaut einfach irgendeine Ecke aus dem Homeoffice weg ;-)
Aber dafür gibt es solche Foren ja, daß jeder beim Eislaufen anfangs hinbauzen darf.
https://www.instagram.com/11antgmxde/
https://www.linkedin.com/company/bauen-jetzt/
Ein übliches Rastermaß im Holztafelbau ist 62,5 cm. Dabei steht das Konstruktionsholz im Kern der Außenwände meist mittig auf den Kreuzungspunkten der Rasterlinien, sodaß eine Ständerstärke plus zwei Gesamtdicken der äußeren Beplanung ein üblicher rechnerischer "Überhang" der Außenlängen über eine ganze Zahl von Rastereinheiten ist. In Deinem Fall liegen die Außenwände wohl eher außen an den Rasterlinien an, 12 Einheiten + 2x 29,5 cm = 8,09 m. 9,34 x 9,965 m wären eine Grundfläche etwa gleicher Größe "in Richtung Quadrat" im gleichen Raster.
Bad 18 qm)
Solche Größe kann rasch entstehen, wenn ein Entwurf mit Satteldach ohne Kniestock "1:1" auf 2m Kniestock übertragen wird. Mit zwei Waschbecken, Eckwanne plus Dusche, Bidet und genügend Platz daß Mutti beim Wimperntuschen nicht angerempelt wird, kommt so eine Grundfläche bei "ohne Kniestock" schon mal zusammen.
Außerdem ist eine typische Vorgehensweise bei noch ungeübten Laienplanungen, von einer Geschossfläche erstmal angemessene Einzelflächen für bestimmte Räume abzuteilen, nicht selten bleibt dabei für das Bad zu viel übrig, und eine Speisekammer ohne Gefühl für sinnvolle Maße klaut einfach irgendeine Ecke aus dem Homeoffice weg ;-)
Aber dafür gibt es solche Foren ja, daß jeder beim Eislaufen anfangs hinbauzen darf.
https://www.instagram.com/11antgmxde/
https://www.linkedin.com/company/bauen-jetzt/
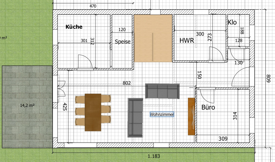
Schönen Sonntag zusammen,
ich denke ich muss den Architektenplan nochmal über den Haufen werfen.
Auf die schnelle bekomme ich natürlich keine perfekte Zeichnung hin, habe mich aber an die Maße vom Haus plus die Wanddicken natürlich gehalten. Mir geht es nur erstmal drum, ob dieser Ansatz denkbar wäre euer Meinung nach.
Das Gäste-WC müsste man noch etwas anders bemaßen, dass eine Garderobe besser passt. Das Wohnzimmer wirkt meiner Meinung nach etwas offener und zusätzlich habe ich keinen langen Flur mehr.
Nehmt mir die Zeichnung nicht übel, ich hoffe ihr könnt euch das Ansatzweise vorstellen 🙂.
LG,
Ravosch

ich denke ich muss den Architektenplan nochmal über den Haufen werfen.
Auf die schnelle bekomme ich natürlich keine perfekte Zeichnung hin, habe mich aber an die Maße vom Haus plus die Wanddicken natürlich gehalten. Mir geht es nur erstmal drum, ob dieser Ansatz denkbar wäre euer Meinung nach.
Das Gäste-WC müsste man noch etwas anders bemaßen, dass eine Garderobe besser passt. Das Wohnzimmer wirkt meiner Meinung nach etwas offener und zusätzlich habe ich keinen langen Flur mehr.
Nehmt mir die Zeichnung nicht übel, ich hoffe ihr könnt euch das Ansatzweise vorstellen 🙂.
LG,
Ravosch
Warum versuchst Du die ganze Zeit, das Haus von Ost statt von der Hofseite Nord zu erschließen?
Ich mag diesen Grundriss nicht, finde ihn nicht wohnlich.
WZ ist Lauf- und Verkehrsfläche, sogar Knotenpunkt durch die Treppe. Da wird kaum Gemütlichkeit aufkommen. Privatsphäre istgleich Null.
Wenn Du keinen Einblick in das Südfenster haben möchtest, lege dahin die Küche und benutze Jalousien. WZ und Ess auf die ganze Westseite. Nimm eine gerade bzw halbgewendelte Treppe.
Und eine direkt zu erreichende Küche in der Nähe vom Hauswirtschaftsraum spart Dir die Speis
Gruß, Yvonne
Ich mag diesen Grundriss nicht, finde ihn nicht wohnlich.
WZ ist Lauf- und Verkehrsfläche, sogar Knotenpunkt durch die Treppe. Da wird kaum Gemütlichkeit aufkommen. Privatsphäre istgleich Null.
Wenn Du keinen Einblick in das Südfenster haben möchtest, lege dahin die Küche und benutze Jalousien. WZ und Ess auf die ganze Westseite. Nimm eine gerade bzw halbgewendelte Treppe.
Und eine direkt zu erreichende Küche in der Nähe vom Hauswirtschaftsraum spart Dir die Speis
Gruß, Yvonne
Ähnliche Themen