W
Mein Konto
Hausbau - Ratgeber
Bauherrenhilfe
- Bauherrenhilfe vor Vertragsabschluss
-- Warum einen unabhängigen Baubetreuer?
-- Vertragsgrundlagen
-- Bausumme
-- Zahlungsplan zur Kostenkontrolle
-- Pflichten des Bauherren vor Vertragsabschluss
-- Unterlagen beim Hausbau vor Vertragsabschluss
- Bauherrenhilfe nach Vertragsabschluss
-- Bauantrag bei Behörden
-- Bau-Genehmigungsverfahren bei Baubehörden
-- Bauspezifische Versicherungen
-- Bauzeitenplan
-- Baubeginn - die Letzten Pflichten der Bauherrschaft
- Bauherrenhilfe während der Bauzeit
- Gewährleistungsansprüche
- Bauabnahme
Baufinanzierung
- Baufinanzierung - Allgemeine Fragen
- Kreditarten
- Kredit-Konditionen
- Bausparen
- Staatliche Förderungen
- Verkehrswert
- Haushaltsrechnung und Bonität
Hausbau Planung
- Haustypen
- Hausbau Vorbereitungsarbeiten
- Das Baugrundstück
- Baugrund beim Hausbau
- Baurecht
- Gebäudeschutz
- Erdarbeiten und Wasserhaltung
- Stützmauern
- Einfriedung
- Untergeschoss
- Kanalisation
- Tragende Elemente
- Nichttragende Innenwände
- Fundation / Fundament
- Deckenkonstruktionen
- Dächer
- Kaminanlagen
- Treppen Rampen Leitern
- Dachbeläge und Spengler
- Fenster
- Sonnen und Wetterschutz
- Aussenputze
- Einbauten, Küchen, Türen
- Bodenbeläge und Unterlagsböden
- Parkett
- Gips, Wand, Decke
Haustechnik und Energie
- Heiztechnik
- Lüftung und Klimatechnik
- Sanitärtechnik
- Elektrotechnik
- Erneuerbare Energie
Whirlpools / Jacuzzi
Hausbau Magazin
- Baufinanzierung trotz Krise?
- Das Blockhaus
- Moderne Dämmstoffe im Vergleich
- Erker Vor- und Nachteile
- Glasflächen beim Hausbau
- Günstig ein Haus Bauen
- Mediterraner Hausbaustil
- Mehrgenerationenhaus
- Moderne Architektur
- Gartengestaltung leicht gemacht
- Traditioneller Ziegelbau
- Villa als höchster Traum
- Im Eigenheim Ruhestand geniessen
- Altbau sanieren
- Kauf einer Holzgarage
- Immobilienmakler
- Arbeitshandschuhe für den Winter
- Zuhause verschönern
- Outdoor-Plissees
- Schlafzimmer planen
- Terrassenüberdachung
- Wohngebäudeversicherung
- Zaunarten und Eigenschaften
- Hauseingang gestalten
- Der perfekte Grundriss
- Sparsamer heizen im Altbau
- Einfamilienhaus smart finanzieren
- Planung einer PV-Anlage
- Neues Haus
- Immobilienfinanzierung
- Installation einer Photovoltaikanlage
- Asbest erkennen und entfernen
- Sauna im Fokus - Wellness zuhause
- Erfolgreich vermieten
- Die perfekte Winterbekleidung
- Das Niedrigenergiehaus
- Der April und seine Stürme
- Architektonische Vielfalt
- Ökologisch und nachhaltig bauen
- Das perfekte Schlafzimmer
- Nachhaltige Energieversorgung
- Zukunftsorientiert bauen
- Nachhaltigkeit beim Hausbau
- Tiny Houses
- Wärmepumpen als nachhaltige Heizvariante
- Maßgeschneiderten Kleiderschrank
- Der richtige Baukredit
- Ratgeber für erfolgreichen Hausbau
- Haus als Altersvorsorge
Do-it-yourself Anleitungen
- Verlegeanleitung für Bodenbeläge und Parkett
- Bodenbeläge und Parkett reinigen und pflegen
- Malerarbeiten am Haus
- Garten Tipps
- Umzug und Reinigung

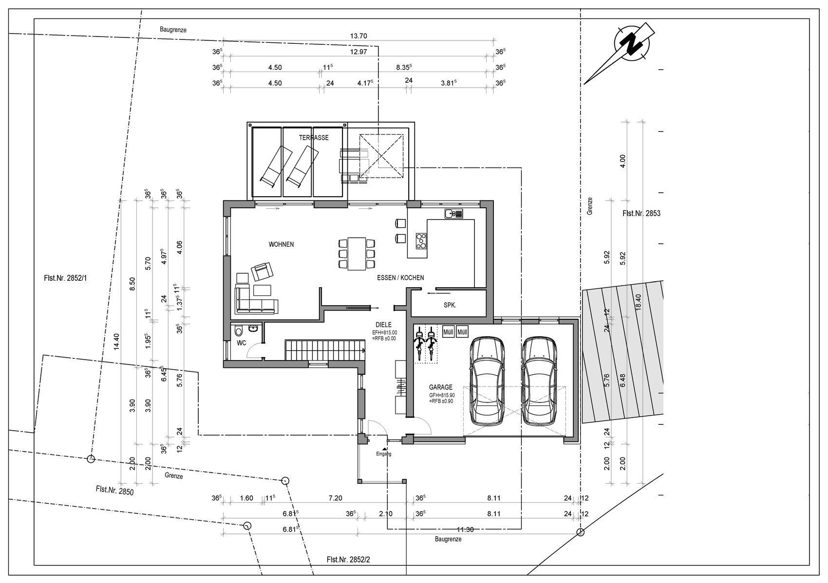
ᐅ Grundrissplanung Einfamilienhaus 280m² am Hang


Erstellt am: 01.10.17 19:05

Dark_Templar01.10.17 19:05
Hallo zusammen,

gerne würde ich möglichst viele Meinungen / Erfahrungen zu meinem aktuellen Grundriss einholen. Man baut schließlich (meist) nur einmal und das sollte sitzen. Welche potentiellen Probleme seht ihr in dem Entwurf? Jegliche Art von Kritik / Ideen ist willkommen.

Das Grundstück ist recht kompliziert (siehe Topografie im Anhang):
Straße/Einfahrt ist auf 815.90, der Grund ist zwischen 809,xx und 810,xx --> ~6m Höhendifferenz zur Straße und ~1m innerhalb des Baugrunds.

Daher ist der Wohnstock das Erdgeschoss, Schlafzimmer, Hauswirtschaftsraum/Technik im Untergeschoss und Büro/Gast/Keller im Untergeschoss. Im Grundriss ist im Untergeschoss Gast und Büro vertauscht: Büro ist das größere Zimmer.

Bebauungsplan/Einschränkungen
Baufenster, Baulinie und -grenze: Flexibel, die aktuellen Überschreitungen sind kein Thema
Dachform: Flachdach, vermutlich nach K2
Stilrichtung: Bauhaus, modern
Ausrichtung: Süd-Ost = Blick ins Tal

Anforderungen der Bauherren
Anzahl der Personen: 2 Erwachsene, 1 Kleinkind, 1 Baby
Kein Kamin
Musik/Stereowand: Heimkino im Wohnzimmer, wird in einer Wohnwand an der 4,50m langen Wand installiert.

Hausentwurf
Preisschätzung lt Architekt/Planer: 700-800t€ (ohne Grundstück)
Persönliches Preislimit fürs Haus, inkl Ausstattung: 900t€
favorisierte Heiztechnik: Sicher: Kontrollierte-Wohnraumlüftung, Heimkino, Gas-Heizung mit Solar, Klimaanlage Erdgeschoss. In Überlegung: Bus-System light (Busch Free@Home)

Hinweis: Anhänge folgen da ich aktuell nicht genügend Rechte habe um diese anzuhängen 🙁
ypg01.10.17 20:54
Man kann ab sofort im ersten Beitrag Dateien anhängen.
Es gibt hier keine eingeschränkten Rechte.


Mobiler Gruß von unterwegs
Dark_Templar01.10.17 21:20
Anbei die Anhänge 🙂

CAD-Lageplan eines Grundstücks im DXF-Format mit Grenzlinien und Koordinaten.
RobsonMKK01.10.17 22:05
Pläne NICHT als PDF
Dark_Templar01.10.17 22:15
Sondern?
ypg01.10.17 22:38
untergeschossgrundrissgrundstückerdgeschossheimkino