Hausbau - Ratgeber
Bauherrenhilfe
- Bauherrenhilfe vor Vertragsabschluss
-- Warum einen unabhängigen Baubetreuer?
-- Vertragsgrundlagen
-- Bausumme
-- Zahlungsplan zur Kostenkontrolle
-- Pflichten des Bauherren vor Vertragsabschluss
-- Unterlagen beim Hausbau vor Vertragsabschluss
- Bauherrenhilfe nach Vertragsabschluss
-- Bauantrag bei Behörden
-- Bau-Genehmigungsverfahren bei Baubehörden
-- Bauspezifische Versicherungen
-- Bauzeitenplan
-- Baubeginn - die Letzten Pflichten der Bauherrschaft
- Bauherrenhilfe während der Bauzeit
- Gewährleistungsansprüche
- Bauabnahme
Baufinanzierung
- Baufinanzierung - Allgemeine Fragen
- Kreditarten
- Kredit-Konditionen
- Bausparen
- Staatliche Förderungen
- Verkehrswert
- Haushaltsrechnung und Bonität
Hausbau Planung
- Haustypen
- Hausbau Vorbereitungsarbeiten
- Das Baugrundstück
- Baugrund beim Hausbau
- Baurecht
- Gebäudeschutz
- Erdarbeiten und Wasserhaltung
- Stützmauern
- Einfriedung
- Untergeschoss
- Kanalisation
- Tragende Elemente
- Nichttragende Innenwände
- Fundation / Fundament
- Deckenkonstruktionen
- Dächer
- Kaminanlagen
- Treppen Rampen Leitern
- Dachbeläge und Spengler
- Fenster
- Sonnen und Wetterschutz
- Aussenputze
- Einbauten, Küchen, Türen
- Bodenbeläge und Unterlagsböden
- Parkett
- Gips, Wand, Decke
Haustechnik und Energie
- Heiztechnik
- Lüftung und Klimatechnik
- Sanitärtechnik
- Elektrotechnik
- Erneuerbare Energie
Whirlpools / Jacuzzi
Hausbau Magazin
- Baufinanzierung trotz Krise?
- Das Blockhaus
- Moderne Dämmstoffe im Vergleich
- Erker Vor- und Nachteile
- Glasflächen beim Hausbau
- Günstig ein Haus Bauen
- Mediterraner Hausbaustil
- Mehrgenerationenhaus
- Moderne Architektur
- Gartengestaltung leicht gemacht
- Traditioneller Ziegelbau
- Villa als höchster Traum
- Im Eigenheim Ruhestand geniessen
- Altbau sanieren
- Kauf einer Holzgarage
- Immobilienmakler
- Arbeitshandschuhe für den Winter
- Zuhause verschönern
- Outdoor-Plissees
- Schlafzimmer planen
- Terrassenüberdachung
- Wohngebäudeversicherung
- Zaunarten und Eigenschaften
- Hauseingang gestalten
- Der perfekte Grundriss
- Sparsamer heizen im Altbau
- Einfamilienhaus smart finanzieren
- Planung einer PV-Anlage
- Neues Haus
- Immobilienfinanzierung
- Installation einer Photovoltaikanlage
- Asbest erkennen und entfernen
- Gartenpflege im Frühling – worauf achten
- Sauna im Fokus - Wellness zuhause
- Erfolgreich vermieten
- Die perfekte Winterbekleidung
- Das Niedrigenergiehaus
- Der April und seine Stürme
- Architektonische Vielfalt
- Ökologisch und nachhaltig bauen
- Das perfekte Schlafzimmer
- Nachhaltige Energieversorgung
- Zukunftsorientiert bauen
- Nachhaltigkeit beim Hausbau
- Tiny Houses
- Wärmepumpen als nachhaltige Heizvariante
- Maßgeschneiderten Kleiderschrank
- Der richtige Baukredit
- Ratgeber für erfolgreichen Hausbau
- Haus als Altersvorsorge
Do-it-yourself Anleitungen
- Verlegeanleitung für Bodenbeläge und Parkett
- Bodenbeläge und Parkett reinigen und pflegen
- Malerarbeiten am Haus
- Garten Tipps
- Umzug und Reinigung

ᐅ Grundrissplanung Einfamilienhaus 150qm - Tipps zur Verbesserung?

Erstellt am: 22.01.19 13:30
F
Franky73
F
Franky73
03.03.19 12:02
Ok, Wohnzimmer muss größer!

Und die Treppe? Ich würde ja gern ein U-Stieg und alles mittig positioniert (gelber Bereich) oder hat jemand eine andere Idee?

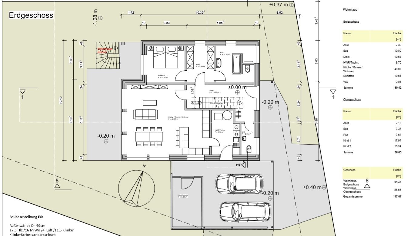
P.S.: Hier sieht man auch mal alle Zahlen des EG besser!

Grundriss Erdgeschoss: offener Wohnbereich, Küche, Schlafen, Bad, Diele, HWR.
11ant04.03.19 01:19
Auf mich wirkt dieser Entwurf, als habe jemand versucht, ein Raumprogramm und eine Wunschvorstellung von der "Skulptur" des Baukörpers als Hund und Katz´ zusammen in einen Sack zu sperren. An einer Ecke beißt dann sinnbildlich das Haus den Carport (oder der Carport kratzt das Haus).

Im Ergebnis sachichma, Blut ist im Schuh, die rechte Braut sitzt noch daheim
https://www.instagram.com/11antgmxde/
https://www.linkedin.com/company/bauen-jetzt/
F
Franky73
07.03.19 07:18
Es gibt Neuigkeiten.... und wir kommen endlich voran. Aktuell läuft es auf eine der nachfolgenden zwei Varianten heraus die ich euch gleich vorstelle. Bitte gern eure Meinung dazu sagen, was wo verbessert werden sollte.

DANKE!!!

Grundriss Obergeschoss: 2 Kinderzimmer, Bad, Flur, Abstellraum; Tabellen mit Flächenwerten.


Grundriss Erdgeschoss: Haus mit Doppelgarage, Küche, Wohnen, Essen, Schlafzimmer, Bad.


Zweigeschossiges Haus mit Solarpanelen auf dem Dach; Südwest- und Südostansichten.


Vierteilige Architekturszene: 3D-Hausrender, Nordost- und Nordwest-Ansichten mit Gelände.
F
Franky73
07.03.19 07:26
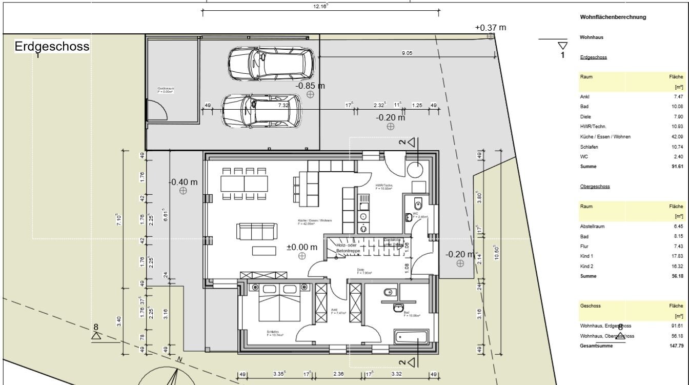
So und hier die zweite mögliche Variante...

Grundriss eines Hauses: Obergeschoss mit Treppenaufgang, Zimmern, Bad, Flur und Flächenangaben.


Grundriss des Erdgeschosses: Wohnzimmer, Küche, Bad, Schlafzimmer, Treppe, Doppelgarage und Garten.


Mehrteiliger Architekturentwurf eines Hauses mit Balkon, Treppe, Solarmodulen und Geländeunterschieden.


Verschiedene Ansichten eines modernen Hauses auf Hanglage: 3D-Renderings, Grundriss.
J
j.bautsch
07.03.19 08:28
also ich finde es unbehaglich in ein Haus zu kommen und vor eine Treppe zu laufen.... weis nicht, kommt mir iwie unangenehm vor. muss es denn eine gerade Treppe sein? ich finde die lässt Flure immer eng und schlauchig wirken und schafft sehr viel Lauffläche die nicht gut genutzt werden kann es sei denn man plant wirklich viel Platz ein und 1,09m (da muss noch putz abgezogen werden, also viel mehr 1,00m) ist alles andere als großzügig
im Allraum kommt mir alles irgendwie verloren vor, zu viel Leerfläche und ich sitze nicht gerne mit dem rücken zum Raum (Sofa)

Das Obergeschoss ist ja recht simpel, nur die Badplanung finde ich nicht so prickelnd, der Slalom um Waschbecken und Toilette zur dusche sollte behoben werden
Z
Zaba12
07.03.19 08:48
j.bautsch schrieb:
also ich finde es unbehaglich in ein Haus zu kommen und vor eine Treppe zu laufen.... weis nicht, kommt mir iwie unangenehm vor. muss es denn eine gerade Treppe sein? ich finde die lässt flure immer eng und schlauchig wirken und schafft sehr viel Lauffläche die nicht gut genutzt werden kann es sei denn man plant wirklich viel Platz ein und 1,09m (da muss noch putz abgezogen werden, also viel mehr 1,00m) ist alles andere als großzügig
im Allraum kommt mir alles irgendwie verloren vor, zu viel Leerfläche und ich sitze nicht gerne mit dem rücken zum Raum (Sofa)

Das Obergeschoss ist ja recht simpel, nur die Badplanung finde ich nicht so prickelnd, der Slalom um Waschbecken und Toilette zur dusche sollte behoben werden
Der Flur ist nicht das Problem bei einer offenen Holztreppe. Die Küchendetails spielen in dieser frühen Phase eh noch keine Rolle. Auch die Badplanung muss jetzt noch nicht im Detail geklärt sein. Nur die Position der Bäder muss halt für die Auslässe durchdacht sein.

Grundsätzlich finde ich die Verplanung der Räume ganz gut.
Ich würde die Treppe vom Wohnzimmer begehbar planen, wobei offen oder geschlossen dann Geschmackssache ist. Ne offene Treppe gespiegelt wenn Du reinkommst stelle ich mir doof vor. Wäre die Treppe gespiegelt geschlossen könnte es erdrückend wirken.

Ansonsten bin ich gespannt auf den Preis und was im Angebot drin ist und was nicht!
treppewohnzimmercarportbadplanung