ᐅ Grundriss 120 m², Einfamilienhaus 1,5, Carport. Meinungen, Ideen, Vorschläge
Erstellt am: 22.06.22 16:17
W
WattfraßWattfraß schrieb:
Die Innenaufteilung ist noch völlig offen. Die Sache wäre erledigt, wenn der Bauantrag bereits eingereicht wäre.
Leider sind wir keine Architekten und bitten daher um Nachsicht bei der Umsetzung der Vorschläge. Wir sind natürlich auch sehr über anschauliche Skizzen dankbar. (Die Außenmaße betragen 9,50 m x 8,12 m, Wandstärke 30 cm)Weshalb lässt man sich auf ein solches Maß "festnageln"?Jetzt darf man schauen, wie man in Verbindung mit dem Grundstück, dem Carport, dem Zugang etc. damit klarkommt.
Und dann, wir bereits erwähnt, weshalb hat man überhaupt schon unterschrieben? Die Motivation des Planers wird sich sicherlich in Grenzen halten. Auch sollt nicht ihr planen und die Grundrisse dem GU zum Abmalen vorlegen, nein, er soll eure Ideen/Wünsche umsetzen.
Die wir übrigens noch immer nicht kennen.
driver55 schrieb:
Die Wünsche wären/sind?Ich wundere mich auch über den Ton hier in diesem Thread und finde ihn ehrlich gesagt unangebracht. Der TE greift alle Kritiken/Vorschläge auf, antwortet schnell und liefert super viel. Wirklich vorbildlich, @Wattfraß!
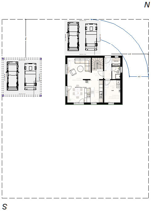
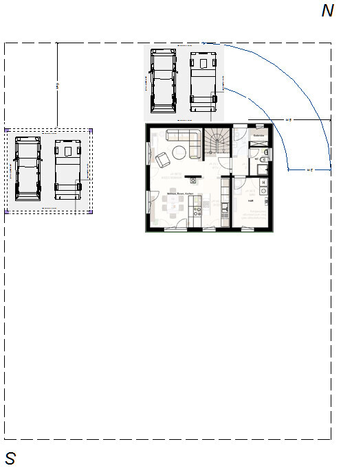
Ich würde das Haus in die Nordecke setzen und 2 Stellplätze davor. Dann hättest Du einen mega Garten nach Süd-West. Wenn du dann unbedingt noch einen Carport willst, würde ich den wie Katja an der Westseite platzieren. Aber eben nicht direkt ans Haus, damit du da Licht und Aussicht behältst.

Und zum EG-Grundriss: Ungeachtet der Statik würde ich den Platz unter der Treppe für die Garderobe nutzen (Einbaulösung), dafür WC und Hauswirtschaftsraum länger und schmäler und der Küche mehr Platz gönnen. Tür zwischen WZ und Treppe finde ich nie verkehrt, gerade wenn Kinder im Haus sind. OG kann so bleiben.

Ich würde das Haus in die Nordecke setzen und 2 Stellplätze davor. Dann hättest Du einen mega Garten nach Süd-West. Wenn du dann unbedingt noch einen Carport willst, würde ich den wie Katja an der Westseite platzieren. Aber eben nicht direkt ans Haus, damit du da Licht und Aussicht behältst.
Und zum EG-Grundriss: Ungeachtet der Statik würde ich den Platz unter der Treppe für die Garderobe nutzen (Einbaulösung), dafür WC und Hauswirtschaftsraum länger und schmäler und der Küche mehr Platz gönnen. Tür zwischen WZ und Treppe finde ich nie verkehrt, gerade wenn Kinder im Haus sind. OG kann so bleiben.
Vielen Dank für die Kommentare und die ersten Skizzen zur Hauseinordnung.
@K a t j a
Wie ich sehe, verläuft der First bei der Skizze jetzt in Nord-Süd-Richtung. Dem ist hinzuzufügen, dass wir die Installation einer Photovoltaikanlage planen. Bei Drehung des Hauses in N-S-Richtung beträgt der Azimutwinkel ca. 56°. Wenn der First in Ost-West-Richtung verläuft, beträgt der Azimutwinkel hingegen ca. -33°. Das ist m. E. besser für den Ertrag der Photovoltaikanlage.
Hierzu werde ich Rücksprache mit dem GU halten. Inwiefern würdest du die Außenmaße ändern wollen und wie würde sich das auf die Raumaufteilung auswirken?
Wir tendieren auch dazu, das Haus in die Nordecke zu setzen. Für das zukünftige Carport würden wir ebenfalls die Nordwestecke reservieren. Um jedoch nicht unnötig zwei Einfahrten (= Stellplatz) bauen zu müssen, würden wir diese direkt vor dem geplanten Carport errichten.
Unsere Wünsche / Ziele anbei noch einmal zusammengefasst:
- Süd-West-Ausrichtung
- Offene Küche (keine "L-Form") mit Kücheninsel
- Zwischen Küchenrückwand und Kücheninsel großes bodentiefes Fenster
- Offener Wohnbereich (Küche, Wohnzimmer, Esszimmer)
- Kamin im Wohnbereich
- EG mit separater Dusche für den Hund
- Identische Kinderzimmer mit gleicher Ausrichtung
- Ankleide im Elternschlafzimmer
- Möglichst viele große bodentiefe Fenster in den Wohnbereichen
Was uns bei der letzten Grundrissskizze gefallen hat, ist das Stück Wand (Verlängerung vom Flur), welches als Raumteiler zwischen Esszimmer und Wohnzimmer fungiert. Hier könnte man einen TV anbringen und hätte so im Wohnzimmer die Wand an der Treppe für die Couch frei. In diesem Fall müsste man die großen Westfenster nicht zustellen.
Viele Grüße!
@K a t j a
Wie ich sehe, verläuft der First bei der Skizze jetzt in Nord-Süd-Richtung. Dem ist hinzuzufügen, dass wir die Installation einer Photovoltaikanlage planen. Bei Drehung des Hauses in N-S-Richtung beträgt der Azimutwinkel ca. 56°. Wenn der First in Ost-West-Richtung verläuft, beträgt der Azimutwinkel hingegen ca. -33°. Das ist m. E. besser für den Ertrag der Photovoltaikanlage.
K a t j a schrieb:
Dürft Ihr die Außenmaße ändern, wenn die Bruttogrundfläche gleich bleibt?
Hierzu werde ich Rücksprache mit dem GU halten. Inwiefern würdest du die Außenmaße ändern wollen und wie würde sich das auf die Raumaufteilung auswirken?
Würfel* schrieb:
Ich würde das Haus in die Nordecke setzen und 2 Stellplätze davor. Dann hättest Du einen mega Garten nach Süd-West. Wenn du dann unbedingt noch einen Carport willst, würde ich den wie Katja an der Westseite platzieren. Aber eben nicht direkt ans Haus, damit du da Licht und Aussicht behältst.
Wir tendieren auch dazu, das Haus in die Nordecke zu setzen. Für das zukünftige Carport würden wir ebenfalls die Nordwestecke reservieren. Um jedoch nicht unnötig zwei Einfahrten (= Stellplatz) bauen zu müssen, würden wir diese direkt vor dem geplanten Carport errichten.
driver55 schrieb:
Die wir übrigens noch immer nicht kennen.
Unsere Wünsche / Ziele anbei noch einmal zusammengefasst:
- Süd-West-Ausrichtung
- Offene Küche (keine "L-Form") mit Kücheninsel
- Zwischen Küchenrückwand und Kücheninsel großes bodentiefes Fenster
- Offener Wohnbereich (Küche, Wohnzimmer, Esszimmer)
- Kamin im Wohnbereich
- EG mit separater Dusche für den Hund
- Identische Kinderzimmer mit gleicher Ausrichtung
- Ankleide im Elternschlafzimmer
- Möglichst viele große bodentiefe Fenster in den Wohnbereichen
Was uns bei der letzten Grundrissskizze gefallen hat, ist das Stück Wand (Verlängerung vom Flur), welches als Raumteiler zwischen Esszimmer und Wohnzimmer fungiert. Hier könnte man einen TV anbringen und hätte so im Wohnzimmer die Wand an der Treppe für die Couch frei. In diesem Fall müsste man die großen Westfenster nicht zustellen.
Viele Grüße!
Wattfraß schrieb:
Inwiefern würdest du die Außenmaße ändern wollen und wie würde sich das auf die Raumaufteilung auswirken?
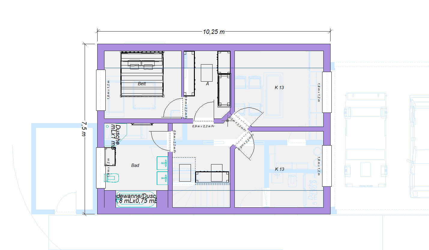
Man könnte überlegen, ob man das Haus länger und dafür schmaler oder quadratischer macht. Eventuell ergeben sich daraus günstigere Aufteilungen.K a t j a schrieb:
Man könnte überlegen, ob man das Haus länger und dafür schmaler oder quadratischer macht. Eventuell ergeben sich daraus günstigere Aufteilungen.Zum Beispiel so:Die Doppelflügelfenster sind nicht perfekt - sind nur angedeutet.
Ähnliche Themen