ᐅ Grundrissplanung einer Stadtvilla 140-145qm auf 1200qm Grundstück
Erstellt am: 28.11.25 07:55
D
Der-DachsH
hanghaus202328.11.25 14:50Ich seh hier wie @ypg die Sachverständigen nicht. 154m2*3000=465k+Nebenkosten+Garage+CP. Selbst ein Satteldach mit 130 m2 bekommst da nicht hin. Ich sehe da eher 100m2. Wunsch und Budget passen einfach nicht zusammen.
H
hanghaus202328.11.25 15:1011*8m Satteldach mit 45 Grad und 1m Kniestock. Das wird zwar knapp aber kann mit effektiver Bauart gelingen.
Keinen Kamin, Den braucht bei Fußbodenheizung kein Mensch.
Keine Garage, Autos vertragen sogar Regen.
Keine gerade Treppe oder Podesttreppe
Keine Sauna,
Kein Heimkino das kann man im WZ integrieren.
Such mal im Netz nach 100m2 und Satteldach. Dann findest sicher brauchbare Standardentwürfe.
Keinen Kamin, Den braucht bei Fußbodenheizung kein Mensch.
Keine Garage, Autos vertragen sogar Regen.
Keine gerade Treppe oder Podesttreppe
Keine Sauna,
Kein Heimkino das kann man im WZ integrieren.
Such mal im Netz nach 100m2 und Satteldach. Dann findest sicher brauchbare Standardentwürfe.
Arauki11 schrieb:
Wie hier vielfach erläutert erhältst Du natürlich nicht einmal im Ansatz eine "Villa", weswegen mich daran bereits immer die Bezeichnung als Marketing-Täuschung stört.Bei Erich hat man gerne "exquisit" und ähnliche Attribute verwendet, heute sagt man eher "Premium" ;-)https://www.instagram.com/11antgmxde/
https://www.linkedin.com/company/bauen-jetzt/
D
Der-Dachs28.11.25 15:46Ich danke allen für die Beteiligung und Kritik, ich versuche auf alles einzugehen, jedoch ohne Zitate da ich am Handy sitze und noch bei Arbeit bin.
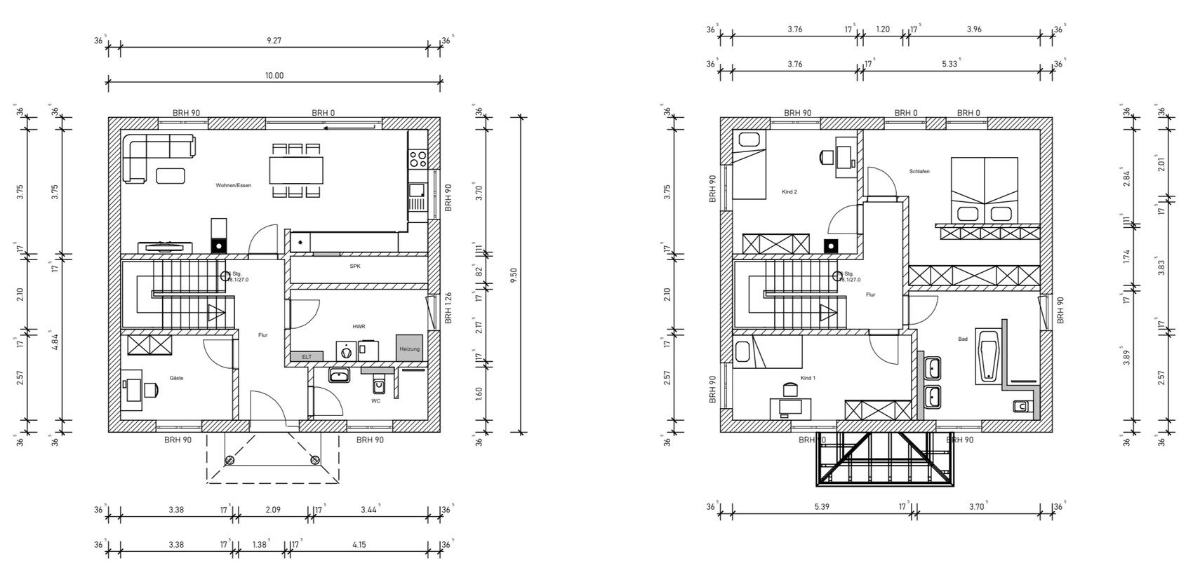
Also der Kamin wurde bereits versetzt, ebenso wurde ein weiteres Fenster im Badezimmer oben eingesetzt.
Heute gab es noch mal einen überarbeiteten Grundriss da ich noch einige Sachen optimieren wollte.
Man könnte jetzt sicherlich darüber diskutieren, ob man die Gebäudeart Stadtvilla nennt oder anders. Wir können es gerne „Haus“ nennen.
Was daran modern sein soll ist vermutlich immer eine persönliche Meinung, aber für mich ist es optisch ein moderner wirkendes Gebäude als ein 1,5 Geschosser oder ein Haus mit Flachdach. Aber auch da wird es modern aussehende Häuser geben. Wie gesagt, mMn Geschmackssache.
Teilweise habe ich mich bereits mit dem zusammenwirken von Fußbodenheizung und Kamin informiert, Nachteile sind uns bekannt.
Bzgl. Des Hauseinganges gibt es leider keine alternative, Eingang von der Seite wird durch meine Frau verneint. Das Haus wird in einer Linie mit den anderen gebaut somit bleibt wohl keine andere Möglichkeit.
Bzgl. Heimkinosystem - Prio eher gering deshalb weder eingezeichnet noch erwähnenswert.
Bzgl. der Kosten haben wir bereits einen Bauvertrag unterschrieben, Summe für den Bau 325.000 gerundet, darin enthalten sind die Fertigstellung inklusive WP, Technik usw. Malerarbeiten und Fußboden durch uns bzw. einen befreundeten Malermeister.
Die genauen Nebenkosten, bzw. Positionen kann ich nicht nennen, habe ich nicht im Kopf. Die Summe betrug um die 17.000€. Hinzu kommen Kosten des besagten Malers, wo wir uns im unteren 5-stelligen Bereich bewegen.
Warum der Entwurf so geworden ist, wie er ist dürfte beantwortet sein durch den Fragebogen. Zum großen Teil nach unseren Wünschen. „ZB“ ist leider ein Tippfehler.
Den ersten Entwurf kann ich noch nachreichen, wird aber nicht die erste Zeichnung sein, da wir 3 Stunden mit der Planerin zusammensaßen, um etwas aufs Papier zu bringen. Der erste Entwurf wird also eh bereits der Zweite oder dritte sein, versuche ich noch einzustellen.
Weiter zusammenfassend lässt sich sagen, das Haus wird nach unseren Bedürfnissen und teilweise Wünschen gebaut, einen Balkon gibt es nicht, es gibt eine Überdachung über dem Hauseingang. Wenn das Haus komplett nach unseren Wünschen gebaut werden sollte, müssten es vermutlich min. 250qm werden um alles unterzubringen. Kann ich mir aber nun mal nicht leisten.
Danke für den Tipp mit der Sauna, wie gesagt ganz weit unten auf der Prio.
Zeit ist durchaus ein Faktor bei uns, teure Miete, Bauzeitfenster und lange Genehmigungsdauer für den Bauantrag.
Kurz zum Hund, ich runde die Kosten mal auf 100€ auf mtl. Die haben wir jetzt auch, gutes Futter, Versicherungen usw inkl.
Garderobe würden wir unter der Treppe einplanen. Das hinausstehende Stück der Treppe nehmen wir bewusst in Kauf. Technikraum ist derzeit bei uns noch kleiner und wir kommen zurecht. Daher für uns eh eine Vergrößerung.
Wie bereits erwähnt, es besteht bereits ein Vertrag für besagte „Villa“ oder auch einfach Haus für die bestimmte Größe und Inklusivleistungen bzw. Zusätzlich gebuchte Positionen. Dazu sei gesagt, es handelt sich um ein regionales Bauunternehmen. Keine große Kette.
Im Anhang jetzt noch mal von heute aktualisierter Grundriss. Sowie der erste Entwurf mit Podesttreppe.
Sorry nochmal für fehlende „quotes“.

Also der Kamin wurde bereits versetzt, ebenso wurde ein weiteres Fenster im Badezimmer oben eingesetzt.
Heute gab es noch mal einen überarbeiteten Grundriss da ich noch einige Sachen optimieren wollte.
Man könnte jetzt sicherlich darüber diskutieren, ob man die Gebäudeart Stadtvilla nennt oder anders. Wir können es gerne „Haus“ nennen.
Was daran modern sein soll ist vermutlich immer eine persönliche Meinung, aber für mich ist es optisch ein moderner wirkendes Gebäude als ein 1,5 Geschosser oder ein Haus mit Flachdach. Aber auch da wird es modern aussehende Häuser geben. Wie gesagt, mMn Geschmackssache.
Teilweise habe ich mich bereits mit dem zusammenwirken von Fußbodenheizung und Kamin informiert, Nachteile sind uns bekannt.
Bzgl. Des Hauseinganges gibt es leider keine alternative, Eingang von der Seite wird durch meine Frau verneint. Das Haus wird in einer Linie mit den anderen gebaut somit bleibt wohl keine andere Möglichkeit.
Bzgl. Heimkinosystem - Prio eher gering deshalb weder eingezeichnet noch erwähnenswert.
Bzgl. der Kosten haben wir bereits einen Bauvertrag unterschrieben, Summe für den Bau 325.000 gerundet, darin enthalten sind die Fertigstellung inklusive WP, Technik usw. Malerarbeiten und Fußboden durch uns bzw. einen befreundeten Malermeister.
Die genauen Nebenkosten, bzw. Positionen kann ich nicht nennen, habe ich nicht im Kopf. Die Summe betrug um die 17.000€. Hinzu kommen Kosten des besagten Malers, wo wir uns im unteren 5-stelligen Bereich bewegen.
Warum der Entwurf so geworden ist, wie er ist dürfte beantwortet sein durch den Fragebogen. Zum großen Teil nach unseren Wünschen. „ZB“ ist leider ein Tippfehler.
Den ersten Entwurf kann ich noch nachreichen, wird aber nicht die erste Zeichnung sein, da wir 3 Stunden mit der Planerin zusammensaßen, um etwas aufs Papier zu bringen. Der erste Entwurf wird also eh bereits der Zweite oder dritte sein, versuche ich noch einzustellen.
Weiter zusammenfassend lässt sich sagen, das Haus wird nach unseren Bedürfnissen und teilweise Wünschen gebaut, einen Balkon gibt es nicht, es gibt eine Überdachung über dem Hauseingang. Wenn das Haus komplett nach unseren Wünschen gebaut werden sollte, müssten es vermutlich min. 250qm werden um alles unterzubringen. Kann ich mir aber nun mal nicht leisten.
Danke für den Tipp mit der Sauna, wie gesagt ganz weit unten auf der Prio.
Zeit ist durchaus ein Faktor bei uns, teure Miete, Bauzeitfenster und lange Genehmigungsdauer für den Bauantrag.
Kurz zum Hund, ich runde die Kosten mal auf 100€ auf mtl. Die haben wir jetzt auch, gutes Futter, Versicherungen usw inkl.
Garderobe würden wir unter der Treppe einplanen. Das hinausstehende Stück der Treppe nehmen wir bewusst in Kauf. Technikraum ist derzeit bei uns noch kleiner und wir kommen zurecht. Daher für uns eh eine Vergrößerung.
Wie bereits erwähnt, es besteht bereits ein Vertrag für besagte „Villa“ oder auch einfach Haus für die bestimmte Größe und Inklusivleistungen bzw. Zusätzlich gebuchte Positionen. Dazu sei gesagt, es handelt sich um ein regionales Bauunternehmen. Keine große Kette.
Im Anhang jetzt noch mal von heute aktualisierter Grundriss. Sowie der erste Entwurf mit Podesttreppe.
Sorry nochmal für fehlende „quotes“.
Das Beispiel Hausnrn. 4/4a/4b weist darauf hin, daß hier eine tiefere Bebauung möglich ist. Da würde ich an den Verkauf eines Grundstücksteiles (und womöglich gar auch über ein Doppelhaus) nachdenken - das könnte Deine Budgetschere schließen.
Weg mit dem Kamin. Und nicht vergessen: Phantasiemaße erzeugen Pfuschertaschen.
https://www.instagram.com/11antgmxde/
https://www.linkedin.com/company/bauen-jetzt/
Weg mit dem Kamin. Und nicht vergessen: Phantasiemaße erzeugen Pfuschertaschen.
https://www.instagram.com/11antgmxde/
https://www.linkedin.com/company/bauen-jetzt/
D
Der-Dachs28.11.25 15:56hanghaus2023 schrieb:
Hast Du das so gemeint? Gibt es Abmessungen vom Grundstück?Genau so war es gemeint. Noch nicht offiziell vermessen, aber 20x60mÄhnliche Themen