ᐅ Grundrissplanung einer Stadtvilla 140-145qm auf 1200qm Grundstück
Erstellt am: 28.11.25 07:55
D
Der-DachsD
Der-Dachs28.11.25 07:55Hallo liebes Forum, nachdem ich lange Zeit stiller Mitleser war, wollte ich mich auch einmal offenbaren und unseren Grundriss teilen. Dieser ist derzeit in Planung und ist kurz vor der Fertigstellung. Den Fragebogen habe ich nach bestem Wissen und Gewissen ausgefüllt.
Stadtvilla 140-145qm
Bebauungsplan/Einschränkungen
Größe des Grundstücks - 1200qm
Hang - nein
Grundflächenzahl - unbekannt bzw. §34 Baugesetzbuch
Geschossflächenzahl - §34 Baugesetzbuch
Baufenster, Baulinie und -grenze - §34 Baugesetzbuch
Randbebauung -
Anzahl Stellplatz - 2
Geschossigkeit - 2 Vollgeschosse
Dachform - Walmdach
Stilrichtung - modern
Ausrichtung - Hauseingang Süd/Südost, Terrasse Nord/Nordwest
Maximale Höhen/Begrenzungen -
weitere Vorgaben -
Anforderungen der Bauherren
Stilrichtung, Dachform, Gebäudetyp - Stadtvilla mit Walmdach, moderne Ausführung
Keller, Geschosse - 2 Vollgeschosse ohne Keller
Anzahl der Personen, Alter - 2 Erwachsene (33, 29), 1 Kind (1), 1 Hund (3), ein weiteres Kind ind den nächsten Jahren
Raumbedarf im EG, OG - EG -> offener Wohn-Essbereich mit offener Küche, Speisekammer, Hauswirtschaftsraum, Büro/Gästezimmer, Gäste-WC mit Dusche
Büro: Familiennutzung oder Homeoffice? - Büro für Homeoffice und Fam-Nutzung
Schlafgäste pro Jahr - Schwiegereltern bzw Familie 3 mal pro Jahr
offene oder geschlossene Architektur - eher offen
konservativ oder moderne Bauweise - modern
offene Küche, Kochinsel - offene Küche ja, Kochinsel evtl.
Anzahl Essplätze - im Alltag derzeit 3, in unregelmäßigen Abständen mehr, bis zu 12
Kamin - ja
Musik/Stereowand - Heimkino nach Möglichkeit
Balkon, Dachterrasse - nein
Garage, Carport - in Zukunft ja, Carport neben dem Haus, Garage nach Möglichkeit in der Tiefe des Grundstückes
Nutzgarten, Treibhaus - Nutzgarten ja, kleine Fläche bis zu 100qm
Hausentwurf
Von wem stammt die Planung: Planer eines Bauunternehmens
Was gefällt besonders? Warum?
Was gefällt nicht? Warum?
Preisschätzung laut Architekt/Planer: 330.000€
Persönliches Preislimit fürs Haus, inkl. Ausstattung: 370.000€
favorisierte Heiztechnik: Wärmepumpe
Wenn Ihr verzichten müsst, auf welche Details/Ausbauten
-könnt Ihr verzichten:
-könnt Ihr nicht verzichten:
Warum ist der Entwurf so geworden, wie er jetzt ist? ZB
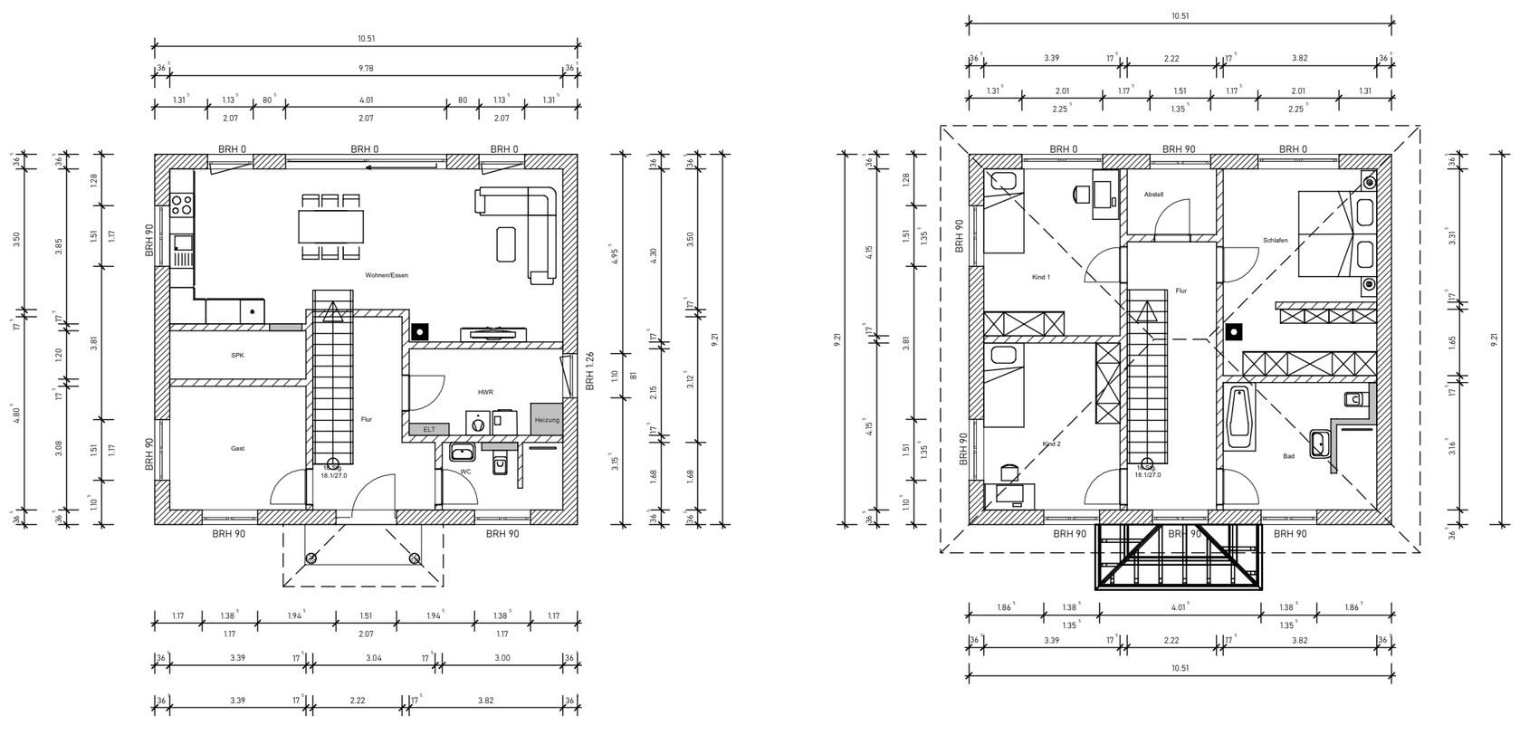
Der erste Entwurf vom Planer sah eine gewendete Treppe vor, da uns aber solche gar nicht gefallen und wir gleichbleibende Trittstufen wollten ist es final eine gerade Treppe geworden. Wir haben es zuvor noch mit einer Podesttreppe versucht, diese nimmt aber zu viel Platz weg.
Der Entwurf entstand also zum Teil nach unseren Wünschen und zum Teil in Do-it-yourself Planung. Wir wollten versuchen alles weitestgehend unterzubringen.
Zum Entwurf sei noch zu sagen, dass sich im OG ein Abstellraum befindet, welcher noch abgeändert wird. Statt des eines Abstellraumes, soll dort der Eingang zum Schlafzimmer werden. Die Wand an der die Schränke stehen soll noch ein Stück vorgezogen werden, sodass diese fast gleich mit dem Kamin abschließen. Das Bett soll mit Blickrichtung Fenster aufgestellt werden.
Badezimmerplanung ist vorläufig und wird noch geöndert, ein großer Wunsch wäre eine kleine Sauna darin unterzubringen. Steht aber weit unten auf der Prio-Liste.
Ich hoffe ich habe genug Infos gegeben und werde versuchen schnellstmöglich zu antworten.
Ich danke jetzt schon für Eure Beteiligung.


Stadtvilla 140-145qm
Bebauungsplan/Einschränkungen
Größe des Grundstücks - 1200qm
Hang - nein
Grundflächenzahl - unbekannt bzw. §34 Baugesetzbuch
Geschossflächenzahl - §34 Baugesetzbuch
Baufenster, Baulinie und -grenze - §34 Baugesetzbuch
Randbebauung -
Anzahl Stellplatz - 2
Geschossigkeit - 2 Vollgeschosse
Dachform - Walmdach
Stilrichtung - modern
Ausrichtung - Hauseingang Süd/Südost, Terrasse Nord/Nordwest
Maximale Höhen/Begrenzungen -
weitere Vorgaben -
Anforderungen der Bauherren
Stilrichtung, Dachform, Gebäudetyp - Stadtvilla mit Walmdach, moderne Ausführung
Keller, Geschosse - 2 Vollgeschosse ohne Keller
Anzahl der Personen, Alter - 2 Erwachsene (33, 29), 1 Kind (1), 1 Hund (3), ein weiteres Kind ind den nächsten Jahren
Raumbedarf im EG, OG - EG -> offener Wohn-Essbereich mit offener Küche, Speisekammer, Hauswirtschaftsraum, Büro/Gästezimmer, Gäste-WC mit Dusche
Büro: Familiennutzung oder Homeoffice? - Büro für Homeoffice und Fam-Nutzung
Schlafgäste pro Jahr - Schwiegereltern bzw Familie 3 mal pro Jahr
offene oder geschlossene Architektur - eher offen
konservativ oder moderne Bauweise - modern
offene Küche, Kochinsel - offene Küche ja, Kochinsel evtl.
Anzahl Essplätze - im Alltag derzeit 3, in unregelmäßigen Abständen mehr, bis zu 12
Kamin - ja
Musik/Stereowand - Heimkino nach Möglichkeit
Balkon, Dachterrasse - nein
Garage, Carport - in Zukunft ja, Carport neben dem Haus, Garage nach Möglichkeit in der Tiefe des Grundstückes
Nutzgarten, Treibhaus - Nutzgarten ja, kleine Fläche bis zu 100qm
Hausentwurf
Von wem stammt die Planung: Planer eines Bauunternehmens
Was gefällt besonders? Warum?
Was gefällt nicht? Warum?
Preisschätzung laut Architekt/Planer: 330.000€
Persönliches Preislimit fürs Haus, inkl. Ausstattung: 370.000€
favorisierte Heiztechnik: Wärmepumpe
Wenn Ihr verzichten müsst, auf welche Details/Ausbauten
-könnt Ihr verzichten:
-könnt Ihr nicht verzichten:
Warum ist der Entwurf so geworden, wie er jetzt ist? ZB
Der erste Entwurf vom Planer sah eine gewendete Treppe vor, da uns aber solche gar nicht gefallen und wir gleichbleibende Trittstufen wollten ist es final eine gerade Treppe geworden. Wir haben es zuvor noch mit einer Podesttreppe versucht, diese nimmt aber zu viel Platz weg.
Der Entwurf entstand also zum Teil nach unseren Wünschen und zum Teil in Do-it-yourself Planung. Wir wollten versuchen alles weitestgehend unterzubringen.
Zum Entwurf sei noch zu sagen, dass sich im OG ein Abstellraum befindet, welcher noch abgeändert wird. Statt des eines Abstellraumes, soll dort der Eingang zum Schlafzimmer werden. Die Wand an der die Schränke stehen soll noch ein Stück vorgezogen werden, sodass diese fast gleich mit dem Kamin abschließen. Das Bett soll mit Blickrichtung Fenster aufgestellt werden.
Badezimmerplanung ist vorläufig und wird noch geöndert, ein großer Wunsch wäre eine kleine Sauna darin unterzubringen. Steht aber weit unten auf der Prio-Liste.
Ich hoffe ich habe genug Infos gegeben und werde versuchen schnellstmöglich zu antworten.
Ich danke jetzt schon für Eure Beteiligung.
W
wiltshire28.11.25 08:58Der Entwurf ist funktional in Ordnung, wenn man den langen Weg zur Küche und Speisekammer in Kauf nehmen will. Der Kaminzug ist im OG suboptimal integriert. Den kann man auch durch die Wohnzimmerwand in den Hauswirtschaftsraum und dann weniger störend im Schlafzimmer setzen. Die Gerade Treppe kostet zwar Platz, das aber an einer Stelle, in der in einem quadratischen Grundriss eh kein Licht ist - daher geht das für mich völlig in Ordnung. Der Eingang zum Allraum wäre ohne Vorsprung eleganter gelöst - Geschmackssache. Die Möbel sind sicher nur beispielhaft gestellt - mit dem Wohnraum lässt sich sicher etwas Schönes strukturieren. Oben im Bad würde ich ein weiteres Fenster über die Toilette setzen um Querlüften zu ermöglichen.
Stadtvillen sind nicht meins, aber die Umsetzung erscheint mir sinnvoll.
Stadtvillen sind nicht meins, aber die Umsetzung erscheint mir sinnvoll.
Du liest ja schon länger mit und vlt. hättest Du daher bereits etwas früher hier einsteigen sollen; noch ist ja aber Nichts gebaut.
Was mir auffällt:
Die Planzeichnung an sich empfinde ich als etwas lieblos auch weil nur irgendwelche Möbel da hingestellt wurden, was zwangsläufig noch zu weiteren Problemen führen wird. Nehmt Euch die Zeit, diese exakt und realistisch einzuzeichnen.
Wieso ist da ein Balkon eingezeichnet, auf dem ohnehin niemals Jemand sitzen wird, wenn das Budget so knapp ist oder soll das einen üppigen Eingangsbereich darstellen? Auch ein solcher kostet Geld, das ihr offenbar nicht üppig habt. Ich habe den Eindruck, Eure Baufirma betreibt etwas Schönfärberei, was ja auch deren Recht ist als Hausverkäufer. Wieso aber zeichnen sie einen teuren Kamin ein oder ein schickes Vordach, wenn sie doch von Euch wissen, dass dies eine finanziell knappe bzw. eher schwierig machbare Kiste wird. Das aber ist Euer Job, dies zu prüfen, ergo würde ich solche beschönigenden aber zu Vorgaben ersteinmal konsequent herausstreichen.
Solltest Du entgegen der Erwartung Geld übrig haben leiste Dir eine Kontrollierte-Wohnraumlüftung, eine Terrassenüberdachung, wertige Möbel......und streiche diese teure Schiebetür, die ebenso mMn meist nur ein teurer Trend ist.
Hier im Forum sind Leute, die Dir bzw. Deinem Entwurf wirklich helfen können, sofern Du dazu offen bist und nicht an solchen Vorgaben festhalten möchtest.
Bitte all das nicht falsch verstehen und keinesfalls möchte ich Deine "Euphorie" bremsen aber Dein Budget zwingt Dich aber zu klaren, realistischen Entscheidungen. Alleine der Hund kostet Dich jeden Monat etwa €200.- geschätzt, auch das will einkalkuliert sein. Ich würde Euch eher dazu raten, die nice-to-haves konsequent aus den Gedanken zu streichen und dies nict als Verlust zu betrachten, dafür aber deutlich mehr Mühe und Liebe in das wirklich Möglich zu stecken; daraus wird dann immer noch ein schönes Hauis bzw. gerade dann kann es das werden.
Was mir auffällt:
Der-Dachs schrieb:Wie hier vielfach erläutert erhältst Du natürlich nicht einmal im Ansatz eine "Villa", weswegen mich daran bereits immer die Bezeichnung als Marketing-Täuschung stört. Oftmals ist gerade dieser quadratische Grundriss eher ein Störfaktor für einen geschmeidigen Grundriss.
Stadtvilla 140-145qm
Der-Dachs schrieb:Bei uns gegenüber steht genau so etwas aber was daran empfindest Du als "modern" ?
Stadtvilla mit Walmdach, moderne Ausführung
Der-Dachs schrieb:Beschäftige Dich sinnvollerweise mit dem Zusammenwirken eines Kamines mit der technisch bedingten Trägheit der Fußbodenheizung. Ungeachtet dessen ist die Lage des Kamins ungünstig, wie bereits benannt. Und Kosten....!!!
Kamin - ja
Der-Dachs schrieb:Warum wurde das so gewählt und gibt es dazu wirklich keine Altenative ?
Ausrichtung - Hauseingang Süd/Südost, Terrasse Nord/Nordwest
Der-Dachs schrieb:Wo sehe ich das ?
Musik/Stereowand - Heimkino nach Möglichkeit
Der-Dachs schrieb:Ähm......weil gerade das interessant ist
Was gefällt besonders? Warum?
Was gefällt nicht? Warum?
Der-Dachs schrieb:Da ist mMn der Wunsch der Vater des Gedankens bei 140-145qm. Prüfe die tatsächlichen Kosten genauer ebenso wie Dein Budget, ich glaube nicht, dass Du da belastbare Zahlen vorliegen hast. Nenn bitte aucb mal die von Dir kalkulierten Nebenkosten um Hausbau.
Preisschätzung laut Architekt/Planer: 330.000€
Persönliches Preislimit fürs Haus, inkl. Ausstattung: 370.000€
Der-Dachs schrieb:Solche wichtigen Fragen werden hier nicht beantwortet, was ist "ZB", wobei man ja gerade an der Stelle wissen sollte, was die Bedürfnisse und Wünsche des Bauherrn sind.
Warum ist der Entwurf so geworden, wie er jetzt ist? ZB
Der-Dachs schrieb:Zeig doch auch mal diesen ersten Entwurf, damit man es beser verstehen kann, was Euch nicht gefällt. Ob der für mich eher unverständliche Wunsch nach "gleichbleibenden Trittstufen" mein gesamtes Hauskonzept dominieren sollte, denke ich nicht. Wie das Quadrat bringt die gerade Treppe ebenso weitere Konsequenzen mit sich, die sich dann auf das gesamte Hauskonzept auswirken. Ich empfinde das Pferd daher als von hinten aufzäumt und die gerade Treppe wie auch das Quadrat als Vorgabe als Konsequenz dafür, dass ihr nun versucht, den Rest da irgendwie reinzuquetschen.
Der erste Entwurf vom Planer sah eine gewendete Treppe vor, da uns aber solche gar nicht gefallen und wir gleichbleibende Trittstufen wollten ist es final eine gerade Treppe geworden. Wir haben es zuvor noch mit einer Podesttreppe versucht, diese nimmt aber zu viel Platz weg.
Die Planzeichnung an sich empfinde ich als etwas lieblos auch weil nur irgendwelche Möbel da hingestellt wurden, was zwangsläufig noch zu weiteren Problemen führen wird. Nehmt Euch die Zeit, diese exakt und realistisch einzuzeichnen.
Wieso ist da ein Balkon eingezeichnet, auf dem ohnehin niemals Jemand sitzen wird, wenn das Budget so knapp ist oder soll das einen üppigen Eingangsbereich darstellen? Auch ein solcher kostet Geld, das ihr offenbar nicht üppig habt. Ich habe den Eindruck, Eure Baufirma betreibt etwas Schönfärberei, was ja auch deren Recht ist als Hausverkäufer. Wieso aber zeichnen sie einen teuren Kamin ein oder ein schickes Vordach, wenn sie doch von Euch wissen, dass dies eine finanziell knappe bzw. eher schwierig machbare Kiste wird. Das aber ist Euer Job, dies zu prüfen, ergo würde ich solche beschönigenden aber zu Vorgaben ersteinmal konsequent herausstreichen.
Solltest Du entgegen der Erwartung Geld übrig haben leiste Dir eine Kontrollierte-Wohnraumlüftung, eine Terrassenüberdachung, wertige Möbel......und streiche diese teure Schiebetür, die ebenso mMn meist nur ein teurer Trend ist.
Der-Dachs schrieb:Genau dieses Empfinden habe ich hier, nachdem man unnötigerweise ein Quadrat sowie eine gerade Treppe vorgegeben hat.
Wir wollten versuchen alles weitestgehend unterzubringen.
Der-Dachs schrieb:Das macht es leider nicht besser, von der Türe läuft man direkt gegen das Bett bzw. hat man die Türe direkt im Blickfeld, das ist nicht schön. Vlt. übersehe ich ja etwas aber aktuell hast Du dann dort 382cm Breite. Mindestens 60cm Wandabstand (nicht wirklich üppig), dann sollte doch ein 2m breites Bett zumindest möglich sein (mit Einrahmung vlt. sogar 220cm), dann nochmal 60cm für zweiten Nachttisch o.ä. dann bist Du bereits bei 320cm von insgesamt 382cm. Genau dort aber geht die Tür nach innen auf, was nicht nur völlig ungemütlich ist, sondern schlichtweg so nicht möglich. Natürlich kann man auch hier wieder Alles irgendwie "versuchen unterzubringen", eine wirkliche Planung ist es dann aber eben nicht.
Das Bett soll mit Blickrichtung Fenster aufgestellt werden.
Hier im Forum sind Leute, die Dir bzw. Deinem Entwurf wirklich helfen können, sofern Du dazu offen bist und nicht an solchen Vorgaben festhalten möchtest.
Der-Dachs schrieb:Das steht aber Deiner Aussage gegenüber, dass die Planung kurz vor Fertigstellung steht. Gerade ein Bad birgt ja erhebliche Konsequenzen für die Planung mit und somit kann die Planung noch längst nicht fertig sein. Dich treibt doch Niemand an oder vlt. doch ? Lass Dir Zeit !!!
Badezimmerplanung ist vorläufig und wird noch geändert
Der-Dachs schrieb:Wünsche haben wir Alle aber in der aktuellen Phase solltest Du eher den klaren Blick haben. In Dein jetziges Bad passt keine Sauna, alleine das Budget lässt noch nichteinmal einen Gedanken dafür zu. Du hast ein wirklich großes Grundstück, was dadurch ohnehin Mehrkosten aufwerfen wird. Ich wollte auch mal eine Sauna und hab mir dann ebenm in Eigenleistung eine gebrauchte als Stecksystem günstig gekauft, diese ebenso günstig außen noch verkleidet und mit Dachdeckung versehen und sie schön genutzt. Als ich im Leben dann mal mehr Geld hatte habe ich mir eine großzügige Sauna auch ins Haus rein gebaut, an dieser Stelle bist Du aber eben gerade nicht.
ein großer Wunsch wäre eine kleine Sauna darin unterzubringen. Steht aber weit unten auf der Prio-Liste.
Bitte all das nicht falsch verstehen und keinesfalls möchte ich Deine "Euphorie" bremsen aber Dein Budget zwingt Dich aber zu klaren, realistischen Entscheidungen. Alleine der Hund kostet Dich jeden Monat etwa €200.- geschätzt, auch das will einkalkuliert sein. Ich würde Euch eher dazu raten, die nice-to-haves konsequent aus den Gedanken zu streichen und dies nict als Verlust zu betrachten, dafür aber deutlich mehr Mühe und Liebe in das wirklich Möglich zu stecken; daraus wird dann immer noch ein schönes Hauis bzw. gerade dann kann es das werden.
Der-Dachs schrieb:
Planung und ist kurz vor der Fertigstellung.Der-Dachs schrieb:
Preisschätzung laut Architekt/Planer: 330.000Sehe ich nicht.140qm, da sind wir mindestens bei 420000€, nur Haus ohne Baunebenkosten.
wiltshire schrieb:
Der Entwurf ist funktional in Ordnung,Sehe ich nicht.Keine Garderobe, keine Abstellfläche. Technikraum sehr klein, kaum Möglichkeit zum Wäschewaschen. Kaminschlot sehr schlechte Position und nicht in den Entwurf integriert, sondern nur hinzugefügt.
Treppenaustritt über die Vermauerung. Wie sieht denn das in der Decke OG aus?
Schlafzimmer zu schmal für eine Ankleide, dafür sehr breit ohne Nutzen.
Arauki11 schrieb:
Wieso ist da ein Balkon eingezeichnet,Sehe ich auch nicht.Arauki11 schrieb:
Alleine der Hund kostet Dich jeden Monat etwa €200.- geschätzt,Sehe ich nicht. Unser Hund frisst wertiges Futter unter 60€/Monat.Wegen des Budgets müssen wir aber auch keine Villa diskutieren, die nicht möglich ist.
ypg schrieb:
Sehe ich nicht. Unser Hund frisst wertiges Futter unter 60€/Monat.Das glaube ich Dir, ich kenne aber doch einige Familien, bei denen Katzen/Hunde eine doch recht hohe Summe verschlingen, nicht zu vergessen Steuer, Krankenversicherung, Tierpension, Hundeschule, Utensilien bis hin zu Therapiekosten UND Leckerli.....uvm. Es gibt ja einen wirtschaftlichen Grund, warum diese Bereiche um Tierfutter und -zubehör mittlerweile auch in allen Supermärkten so dominant sind. Würden Alle nur diese €60.- ausgegen wäre dies sicher anders dort.Ich hatte ja selbst viele Jahre einen Hund und wäre es mir zeitlich möglich hätte ich sofort auch wieder einen, dennoch glaube ich auch, dass solche Kosten oftmals unterbewertet werden und darum geht es mir hier.
Eine kurze Googleanfrage zeigt ja auch, dass zumindest im Schnitt betrachtet, diese Gesamtkosten eben doch meist höher liegen. Für mich selbst könnte ich mich aber auch eher in Deine Bewertung einreihen.
Hie sehe ich, und darum geht es mir ja im Grunde, dass der TE den finanziellen Punkt seiner Wünsche aktuell noch unterschätzt bzw. von Wünschen träumt, die nichtmal ansatzweise mit solchem Budget umsetzbar wären und er bislang wohl den geschöntzen Zahlen eines Hausbauer vertraut und er bereits vor Fertigstellung des Planes steht. Da würde ich dann sicherlich doch noch die ein oder andere Nachtr drüber schlafen und das nicht nur wg. des Grundrisses.
Vmtl. ist es dann wohl doch kein Balkon sondern Vordach o.ä. aber wie von mir geschrieben muss man eben auch das, zumindest in der gezeigten Dimension, zwingend auf die Probe stellen.
ypg schrieb:
Wegen des Budgets müssen wir aber auch keine Villa diskutieren, die nicht möglich ist.Thats it !H
hanghaus202328.11.25 14:44Ähnliche Themen