Grundrissplanung Doppelhaushälfte für 1 Familie (4 Personen) auf kleinem Grundstück

4,90 Stern(e) 9 Votes
Zuletzt aktualisiert 09.01.2026
Sie befinden sich auf der Seite 6 der Diskussion zum Thema: Grundrissplanung Doppelhaushälfte für 1 Familie (4 Personen) auf kleinem Grundstück
>> Zum 1. Beitrag <<

11ant

11ant

10,5 ist der aktuelle Planungsstand, 11m besprechen wir gerade.
Warum nicht zehn, das wäre hier viel besser (?)
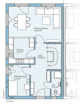
Der Einäugige ist der König unter den Blinden. Ich sehe die Gefahr, daß Dein Nachbar weil Du ja schon länger planst zu Dir aufschaut und Deine "Mondrian á la Pogo" Grundrißplanungsversuche ernst oder gar sich zum Vorbild nimmt - Tetrisgrundrisse mit einem Zickzackflur und einem zehn(!)eckigen Wohnzimmer wohlgemerkt.

@kbt09 hat Dir in Beitrag #2 einen Planungsthread von @goalkeeper und ihren Vorschlag daraus verlinkt, dem meines Erinnerns die verwirklichte Version weitgehend gefolgt ist. Sämtliche "üblichen Verdächtigen" Doppelhausbauträger turnen Dir Grundrisse vor, die zighundertfach erwiesenermaßen funktionieren und ausgetüftelt sind. Gerade an den Stellen, die bei Dir zu einem furchterregenden Gewürge geraten, kannst Du dort nachschauen, wie das erfolgreich gelöst wird (aber auch nicht weiter verengt werden kann). Die packen das serienmäßig in ein Grundflächenformat von meist etwa 6x12,5 ohne Erker oder "Erker". Kerstins Vorschlag hat Siebenkommawenig mal Zehn. Dein Baufenster ist 12m tief bei 3m Abstand zur Straße. D.h. ein 10m tiefes Haus könnte 2m nach planunten geschoben werden und hätte dann 5m für Stellplätze davor - wie breit darf die Zufahrt sein?

Auch die Planung aus dem Eröffnungsbeitrag würde funktionieren, allerdings erscheint mir der Keller (kennen wir die Höhen des Grundstücks ?) luxuriös. Ich würde vermutlich den Plan so nehmen, nur die Haustür gegen den Zählerschrank statt gegen die Garderobe öffnen, und die Haustechnik in den Spitzboden verlegen. Was sagt denn der Nachbar zum Keller (vorausgesetzt das Grundstück votiert nach der Kellerregel für ein Bodenplattenhaus) ? - vergeßt nicht: der Mitkellerer muß gleichzeitig oder vor dem ohne Kellerer bauen. Deinen anderen Thread vermute ich insofern als obsolet, wie ich hier garkeinen "Wohnraumbedarf erst in fünf Jahren" erkennen kann.

Mit der Planerin sind wir auch nicht sonderlich zufrieden muss ich sagen. Wir bekommen weder Hilfe bei unseren Wünschen noch klare Aussagen, was evtl. einfach nicht funktionieren kann.
Mit den Inklusivplanern der Baufirmen / Haushersteller kann man gar nicht "zufrieden" sein, weil das gar nicht deren Job ist. Insbesondere bei so einem ich sachsma nett "gewinnschwachen" Auftrag bekäme die wohl auch geschimpft, Dich wie einen Privatpatienten zu betüdeln. Dennoch hat sie ausweichlich des Bauvorschlages aus dem Eröffnungsbeitrag einen tadellosen Job gemacht. Was hat Dir denn daran so schlecht gefallen, daß Du Dich lieber persönlich als Nichtschwimmer auf´s Sprungbrett wagst?

Sowohl diesen als auch Kerstins Entwurf sehe ich neutral hölzern oder steinern gleichwertig und prinzipiell auch gleichpreisig baubar. Wenn es mit dem Nachbarn schon Austausch gibt, dann erzähle uns doch mal ibs. wie groß die Schnittmenge / Eure Einigkeit ist.
 
S

Schorsch_baut

Für gewöhnlich wird bei solchen Grundrissen der Eingang nicht an die Seite des Hauses gequetscht, um so ein Zickzack mit seltsamen Ecken überall zu vermeiden.
Grundriss eines Hauses mit Wohn-/Essbereich, Küche, Diele, HWR und WC.
 
kbt09

kbt09

@11ant ... nein, Goalkeeper hat klassischer gebaut. Du weißt doch, in bin der Fan von Essen/Kochen zusammen, möglichst am Garten und Sofa/TV eher getrennt als Rückzugsbereich.
 
11ant

11ant

@11ant ... nein, Goalkeeper hat klassischer gebaut. Du weißt doch, in bin der Fan von Essen/Kochen zusammen, möglichst am Garten und Sofa/TV eher getrennt als Rückzugsbereich.
Mir fehlt gerade die Zeit, diesen Thread ...
Das erinnert mich an Goalkeeper, der Thread ist insgesamt lesenswert, auch wg. Problemen, die mit dem zweiten Bauherrn auftreten können: https://www.hausbau-forum.de/threads/grundrissplanung-reh-mit-ca-145qm.31278/
... mit fast 180 Beiträgen durchzustöbern, wie sich der Entwurf nach dem Eröffnungsbeitrag entwickelt hat. Meiner Erinnerung nach ist er sich aber wesentlich treu geblieben. Der Thread mit den Problemen (mit Bürgermeister Depp und den Nachbarn Depper und Neodepper) ist übrigens nicht 31278, sondern 31198: https://www.hausbau-forum.de/threads/reihenendhaus-mit-gue-in-eigenregie-bauen.31198/
Foren-Beitrag: gelber Avatar, Schorsch_baut diskutiert Stuhlbeine und Eckbank.
 
Zuletzt aktualisiert 09.01.2026
Im Forum Grundrissplanung / Grundstücksplanung gibt es 2565 Themen mit insgesamt 88791 Beiträgen


Ähnliche Themen zu Grundrissplanung Doppelhaushälfte für 1 Familie (4 Personen) auf kleinem Grundstück
Nr.ErgebnisBeiträge
1Wohnzimmer: Wie Sofa, TV und Schränke stellen? 32
2Grundrissplanung 140-160 qm Einfamilienhaus - Entwurf ok? - Seite 211
3Einfamilienhaus 180-190qm auf 10x20m Baufenster, erster Entwurf GU - Seite 278
4Einfamilienhaus ca. 185qm - Erster Entwurf - Verbesserungsvorschläge? 17
5Grundriss-Entwurf: Einfamilienhaus mit 4 Schlafzimmern und Büro, 160qm - Seite 1482
63. Grundriss-Entwurf Neubau Einfamilienhaus 220qm 2 Vollgeschosse Dachterrasse - Seite 561
7Mit Erker in die Abstandsflächen - in diesem Fall zulässig? - Seite 330
8Gilt Traufhöhe auch für Erker? - Seite 211
9Erker in der Küche - Umsetzungsvorschläge 47
10Grundriss Satteldach, Plan für den Erker - Seite 313
11Grundriss Einfamilienhaus mit Erker - Seite 422
12Erker Möglich? Neubau im Neubaugebiet? 29
13Dachgaube und Erker unsymmetrisch 12
14Grundriss erster Entwurf - Meinungen erwünscht 21
15Entwurf Grundriss Bungalow Meinungen 22
16Einfamilienhaus-Grundriss Entwurf - Seite 223
17Unser Grundriss-Entwurf, eure Meinungen - Seite 220
18Bauen mit GU - Angebot vom GU inkl. Entwurf - Seite 322
19Ideen zu Entwurf für Einfamilienhaus mit Keller - Seite 347
20Entwurf - alle Richtungen bei Neubau vom Einfamilienhaus 91

Oben