Hausbau - Ratgeber
Bauherrenhilfe
- Bauherrenhilfe vor Vertragsabschluss
-- Warum einen unabhängigen Baubetreuer?
-- Vertragsgrundlagen
-- Bausumme
-- Zahlungsplan zur Kostenkontrolle
-- Pflichten des Bauherren vor Vertragsabschluss
-- Unterlagen beim Hausbau vor Vertragsabschluss
- Bauherrenhilfe nach Vertragsabschluss
-- Bauantrag bei Behörden
-- Bau-Genehmigungsverfahren bei Baubehörden
-- Bauspezifische Versicherungen
-- Bauzeitenplan
-- Baubeginn - die Letzten Pflichten der Bauherrschaft
- Bauherrenhilfe während der Bauzeit
- Gewährleistungsansprüche
- Bauabnahme
Baufinanzierung
- Baufinanzierung - Allgemeine Fragen
- Kreditarten
- Kredit-Konditionen
- Bausparen
- Staatliche Förderungen
- Verkehrswert
- Haushaltsrechnung und Bonität
Hausbau Planung
- Haustypen
- Hausbau Vorbereitungsarbeiten
- Das Baugrundstück
- Baugrund beim Hausbau
- Baurecht
- Gebäudeschutz
- Erdarbeiten und Wasserhaltung
- Stützmauern
- Einfriedung
- Untergeschoss
- Kanalisation
- Tragende Elemente
- Nichttragende Innenwände
- Fundation / Fundament
- Deckenkonstruktionen
- Dächer
- Kaminanlagen
- Treppen Rampen Leitern
- Dachbeläge und Spengler
- Fenster
- Sonnen und Wetterschutz
- Aussenputze
- Einbauten, Küchen, Türen
- Bodenbeläge und Unterlagsböden
- Parkett
- Gips, Wand, Decke
Haustechnik und Energie
- Heiztechnik
- Lüftung und Klimatechnik
- Sanitärtechnik
- Elektrotechnik
- Erneuerbare Energie
Whirlpools / Jacuzzi
Hausbau Magazin
- Baufinanzierung trotz Krise?
- Das Blockhaus
- Moderne Dämmstoffe im Vergleich
- Erker Vor- und Nachteile
- Glasflächen beim Hausbau
- Günstig ein Haus Bauen
- Mediterraner Hausbaustil
- Mehrgenerationenhaus
- Moderne Architektur
- Gartengestaltung leicht gemacht
- Traditioneller Ziegelbau
- Villa als höchster Traum
- Im Eigenheim Ruhestand geniessen
- Altbau sanieren
- Kauf einer Holzgarage
- Immobilienmakler
- Arbeitshandschuhe für den Winter
- Zuhause verschönern
- Outdoor-Plissees
- Schlafzimmer planen
- Terrassenüberdachung
- Wohngebäudeversicherung
- Zaunarten und Eigenschaften
- Hauseingang gestalten
- Der perfekte Grundriss
- Sparsamer heizen im Altbau
- Einfamilienhaus smart finanzieren
- Planung einer PV-Anlage
- Neues Haus
- Immobilienfinanzierung
- Installation einer Photovoltaikanlage
- Asbest erkennen und entfernen
- Gartenpflege im Frühling – worauf achten
- Sauna im Fokus - Wellness zuhause
- Erfolgreich vermieten
- Die perfekte Winterbekleidung
- Das Niedrigenergiehaus
- Der April und seine Stürme
- Architektonische Vielfalt
- Ökologisch und nachhaltig bauen
- Das perfekte Schlafzimmer
- Nachhaltige Energieversorgung
- Zukunftsorientiert bauen
- Nachhaltigkeit beim Hausbau
- Tiny Houses
- Wärmepumpen als nachhaltige Heizvariante
- Maßgeschneiderten Kleiderschrank
- Der richtige Baukredit
- Ratgeber für erfolgreichen Hausbau
- Haus als Altersvorsorge
Do-it-yourself Anleitungen
- Verlegeanleitung für Bodenbeläge und Parkett
- Bodenbeläge und Parkett reinigen und pflegen
- Malerarbeiten am Haus
- Garten Tipps
- Umzug und Reinigung

ᐅ Grundrissplanung Bungalow mit Keller - 140qm - leichter Hang

Erstellt am: 11.04.21 22:08
B
Bike975
E
Evolith
14.04.21 07:42
ypg schrieb:

Ich finde es falsch, jmd zu einer offenen Küche zu überreden, wenn er eigentlich eine geschlossene möchte. Letztendlich ging es um den schmalen Flur, der sich gebildet hat und nicht weggeplant wurde.

ja sie sollten sich die offene Küche mal irgendwo "in Action" ansehen. Hauptargument war ja der Geruch und die Möhle. Dagegen kann man auch bei einer offenen Küche was machen bzw. bringt auch die geschlossene Küche keine Vorteile.

Ansonsten gefällt mir der Plan schon besser, aber der Flur ist immer noch unschön. Man kommt ins Haus und das Erste, was man sieht ist die Kellertreppe. Ihr werdet um eine U- oder L-Treppe nicht drum herum kommen. Die könntet ihr dann auch in die Garderoben-Nische packen. Der Zugang zum Keller für Großes und Sperriges erfolgt dann von draußen.

Ich habe mal etwas mit Paint verschoben. Was mir bei unserem Bungalow (und jedem anderen Haus) auffällt: Das Klo direkt neben einem Schlafzimmer zu haben ist ungünstig. Mein Mann furzt so gelegentlich unsere Tochter wach. Röhrt ja auch so schön in der Schüssel.
Bei euch sollte die Treppe auch einigermaßen zentral zu den Schlafzimmern und Bad liegen. Ihr werdet die Dreckwäsche runter schleppen, da wird irgendwann jeder Schritt ätzend. Dazu habt ihr unten noch ein Gästebad. Das könntet ihr dann unbehelligt vom Pubilkumsbereich aufsuchen. Mal schnell in Unterwäsche in den Keller huschen, weil Töchterchen das Bad blockiert, Sohneman auf dem kleinen Bad trohnt, Mama mit der Nachbarin in der Küche plaudert und du dringend Duschen musst.
Grundsätzlich wäre auch zu überlegen, ob es 3 Duschbäder sein müssen oder das im Keller genügt und oben nur das kleine bad für das Geschäft genutzt wird.

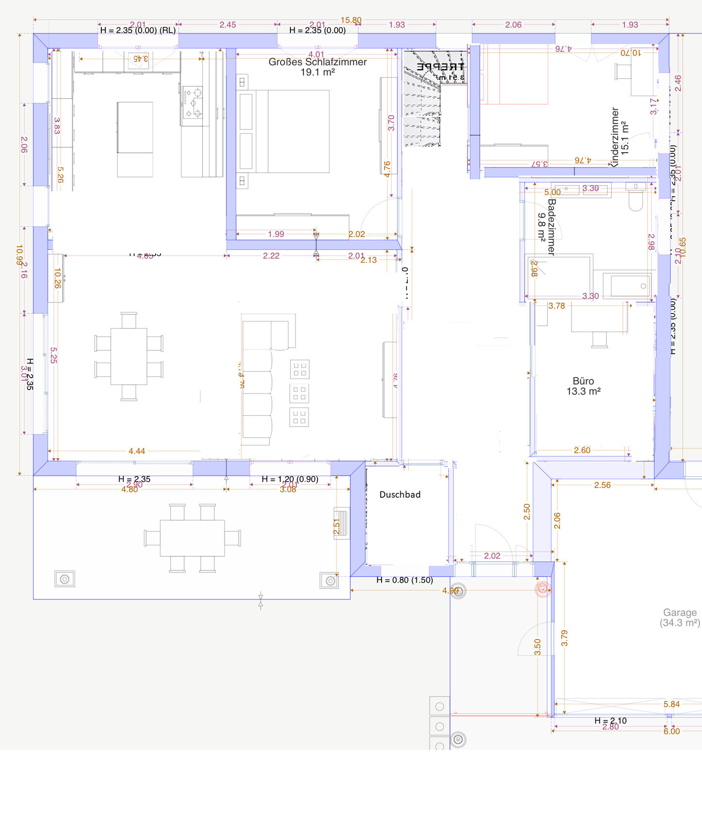
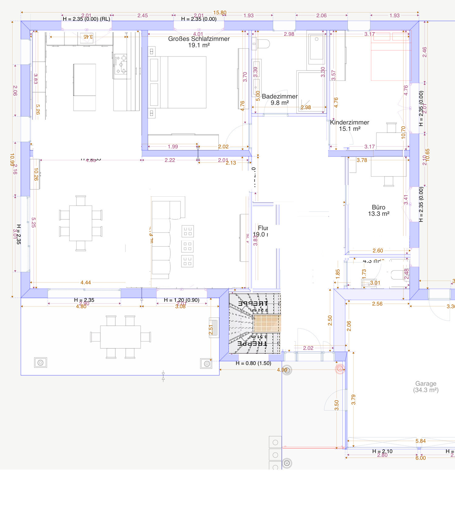
Grundriss eines Hauses mit Schlafzimmer, Bad, Kinderzimmer, Büro, Flur und Garage


Grundriss eines Hauses: Küche, Wohnzimmer, Schlafzimmer, Kinderzimmer, Büro, Bad, Duschbad, Garage.
B
Bike975
14.04.21 09:42
Evolith schrieb:

Ansonsten gefällt mir der Plan schon besser, aber der Flur ist immer noch unschön. Man kommt ins Haus und das Erste, was man sieht ist die Kellertreppe. Ihr werdet um eine U- oder L-Treppe nicht drum herum kommen. Die könntet ihr dann auch in die Garderoben-Nische packen. Der Zugang zum Keller für Großes und Sperriges erfolgt dann von draußen.

Die Variante mit der Treppe vorne diskutieren wir auch gerade. Treppe hinten ist eher keine Option. Finde diese im privaten Bereich eher "unpassend".
B
Bike975
14.04.21 09:52
ypg schrieb:

Durch den seitlich gelegten Eingang weg vom WZ ergibt sich der Flur. Eingang dort, wo jetzt die Küche ist. Küche, Ess und WZ rotieren lassen. Im Norden dann Büro. Treppe drehen... dadurch optimiert man die Zonierung, muss auch nicht ständig an der Privatzone vorbei, wenn man tags von draußen in die Küche kommt. Im Optimum ergibt sich fürs Kinderzimmer auch noch ein Südfenster.
Garagenposition ist bei Hang wohl nicht optimal?!

Deine Ansätze finde ich gut, lassen sich aber bei uns so nicht umsetzen.
Vielleicht noch einige Gedanken von mir, warum der Entwurf, wie er jetzt so ist, geworden ist.

Garagen können aus meiner Sicht nur da stehen wo sie jetzt sind. Im SW eher nicht, weil ich will ja keinen Schattenspender vor dem Haus 😉. Garagen nach hinten setzen funktioniert auch nicht, weil ich die dann nach unten setzen müsste (nach "unten" fahren will ich nicht und einen riesigen, gepflasterten Hof habe/brauche) und aufschütten, damit die Garagen auf Straßenniveau kommen, ist nicht möglich.

Wenn der Eingang weiter nach links kommt, dann geht das aber auf Kosten der Terrasse und des Gartens vorne.
E
Evolith
14.04.21 10:08
Bike975 schrieb:

Die Variante mit der Treppe vorne diskutieren wir auch gerade. Treppe hinten ist eher keine Option. Finde diese im privaten Bereich eher "unpassend".

Dabei aber immer bedenken, dass ihr dort täglich runter marschiert und immer durch den Schmutzbereich am Eingang geht. Meine Eltern haben die Treppe nach oben auch direkt neben der Haustür. Man neigt nach einer Weile dazu, quasi schräg auf die Treppe zu springen, damit man mit den Socken nicht im Sand landet (ich bin da Kleinkindgeschädigt).
B
Bike975
14.04.21 10:23
Evolith schrieb:

Man neigt nach einer Weile dazu, quasi schräg auf die Treppe zu springen, damit man mit den Socken nicht im Sand landet (ich bin da Kleinkindgeschädigt).

Guten Einwand.

Wir hatten gerade noch eine andere Idee.
Die gerade Treppe dorthin platzieren, wo im ersten Entwurf der lange Gang an der Küche war. Bin grade am skizzieren, wie es dann aussehen könnte.
Treppe wäre dann zwar etwas "dunkler", aber weg vom Flur.
Nida35a14.04.21 10:32
Gute Idee, 1-1,2m breit,
Beleuchtung (LED Panels) mit Bewegungsmelder einplanen, die Hände sind oft voll
treppeküchekellergaragenflurentwurfeingang