Hausbau - Ratgeber
Bauherrenhilfe
- Bauherrenhilfe vor Vertragsabschluss
-- Warum einen unabhängigen Baubetreuer?
-- Vertragsgrundlagen
-- Bausumme
-- Zahlungsplan zur Kostenkontrolle
-- Pflichten des Bauherren vor Vertragsabschluss
-- Unterlagen beim Hausbau vor Vertragsabschluss
- Bauherrenhilfe nach Vertragsabschluss
-- Bauantrag bei Behörden
-- Bau-Genehmigungsverfahren bei Baubehörden
-- Bauspezifische Versicherungen
-- Bauzeitenplan
-- Baubeginn - die Letzten Pflichten der Bauherrschaft
- Bauherrenhilfe während der Bauzeit
- Gewährleistungsansprüche
- Bauabnahme
Baufinanzierung
- Baufinanzierung - Allgemeine Fragen
- Kreditarten
- Kredit-Konditionen
- Bausparen
- Staatliche Förderungen
- Verkehrswert
- Haushaltsrechnung und Bonität
Hausbau Planung
- Haustypen
- Hausbau Vorbereitungsarbeiten
- Das Baugrundstück
- Baugrund beim Hausbau
- Baurecht
- Gebäudeschutz
- Erdarbeiten und Wasserhaltung
- Stützmauern
- Einfriedung
- Untergeschoss
- Kanalisation
- Tragende Elemente
- Nichttragende Innenwände
- Fundation / Fundament
- Deckenkonstruktionen
- Dächer
- Kaminanlagen
- Treppen Rampen Leitern
- Dachbeläge und Spengler
- Fenster
- Sonnen und Wetterschutz
- Aussenputze
- Einbauten, Küchen, Türen
- Bodenbeläge und Unterlagsböden
- Parkett
- Gips, Wand, Decke
Haustechnik und Energie
- Heiztechnik
- Lüftung und Klimatechnik
- Sanitärtechnik
- Elektrotechnik
- Erneuerbare Energie
Whirlpools / Jacuzzi
Hausbau Magazin
- Baufinanzierung trotz Krise?
- Das Blockhaus
- Moderne Dämmstoffe im Vergleich
- Erker Vor- und Nachteile
- Glasflächen beim Hausbau
- Günstig ein Haus Bauen
- Mediterraner Hausbaustil
- Mehrgenerationenhaus
- Moderne Architektur
- Gartengestaltung leicht gemacht
- Traditioneller Ziegelbau
- Villa als höchster Traum
- Im Eigenheim Ruhestand geniessen
- Altbau sanieren
- Kauf einer Holzgarage
- Immobilienmakler
- Arbeitshandschuhe für den Winter
- Zuhause verschönern
- Outdoor-Plissees
- Schlafzimmer planen
- Terrassenüberdachung
- Wohngebäudeversicherung
- Zaunarten und Eigenschaften
- Hauseingang gestalten
- Der perfekte Grundriss
- Sparsamer heizen im Altbau
- Einfamilienhaus smart finanzieren
- Planung einer PV-Anlage
- Neues Haus
- Immobilienfinanzierung
- Installation einer Photovoltaikanlage
- Asbest erkennen und entfernen
- Gartenpflege im Frühling – worauf achten
- Sauna im Fokus - Wellness zuhause
- Erfolgreich vermieten
- Die perfekte Winterbekleidung
- Das Niedrigenergiehaus
- Der April und seine Stürme
- Architektonische Vielfalt
- Ökologisch und nachhaltig bauen
- Das perfekte Schlafzimmer
- Nachhaltige Energieversorgung
- Zukunftsorientiert bauen
- Nachhaltigkeit beim Hausbau
- Tiny Houses
- Wärmepumpen als nachhaltige Heizvariante
- Maßgeschneiderten Kleiderschrank
- Der richtige Baukredit
- Ratgeber für erfolgreichen Hausbau
- Haus als Altersvorsorge
Do-it-yourself Anleitungen
- Verlegeanleitung für Bodenbeläge und Parkett
- Bodenbeläge und Parkett reinigen und pflegen
- Malerarbeiten am Haus
- Garten Tipps
- Umzug und Reinigung

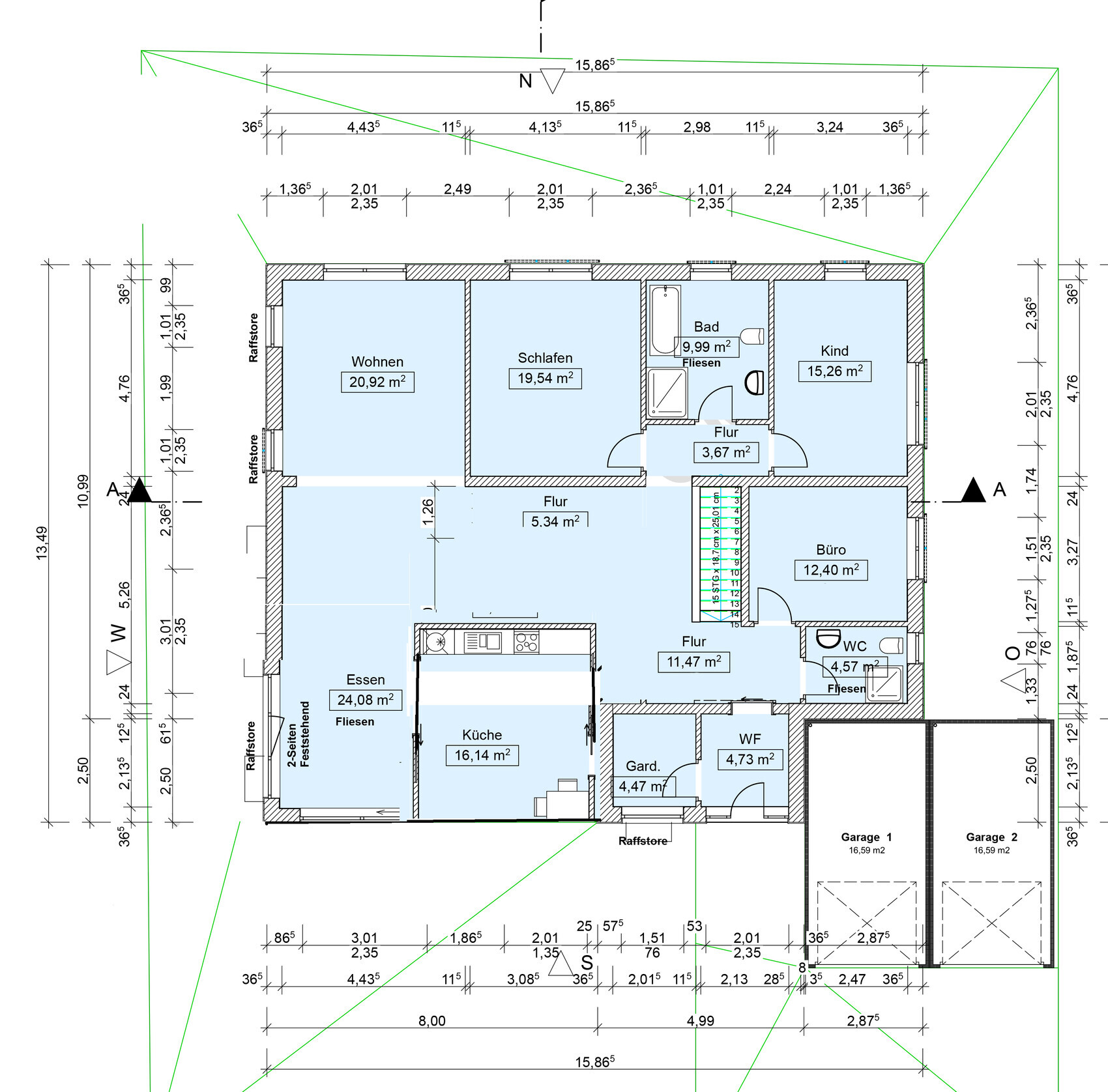
ᐅ Grundrissplanung Bungalow mit Keller - 140qm - leichter Hang

Erstellt am: 11.04.21 22:08
B
Bike975
E
Evolith
12.04.21 12:50
Bike975 schrieb:

Wie meinst du das genau?

Der Windfang ist unnötig. Der bringt wirklich nichts. Aber wenn ihr die Wand bis zum Vorsprungende nachzieht, könnt ihr die Küche runter ziehen und bekommt einen runderen Flur. Habe mal mit paint gefuscht.

Ich habe dir mal unseren Bungalow angehängt. Was ich liebe: zentraler Flur, wo ich überall schnell hinkomme, der viel natürliches Licht hat. Man wundert sich, wie oft man in seinem Haus durch die Flure latscht.
Eine Treppe könnte man entspannt in den Hauswirtschaftsraum einbauen.

Ich finde allgemein L-Bungalows deutlich einfacher einzurichten.

Grundriss eines Einfamilienhauses: Räume Wohnen, Essen, Küche, Schlafen, Bad, Kind, Büro, Garage


Grundriss eines Einfamilienhauses: Wohnbereich, Küche, Bad, WC, 2 Kinderzimmer, Elternzimmer, Diele.
M
Myrna_Loy
12.04.21 13:53
ypg schrieb:

Ich finde den langen, dunklen Gang zum Lebensraum (Wohnzimmer) ganz, ganz schlimm.
In Kombination mit drei mal um die Ecke gehen etwas fragwürdig, warum ihr diese Diskrepanz selbst nicht seht. Das Haus lädt nicht ein.
Ich würde das Haus so nicht kaufen wollen, ggf nur, wenn man die Trennwand entfernen kann.

Aus dem Keller würde ich mehr machen als Abstellfläche... sind die Räume Platzhalter? Ich lese nichts davon, dass eine Werkstatt gebraucht wird... das UG hat doch viel mehr Potential.
der Lageplan fehlt. Und mal selbst die Möbel einzeichnen, dann sieht man oft selbst die Mankos.

Man sieht, dass der Planer einen DIY-Grundriss nur ins Reine gebracht hat. Die planerische Finesse fehlt.
Das Highlight des Hauses ist eine ... Kellertreppe... 😕
ich kam mir gerade beim Nachverfolgen des Weges vor, wie eine Maus im Laborlabyrinth. 🙂
11ant12.04.21 18:14
Bike975 schrieb:

Alles was wir bisher an Entwürfen von GUs, Architekten, etc. bekommen haben, war nicht das, wo wir uns wohlgefühlt haben, bzw. unsere Wünsche bzgl Zimmergrößen/Aufteilung, etc. umgesetzt wurden. (Vielleicht sind wir auch bisher bei den "falschen" Leuten gewesen).
Ja, geht zu einem freien Architekten.
https://www.instagram.com/11antgmxde/
https://www.linkedin.com/company/bauen-jetzt/
P
pagoni2020
12.04.21 18:25
Bike975 schrieb:

Noch ist alles möglich.
DAS ist eine gute Einstellung.
Von daher würde ich mich am Anfang von jeglichen, unnötig eingrenzenden Parametern lösen. Ihr wollt ein Haus, das vom Grundriss optimal zu Euch passt. Da würde ich mich auch nicht an einer bestimmten Dachform festhalten und mir vlt. damit andere Optionen erschweren. Ein schönes oder weniger schönes Haus ist mit allen Dachformen möglich. Es muss insbesondere INNEN passen !
B
Bike975
12.04.21 19:56
Danke schonmal an Alle für das ganze Feedback (in nicht mal 24h). Tolles Forum 🙂.

Die Diskussionen haben bei uns nochmal einen Denkprozess angestossen, ob wir doch nicht auf die geschlossene Küche, die eigentlich gesetzt war, verzichten sollten, um „weniger Gänge“ und damit im Gegenzug mehr hellere Räume zu bekommen.

Evtl. überlegen wir auch, die Treppe anders zu platzieren bzw. eine Podest- oder L-Treppe zu machen (auch wenn die gerade Treppe bisher unser Favorit war).
Nida35a12.04.21 20:12
wir hatten bisher 2 Wohnungen mit geschlossener Küche, die Tür war immer auf bzw. ausgehangen und bei Besuch waren alle Frauen in der Küche zum alles hören,
seit 1995 nur noch offene Küche, ist geselliger,
beobachtet euch mal selbst
küchetreppeflur