B
Bootcamper31.01.18 13:08Hallo in die Runde!
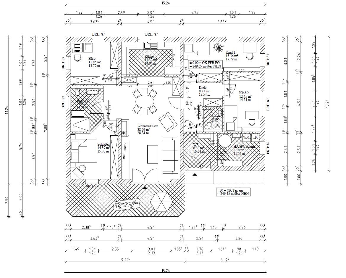
Wir planen aktuell ein Bungalow auf unsere Grundstück zu errichten. Durch das recht schmale Grundstück und den Gegebenheiten sind wir auf folgenden Grundriss gekommen.
Bebauungsplan/Einschränkungen
770m² Grundstück
kein Hang
Grundflächenzahl: 0,5
Baufenster, Baulinie und -grenze: 5 m von südlich gelegener Grundstücksgrenze
Anforderungen der Bauherren
Bungalow, Walmdach
Keller, Geschosse: kein Kelle, 1 Geschoss
Anzahl der Personen, Alter: Mann+Frau (Kinderwunsch)
Raumbedarf im EG, OG
Büro: Familiennutzung
Schlafgäste pro Jahr
offene oder geschlossene Architektur
konservativ oder moderne Bauweise
geschlossene Küche, über 2 m breite Schiebetür Verbindung zur Stube
Anzahl Essplätze: 6
Kamin: ja
Garage: ja, geplant in Nord-Östliche ecke des Grundstücks, mit Verbindung zum Haus durch Arbeitszimmer
Hausentwurf
Von wem stammt die Planung:
-Architekt
-Do-it-Yourself
Was gefällt besonders? Warum? Bungalow, möchte alles auf einer Ebene
Was gefällt nicht? Warum? Gäste-WC aktuell zu klein, es sollte eine kleine Dusche mit rein
Preisschätzung lt Architekt/Planer: 200k€ (Thüringen)
favorisierte Heiztechnik: Luft-Wasser Wärmepumpe
Besonderen Wert haben wir auf den großen Wohn-Essbereich gelegt, da sich hier das tägliche leben abspielt. Wir möchten keinen großen Flur, daher können wir mit dem Durchgangszimmer leben.
Was sagt ihr? Grobe Planungsfehler zu erkennen?



Wir planen aktuell ein Bungalow auf unsere Grundstück zu errichten. Durch das recht schmale Grundstück und den Gegebenheiten sind wir auf folgenden Grundriss gekommen.
Bebauungsplan/Einschränkungen
770m² Grundstück
kein Hang
Grundflächenzahl: 0,5
Baufenster, Baulinie und -grenze: 5 m von südlich gelegener Grundstücksgrenze
Anforderungen der Bauherren
Bungalow, Walmdach
Keller, Geschosse: kein Kelle, 1 Geschoss
Anzahl der Personen, Alter: Mann+Frau (Kinderwunsch)
Raumbedarf im EG, OG
Büro: Familiennutzung
Schlafgäste pro Jahr
offene oder geschlossene Architektur
konservativ oder moderne Bauweise
geschlossene Küche, über 2 m breite Schiebetür Verbindung zur Stube
Anzahl Essplätze: 6
Kamin: ja
Garage: ja, geplant in Nord-Östliche ecke des Grundstücks, mit Verbindung zum Haus durch Arbeitszimmer
Hausentwurf
Von wem stammt die Planung:
-Architekt
-Do-it-Yourself
Was gefällt besonders? Warum? Bungalow, möchte alles auf einer Ebene
Was gefällt nicht? Warum? Gäste-WC aktuell zu klein, es sollte eine kleine Dusche mit rein
Preisschätzung lt Architekt/Planer: 200k€ (Thüringen)
favorisierte Heiztechnik: Luft-Wasser Wärmepumpe
Besonderen Wert haben wir auf den großen Wohn-Essbereich gelegt, da sich hier das tägliche leben abspielt. Wir möchten keinen großen Flur, daher können wir mit dem Durchgangszimmer leben.
Was sagt ihr? Grobe Planungsfehler zu erkennen?
Bootcamper schrieb:
Durch das recht schmale Grundstück und den Gegebenheiten sind wir auf folgenden Grundriss gekommen.Den sehe ich noch nicht als letztes Wort.Bootcamper schrieb:
Wir möchten keinen großen Flur, daher können wir mit dem Durchgangszimmer leben.Ich sehe da genau das Gegenteil: einen zweigeteilten Flur, dessen größerer Teil als Allraum möbliert ist.Bootcamper schrieb:
Garage: ja, geplant in Nord-Östliche ecke des Grundstücks, mit Verbindung zum Haus durch ArbeitszimmerDa würde die Lage der Garage viel Grundflächenzahl für die Einfahrt kosten. Durchgangstüren zum Haus werden m.E. erheblich überbewertet. Straßenseitig ein Carport schiene mir günstiger. Der könnte der Haustür nahe genug sein, um einen Durchgang nicht zu vermissen.https://www.instagram.com/11antgmxde/
https://www.linkedin.com/company/bauen-jetzt/
B
Bootcamper31.01.18 15:0111ant schrieb:
Da würde die Lage der Garage viel Grundflächenzahl für die Einfahrt kosten. Durchgangstüren zum Haus werden m.E. erheblich überbewertet. Straßenseitig ein Carport schiene mir günstiger. Der könnte der Haustür nahe genug sein, um einen Durchgang nicht zu vermissen.Ich hätte erwähnen müssen, das mir das westliche Grundstück auch in den nächsten Jahren gehören wird, ich aber aktuell schon die vorhanden einfahrt von dem Grundstück nutze. Südlich vom Haus die 9x18m sollten Garten bleiben, wenn möglich.
Bootcamper schrieb:
Ich hätte erwähnen müssen, das mir das westliche Grundstück auch in den nächsten Jahren gehören wird, [...]Ja, das hättest Du wohl. Demnach stehst Du wohl mit dessen jetzigem Eigentümer gut genug, um auf dieser Seite jetzt einen Verzicht auf den Grenzabstand einzuholen und das Haus günstiger drehen zu können, was auch andere Grundrisse ermöglichte. Wenn Dir dieses Grundstück dann zufällt, verschiebst Du die Grenze oder hebst sie gar auf.https://www.instagram.com/11antgmxde/
https://www.linkedin.com/company/bauen-jetzt/
Seltsame Konstellation ... d. h., die Terrasse ist im Westen (Südwesten) zwischen Haus und der langen Einfahrt zur Garage? Wenn dir das Nachbargrundstück mal gehören soll, dann kann man sich ja vielleicht auch einigen, die Garage nicht ganz da hinten die Ecke packen zu müssen. Denk mal ans Schneeräumen, wenn man morgens da raus muss. Dann vielleicht die Garage jetzt auf dem Nachbargrundstück so setzen, dass sie für Terrasse vom Haus eher so eine Art Hof bildet.
Für einen Allraum halte ich den Essplatz für recht ungemütlich und dunkel.
Der Hauswirtschaftsraum/Technik-Raum wäre an der schönen Süd-Süd-West-Ecke vom Haus? Und das Büro im Norden?
Ist mal einer krank, muss er immer durch den Allraum ins Bad. Auch, wenn einer der Partner noch Besuch hat, schleicht der andere da irgendwie dran vorbei.
Kinder habt ihr noch nicht - oder? Zumindest in der Kleinkindphase ist eine Wanne recht praktisch. Das Gästebad soll wohl wg. der Kinderzimmer eine Dusche erhalten? Ein Fenster wäre auch schön .
Es macht immer Sinn, einen Nordpfeil auf Grundriss mit raufzusetzen.
Für einen Allraum halte ich den Essplatz für recht ungemütlich und dunkel.
Der Hauswirtschaftsraum/Technik-Raum wäre an der schönen Süd-Süd-West-Ecke vom Haus? Und das Büro im Norden?
Ist mal einer krank, muss er immer durch den Allraum ins Bad. Auch, wenn einer der Partner noch Besuch hat, schleicht der andere da irgendwie dran vorbei.
Kinder habt ihr noch nicht - oder? Zumindest in der Kleinkindphase ist eine Wanne recht praktisch. Das Gästebad soll wohl wg. der Kinderzimmer eine Dusche erhalten? Ein Fenster wäre auch schön .
Es macht immer Sinn, einen Nordpfeil auf Grundriss mit raufzusetzen.
Diese Konstellation: Garage im NO, Eingang im W neben der Terrasse.... nur weil da schon eine Auffahrt existiert. ?! Verstehe ich auch überhaupt nicht.
Warum denn nicht die Garage als Randbebauung näher am Hauseingang?
Kurze Wege! Kurze Wege!
Was allerdings ein Nogo ist und besser gePLANt werden kann, ist, dass Gäste oder alle immer an den Kinderzimmers vorbei müssen, sodass diese dem Schlaf beraubt werden könnten, wenn die Gäste etwas später heimgehen.
Und alle am Essenstisch Dir beim Pipimachen mehr oder weniger zuschauen... ok weniger, da ist ja die Badtür (schenkelklopf), dann bleibt es beim Kopfkino der übrigen, wenn der Herr sich kurz empfiehlt und grollende Geräusche aus dem Raum zum Esstisch rüberwabern.
Mir gefällt er ganz und gar nicht, der Entwurf. Als fertiges Haus würde ich es auch nicht kaufen wollen.
Warum denn nicht die Garage als Randbebauung näher am Hauseingang?
Kurze Wege! Kurze Wege!
Was allerdings ein Nogo ist und besser gePLANt werden kann, ist, dass Gäste oder alle immer an den Kinderzimmers vorbei müssen, sodass diese dem Schlaf beraubt werden könnten, wenn die Gäste etwas später heimgehen.
Und alle am Essenstisch Dir beim Pipimachen mehr oder weniger zuschauen... ok weniger, da ist ja die Badtür (schenkelklopf), dann bleibt es beim Kopfkino der übrigen, wenn der Herr sich kurz empfiehlt und grollende Geräusche aus dem Raum zum Esstisch rüberwabern.
Mir gefällt er ganz und gar nicht, der Entwurf. Als fertiges Haus würde ich es auch nicht kaufen wollen.
Ähnliche Themen