ᐅ Grundriss-Vorstellung Idee Bungalow 12x11m
Erstellt am: 07.07.23 17:44
R
Robert Bau202407.07.23 17:44Hallo liebes Hausbau-Forum,
ich habe mich heute registriert weil ich mich um ein Baugrundstück in meiner Gemeinde beworben habe und Zuversichtlich bin es zu bekommen.
Bebauungsplan/Einschränkungen
Größe des Grundstücks = 700qm²
Hang = Nein
Grundflächenzahl = 0,4
Geschossflächenzahl = 1 Geschoss (Bungalow - kein Keller)
Baufenster, Baulinie und -grenze = Baugrenze gem. § 23 Baunutzungsverordnung (Garage an Grenze, Wohnhaus 3m Abstand)
Randbebauung = Nein
Anzahl Stellplatz = 2
Geschossigkeit = 1 Geschoss (Bungalow)
Dachform
Stilrichtung = Satteldach
Ausrichtung = Süd
Maximale Höhen/Begrenzungen = 6.5m
weitere Vorgaben
Anforderungen der Bauherren
Stilrichtung, Dachform, Gebäudetyp = offen, Satteldach oder Walmdach, Bungalow
Keller, Geschosse = Nein
Anzahl der Personen, Alter = 2 Personen 40, 38
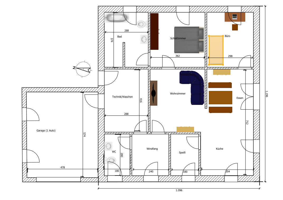
Raumbedarf im EG, OG =Windfang, WC, Technik, Speiß; Bad, Büro; Küche; Ess - Wohn und 1 Schlafzimmer
Büro: Familiennutzung oder Homeoffice? = Familiennutzung
Schlafgäste pro Jahr = keine (max 1)
offene oder geschlossene Architektur = offene
konservativ oder moderne Bauweise = mh eher modern
offene Küche, Kochinsel = offene Küche
Anzahl Essplätze = 4
Kamin = Nein
Musik/Stereowand = Wand für großen TV
Balkon, Dachterrasse = Nein
Garage, Carport = Garage für 1 Auto
Nutzgarten, Treibhaus = Garten
weitere Wünsche/Besonderheiten/Tagesablauf, gern auch Begründungen, warum dieses oder das nicht sein soll = offene Bauweise da ich eventuell statt einer Luft-Wasser-Wärmepumpe mehrere Luft-Luftwärmepumpe einsetzen möchte (noch am Anfang der Heizplanung)
Hausentwurf
Von wem stammt die Planung:
-Planer eines Bauunternehmens = aktuell Ich
-Architekt = aktuell noch Keiner
-Do-it-Yourself = Ja, alles was möglich und erlaubt ist
Was gefällt besonders? Warum? = aktuell überfragt
Was gefällt nicht? Warum? = aktuell überfragt
Preisschätzung lt Architekt/Planer: kein Preis vorhanden
Persönliches Preislimit fürs Haus, inkl Ausstattung: 220.000€
favorisierte Heiztechnik: Luft-Luftwärmepumpen (Splitklimageräte)
Wenn Ihr verzichten müsst, auf welche Details/Ausbauten
-könnt Ihr verzichten: Speiß
-könnt Ihr nicht verzichten: Büro
Warum ist der Entwurf so geworden, wie er jetzt ist? ZB
Standardentwurf vom Planer? Nein
Entsprechende/Welche Wünsche wurden vom Architekten umgesetzt? alle Wünsche umgesetzt, kein Architekt
Ein Gemisch aus vielen Beispielen aus div. Magazinen... Nein
Was macht ihn in Euren Augen besonders gut oder schlecht? Entwurf ist nur eine Idee, wünsche mir Kritik und Anregungen
Was ist die wichtigste/grundlegende Frage zum Grundriss in 130 Zeichen zusammengefasst?
Ich möchte wenigst möglich qm² in Flure verschwenden sondern den Platz im Bungalow effektiv nutzen.

ich habe mich heute registriert weil ich mich um ein Baugrundstück in meiner Gemeinde beworben habe und Zuversichtlich bin es zu bekommen.
Bebauungsplan/Einschränkungen
Größe des Grundstücks = 700qm²
Hang = Nein
Grundflächenzahl = 0,4
Geschossflächenzahl = 1 Geschoss (Bungalow - kein Keller)
Baufenster, Baulinie und -grenze = Baugrenze gem. § 23 Baunutzungsverordnung (Garage an Grenze, Wohnhaus 3m Abstand)
Randbebauung = Nein
Anzahl Stellplatz = 2
Geschossigkeit = 1 Geschoss (Bungalow)
Dachform
Stilrichtung = Satteldach
Ausrichtung = Süd
Maximale Höhen/Begrenzungen = 6.5m
weitere Vorgaben
Anforderungen der Bauherren
Stilrichtung, Dachform, Gebäudetyp = offen, Satteldach oder Walmdach, Bungalow
Keller, Geschosse = Nein
Anzahl der Personen, Alter = 2 Personen 40, 38
Raumbedarf im EG, OG =Windfang, WC, Technik, Speiß; Bad, Büro; Küche; Ess - Wohn und 1 Schlafzimmer
Büro: Familiennutzung oder Homeoffice? = Familiennutzung
Schlafgäste pro Jahr = keine (max 1)
offene oder geschlossene Architektur = offene
konservativ oder moderne Bauweise = mh eher modern
offene Küche, Kochinsel = offene Küche
Anzahl Essplätze = 4
Kamin = Nein
Musik/Stereowand = Wand für großen TV
Balkon, Dachterrasse = Nein
Garage, Carport = Garage für 1 Auto
Nutzgarten, Treibhaus = Garten
weitere Wünsche/Besonderheiten/Tagesablauf, gern auch Begründungen, warum dieses oder das nicht sein soll = offene Bauweise da ich eventuell statt einer Luft-Wasser-Wärmepumpe mehrere Luft-Luftwärmepumpe einsetzen möchte (noch am Anfang der Heizplanung)
Hausentwurf
Von wem stammt die Planung:
-Planer eines Bauunternehmens = aktuell Ich
-Architekt = aktuell noch Keiner
-Do-it-Yourself = Ja, alles was möglich und erlaubt ist
Was gefällt besonders? Warum? = aktuell überfragt
Was gefällt nicht? Warum? = aktuell überfragt
Preisschätzung lt Architekt/Planer: kein Preis vorhanden
Persönliches Preislimit fürs Haus, inkl Ausstattung: 220.000€
favorisierte Heiztechnik: Luft-Luftwärmepumpen (Splitklimageräte)
Wenn Ihr verzichten müsst, auf welche Details/Ausbauten
-könnt Ihr verzichten: Speiß
-könnt Ihr nicht verzichten: Büro
Warum ist der Entwurf so geworden, wie er jetzt ist? ZB
Standardentwurf vom Planer? Nein
Entsprechende/Welche Wünsche wurden vom Architekten umgesetzt? alle Wünsche umgesetzt, kein Architekt
Ein Gemisch aus vielen Beispielen aus div. Magazinen... Nein
Was macht ihn in Euren Augen besonders gut oder schlecht? Entwurf ist nur eine Idee, wünsche mir Kritik und Anregungen
Was ist die wichtigste/grundlegende Frage zum Grundriss in 130 Zeichen zusammengefasst?
Ich möchte wenigst möglich qm² in Flure verschwenden sondern den Platz im Bungalow effektiv nutzen.
Robert Bau2024 schrieb:
Entwurf ist nur eine Idee, wünsche mir Kritik und AnregungenDa hätte ich eigentlich nur zwei: 1. erkenne Deine Talentlage und gehe zu einem Architekten; 2. eigene Kinder(wunsch)losigkeit macht Kinderzimmer zwar entbehrlich und es gibt durchaus auch einen Markt für Paareohnekinder-Immobilien, auf dem ich Deinen Hausentwurf aber auch nicht als attraktives Angebot sehe. Auch wenn man sein Eigenheim zum Behaltenmöchten baut, den Verkaufs- oder Verwertungsfall sollte man nie ganz aus dem Blick schieben. Ein Gefälltnurunshaus bekommt schlechtere Finanzierungskonditionen.Robert Bau2024 schrieb:
Ich möchte wenigst möglich qm² in Flure verschwenden sondern den Platz im Bungalow effektiv nutzen.Du hast so ziemlich genau das Gegenteil erreicht: üppigst verschwendete Verkehrsflächen, die paradoxerweise gerade durch die Flurevermeidung "entstehen".Dein Entwurf ist leider nicht verbesserungsfähig (weil man nicht einfach mißlungene Parametrierungen abarbeiten kann - Entwerfenkönnen lernt sich nicht per Infinite Monkey mit Telefonjokern oder so). Vergleiche mal spaßeshalber die Dimensionen der ich sachma "Fernsehecke" und der Speisekammer miteinander (Beispiele nahezu beliebig austauschbar). Du kannst bestimmt etwas anderes gut ;-)
Im übrigen folgt aus einer baurechtlichen Eingeschossigkeit nicht, daß es ein Bungalow sein müsse (und ist ein Bungalow auch immer eine Liga teurer als die gleiche Größe in "anderthalb-" oder zweigeschossig). Nichthanglagige (also klassisch rein unterirdische) Keller zählen übrigens bei der Geschossigkeit nicht mit.
https://www.instagram.com/11antgmxde/
https://www.linkedin.com/company/bauen-jetzt/
11ant schrieb:
Da hätte ich eigentlich nur zwei:P.S.: da hatte ich die entscheidende ZeileRobert Bau2024 schrieb:
Persönliches Preislimit fürs Haus, inkl Ausstattung: 220.000€überlesen gehabt. Ich ergänze daher: 0. kaufe ein Los und hoffe auf Glück.https://www.instagram.com/11antgmxde/
https://www.linkedin.com/company/bauen-jetzt/
R
Robert Bau202407.07.23 22:00Hi, danke für deine Antwort.
Kinderlos sind wir nicht haben 2 Stück und leben mit diesen in eigenen Einfamilienhaus (BJ 2003). Der wahrscheinlich Laienhafte Grundriss ist aus dem Wunsch entstanden, dass meine Frau und ich in 12? Jahren in einen ebenerdigen Bungalow umsiedeln möchten.
- Der Grundriss wird natürlich SO nicht umgesetzt das ist wie im Eingang erwähnt nur ne Idee -
Zu den Kosten, ich würde Versuchen so zu bauen:
- Mutterboden ausheben (Tiefe ca. 30cm dann Felsenplatte)
- Felsenplatte im Untergrund Keller nicht möglich
- kapillarbrechende Schotterschicht einbringen und verdichten
- Trennlage und dann die Bodenplatte gießen
- Dämmung (nur auf die Bodenplatte??)
- danach mit Poroton Planziegel T9 42.5cm die Außenwände (KfW 55 im Blick haben evtl. dicker)
- und mit Poroton Schallschutzziegel Plan-T1,4 12.5cm die Inneren.
- fürs Dach ein offener Sichtdachstuhl. Form Satteldach (15°?)
- 2 Fußpfette links und rechts, eine Mittelpfette oben.
- die Sichtdachsparren
- Auf diese setze ich Sandwichpaneele (Dicke 220mm) Rot, Ziegeloptik (U Wert besser 0.15?)
- Blecheindeckung ist erlaubt
- Beleuchtung innen an den Wänden wegen offenen Dachstuhl
- Heizung 2-3 Splitklimageräte (Einbau und Beratung Kältefachbetrieb)
- Warmwasser über Durchlauferhitzer direkt bei den Entnahmestellen
- Photovoltaik kommt selbstverständlich auf´s Dach
das ist - wie der Grundriss - nur eine Idee... bin nicht vom Fach.
Die Kosten für Beton, Steine, Dachplatten und Holz kann man ja erfragen und zusammenrechen, Bagger, Maurer und Elektriker habe ich zur Hand.
Viele Grüße
Robert (der andere Talente hat)
Kinderlos sind wir nicht haben 2 Stück und leben mit diesen in eigenen Einfamilienhaus (BJ 2003). Der wahrscheinlich Laienhafte Grundriss ist aus dem Wunsch entstanden, dass meine Frau und ich in 12? Jahren in einen ebenerdigen Bungalow umsiedeln möchten.
- Der Grundriss wird natürlich SO nicht umgesetzt das ist wie im Eingang erwähnt nur ne Idee -
Zu den Kosten, ich würde Versuchen so zu bauen:
- Mutterboden ausheben (Tiefe ca. 30cm dann Felsenplatte)
- Felsenplatte im Untergrund Keller nicht möglich
- kapillarbrechende Schotterschicht einbringen und verdichten
- Trennlage und dann die Bodenplatte gießen
- Dämmung (nur auf die Bodenplatte??)
- danach mit Poroton Planziegel T9 42.5cm die Außenwände (KfW 55 im Blick haben evtl. dicker)
- und mit Poroton Schallschutzziegel Plan-T1,4 12.5cm die Inneren.
- fürs Dach ein offener Sichtdachstuhl. Form Satteldach (15°?)
- 2 Fußpfette links und rechts, eine Mittelpfette oben.
- die Sichtdachsparren
- Auf diese setze ich Sandwichpaneele (Dicke 220mm) Rot, Ziegeloptik (U Wert besser 0.15?)
- Blecheindeckung ist erlaubt
- Beleuchtung innen an den Wänden wegen offenen Dachstuhl
- Heizung 2-3 Splitklimageräte (Einbau und Beratung Kältefachbetrieb)
- Warmwasser über Durchlauferhitzer direkt bei den Entnahmestellen
- Photovoltaik kommt selbstverständlich auf´s Dach
das ist - wie der Grundriss - nur eine Idee... bin nicht vom Fach.
Die Kosten für Beton, Steine, Dachplatten und Holz kann man ja erfragen und zusammenrechen, Bagger, Maurer und Elektriker habe ich zur Hand.
Viele Grüße
Robert (der andere Talente hat)
K
K a t j a08.07.23 08:19Hallo Robert und willkommen. Das ist alles sehr unausgereift und läuft hier unter der Nummer Schnappsidee. Weder Budget, Entwurf noch Ablaufplan (über)zeugen von irgend einer Sachkenntnis. 12 Jahre wären allerdings eine angemessene Zeit, um diese zu erwerben. Besteht denn für das Grundstück ein Bauzwang für die kommenden Jahre?
Wenn es hier sinnvolle Resultate geben soll, würde ich auch dringend zu einem Fachmann oder ein Architekturstudium raten.
Wenn es hier sinnvolle Resultate geben soll, würde ich auch dringend zu einem Fachmann oder ein Architekturstudium raten.
Robert Bau2024 schrieb:
-Do-it-Yourself = Ja, alles was möglich und erlaubt istVerstehe ich es richtig, dass Du allein oder mit Deiner Frau alles ganz allein bauen möchtest?Die Schnapsidee fängt leider dort an, wo Du nach 8 Stunden Arbeit, ggf 9 Stunden mit An- und Abfahrt, auf dem Grundstück bei Wind und Wetter als Laien rödeln wollt. Das ist zwar auf dem geduldigen Stundenplan machbar, allerdings kann ich aus eigener Erfahrung sagen, dass man schon nach nur 5 Wochen Maler- und Bodenbelagsarbeiten schon krumm geht und eigentlich den Jahresurlaub gerne hätte anders verbringen wollen. Das ein oder andere macht man noch am Wochenende, aber auch bei einer 40-Stunden-Woche als Angestellter ist man nach wenigen durchgearbeiteten Wochenenden fix und fertig.
Eine Alternative bietet sich mit Ytong-Bausatzhäusern an, womit man den Rohbau selbst erledigen kann.
Für den Einbau von Elektrik, Sanitär und Heizung sollte man auf fachmännische Hilfe zurückgreifen.
Robert Bau2024 schrieb:
Die Kosten für Beton, Steine, Dachplatten und Holz kann man ja erfragen und zusammenrechen, Bagger, Maurer und Elektriker habe ich zur Hand.Du kannst ja gern Material zusammenrechnen, aber was ist mit Lieferung, Lagerung und Gerätschaften? Und dann natürlich ein Drittel Verbrauchsmaterial davon zusätzlich an Schrauben etc, wovon Du noch gar nicht weißt, das so etwas verbraucht wird.Robert Bau2024 schrieb:
Persönliches Preislimit fürs Haus, inkl Ausstattung: 220.000€Aber wie man es dreht und wendet: man kann zwar einiges sparen, aber man braucht auch sehr viel länger. Siehe oben. Man setzt seinen Arbeitsplatz aufs Spiel und seine Gesundheit.Nehmen wir an, Du sparst 50000€ an Arbeitslöhnen und ziehen das später ab, kostet das Haus dennoch 3000€/qm, also bei 100qm 300000€ in kompakter Bauweise plus Baunebenkosten von ca. 50000€, also 350000€ minus Deiner EL von 50000€, also 300000€.
Da ist dann aber auch noch keine Garage bei, noch ein Pflasterstein oder Bäumchen für die Außenanlagen.
Robert Bau2024 schrieb:
Photovoltaik kommt selbstverständlich auf´s DachIch würde erst einmal kleine Brötchen backen und auf das „selbstverständliche“, was viel Kosten verursacht, in der Berechnung (natürlich auch Umsetzung) verzichten.Das gilt auch für extravagante Planung wie einen offenen Giebel. Den gibt es nämlich nicht umsonst, sondern kostet im Vergleich mehr, da mehr Dachfläche gedämmt werden muss Und die Statik herausfordernder ist.
Robert Bau2024 schrieb:
Entwurf ist nur eine Idee, wünsche mir Kritik und AnregungenKritik, Anregungen…Robert Bau2024 schrieb:
Was gefällt besonders? Warum? = aktuell überfragt
Was gefällt nicht? Warum? = aktuell überfragt… ist natürlich schwer, wenn Du noch nicht einmal selbst feststellen kannst, was Dir gefällt und was nicht.Vielleicht so: wenn ein offener Giebel gewünscht ist, dann sollte er auch im Entwurf ersichtlich sein. Also: man sollte dann auch in der Planung den offenen Giebel mit seiner Statik berücksichtigen und die Wände so planen, dass der Giebel auch funktioniert.
Robert Bau2024 schrieb:
Ich möchte wenigst möglich qm² in Flure verschwenden sondern den Platz im Bungalow effektiv nutzen.Kann ich verstehen. Aber man setzt so etwas nicht um, indem man einfach nur den Flur weglässt und Türen irgendwie und irgendwo setzt. Es gibt ja überhaupt keine Privatsphäre in dem Haus. Bewohner stören sich gegenseitig. Mann hat Freunde zum TV schauen zu Besuch, wohin mit der Frau: die kann sich gar nicht im Haus bewegen, ohne dass sie entweder vor das TV-Bild läuft oder Euch stört. Du planst ja überall Verkehrsflächen ein, die so nicht als vollwertiger Wohnraum zu nutzen sind und nur noch mehr verschwenden als einen kleinen sinnvoll geplanten Flur.Ausserdem sind die Türen willkürlich gesetzt, sodass eigentlich jede Tür für eine nicht sinnvolle möblierung von Stauraum sorgt.
Auf Details einzugehen, lohnt hier nicht.
Ich kann Dir den Rat geben, Dich hinsichtlich der Baukosten und Baunebenkosten hinreichend zu informieren und Dich bei der Planung und Ausführung nicht selbst zu überschätzen.
Warum werden eigentlich nur 220000€ angesetzt, wenn anscheinend ein 20 Jahre junges Haus zu veräussern wäre und dann eigentlich das Kapital mehr sein müsste?! Was ist denn bei dem Haus noch Fremdkapital, und was ist es wert?
Ähnliche Themen