ᐅ Grundrissoptimierung Doppelhaushälfte 150-160m² auf 360² in Neubaugebiet
Erstellt am: 13.07.20 18:20
T
Tamicatevelinoz schrieb:
hättest du Lust mal ein Bild deiner Küche einzustellen? denn was du bisher von deinem Haus gezeigt, ist beeindruckend.Siehe Hausbilderthread, soeben gepostet.Muc1985 schrieb:
Wo in Muc bist du denn zu HauseMein Garten grenzt an einen Wald und ich lebe da, wo die Sonne aufgeht. Errätst Du den Stadtteil? Hallo zusammen, nach einiger Zeit melde ich mich mal aus dem Off zurück...
Wir haben inzwischen einen Werkvertrag unterschrieben und bewegen uns auf die Bauantragstellung zu. In einigen Runden mit unserem Planer und unter Einbezug eures Feedbacks hat sich noch manche Kleinigkeit verändert 😉
Ein paar weitere Kleinigkeiten müssen noch angepasst werden. Das soll dann nach Baugenehmigung bei der Schlussbesprechung stattfinden.
Ich stell mal die aktuellen Pläne ein und setz unter jede Etage eine Liste mit den Punkten, die wir noch ändern wollen.
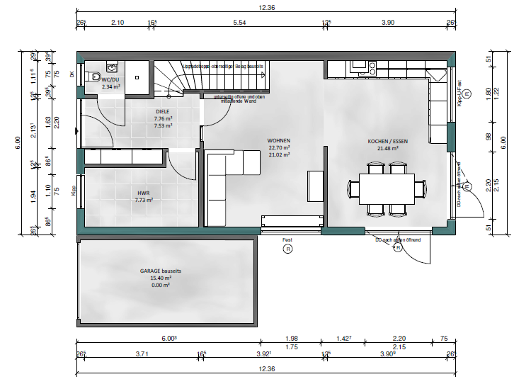
EG:

Dazu unsere aktuelle Küchenplanung:

Überlegung: lange Trennwand zwischen Wohnen und Essen ggf. mit Oberlicht, bzw. nur 1,9m hoch. Da ich dann die Frage, ob man am Durchgang mit einem Balken o.Ä. abschließt. Der statisch benötigte Träger befindet sich unsichtbar in der Decke...
Wir haben inzwischen einen Werkvertrag unterschrieben und bewegen uns auf die Bauantragstellung zu. In einigen Runden mit unserem Planer und unter Einbezug eures Feedbacks hat sich noch manche Kleinigkeit verändert 😉
Ein paar weitere Kleinigkeiten müssen noch angepasst werden. Das soll dann nach Baugenehmigung bei der Schlussbesprechung stattfinden.
Ich stell mal die aktuellen Pläne ein und setz unter jede Etage eine Liste mit den Punkten, die wir noch ändern wollen.
EG:
Dazu unsere aktuelle Küchenplanung:
Überlegung: lange Trennwand zwischen Wohnen und Essen ggf. mit Oberlicht, bzw. nur 1,9m hoch. Da ich dann die Frage, ob man am Durchgang mit einem Balken o.Ä. abschließt. Der statisch benötigte Träger befindet sich unsichtbar in der Decke...
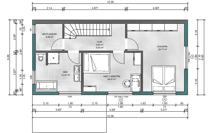
OG:

- Die Türen zu Abstellraum und Bad müssen denke ich nicht unbedingt 1m breit sein. Würdet ihr hier 86 cm empfehlen oder sogar auf 73 cm gehen? Vor allem im Bad sehe ich da einen Gewinn für eine großzügigere Anordnung der beiden Waschbecken mit einem schönen Unterschrank.
- Die Dusche ist noch nicht ganz richtig: Wir möchten die 120 cm hohe Installationswand hinter dem WC hier weiterführen. Die Dusche rückt dadurch etwas weiter in den Raum, dafür würden wir aber eine fixe Abstellfläche für Shampoo und co gewinnen.
- Die Schlafzimmertür würden wir ein Stück nach planoben (tatsächlich fast Norden) rücken und nach links statt nach recht öffnen. So ließe sich das kurze Wandstück noch mit einer schönen Kommode nutzen. Im Schrank hinter der Tür würden seltener benötigte Dinge verstaut.
Und hier noch ein paar Ansichten:

Von der Gartenseite:

Von der Straßenseite:

Südseite:

Von der Gartenseite:
Von der Straßenseite:
Südseite:
- Auf der Gartenseite sind die Unterteilungen der Fenster (Küche und Schlafzimmer) von den Proportionen noch nicht ganz stimmig finde ich. Beim Schlafzimmer darf und soll der Kämpfer da. 10 cm tiefer. In der Küche dafür ein wenig höher.
- Die Farben haben noch nichts mit unserer Planung zu tun. Ich finde auch, dass die Projektion der Dachfläche sehr merkwürdig anmutet und die andere Doppelhaushälfte fehlt natürlich total...
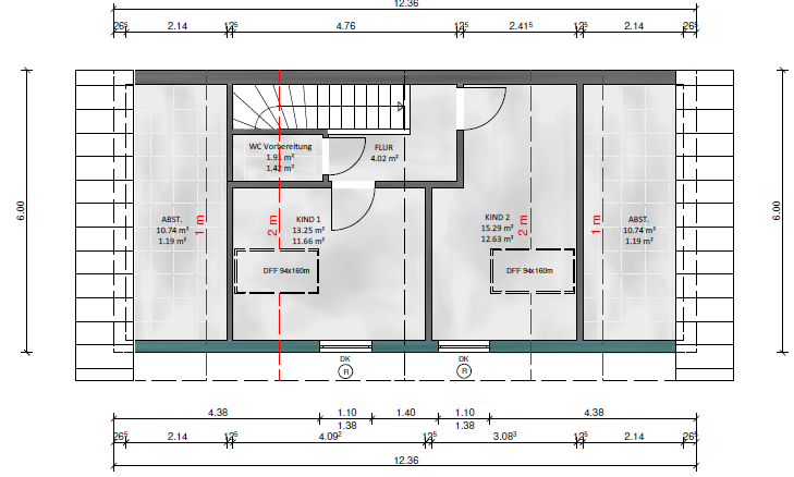
Wie ist die Belichtung des Flures im DG nun gedacht ?
Die Tür von Kind 1 andersherum anzuschlagen, sehe ich auch so, und die von Kind 2 würde ich so weit versetzen, daß dahinter eine Schranktiefe bleibt. In Abstellraum und Bad halte ich 76er Türen für ausreichend, aber auch 88.5er Türen nicht für zu üppig; in den Schlafräumen nähme ich 88.5er. Den seitlichen Dachüberstand würde ich so wählen, daß das Gesamt-Doppelhaus dadurch nicht "schief" aussieht. Die Fassadengliederung finde ich so tolerabel vom Optimum abweichend, wie es in dieser Hausform und -größe oft nicht perfekter geht. Kennt man inzwischen die Planungen "der anderen Hälfte" ?
Kompliment für die Gliederung des Mittelfensters der Giebelseite.
https://www.instagram.com/11antgmxde/
https://www.linkedin.com/company/bauen-jetzt/
Die Tür von Kind 1 andersherum anzuschlagen, sehe ich auch so, und die von Kind 2 würde ich so weit versetzen, daß dahinter eine Schranktiefe bleibt. In Abstellraum und Bad halte ich 76er Türen für ausreichend, aber auch 88.5er Türen nicht für zu üppig; in den Schlafräumen nähme ich 88.5er. Den seitlichen Dachüberstand würde ich so wählen, daß das Gesamt-Doppelhaus dadurch nicht "schief" aussieht. Die Fassadengliederung finde ich so tolerabel vom Optimum abweichend, wie es in dieser Hausform und -größe oft nicht perfekter geht. Kennt man inzwischen die Planungen "der anderen Hälfte" ?
Kompliment für die Gliederung des Mittelfensters der Giebelseite.
https://www.instagram.com/11antgmxde/
https://www.linkedin.com/company/bauen-jetzt/
Ähnliche Themen