ᐅ Grundrissoptimierung Doppelhaushälfte 150-160m² auf 360² in Neubaugebiet
Erstellt am: 13.07.20 18:20
T
TamicatI
Ideensucher16.07.20 02:52Tamicat schrieb:
Wenn die 2 dann nach oben ziehen, sind sie alt genug durchzuschlafen oder nachts alleine eine Treppe zu bewältigen Ich hab nen 6-jaehrigen zu Hause. So wie der nachts durch die Wohnung tigert wenn er nachts aufs Klo muss braucht es noch ein paar Jahre bis er eine Treppe nehmen koennte.
Bis dann beide Kinder alt genug sind oben zu schlafen dauert es nur noch 2 Jahre bis Kind 1 in die Pubertaet kommt und dann wochentags bis 23uhr mit Freunden chattet und dann auf die Idee kommt "oh, ich muss ja noch duschen. Und dann die Haare foehnen." Nervt euch sicher wenn ihr schlafen wollt.
3 Jahre spaeter kommen sie betrunken vom Weinfest der Stadt nach Hause und muessen in dem Zustand die Treppe runter wenn sie aufs Klo wollen.
Wohnetage ohne Toilette waere fuer mich ein Ausschlusskriterium.
Ich bin ja ansonsten kein Freund von "Aber denk an den WIederverkaufswert!", hier aber bitte bedenken, dass viele 4-koepfige Familien euer Haus direkt aussortieren werden.
Danke @Ideensucher für deinen Beitrag. Ich habe mich ob der Horrorszenarien gut amüsiert.
Mit deiner Beschreibung liegst du sicher nicht fernab von der Realität vieler Familien. Ich habe es selbst so kennengelernt, dass man aufeinander Rücksicht nimmt (z.B. nicht nachts duscht) und auch vor, das so weiterzugeben.
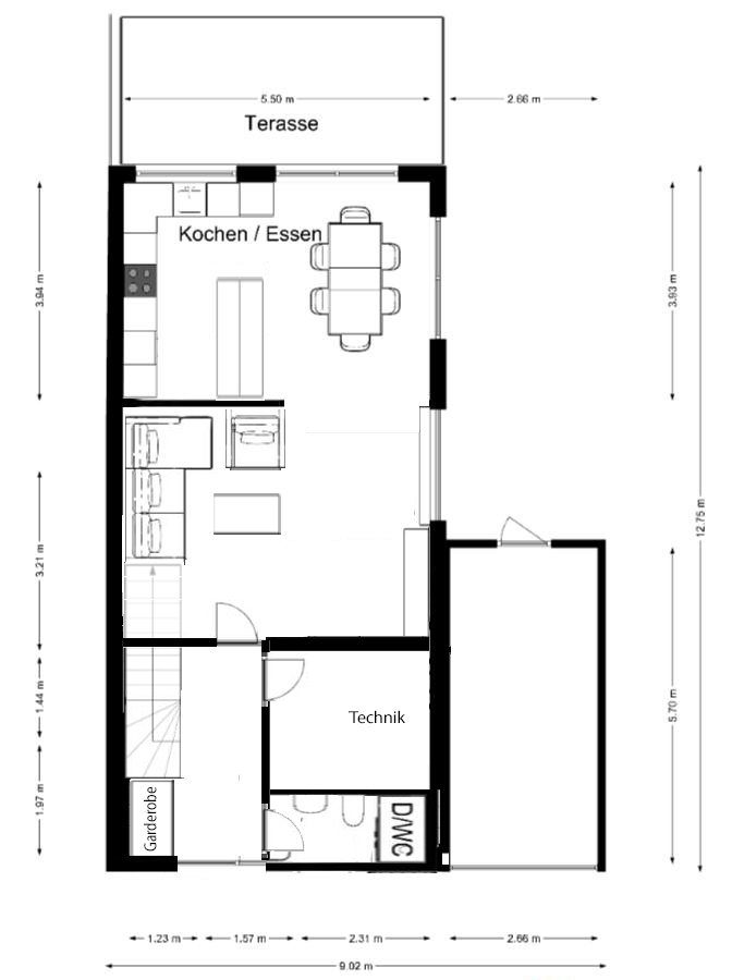
Falls wir jedoch eines Tages von einem WC im DG träumen, werden wir zumindest die entsprechenden Leitungen direkt verlegen lassen. Und damit diese dann an einer sinnvollen Stelle auskommen, hier nun ein Grundriss vom DG mit WC (auch wenn wir das wohl nicht sofort so umsetzten werden...).

Mit deiner Beschreibung liegst du sicher nicht fernab von der Realität vieler Familien. Ich habe es selbst so kennengelernt, dass man aufeinander Rücksicht nimmt (z.B. nicht nachts duscht) und auch vor, das so weiterzugeben.
Falls wir jedoch eines Tages von einem WC im DG träumen, werden wir zumindest die entsprechenden Leitungen direkt verlegen lassen. Und damit diese dann an einer sinnvollen Stelle auskommen, hier nun ein Grundriss vom DG mit WC (auch wenn wir das wohl nicht sofort so umsetzten werden...).
da mag das WC zwar in den Grundriss einigermaßen passen aber du weisst schon dass du neben Wasser (simpel!) auch ein Abwasserrohr mir Gefälle dafür benötigen wirst?
Aktuell kommt das in eurem Schlafzimmer raus, als mind. 15x15cm große vertikale Abmauerung (nächtliche Geschäfte, die einen um den Schlaf bringen können...) , die euch so die Schrankfront sauber halbieren wird. Oder ihr habt ein ganz schönes Gehänge (mind 30 cm von der Decke herab) im Flur des OG bis ihr in der Abstellkammer an die Vorwand des dortigen WC ankommt.
Und diese Entwässerungskanäle solltet ihr- wenn- dann auch gleich vorsehen!
Aktuell kommt das in eurem Schlafzimmer raus, als mind. 15x15cm große vertikale Abmauerung (nächtliche Geschäfte, die einen um den Schlaf bringen können...) , die euch so die Schrankfront sauber halbieren wird. Oder ihr habt ein ganz schönes Gehänge (mind 30 cm von der Decke herab) im Flur des OG bis ihr in der Abstellkammer an die Vorwand des dortigen WC ankommt.
Und diese Entwässerungskanäle solltet ihr- wenn- dann auch gleich vorsehen!
Alternativ wäre sowas eher vorstellbar- kann man ja im Moment noch als Lagerraum, etwa für Spielzeug, benutzen. Und wenn ihr den Spitzboden noch nicht verplant habt wäre es denkbar diesen Raum nur um die 2,3 m hoch zu bauen und oben drauf eine Ebene, die von einem der beiden Zimmer als Schlafempore nutzbar wäre, zu errichten.

Entwässert wird dann unten drunter im Bad.
Entwässert wird dann unten drunter im Bad.
Ich finde es super, dass Du mal vom klassischen Reihenhaus/Doppelhaus Grundriss abweichst. Was mir trotzdem nicht gefällt, ist das Wohnzimmer. Das ist so an den Rand geklebt und wirkt ungemütlich. Wie hast Du Dir das mit der Treppe vorgestellt, die da reinragt? Dass man durch die Öffnung läuft und dann um die Kücheninsel rumkurven muss, finde ich auch noch nicht ideal. Im OG gefällt mir der neue Bad-Grundriss noch nicht. Ist alles sehr gequetscht, nur damit das Klo verschwindet.
Ich habe Dir mal eine andere Idee skizziert. Treppe nen Tick Richtung Eingangsseite geschoben. Platz für Garderobe vor der Treppe und zusätzlicher Stauraum unter der verkleideten Treppe. Die im WZ hereinragende Treppe würde ich verkleiden und als einbauschrank nutzen. Gerne auch mit dekorativer Öffnung und Beleuchtung. Im DG würde das mit der leicht verschobenen Treppe ja auch gut funktionieren. Das musst Du dir jetzt selbst vorstellen.


Ich habe Dir mal eine andere Idee skizziert. Treppe nen Tick Richtung Eingangsseite geschoben. Platz für Garderobe vor der Treppe und zusätzlicher Stauraum unter der verkleideten Treppe. Die im WZ hereinragende Treppe würde ich verkleiden und als einbauschrank nutzen. Gerne auch mit dekorativer Öffnung und Beleuchtung. Im DG würde das mit der leicht verschobenen Treppe ja auch gut funktionieren. Das musst Du dir jetzt selbst vorstellen.
Ähnliche Themen