Ich würde die Tür wie geplant in der Küche verstecken, weil ich es die eleganteste Lösung finde. Allerdings würde ich nur eine 60er Tür nehmen (sieht halt auch eleganter aus) und eine normale Zimmertür Richtung Eingang (bei der Haustür) setzen. Dann hast du den direkten, kurzen Weg in die Küche mit den Einkäufen und bekommst da den Gefrierschrank durch. Falls der Platz dann nicht reicht, kannst du die Tür ja immer noch zustellen. Ich kenne die Außenansicht nicht, aber eine andere Variante wäre, ein 80 cm breites Fenster zu setzen und da den Gefrierschrank durchzuschieben.
H
hampshire27.04.21 11:37Die Integration in die Küchenfront ist ein schönes und kostspieliges Detail. Natürlich gibt es 80er Türen, die nicht hängen (zur Not kommt eine Rolle drunter :cool 🙂.
Der Eingang durch den Flur bietet sich an um Stauraum in der Küche zu erhalten, denn die Türe in der nicht gerade riesigen Küche kostet mächtig Platz. Als Detail schlage ich vor ich Getränke und ein paar Grundnahrungsmittel von der Speisekammer aus als Kanban zu befüllen und von der Küche aus zu nutzen, dann hast Du auch ein ansprechendes Logistik-Konzept.
Zur Inspiration: "Unsichtbare Türen" finde ich besonders genial von Linvisible.
Der Eingang durch den Flur bietet sich an um Stauraum in der Küche zu erhalten, denn die Türe in der nicht gerade riesigen Küche kostet mächtig Platz. Als Detail schlage ich vor ich Getränke und ein paar Grundnahrungsmittel von der Speisekammer aus als Kanban zu befüllen und von der Küche aus zu nutzen, dann hast Du auch ein ansprechendes Logistik-Konzept.
Zur Inspiration: "Unsichtbare Türen" finde ich besonders genial von Linvisible.
11ant schrieb:
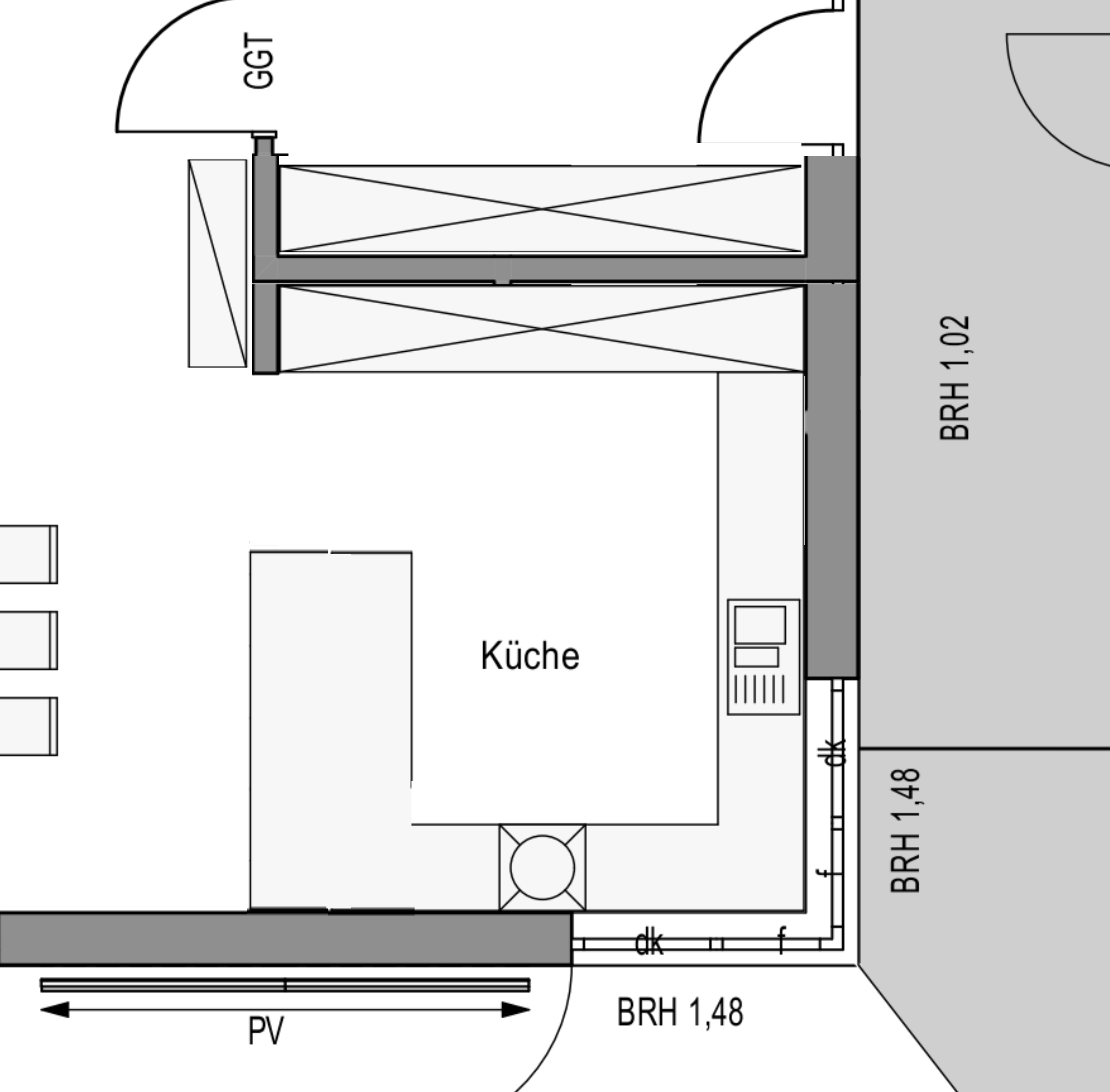
Die meisten Geschichten hier komplett auf den Kopf gestellter und auf links gedrehter Entwürfe beginnen mit genau so einer Einleitung, es sei im Grunde "eigentlich alles perfekt". Hast Du den Mut, das ganze Haus vor die wölfischen DiskutantInnen zu werfen ?Ich würde unseren Grundriss natürlich auch zur Diskussion zeigen, aber ich weiß gar nicht, wie das rechtlich aussieht, die kompletten Pläne online zu zeigen? Da möchte ich in nichts rein kommen.Ich hatte bisher eigentlich nicht das Gefühl, dass die Küche klein ist oder es an Stauraum fehlen würde.
In den Abstellraum kommen Küchengeräte, die man nicht ständig nutzt, wie die Heißluftfritteuse, Kuchenaufbewahrung, etc. Dann noch der Staubsauger, der Tiefkühlschrank, auch etwas Werkzeug was man mal öfters mal benötigt, die Einkaufskörbe. Wir haben aktuell auch einen kleinen Abstellraum und ich finde es super diese Dinge aus dem Blick zu haben. Dort kann man auch mal schnell große Kartons und Geschenkpapier vom Geburtstag verschwinden lassen, wenn Besuch da ist. Die Wand zur Speis ist variabel, könnte also auch noch verschoben werden.
Einen Tresen zum hinsitzen wollen wir nicht. Für mich ist das dort einfach eine zusätzliche Arbeitsfläche zum Schnippeln und mit den Kindern Plätzchen backen.
H
hampshire27.04.21 15:15Danke für die Erläuterung der Nutzung. So wird es viel einfacher.
Das Einsparen der Tür würde Dir dafür ordentlich Platz schaffen, die seltener genutzten Geräte in der Küche zu verstauen. Für den Rest (bis auf die Tiefkühltruhe) ist ein Abstellraum oder eine Schranklösung in einem Flur praktischer - willst Du wirklich immer durch die Küche laufen um an den Staubsauger zu gelangen oder etwas Werkzeug zu holen? Bleibt die Tiefkühltruke - ein klassisches Keller- oder Garagengerät - solange man auch etwas Einfrier-Raum im Küchenkühli hat.
Das Einsparen der Tür würde Dir dafür ordentlich Platz schaffen, die seltener genutzten Geräte in der Küche zu verstauen. Für den Rest (bis auf die Tiefkühltruhe) ist ein Abstellraum oder eine Schranklösung in einem Flur praktischer - willst Du wirklich immer durch die Küche laufen um an den Staubsauger zu gelangen oder etwas Werkzeug zu holen? Bleibt die Tiefkühltruke - ein klassisches Keller- oder Garagengerät - solange man auch etwas Einfrier-Raum im Küchenkühli hat.
hampshire schrieb:
Danke für die Erläuterung der Nutzung. So wird es viel einfacher.
Das Einsparen der Tür würde Dir dafür ordentlich Platz schaffen, die seltener genutzten Geräte in der Küche zu verstauen. Für den Rest (bis auf die Tiefkühltruhe) ist ein Abstellraum oder eine Schranklösung in einem Flur praktischer - willst Du wirklich immer durch die Küche laufen um an den Staubsauger zu gelangen oder etwas Werkzeug zu holen? Bleibt die Tiefkühltruke - ein klassisches Keller- oder Garagengerät - solange man auch etwas Einfrier-Raum im Küchenkühli hat.Also wäre deine Lösung die Speis komplett zu streichen und den Platz für die Küche zu verwenden? Das wäre dann ein riesen Raum und dadurch würde die Küche sicher auch wahnsinnig teuer werden. Ich mache mir mal nochmal Gedanken darüber was genau dort rein kommt.Schau mal, noch eine andere Idee: So hättest du genauso viel Hochschränke wie vorher (im Flur für Garderobe, Staubsauger und Co.) und trotzdem eine tolle große Küche. Am Küchentresen beidseitig Schränke, 120 cm tief. Würde auch noch die Fenster in der Küche verbreitern. Diese komische kleine Einbuchtung hinter der Windfangtür (nur auf 3D Bildern zu sehen), würde ich dem Flur zuschlagen, also die Tür versetzen.

Ähnliche Themen