ᐅ Unser Grundriss - bitte Meinungen dazu
Erstellt am: 15.01.13 13:04
Endphase, dann isses ja eh schon fast zu spät, da es dann meistens ja extra Geld kostet, etwas zu ändern.
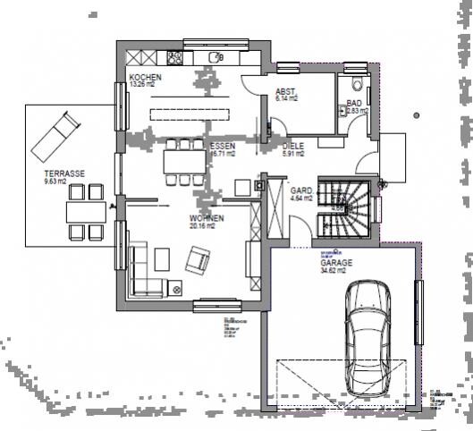
Ihr habt, wenn ich es richtig ausgerechnet habe, fast 145 qm Wohnfläche, oder ist das die Grundfläche?
Mehrere Dinge die mir wirklich ins Auge stechen, und verzeih meine Direktheit.
12 qm Kinderzimmer mit Dachschräge? Warst du mal in solch einem Zimmer?
Dafür dann ein 19qm Schlafzimmer mit Ankleidedingens? naja man muss eben seine Prioritäten setzen.
Euch ist aufgefallen dass Euer Auto mehr Platz hat als Eure zwei Kinder.
Der zweite Punkt ist oben im Bad. Kriecht ihr dann in die Ecke neben dem Klo? Wenn ich das Dach interpretiere habt ihr in dem Bad gar keinen Kniestock,
und ihr habt wirklich Dachschräge schon in der Dusche?
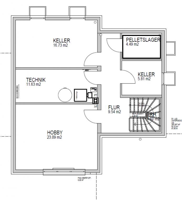
Dieser Mini Abstellraum neben dem Wäschezimmer, den kannste fast weglassen, der ist etwas groß gezeichnet dort oder?
Unten der Abstellraum ist viel zu groß, und zwei Türen eher fraglich. Macht den kleiner und gönnt Euch unten noch ne Dusche im Bad.
Wenn mal 4 Personen im Haus wohnen, oder ein Hund dazukommen soll, werdet Ihr Dankbar sein.
Generell ist die Aufteilung im Haus sehr komisch, ihr verschenkt jede Menge Wohnraum durch Abstellräume und Wäscheräume.
Ihr habt doch nen Riesen Keller... da gehört das Gerümpel und die Waschmaschine hin... Meine Meinung.
Ihr habt, wenn ich es richtig ausgerechnet habe, fast 145 qm Wohnfläche, oder ist das die Grundfläche?
Mehrere Dinge die mir wirklich ins Auge stechen, und verzeih meine Direktheit.
12 qm Kinderzimmer mit Dachschräge? Warst du mal in solch einem Zimmer?
Dafür dann ein 19qm Schlafzimmer mit Ankleidedingens? naja man muss eben seine Prioritäten setzen.
Euch ist aufgefallen dass Euer Auto mehr Platz hat als Eure zwei Kinder.
Der zweite Punkt ist oben im Bad. Kriecht ihr dann in die Ecke neben dem Klo? Wenn ich das Dach interpretiere habt ihr in dem Bad gar keinen Kniestock,
und ihr habt wirklich Dachschräge schon in der Dusche?
Dieser Mini Abstellraum neben dem Wäschezimmer, den kannste fast weglassen, der ist etwas groß gezeichnet dort oder?
Unten der Abstellraum ist viel zu groß, und zwei Türen eher fraglich. Macht den kleiner und gönnt Euch unten noch ne Dusche im Bad.
Wenn mal 4 Personen im Haus wohnen, oder ein Hund dazukommen soll, werdet Ihr Dankbar sein.
Generell ist die Aufteilung im Haus sehr komisch, ihr verschenkt jede Menge Wohnraum durch Abstellräume und Wäscheräume.
Ihr habt doch nen Riesen Keller... da gehört das Gerümpel und die Waschmaschine hin... Meine Meinung.
Endphase, dann isses ja eh schon fast zu spät, da es dann meistens ja extra Geld kostet, etwas zu ändern.
-Nein, da es eine befreundete Architektin macht.
Ihr habt, wenn ich es richtig ausgerechnet habe, fast 145 qm Wohnfläche, oder ist das die Grundfläche?
-das ist die Wohnfläche
Mehrere Dinge die mir wirklich ins Auge stechen, und verzeih meine Direktheit.
12 qm Kinderzimmer mit Dachschräge? Warst du mal in solch einem Zimmer?
Dafür dann ein 19qm Schlafzimmer mit Ankleidedingens? naja man muss eben seine Prioritäten setzen.
Euch ist aufgefallen dass Euer Auto mehr Platz hat als Eure zwei Kinder.
-eine Doppelgarage hat nun mal soviel qm. Und da die zwei Zimmer oben als Büro und Gästezimmer geplant sind ist die Größe für uns wirklich zweitrangig. Im Moment ist die Lebensplanung gegen Kinder bzw höchstens eins ausgelegt. Es ist möglich aus den zwei Zimmern eins zu machen wo ich dann sagen muss ist mehr als genug Platz da. Eine Dachschräge ist nicht wirklich vorhanden. da an der gestrichelten Linie die Raumhöhe immer noch zwei Meter beträgt. Auch ist unten der Hobbyraum beheizt und kann in ein Kinderzimmer umfunktioniert werden mit eigenem Eingang. Zudem die Kinder wohnen ca. 20 Jahre in diesem Haus wenn überhaupt. Ich dagegen 40 Jahre mindestens. Dann werde ich mein Augenmerk auch auf mein Schlafzimmer legen dürfen. Nachher sind keine Kinder mehr da ich habe ein 12 qm Schlafzimmer und zwei leere Kinderzimmer... Oder ich müsste dann alles umbauen...
Der zweite Punkt ist oben im Bad. Kriecht ihr dann in die Ecke neben dem Klo? Wenn ich das Dach interpretiere habt ihr in dem Bad gar keinen Kniestock,
und ihr habt wirklich Dachschräge schon in der Dusche?
Dieser Mini Abstellraum neben dem Wäschezimmer, den kannste fast weglassen, der ist etwas groß gezeichnet dort oder?
- In diesem Eck hinter der Dusche haben wir immer noch eine Höhe von 1,50 was ausreichend ist um eine Kommode für Putzmittel bzw Handtücher zu stellen. Und da muss ich nicht jeden Tag hinter. Auch hier ist die gestrichelte Linie 2m darum ist die Dusche vorgezogen.
Diesen Miniabstellraum hatten wir als Lager für alte Kleidung bzw Nähmaschine und Stoffe gedacht. Ansonsten wäre das toter Platz. In meinem Elternhaus sind überall unter der Schräge kleine Türen drin um den hinter dem Kniestock liegenden Platz auch noch als Abstellraum zu nutzen.
Unten der Abstellraum ist viel zu groß, und zwei Türen eher fraglich. Macht den kleiner und gönnt Euch unten noch ne Dusche im Bad.
Wenn mal 4 Personen im Haus wohnen, oder ein Hund dazukommen soll, werdet Ihr Dankbar sein.
-Wir wollen unten keine Dusche. Haben wir bewusst nicht so planen lassen. Und der Abstellraum ist so groß geplant wegen Getränkekisten, Vorräte, Gelber Sack und Sachen (Raclette, Tupperzeug) was man nicht jeden Tag braucht und in der Küche unnötig Platz wegnimmt.
Generell ist die Aufteilung im Haus sehr komisch, ihr verschenkt jede Menge Wohnraum durch Abstellräume und Wäscheräume.
Ihr habt doch nen Riesen Keller... da gehört das Gerümpel und die Waschmaschine hin... Meine Meinung.
-die Waschmaschine möchte ich oben genauso wie er weil dort die meiste Wäsche anfällt. Ansonsten runter Schleifen und wieder hoch schleifen und dann bügeln und in die Schränke verteilen. Da habe ich alles zentral an einem Platz und kann das auf die Zimmer verteilen. Und Gerümpel kommt nicht in den Keller. Das ist ein Zimmer für die Gartenmöbel im Winter und die Ersatzteile fürs Auto und mehr Gerümpel möchte ich nicht ansammeln. Ich muss da unten keinen Flohmarkt veranstalten...
-Nein, da es eine befreundete Architektin macht.
Ihr habt, wenn ich es richtig ausgerechnet habe, fast 145 qm Wohnfläche, oder ist das die Grundfläche?
-das ist die Wohnfläche
Mehrere Dinge die mir wirklich ins Auge stechen, und verzeih meine Direktheit.
12 qm Kinderzimmer mit Dachschräge? Warst du mal in solch einem Zimmer?
Dafür dann ein 19qm Schlafzimmer mit Ankleidedingens? naja man muss eben seine Prioritäten setzen.
Euch ist aufgefallen dass Euer Auto mehr Platz hat als Eure zwei Kinder.
-eine Doppelgarage hat nun mal soviel qm. Und da die zwei Zimmer oben als Büro und Gästezimmer geplant sind ist die Größe für uns wirklich zweitrangig. Im Moment ist die Lebensplanung gegen Kinder bzw höchstens eins ausgelegt. Es ist möglich aus den zwei Zimmern eins zu machen wo ich dann sagen muss ist mehr als genug Platz da. Eine Dachschräge ist nicht wirklich vorhanden. da an der gestrichelten Linie die Raumhöhe immer noch zwei Meter beträgt. Auch ist unten der Hobbyraum beheizt und kann in ein Kinderzimmer umfunktioniert werden mit eigenem Eingang. Zudem die Kinder wohnen ca. 20 Jahre in diesem Haus wenn überhaupt. Ich dagegen 40 Jahre mindestens. Dann werde ich mein Augenmerk auch auf mein Schlafzimmer legen dürfen. Nachher sind keine Kinder mehr da ich habe ein 12 qm Schlafzimmer und zwei leere Kinderzimmer... Oder ich müsste dann alles umbauen...
Der zweite Punkt ist oben im Bad. Kriecht ihr dann in die Ecke neben dem Klo? Wenn ich das Dach interpretiere habt ihr in dem Bad gar keinen Kniestock,
und ihr habt wirklich Dachschräge schon in der Dusche?
Dieser Mini Abstellraum neben dem Wäschezimmer, den kannste fast weglassen, der ist etwas groß gezeichnet dort oder?
- In diesem Eck hinter der Dusche haben wir immer noch eine Höhe von 1,50 was ausreichend ist um eine Kommode für Putzmittel bzw Handtücher zu stellen. Und da muss ich nicht jeden Tag hinter. Auch hier ist die gestrichelte Linie 2m darum ist die Dusche vorgezogen.
Diesen Miniabstellraum hatten wir als Lager für alte Kleidung bzw Nähmaschine und Stoffe gedacht. Ansonsten wäre das toter Platz. In meinem Elternhaus sind überall unter der Schräge kleine Türen drin um den hinter dem Kniestock liegenden Platz auch noch als Abstellraum zu nutzen.
Unten der Abstellraum ist viel zu groß, und zwei Türen eher fraglich. Macht den kleiner und gönnt Euch unten noch ne Dusche im Bad.
Wenn mal 4 Personen im Haus wohnen, oder ein Hund dazukommen soll, werdet Ihr Dankbar sein.
-Wir wollen unten keine Dusche. Haben wir bewusst nicht so planen lassen. Und der Abstellraum ist so groß geplant wegen Getränkekisten, Vorräte, Gelber Sack und Sachen (Raclette, Tupperzeug) was man nicht jeden Tag braucht und in der Küche unnötig Platz wegnimmt.
Generell ist die Aufteilung im Haus sehr komisch, ihr verschenkt jede Menge Wohnraum durch Abstellräume und Wäscheräume.
Ihr habt doch nen Riesen Keller... da gehört das Gerümpel und die Waschmaschine hin... Meine Meinung.
-die Waschmaschine möchte ich oben genauso wie er weil dort die meiste Wäsche anfällt. Ansonsten runter Schleifen und wieder hoch schleifen und dann bügeln und in die Schränke verteilen. Da habe ich alles zentral an einem Platz und kann das auf die Zimmer verteilen. Und Gerümpel kommt nicht in den Keller. Das ist ein Zimmer für die Gartenmöbel im Winter und die Ersatzteile fürs Auto und mehr Gerümpel möchte ich nicht ansammeln. Ich muss da unten keinen Flohmarkt veranstalten...
Geht ihr oft in eure Pelletlager? Wenn nein, würde ich die Wand vom Keller entfernen - und die nördl. Wand des Technikkellers durchziehen. Dann ist das Pelletlager nur vom Keller aus betretbar, dafür haste ned unendlich Gang und nen größeren Abstellkeller. Mich würde der enge Flur im Keller stören.
Ähnliche Themen