Hallo zusammen,
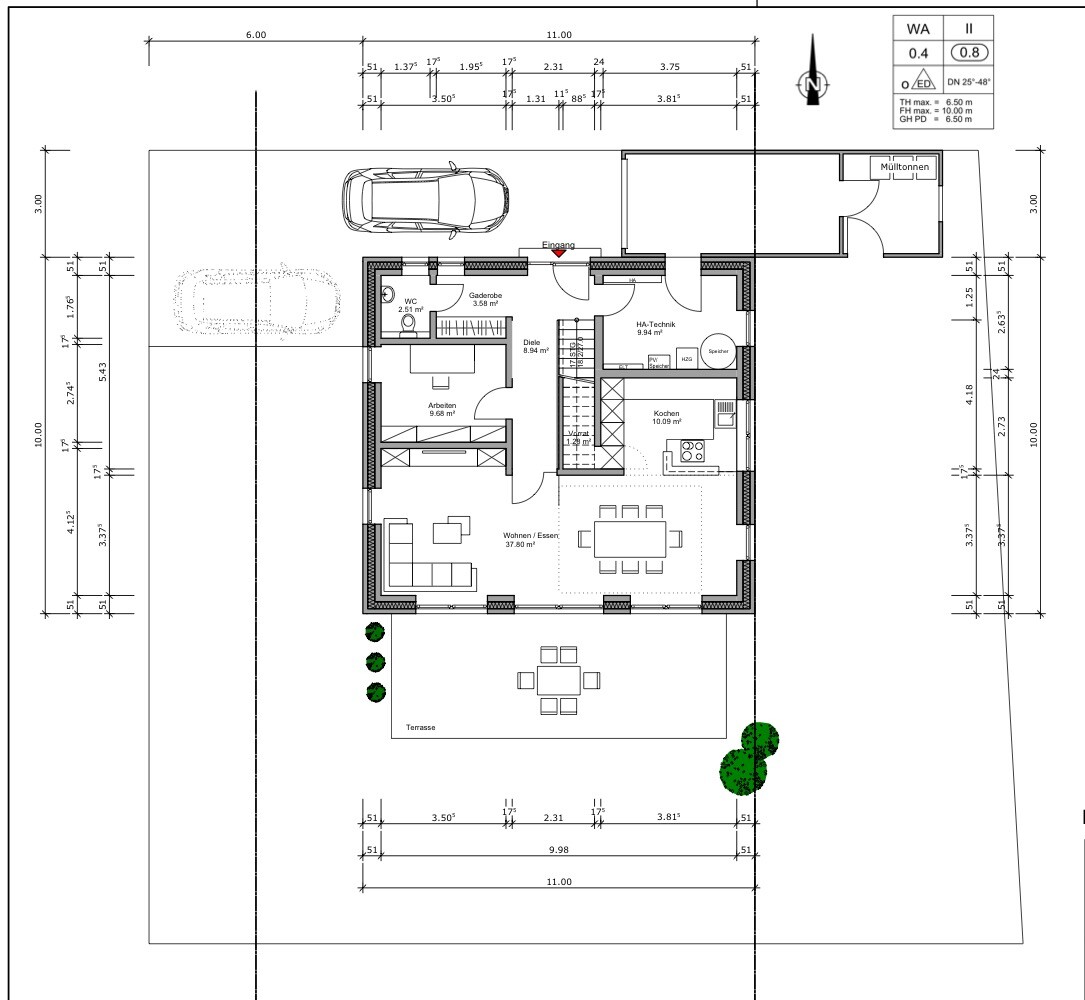
wir sind aktuell in der Entwurfsplanung mit 2 GUs, dies ist der Entwurf des aktuell favorisierten. Uns gefällt es im Grunde ganz gut, fragen uns aber ob die Flurflächen verkleinert werden können oder dazu eine andere Treppe Sinn macht? Seht Ihr grundsätzliches Optimierungspotential?
Bebauungsplan/Einschränkungen
Größe des Grundstücks: 530 qm
Hang: nein
Grundflächenzahl: 0,4
Geschossflächenzahl: 0,8
Baufenster, Baulinie und -grenzen: Ja
Anzahl Stellplatz: 2 Stellplätze
Geschossigkeit: 2 Vollgeschosse
Dachform: Satteldach 25-48°
Stilrichtung: Stadthaus
Ausrichtung: siehe Bilder, Strasse/Zufahrt im Westen
Maximale Höhen/Begrenzungen: FH 10m, TH 6,50m
Anforderungen der Bauherren
Stilrichtung, Dachform, Gebäudetyp: 2 geschossenes Klinkerhaus mit Satteldach
Keller, Geschosse: Bodenplatte / 2 Vollgeschosse
Anzahl der Personen, Alter: 2 Erwachsene (34/31), 1 Kind (1); 2tes Kind in den nächsten 1-2 Jahren
Raumbedarf im EG, OG: je 80qm
Büro: Familiennutzung oder Homeoffice?: HO täglich und als gelengentliche übernachtungsmöglichkeit (Gästezimmer)
Schlafgäste pro Jahr: 5-8 mal
offene oder geschlossene Architektur: offen
konservativ oder moderne Bauweise: modern
offene Küche, Kochinsel: offene Küche mit halbinsel
Anzahl Essplätze: 6 und erweiterbar
Kamin: nein
Musik/Stereowand: nein
Balkon, Dachterrasse: nein
Garage, Carport: 3x9m Garage o. Carport mit Anbau
Nutzgarten, Treibhaus: nein
weitere Wünsche/Besonderheiten/Tagesablauf, gern auch Begründungen, warum dieses oder das nicht sein soll
Hausentwurf
Von wem stammt die Planung:
-Architekt eines Bauunternehmens
Was gefällt besonders? Warum?
-offene Bauweise - L bei Kochen/essen/wohnen
-alle Zimmer die wir benötigen
Was gefällt nicht? Warum?
-Flur zu groß?
-eventuell 1/2 Treppe gewendelt?
Preisschätzung lt Architekt/Planer: steht noch aus
Persönliches Preislimit fürs Haus, inkl Ausstattung: 550k€
favorisierte Heiztechnik: Luft-Wasser-Wärmepumpe
Wenn Ihr verzichten müsst, auf welche Details/Ausbauten
-könnt Ihr verzichten: Garage, kleine Hauswirtschaftsraum oben, dann muss aber der unten wohl größer
-könnt Ihr nicht verzichten: Arbeitszimmer


wir sind aktuell in der Entwurfsplanung mit 2 GUs, dies ist der Entwurf des aktuell favorisierten. Uns gefällt es im Grunde ganz gut, fragen uns aber ob die Flurflächen verkleinert werden können oder dazu eine andere Treppe Sinn macht? Seht Ihr grundsätzliches Optimierungspotential?
Bebauungsplan/Einschränkungen
Größe des Grundstücks: 530 qm
Hang: nein
Grundflächenzahl: 0,4
Geschossflächenzahl: 0,8
Baufenster, Baulinie und -grenzen: Ja
Anzahl Stellplatz: 2 Stellplätze
Geschossigkeit: 2 Vollgeschosse
Dachform: Satteldach 25-48°
Stilrichtung: Stadthaus
Ausrichtung: siehe Bilder, Strasse/Zufahrt im Westen
Maximale Höhen/Begrenzungen: FH 10m, TH 6,50m
Anforderungen der Bauherren
Stilrichtung, Dachform, Gebäudetyp: 2 geschossenes Klinkerhaus mit Satteldach
Keller, Geschosse: Bodenplatte / 2 Vollgeschosse
Anzahl der Personen, Alter: 2 Erwachsene (34/31), 1 Kind (1); 2tes Kind in den nächsten 1-2 Jahren
Raumbedarf im EG, OG: je 80qm
Büro: Familiennutzung oder Homeoffice?: HO täglich und als gelengentliche übernachtungsmöglichkeit (Gästezimmer)
Schlafgäste pro Jahr: 5-8 mal
offene oder geschlossene Architektur: offen
konservativ oder moderne Bauweise: modern
offene Küche, Kochinsel: offene Küche mit halbinsel
Anzahl Essplätze: 6 und erweiterbar
Kamin: nein
Musik/Stereowand: nein
Balkon, Dachterrasse: nein
Garage, Carport: 3x9m Garage o. Carport mit Anbau
Nutzgarten, Treibhaus: nein
weitere Wünsche/Besonderheiten/Tagesablauf, gern auch Begründungen, warum dieses oder das nicht sein soll
Hausentwurf
Von wem stammt die Planung:
-Architekt eines Bauunternehmens
Was gefällt besonders? Warum?
-offene Bauweise - L bei Kochen/essen/wohnen
-alle Zimmer die wir benötigen
Was gefällt nicht? Warum?
-Flur zu groß?
-eventuell 1/2 Treppe gewendelt?
Preisschätzung lt Architekt/Planer: steht noch aus
Persönliches Preislimit fürs Haus, inkl Ausstattung: 550k€
favorisierte Heiztechnik: Luft-Wasser-Wärmepumpe
Wenn Ihr verzichten müsst, auf welche Details/Ausbauten
-könnt Ihr verzichten: Garage, kleine Hauswirtschaftsraum oben, dann muss aber der unten wohl größer
-könnt Ihr nicht verzichten: Arbeitszimmer
- Garderrobeneck mit Gäste-WC eigentlich eine gute Idee - könnte aber etwas gequetscht sein meiner Meinung nach.
Eventuell zu nah aufeinander? Gast auf der Toilette - Leute stehen vor der Garderobe um sich anzuziehen etc... Machbar - für mich aber nicht 100% praktisch.
- Garage mit direktem Zugang zum Haus und Mülltonnen hinten drin find ich super. Auch der Eingang über den Technikraum finde ich soweit echt ganz ordentlich gelöst
- Dafür, dass den ganzen Tag im Homeoffice gearbeitet wird gibt es relativ wenig Licht durch Fenster. Würde hier überlegen das Fenster eventuell zu vergrößern?
- Vorratssraum mit Treppenlösung? hatte sowas mal irgendwo gesehen - keine Ahnung wie das bei euch dann genau aussieht - kann ich leider nicht viel zu sagen. Ansonsten kommt mir die Küche relativ klein vor? 1 lange Arbeitsfläche - ja, aber sonst keine freien Flächen. Trifft jetzt nicht ganz meinen Geschmack
- Essbereich großzügig und toll
- Wohnbereich finde ich auch schön
- im DG finde ich alles ganz pragmatisch und schick
Eventuell zu nah aufeinander? Gast auf der Toilette - Leute stehen vor der Garderobe um sich anzuziehen etc... Machbar - für mich aber nicht 100% praktisch.
- Garage mit direktem Zugang zum Haus und Mülltonnen hinten drin find ich super. Auch der Eingang über den Technikraum finde ich soweit echt ganz ordentlich gelöst
- Dafür, dass den ganzen Tag im Homeoffice gearbeitet wird gibt es relativ wenig Licht durch Fenster. Würde hier überlegen das Fenster eventuell zu vergrößern?
- Vorratssraum mit Treppenlösung? hatte sowas mal irgendwo gesehen - keine Ahnung wie das bei euch dann genau aussieht - kann ich leider nicht viel zu sagen. Ansonsten kommt mir die Küche relativ klein vor? 1 lange Arbeitsfläche - ja, aber sonst keine freien Flächen. Trifft jetzt nicht ganz meinen Geschmack
- Essbereich großzügig und toll
- Wohnbereich finde ich auch schön
- im DG finde ich alles ganz pragmatisch und schick
Ich würde den Bereich für die Garage statt 3m auf mind. 3,5 m erweitern. Wenn dort ein normales Auto steht, der Nachbar einen Zaun gesetzt hat und man noch den Eingang nutzen will oder die Mülltonnen zur Abholung nach vorne schieben möchte, dann wird es mehr als eng.
Den Garderobenbereich halte ich allerdings für nicht zu eng. Es sind ja nun auch nicht ständig Leute am Kommen und Gehen während andere gerade die Toilette nutzen. Ich würde allerdings zusehen, dass die Schranknische im Rohbau mind. 205 cm bekommt, damit 2 Standardschränke passen. Dadurch würde das Gäste-WC schmaler, da würde ich das Fenster in den Westen (planlinks) legen und planoben eine leicht angeschrägte Fläche mit eingelassenem Handwaschbecken.
Leider sind nirgendwo Brüstungshöhen der Fenster angegeben, aber zumindest dem Wohnzimmer würde ich im Westen ein größeres Fenster, eher mit Brüstungshöhe um die 90 cm und dafür breiter (200 cm oder so) gönnen.
Die Tür von Garage zum Haus würde ich sparen. Zusammen mit der Tür vom Haus aus entstehen da im HAR ca. 2,5 qm reine Lauffläche, wobei die Wand zur Garage im planlinken Bereich quasi nicht genutzt werden kann. Die Situation Garage / Hauseingangstür ist so eng beeinanderliegend, dass man das wirklich sparen kann.
Die Küche ist eine Ein-Mann (Frau)-Küche, so wie geplant. Den Zugang zum Stauraum unter der Treppe würde ich auch vom Flur aus legen, denn es geht so ein nutzbarer Platz für einen Hochschrank verloren. Vermutlich würde ich auch eher Kochen/Wohnen wieder mal tauschen. Kochen kann dann großzügiger Richtung Terrasse (Sommergrillabende, Kinder, die was trinken wollen usw) orientiert werden und die Sofaecke kann mehr mit Blick Richtung Garten gestellt werden. Und ist dazu auch noch intimer .. z. B. Teenager, die noch Besuch mitbringen und mal kurz in der Küche einfallen 😉.
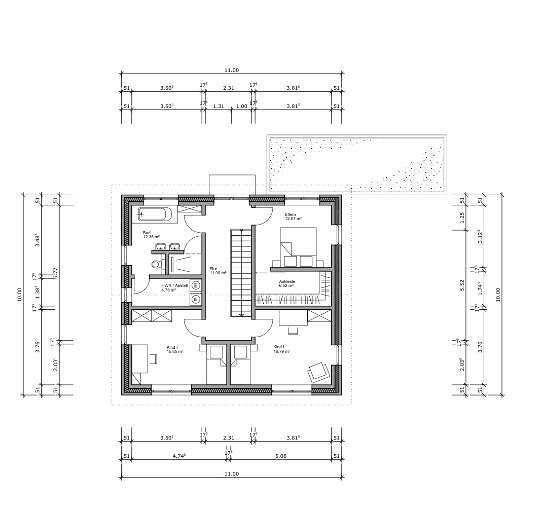
Der Weg zum Hauswirtschaftsraum/Wäscheraum im DG wäre mir zu verschlungen, den Schrankraum im Schlafzimmer würde ich nicht als gefangenen Raum planen, sondern als erstes betreten und dem Schlafbereich dann halt ein schönes Ostfenster gönnen.
Den Garderobenbereich halte ich allerdings für nicht zu eng. Es sind ja nun auch nicht ständig Leute am Kommen und Gehen während andere gerade die Toilette nutzen. Ich würde allerdings zusehen, dass die Schranknische im Rohbau mind. 205 cm bekommt, damit 2 Standardschränke passen. Dadurch würde das Gäste-WC schmaler, da würde ich das Fenster in den Westen (planlinks) legen und planoben eine leicht angeschrägte Fläche mit eingelassenem Handwaschbecken.
Leider sind nirgendwo Brüstungshöhen der Fenster angegeben, aber zumindest dem Wohnzimmer würde ich im Westen ein größeres Fenster, eher mit Brüstungshöhe um die 90 cm und dafür breiter (200 cm oder so) gönnen.
Die Tür von Garage zum Haus würde ich sparen. Zusammen mit der Tür vom Haus aus entstehen da im HAR ca. 2,5 qm reine Lauffläche, wobei die Wand zur Garage im planlinken Bereich quasi nicht genutzt werden kann. Die Situation Garage / Hauseingangstür ist so eng beeinanderliegend, dass man das wirklich sparen kann.
Die Küche ist eine Ein-Mann (Frau)-Küche, so wie geplant. Den Zugang zum Stauraum unter der Treppe würde ich auch vom Flur aus legen, denn es geht so ein nutzbarer Platz für einen Hochschrank verloren. Vermutlich würde ich auch eher Kochen/Wohnen wieder mal tauschen. Kochen kann dann großzügiger Richtung Terrasse (Sommergrillabende, Kinder, die was trinken wollen usw) orientiert werden und die Sofaecke kann mehr mit Blick Richtung Garten gestellt werden. Und ist dazu auch noch intimer .. z. B. Teenager, die noch Besuch mitbringen und mal kurz in der Küche einfallen 😉.
Der Weg zum Hauswirtschaftsraum/Wäscheraum im DG wäre mir zu verschlungen, den Schrankraum im Schlafzimmer würde ich nicht als gefangenen Raum planen, sondern als erstes betreten und dem Schlafbereich dann halt ein schönes Ostfenster gönnen.
Ich würde dazu tendieren im OG Bad und Eltern (inkl. dem jeweiligen Anhängsel) zu tauschen.
Morgens hättest du dann Licht im Bad, die Wasserrohre werden kürzer und das Elternschlafzimmer darf gerne im Norden liegen.
Innerhalb des Bads würde ich eher die Dusche zum Fenster ausrichten, als die Toilette.
Morgens hättest du dann Licht im Bad, die Wasserrohre werden kürzer und das Elternschlafzimmer darf gerne im Norden liegen.
Innerhalb des Bads würde ich eher die Dusche zum Fenster ausrichten, als die Toilette.
K
K a t j a22.03.22 16:30Ich mag diesen Standardgrundriss nicht so sehr. Er hat keine wesentlichen Fehler aber einige undurchdachte Abläufe.
Zunächst muss man mit den Einkäufen immer durch den kompletten Wohnraum tigern. Wer da im Nachthemd chillt, muss sich u.U. durch durstige Besucher der Kinder beim Limonade holen erschrecken lassen. Im Gäste-WC ist keine Dusche, was bei einem 4-Personenhaushalt ein echtes Manko ist.
Der Raum unter der Treppe ist zwar als Speisekammer gern gesehen, hier find ich aber problematisch, dass er den Zugang zum Wohnzimmer zu einem engen dunklen Schlauch werden lässt. Nicht sehr einladend.
Im OG ist die gefangene Ankleide schlecht, wenn 1 Elternteil länger schlafen darf. Einfach tauschen wäre hier aber noch schlechter wegen der Nähe zum Kinderzimmer und natürlich sollte das hochwertige Eckzimmer nicht gerade für die Schränke drauf gehen.
Zugang zum Hauswirtschaftsraum oben durch das WC soll wohl ein Test sein, ob wir mitdenken? Der muss natürlich dort weg und vom Flur erschlossen werden.
Problematisch find ich auch, dass die Haustür direkt auf den Fahrweg zur Garage trifft. Es besteht einfach die Gefahr, das man beim Einparken jemand überfährt, der gerade aus der Haustür rennt. Kinder sind natürlich besonders gefährdet.
Insgesamt alles keine Dramen aber irgendwie auch nicht perfekt genug für die Rieseninvestition.
Zunächst muss man mit den Einkäufen immer durch den kompletten Wohnraum tigern. Wer da im Nachthemd chillt, muss sich u.U. durch durstige Besucher der Kinder beim Limonade holen erschrecken lassen. Im Gäste-WC ist keine Dusche, was bei einem 4-Personenhaushalt ein echtes Manko ist.
Der Raum unter der Treppe ist zwar als Speisekammer gern gesehen, hier find ich aber problematisch, dass er den Zugang zum Wohnzimmer zu einem engen dunklen Schlauch werden lässt. Nicht sehr einladend.
Im OG ist die gefangene Ankleide schlecht, wenn 1 Elternteil länger schlafen darf. Einfach tauschen wäre hier aber noch schlechter wegen der Nähe zum Kinderzimmer und natürlich sollte das hochwertige Eckzimmer nicht gerade für die Schränke drauf gehen.
Zugang zum Hauswirtschaftsraum oben durch das WC soll wohl ein Test sein, ob wir mitdenken? Der muss natürlich dort weg und vom Flur erschlossen werden.
Problematisch find ich auch, dass die Haustür direkt auf den Fahrweg zur Garage trifft. Es besteht einfach die Gefahr, das man beim Einparken jemand überfährt, der gerade aus der Haustür rennt. Kinder sind natürlich besonders gefährdet.
Insgesamt alles keine Dramen aber irgendwie auch nicht perfekt genug für die Rieseninvestition.
Vielen Dank für die bisherigen Hinweise, Tipps und Ansichten.
Ich antworte mal zusammengefasst auf die Punkte aller:
- Zufahrt/Garagensituation; Wir tendieren hier den Zufahrtsbereich auf 3,40.3,50 zu erweitern, damit es etwas mehr platz gibt im Bereich Eingang. Tür von Garage ins Haus werden wir weglassen, da wir lieber mehr Abstellfläche als 2 Zugänge in "unmittelbarer" Nähe haben wollen. Auch die eingezeichneten Mülltonnen planen wir jetzt nicht im Anbau, da kommt vorne irgenwoe was hin. Den Anbau benötigen wir doch als "Gartenzeugsabstellräumchen".
- Eingangsbereich; Garderobenecke sehen wir als Ausreichen Breit für uns an, wir planen hier sogar noch das ganze etwas kürzer zu machen und dem Gäste-WC etwas mehr platz zu gönnen. Garderobe sind keine großen Schranke vorgesehen und nach Musterhaus Besichtigungen fanden wir immer so 3-3,5qm qm als optimal ohne Dusche.
- Flur; schaut schlauch aus, daher unsere Gedanken ob man es mit einer anderen Treppe irgendwie lösen kann ohne die anderen Räume kleiner zu machen und Licht reinzukommen bekomme, Ideen sind gerne visuell gesehen 🙂 . Ob es dunkel wirkt weiß ich nicht zu 100%, wir haben einen Vergleich mit so einem Flur bei der Länge von 12m, finden wir in Ordnung, daher denke wir das es uns bei 10m nicht so krass stört.
- Arbeitszimmer; Ist auch die eine Frage die wir noch für das nächste Gespräch haben, reicht das Licht von diesem Bodentiefenfesnter aus, ich kann es nicht einschätzen, auf dem plan sieht es nach wenig aus, vielleicht das Fenster etwas breiter. Grundsätzlich sind die Außenansichten sehr symmetrisch und straight, denke daher sind die auch pro Außenwand immer gleich geplant wenn man sich das genauer anschaut. Alles in Linie und Flucht 🙂
- Wohnzimmer; das Fenster im Westen ist ebenfalls ein Bodentiefes, hier denken wir gerade über größere Fenster im West/Süd Bereich mit Stahlträger an der Ecke statt viel Mauer nach, wie oben gesagt, würde es das symmetrische Bild von außen wohl etwas "brechen" mal sehen was der Architekt dazu sagt.
- Küche/Essbereich; Der Essbereich gefällt uns sehr gut, da wir hier auch ohne Probleme mit 10-12 Leuten sitzen können. Küche hätten wir gerne um die 12 qm und fragen uns gerade ob man dafür etwas vom Essbereich nehmen kann oder eher den HWT kürzt, oder von beidem etwas, hmm.
- Hauswirtschaftsraum im OG; eine Tür vom Flur kann man machen, in unserem täglichem Ablauf passt es sowohl als auch.
- Schlafzimmer; am besten gefällt uns ein Zugang über die Ankleide (mit Schiebetür zum Schlafraum hin) aber bei der Aufteilung wollten wir nicht.
- Tausch BAD/Schlafzimmer; Das schauen wir uns mal.
Wir denken, wir stellen hier keine Riesenvilla hin sonder eher, wie ich mal gelesen hatte einen Schuhkarton 🙂 der für uns Funktionieren soll. Daher müssen daher wohl einige Abstriche machen.
Danke nochmal an alle für das bisherige Feedback, wird jetzt besprochen und geschaut was wir als Punkte mitnehmen und mit dem Architekten besprechen können.
Ich antworte mal zusammengefasst auf die Punkte aller:
- Zufahrt/Garagensituation; Wir tendieren hier den Zufahrtsbereich auf 3,40.3,50 zu erweitern, damit es etwas mehr platz gibt im Bereich Eingang. Tür von Garage ins Haus werden wir weglassen, da wir lieber mehr Abstellfläche als 2 Zugänge in "unmittelbarer" Nähe haben wollen. Auch die eingezeichneten Mülltonnen planen wir jetzt nicht im Anbau, da kommt vorne irgenwoe was hin. Den Anbau benötigen wir doch als "Gartenzeugsabstellräumchen".
- Eingangsbereich; Garderobenecke sehen wir als Ausreichen Breit für uns an, wir planen hier sogar noch das ganze etwas kürzer zu machen und dem Gäste-WC etwas mehr platz zu gönnen. Garderobe sind keine großen Schranke vorgesehen und nach Musterhaus Besichtigungen fanden wir immer so 3-3,5qm qm als optimal ohne Dusche.
- Flur; schaut schlauch aus, daher unsere Gedanken ob man es mit einer anderen Treppe irgendwie lösen kann ohne die anderen Räume kleiner zu machen und Licht reinzukommen bekomme, Ideen sind gerne visuell gesehen 🙂 . Ob es dunkel wirkt weiß ich nicht zu 100%, wir haben einen Vergleich mit so einem Flur bei der Länge von 12m, finden wir in Ordnung, daher denke wir das es uns bei 10m nicht so krass stört.
- Arbeitszimmer; Ist auch die eine Frage die wir noch für das nächste Gespräch haben, reicht das Licht von diesem Bodentiefenfesnter aus, ich kann es nicht einschätzen, auf dem plan sieht es nach wenig aus, vielleicht das Fenster etwas breiter. Grundsätzlich sind die Außenansichten sehr symmetrisch und straight, denke daher sind die auch pro Außenwand immer gleich geplant wenn man sich das genauer anschaut. Alles in Linie und Flucht 🙂
- Wohnzimmer; das Fenster im Westen ist ebenfalls ein Bodentiefes, hier denken wir gerade über größere Fenster im West/Süd Bereich mit Stahlträger an der Ecke statt viel Mauer nach, wie oben gesagt, würde es das symmetrische Bild von außen wohl etwas "brechen" mal sehen was der Architekt dazu sagt.
- Küche/Essbereich; Der Essbereich gefällt uns sehr gut, da wir hier auch ohne Probleme mit 10-12 Leuten sitzen können. Küche hätten wir gerne um die 12 qm und fragen uns gerade ob man dafür etwas vom Essbereich nehmen kann oder eher den HWT kürzt, oder von beidem etwas, hmm.
- Hauswirtschaftsraum im OG; eine Tür vom Flur kann man machen, in unserem täglichem Ablauf passt es sowohl als auch.
- Schlafzimmer; am besten gefällt uns ein Zugang über die Ankleide (mit Schiebetür zum Schlafraum hin) aber bei der Aufteilung wollten wir nicht.
- Tausch BAD/Schlafzimmer; Das schauen wir uns mal.
Wir denken, wir stellen hier keine Riesenvilla hin sonder eher, wie ich mal gelesen hatte einen Schuhkarton 🙂 der für uns Funktionieren soll. Daher müssen daher wohl einige Abstriche machen.
Danke nochmal an alle für das bisherige Feedback, wird jetzt besprochen und geschaut was wir als Punkte mitnehmen und mit dem Architekten besprechen können.
Ähnliche Themen