ᐅ Einfamilienhaus - Kapitänshaus - 150m² - Neubau - Tipps benötigt
Erstellt am: 09.10.19 10:54
E
Erisa2010E
Erisa201009.10.19 10:54Hallo ihr Lieben,
wir haben ein Grundstück in Niedersachsen gekauft und waren bereits im ersten Planungsgespräch mit der Architektin unserer Baufirma, dh. der erste Vorentwurf ist durch, drei haben wir frei.
Wir haben uns eine 3D-Datei schicken lassen, und konnten so vorab mal "durchs Haus gehen". Dabei hat uns nicht alles zugesagt, sodass ich hoffe, hier ein paar gute Tipps zur Optimierung zu bekommen.
Bebauungsplan/Einschränkungen
Größe des Grundstücks: 595 m²
Hang: entlang der Nordseite von der Einfahrt bis zur Nord-Ost-Ecke steigend, höchste Stelle ca. 1,30-1,50m (Stützmauer entlang der Grenze in Planung)
Gebäudetyp: Einfamilienhaus
Grundflächenzahl: 0,25
Geschossigkeit: 1 Vollgeschoss
Baugrenze: Norden 5m, Süden/Westen 3m
Anzahl Stellplatz: 2 lt. Bebauungsplan (1 Carport, 1 Stellplatz davor)
Ausrichtung: Süden
Maximale Höhen/Begrenzungen: Firsthöhe über OK EGFF: 9m , Traufhöhe über OK EGFF: 4,5m
Anforderungen der Bauherren
Stilrichtung, Dachform, Gebäudetyp: massives Kapitänshaus mit Giebel zum Süden, Satteldach 45°
Keller, Geschosse: 1 Vollgeschoss, kein Keller
Anzahl der Personen, Alter: 2 Personen (30, 34), 2 Kinder geplant
Raumbedarf im UG, EG, OG:
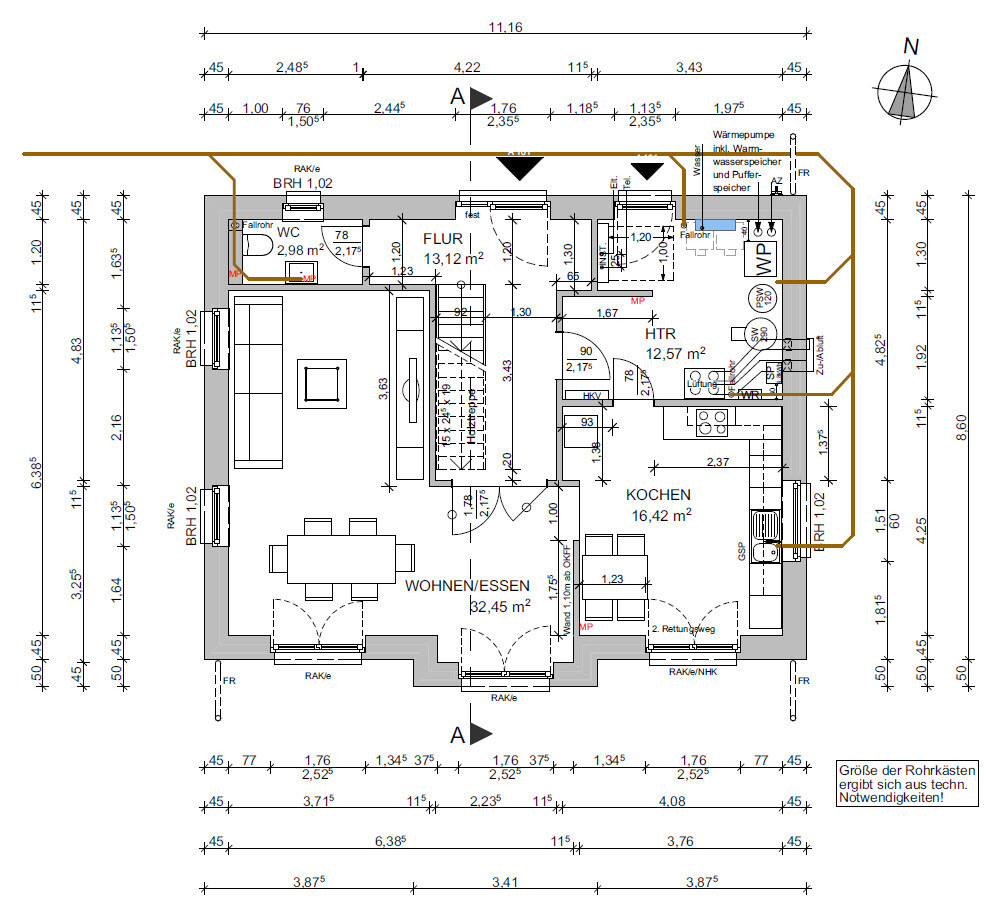
EG: Gäste-WC, Hauswirtschaftsraum, Küche, Wohn-/Esszimmer
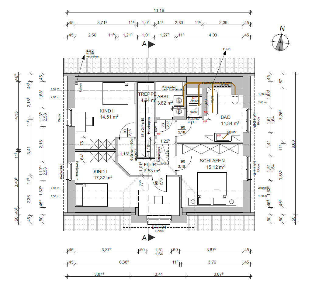
OG: Bad, Elternschlafzimmer, 2 Kinderzimmer, Abstellraum (Waschmaschine/Trockner erhöht)
offene Küche, Kochinsel: Insellösung (auch ohne kochfeld und evtl. mit Sitzplätzen dran) fand bislang keinen Platz; Thema offen: siehe unten
Anzahl Essplätze: 4 in Küche, 6-8 im Wohn-/Essbereich
Kamin: nein
Musik/Stereowand: nein
Balkon: nein
Terrasse: ja, vor Küche und Wohn-/Essbereich
Zisterne: ja
Heizung/Strom: Erdwärmepumpe und Photovoltaikanlage mit Stromspeicher
Garage, Carport: Carport
weitere Wünsche/Besonderheiten, gern auch Begründungen, warum dieses oder das nicht sein soll:
- Küche: In der Küche möchten wir zu viert essen können, dabei geht es hauptsächlich um Frühstück in der Woche oder warme Mahlzeiten, bei denen der Kochtopf auch auf dem Herd stehen bleiben kann. Mit Kindern/Hochstühlen halte ich einen Bartisch/-Tresen nicht für sinnig!?
- Bad OG: Uns wurde von anderen Bauherren empfohlen, die Dusche (und WC dann auch?) wegen der Lautstärke nicht an die Wand zum Schlafzimmer zu legen.
- Fenstergrößen noch variabel
Hausentwurf
Von wem stammt die Planung: von uns in Abstimmung mit der Architektin der Hausbaufirma
Was gefällt besonders? Warum? :
- Größe der Küche, Ausgang zur Terrasse
- Tür von Küche in Hauswirtschaftsraum
- Hauswirtschaftsraum mit Platz für unsere 2 regale (1,67m Wand) für Lebensmittel und Haushaltssachen und gelber Sack direkt um die Ecke (neben Lüftung)
- HKV versteckt im Hauswirtschaftsraum, oben versteckt in dickerer Wand
- Abstellraum im OG mit Platz für Waschmaschine und Trockner auf Podest und Wäscheständer würde auch hineinpassen (Raum wird entlüftet)
- große Kinderzimmer
Was würden wir am derzeitigen Plan für den 2. Entwurf ändern :
- Tür Küche-Hauswirtschaftsraum zur Küche hin öffnen, um Kollision zu vermeiden? (keine Schiebetür-Lösung)
- evtl. Lichtband in Gäste-WC, damit man beim Zur-Haustür-Gehen nicht direkt hereinschauen kann und mehr Licht auf den Spiegel fällt, als wenn man das Licht nur im Rücken hat (Nordseite ist eh eher dunkler) > jetziges Bad-Fenster dann in Flur verschieben
- Fenster in Wohn-/Essbereich müssten von innen schauend beide nach links verrückt werden, zu nah an Wand
- evtl. Dachfenster in den Treppenaufgang, da Flur OG sonst zu dunkel
- Ablage in Dusche ohne Sitzmöglichkeit, nur halbe Mauer als Ablage für Duschzeug; entstehender Totraum hinter Dusche vom Abstellraum aus zugänglich als Nische machen
- Kinderzimmer sind mit 1,40m-Betten im Grundriss, 90er reichen natürlich auch
Was gefällt nicht? Warum? :
- Flur EG zu schmal
- zu öffnende Tür zum Wohn-/Essbereich ist "unter" der Treppe (=vom Flur aus rechte Tür), da man sonst nicht in die Küche kommt
- geschlossene Treppenstufen, die ich gerne gehabt hätte, kommen bei diesem Grundriss nicht in Frage
- beidseitiges Treppengeländer im Flur OG (optisch), wobei der Flur so offener und weniger schmal wirkt
- Hauswirtschaftsraum hat "überflüssig viel" Platz in der Raummitte
- Bad oben: Aufteilung allgemein, Bad wirkt klein und unmodern
Warum ist der Entwurf so geworden, wie er jetzt ist?
- Küche: Da ich unter der Woche zum Frühstück nicht alles bis zum großen Esstisch schleppen möchte, ist mir ein Essbereich in der Küche wichtig. Optisch erschien mir Küchensitzbereich "neben" großem Esstischsitzbereich komisch, sodass wir derzeit eine halbhohe Mauer als Abgrenzung geplant haben, hinter die man den Küchentisch stellen könnte, sodass es immer noch halbwegs offen ist. Bin aber auch nicht sicher, ob die Wandlänge ausreicht
- anfangs fanden wir eine gerade Treppe ansprechend, aber sie ragt eben extrem weit durchs Haus unten und oben
[U]Was ist die wichtigste/grundlegende Frage zum Grundriss in 130 Zeichen zusammengefasst? [/U]
Wie kann man den Flur besser gestalten, sodass er nicht so eng wirkt? Wir sind auch offen gegenüber anderen Treppenformen. Es muss Platz für eine Garderobennische bleiben, die nicht zu einsehbar sein sollte. Gern auch vor dem Gäste-WC. Vielleicht entspannt sich durch die neue Gestaltung oben auch die Bad-Situation?
Ich bin gespannt auf Eure Anmerkungen und Ideen!
Liebe Grüße, Erisa








wir haben ein Grundstück in Niedersachsen gekauft und waren bereits im ersten Planungsgespräch mit der Architektin unserer Baufirma, dh. der erste Vorentwurf ist durch, drei haben wir frei.
Wir haben uns eine 3D-Datei schicken lassen, und konnten so vorab mal "durchs Haus gehen". Dabei hat uns nicht alles zugesagt, sodass ich hoffe, hier ein paar gute Tipps zur Optimierung zu bekommen.
Bebauungsplan/Einschränkungen
Größe des Grundstücks: 595 m²
Hang: entlang der Nordseite von der Einfahrt bis zur Nord-Ost-Ecke steigend, höchste Stelle ca. 1,30-1,50m (Stützmauer entlang der Grenze in Planung)
Gebäudetyp: Einfamilienhaus
Grundflächenzahl: 0,25
Geschossigkeit: 1 Vollgeschoss
Baugrenze: Norden 5m, Süden/Westen 3m
Anzahl Stellplatz: 2 lt. Bebauungsplan (1 Carport, 1 Stellplatz davor)
Ausrichtung: Süden
Maximale Höhen/Begrenzungen: Firsthöhe über OK EGFF: 9m , Traufhöhe über OK EGFF: 4,5m
Anforderungen der Bauherren
Stilrichtung, Dachform, Gebäudetyp: massives Kapitänshaus mit Giebel zum Süden, Satteldach 45°
Keller, Geschosse: 1 Vollgeschoss, kein Keller
Anzahl der Personen, Alter: 2 Personen (30, 34), 2 Kinder geplant
Raumbedarf im UG, EG, OG:
EG: Gäste-WC, Hauswirtschaftsraum, Küche, Wohn-/Esszimmer
OG: Bad, Elternschlafzimmer, 2 Kinderzimmer, Abstellraum (Waschmaschine/Trockner erhöht)
offene Küche, Kochinsel: Insellösung (auch ohne kochfeld und evtl. mit Sitzplätzen dran) fand bislang keinen Platz; Thema offen: siehe unten
Anzahl Essplätze: 4 in Küche, 6-8 im Wohn-/Essbereich
Kamin: nein
Musik/Stereowand: nein
Balkon: nein
Terrasse: ja, vor Küche und Wohn-/Essbereich
Zisterne: ja
Heizung/Strom: Erdwärmepumpe und Photovoltaikanlage mit Stromspeicher
Garage, Carport: Carport
weitere Wünsche/Besonderheiten, gern auch Begründungen, warum dieses oder das nicht sein soll:
- Küche: In der Küche möchten wir zu viert essen können, dabei geht es hauptsächlich um Frühstück in der Woche oder warme Mahlzeiten, bei denen der Kochtopf auch auf dem Herd stehen bleiben kann. Mit Kindern/Hochstühlen halte ich einen Bartisch/-Tresen nicht für sinnig!?
- Bad OG: Uns wurde von anderen Bauherren empfohlen, die Dusche (und WC dann auch?) wegen der Lautstärke nicht an die Wand zum Schlafzimmer zu legen.
- Fenstergrößen noch variabel
Hausentwurf
Von wem stammt die Planung: von uns in Abstimmung mit der Architektin der Hausbaufirma
Was gefällt besonders? Warum? :
- Größe der Küche, Ausgang zur Terrasse
- Tür von Küche in Hauswirtschaftsraum
- Hauswirtschaftsraum mit Platz für unsere 2 regale (1,67m Wand) für Lebensmittel und Haushaltssachen und gelber Sack direkt um die Ecke (neben Lüftung)
- HKV versteckt im Hauswirtschaftsraum, oben versteckt in dickerer Wand
- Abstellraum im OG mit Platz für Waschmaschine und Trockner auf Podest und Wäscheständer würde auch hineinpassen (Raum wird entlüftet)
- große Kinderzimmer
Was würden wir am derzeitigen Plan für den 2. Entwurf ändern :
- Tür Küche-Hauswirtschaftsraum zur Küche hin öffnen, um Kollision zu vermeiden? (keine Schiebetür-Lösung)
- evtl. Lichtband in Gäste-WC, damit man beim Zur-Haustür-Gehen nicht direkt hereinschauen kann und mehr Licht auf den Spiegel fällt, als wenn man das Licht nur im Rücken hat (Nordseite ist eh eher dunkler) > jetziges Bad-Fenster dann in Flur verschieben
- Fenster in Wohn-/Essbereich müssten von innen schauend beide nach links verrückt werden, zu nah an Wand
- evtl. Dachfenster in den Treppenaufgang, da Flur OG sonst zu dunkel
- Ablage in Dusche ohne Sitzmöglichkeit, nur halbe Mauer als Ablage für Duschzeug; entstehender Totraum hinter Dusche vom Abstellraum aus zugänglich als Nische machen
- Kinderzimmer sind mit 1,40m-Betten im Grundriss, 90er reichen natürlich auch
Was gefällt nicht? Warum? :
- Flur EG zu schmal
- zu öffnende Tür zum Wohn-/Essbereich ist "unter" der Treppe (=vom Flur aus rechte Tür), da man sonst nicht in die Küche kommt
- geschlossene Treppenstufen, die ich gerne gehabt hätte, kommen bei diesem Grundriss nicht in Frage
- beidseitiges Treppengeländer im Flur OG (optisch), wobei der Flur so offener und weniger schmal wirkt
- Hauswirtschaftsraum hat "überflüssig viel" Platz in der Raummitte
- Bad oben: Aufteilung allgemein, Bad wirkt klein und unmodern
Warum ist der Entwurf so geworden, wie er jetzt ist?
- Küche: Da ich unter der Woche zum Frühstück nicht alles bis zum großen Esstisch schleppen möchte, ist mir ein Essbereich in der Küche wichtig. Optisch erschien mir Küchensitzbereich "neben" großem Esstischsitzbereich komisch, sodass wir derzeit eine halbhohe Mauer als Abgrenzung geplant haben, hinter die man den Küchentisch stellen könnte, sodass es immer noch halbwegs offen ist. Bin aber auch nicht sicher, ob die Wandlänge ausreicht
- anfangs fanden wir eine gerade Treppe ansprechend, aber sie ragt eben extrem weit durchs Haus unten und oben
[U]Was ist die wichtigste/grundlegende Frage zum Grundriss in 130 Zeichen zusammengefasst? [/U]
Wie kann man den Flur besser gestalten, sodass er nicht so eng wirkt? Wir sind auch offen gegenüber anderen Treppenformen. Es muss Platz für eine Garderobennische bleiben, die nicht zu einsehbar sein sollte. Gern auch vor dem Gäste-WC. Vielleicht entspannt sich durch die neue Gestaltung oben auch die Bad-Situation?
Ich bin gespannt auf Eure Anmerkungen und Ideen!
Liebe Grüße, Erisa
Erisa2010 schrieb:
dabei geht es hauptsächlich um Frühstück in der Woche oder warme Mahlzeiten, bei denen der Kochtopf auch auf dem Herd stehen bleiben kann.Das wäre sogar für mich mal ein Argument für eine Kochinsel.Erisa2010 schrieb:
Optisch erschien mir Küchensitzbereich "neben" großem Esstischsitzbereich komisch, sodass wir derzeit eine halbhohe Mauer als Abgrenzung geplant haben,Das macht es optisch nicht weniger komisch, aber mit vielen Gästen immerhin praktischer. Ich würde hier die Abtrennung wohl ganz weglassen.https://www.instagram.com/11antgmxde/
https://www.linkedin.com/company/bauen-jetzt/
Frage: Das Haus ist ja eher kompakt. Ist es wirklich zwingend 2 Essplätze vor zu halten? Wie oft sitzt Ihr an dem großen? Doch nur bei Besuch, oder? Die Küche ist aber sowieso offen gestaltet. Also kann man die eh sofort sehen und riechen. Das ist ein doppelte gemoppelter Quark, der sinnlos Platz frisst. Wenn Ihr eine Koch / Essküche wollt, dann plant eine und zwar richtig!
Gängig ist ein großer Koch / Essbereich und ein separates WZ. Dann bleibt auch Platz für Flur, Treppe und Gedöns und falls Besuch Eure Küche nicht mag, könnt Ihr den ins WZ sperren.
Gängig ist ein großer Koch / Essbereich und ein separates WZ. Dann bleibt auch Platz für Flur, Treppe und Gedöns und falls Besuch Eure Küche nicht mag, könnt Ihr den ins WZ sperren.
kaho674 schrieb:
Ist es wirklich zwingend 2 Essplätze vor zu halten? [...] Das ist ein doppelte gemoppelter Quark, der sinnlos Platz frisst.Besonders komisch läßt den Erker dabei wirken, daß er keinen der Essplätze beherbergt. Im Dachgeschoss ist der Erker auch lediglich dazu dienlich, daß der Schreibplatz eines der Kinderzimmer vor der geraden Treppe dorthin fliehen kann. Eine andere Treppenform löste dies wohl besser. Meines Empfindens gehörte ein echter Kapitänsgiebel übrigens auf die Straßenseite, über die Bürgermeistertür.https://www.instagram.com/11antgmxde/
https://www.linkedin.com/company/bauen-jetzt/
E
Erisa201010.10.19 10:04Hallo und vielen Dank schon mal für die Meinungen
Vielleicht müssen wir die Küchen/Essbereich-Situation echt noch mal überdenken. Werden wir heute Abend mal evaluieren
Solange hab ich erst mal den Flur abgeändert. ich hoffe, das passt mit der Treppe und der Tür. Optisch auf jeden Fall viel ansprechender! Für die Winkel in der Küche muss ich noch eine Lösung finden, vielleicht in Zusammenhang mit weiteren möglichen Küchenänderungen.

Das sehe ich genauso und hätte das auch gern so gehabt, aber unsere Haustür ist an der Nordseite, die relativ schmal ist und zum Nachbarn hin ausgerichtet ist, sodass der Giebel dort gar nicht zur Geltung kommen würde. Die Südseite hingegen liegt zur Straße und deswegen macht der Giebel da in unserem Fall mehr Sinn.
Vielleicht müssen wir die Küchen/Essbereich-Situation echt noch mal überdenken. Werden wir heute Abend mal evaluieren
Solange hab ich erst mal den Flur abgeändert. ich hoffe, das passt mit der Treppe und der Tür. Optisch auf jeden Fall viel ansprechender! Für die Winkel in der Küche muss ich noch eine Lösung finden, vielleicht in Zusammenhang mit weiteren möglichen Küchenänderungen.
11ant schrieb:
Meines Empfindens gehörte ein echter Kapitänsgiebel übrigens auf die Straßenseite, über die Bürgermeistertür.
Das sehe ich genauso und hätte das auch gern so gehabt, aber unsere Haustür ist an der Nordseite, die relativ schmal ist und zum Nachbarn hin ausgerichtet ist, sodass der Giebel dort gar nicht zur Geltung kommen würde. Die Südseite hingegen liegt zur Straße und deswegen macht der Giebel da in unserem Fall mehr Sinn.
Erisa2010 schrieb:
Insellösung (auch ohne Kochfeld und evtl. mit Sitzplätzen dran) fand bislang keinen Platz; Thema offen: siehe untenErisa2010 schrieb:
- Küche: In der Küche möchten wir zu viert essen können, dabei geht es hauptsächlich um Frühstück in der Woche oder warme Mahlzeiten, bei denen der Kochtopf auch auf dem Herd stehen bleiben kann.Erisa2010 schrieb:
- Küche: Da ich unter der Woche zum Frühstück nicht alles bis zum großen Esstisch schleppen möchte, ist mir ein Essbereich in der Küche wichtig. Optisch erschien mir Küchensitzbereich "neben" großem Esstischsitzbereich komisch, sodass wir derzeit eine halbhohe Mauer als Abgrenzung geplant haben,Ich weiß jetzt ehrlich gesagt überhaupt nicht, was Ihr nun in der Küche wollt: Insel, Bar, Esstisch...?
Ich würde einfach mal für Euch differenzieren, a) was Ihr WOLLT und b) was MÖGLICH ist. Und danach planen lassen.
Erisa2010 schrieb:
Wir haben uns eine 3D-Datei schicken lassen, und konnten so vorab mal "durchs Haus gehen". Dabei hat uns nicht alles zugesagt,Was hat denn da nicht zugesagt? 3D verzerrt ja auch immer so einiges.... Es ist halt NUR ein Programm, welches 2D in 3D in starrem Blickwinkel umsetzt.
Das WZ gefällt mir gar nicht: mit 32qm ist es kompakt, aber davon sind die ersten 10 qm nicht genutzt. Der Schein mit den Möbeln trügt. Zeichnet mal Eure Möbel maßstabsgetreu ein... dann seht Ihr, wo es eng wird.
Bei einem Kalksandstein von einem Meter wird das mit dem Sitzen im Bett am Sonntag Morgen nichts...
Ähnliche Themen