ᐅ Grundrissentwurf Einfamilienhaus 200 qm mit Satteldach, 2 Vollg. Doppelgarage
Erstellt am: 01.03.25 15:50
S
SchlemmerTeoS
SchlemmerTeo01.03.25 15:50Grüßt euch liebes Forum,
wir haben das Glück, ein unbebautes Erbgrundstück mit ca. 1100 m² Fläche zu besitzen. Das Grundstück besitzt eine Südzufahrt und liegt am Ortsrand – im Norden grenzt es direkt an Ackerland. Wir planen, das Grundstück so zu bebauen, dass später auch die Möglichkeit besteht, ein zweites, kleineres Haus zu errichten.
Da wir drei Kinder (5, 6 und 9 Jahre) haben, überlegen wir, das Haus in zwei Wohneinheiten unterteilen zu können, um auch langfristig flexibel zu bleiben. Die Doppeltgarage mit direktem Zugang ins Haus wäre ebenso schön. Wir planen auch mit Keller unter dem Haus.
Grundstück:
Fläche: ca. 1100 m²
Topographie: Sehr flach, maximal ca. 70 cm Höhenunterschied
Lage: Ortsrand, angrenzende Ackerfläche im Norden
Geschosse & Bebauung:
2 Vollgeschosse plus Keller
Baufenster:
5 m Abstand von der Straße, ansonsten 3 m mit Ausnahme der 9 m Grenzbebauung Garage.
Stellplätze:
4 Stück, da die Einfahrt vor der Doppelgarage laut Satzung nochmals 2 Stellplätze ergibt.
Dachform:
Kaltdach, als Satteldach 20 - 25 ° Neigung.
Ausrichtung:
In unseren aktuellen Entwürfen haben wir die Garage + Haus an die Ostseite geschoben, damit wir möglichst viel Südwestgarten bekommen. Küche/Essen/Wohnen hätten aktuell SüdWestWest Ausrichtung.
Maximale Höhen/Begrenzungen
2 Vollgeschosse, keine direkte Höhenbegrenzung.
Anforderungen der Bauherren
Gerne modern, praktisch, offene Küche, Kochinsel.
Das Büro soll auch als Home Office dienen, wir beide machen abwechselnd Home Office.
Die Kinder sind wie erwähnt 5/6 und 9 Jahre alt, wir selbst 36 Jahre.
Sind keine besonderen Frühaufsteher, deswegen sind wir dem Wester eher zugeneigt.
Hausentwurf:
Von wem stammt die Planung:
- Von einem Bauzeichner, kein Architekt, auf Vorlage unseres handgepinselten Entwurfes.
Entwurfsentscheidungen:
Ich freue mich über euer konstruktives Feedback und Anregungen zur weiteren Optimierung des Entwurfs.
Viele Grüße,
Teo



wir haben das Glück, ein unbebautes Erbgrundstück mit ca. 1100 m² Fläche zu besitzen. Das Grundstück besitzt eine Südzufahrt und liegt am Ortsrand – im Norden grenzt es direkt an Ackerland. Wir planen, das Grundstück so zu bebauen, dass später auch die Möglichkeit besteht, ein zweites, kleineres Haus zu errichten.
Da wir drei Kinder (5, 6 und 9 Jahre) haben, überlegen wir, das Haus in zwei Wohneinheiten unterteilen zu können, um auch langfristig flexibel zu bleiben. Die Doppeltgarage mit direktem Zugang ins Haus wäre ebenso schön. Wir planen auch mit Keller unter dem Haus.
Grundstück:
Fläche: ca. 1100 m²
Topographie: Sehr flach, maximal ca. 70 cm Höhenunterschied
Lage: Ortsrand, angrenzende Ackerfläche im Norden
Geschosse & Bebauung:
2 Vollgeschosse plus Keller
Baufenster:
5 m Abstand von der Straße, ansonsten 3 m mit Ausnahme der 9 m Grenzbebauung Garage.
Stellplätze:
4 Stück, da die Einfahrt vor der Doppelgarage laut Satzung nochmals 2 Stellplätze ergibt.
Dachform:
Kaltdach, als Satteldach 20 - 25 ° Neigung.
Ausrichtung:
In unseren aktuellen Entwürfen haben wir die Garage + Haus an die Ostseite geschoben, damit wir möglichst viel Südwestgarten bekommen. Küche/Essen/Wohnen hätten aktuell SüdWestWest Ausrichtung.
Maximale Höhen/Begrenzungen
2 Vollgeschosse, keine direkte Höhenbegrenzung.
Anforderungen der Bauherren
Gerne modern, praktisch, offene Küche, Kochinsel.
Das Büro soll auch als Home Office dienen, wir beide machen abwechselnd Home Office.
Die Kinder sind wie erwähnt 5/6 und 9 Jahre alt, wir selbst 36 Jahre.
Sind keine besonderen Frühaufsteher, deswegen sind wir dem Wester eher zugeneigt.
Hausentwurf:
Von wem stammt die Planung:
- Von einem Bauzeichner, kein Architekt, auf Vorlage unseres handgepinselten Entwurfes.
Entwurfsentscheidungen:
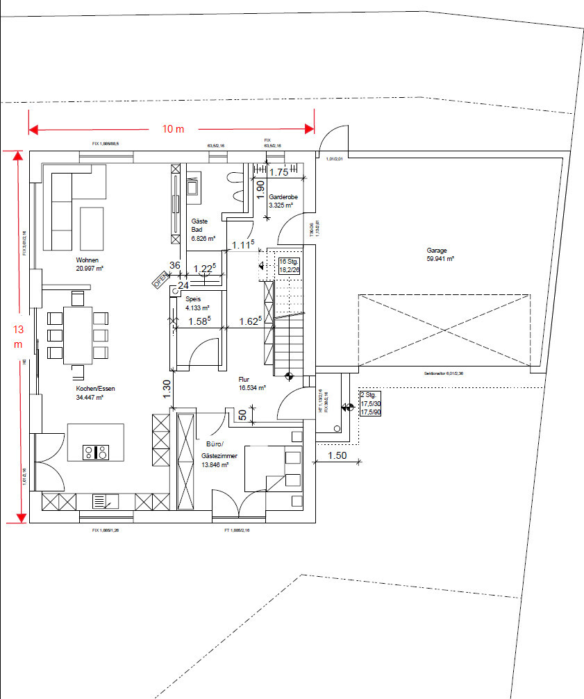
- Küche, Ess- und Wohnbereich sind zum Garten ausgerichtet, während WC und Bad nach Norden zeigen
- Der direkte Zugang der Garage zum Haus ist vorgesehen
- Die Treppe befindet sich nahe dem Eingang – eine gewendelte Treppe wurde nicht gewünscht (mit der Option, das Obergeschoss abtrennen zu können)
- Die Garage soll an der Ostseite liegen, um sich harmonisch in die Straßenzeile einzufügen
- Die Größe des Hauses insgesamt
- Zugang über die Garage führen zu einem sehr langen Flur
Ich freue mich über euer konstruktives Feedback und Anregungen zur weiteren Optimierung des Entwurfs.
Viele Grüße,
Teo
R
roteweste01.03.25 17:24Glückwunsch zum Grundstück. Wie sieht eure Budgetplanung aus?
SchlemmerTeo schrieb:
ein unbebautes Erbgrundstück mit ca. 1100 m² FlächeSchlemmerTeo schrieb:
Ich kann mich dem nur anschließen: herzlichen Glückwunsch!
Kritik am aktuellen Entwurf:
- Die Größe des Hauses insgesamt
Das würde ich auch kritisieren. Einige Planungen sind auch bei 109qm-Häusern zu finden, so zB die Treppe an dem Schmutzbereich, die Wanne unter dem Fenster sowie der doch recht kleine Elternbereich, wo man kaum an den Kleiderschrank rankommt.
SchlemmerTeo schrieb:
Zugang über die Garage führen zu einem sehr langen FlurAber Ihr habt es doch vorgepinselt? Es ist keine Kunst, ohne gewisser Planung auf Freifläche selbst ein Simshaus zu gestalten. Ok, davon ist es auch entfernt. Aber nicht weit.SoL schrieb:
Garderobe und Speis ist eine Fehlplanung.
Ich würde nochmal starten, da das EG durch diesen langen Wurmflur komplett zerklüftet ist.Sehe ich ähnlich.
Erstens viel verlorene Fläche, dabei aber auch Engstellen. Die Wand zw Wohnen und Esstisch sollte weg. Der Flur ist zerklüftet. Kaminschlot in der Speis.. Die Kinderzimmer sind schon fast zu groß, die bekommt man gar nicht gemütlich möbliert.
Es gibt auch keinen Grund, sich im Hofbereich so mit den Metern zu zurren, wenn das Grundstück großzügige 1100qm vorweist.
Wie ist denn das Budget? Derzeit steht eine 7 vor dem Betrag.
Ich würde die Türe Garage Haus streichen. Zum Eingang sind es nur ein paar Schritte mehr. Mit dieser Türe verbastelt ihr das EG. Wir haben die Garagentüre und eine Haustüre. Liegen sogar ein paar Schritte mehr dazwischen. Eine Türe ist überflüssig. Die Haustüre nutzt nur hoher Besuch. Alles andere kommt durch Garage oder Terrasse.
Vereinfacht euer EG Garderobe zur Haustüre, warum eine Speis wenn ihr einen Keller habt?
Getränke werden warm, Kartoffel und Äpfel ist es zu warm.
Wenn ihr das Eg neu plant habt ihr ein paar Qm weniger ohne Komfortverlust.
Vereinfacht euer EG Garderobe zur Haustüre, warum eine Speis wenn ihr einen Keller habt?
Getränke werden warm, Kartoffel und Äpfel ist es zu warm.
Wenn ihr das Eg neu plant habt ihr ein paar Qm weniger ohne Komfortverlust.
Ähnliche Themen