ᐅ Grundriss wie verändern?
Erstellt am: 21.06.17 11:14
Hallo Zusammen,
ich habe ja bereits einen Grundriss im Baukostenforum gepostet.
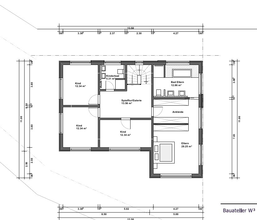
Da kam bereits die Anmerkung, die Kinderzimmer seien zu klein.
Jetzt war ich gestern in einem Musterhaus für ein Angebot und habe mir
dann dort die Zimmer angesehen.
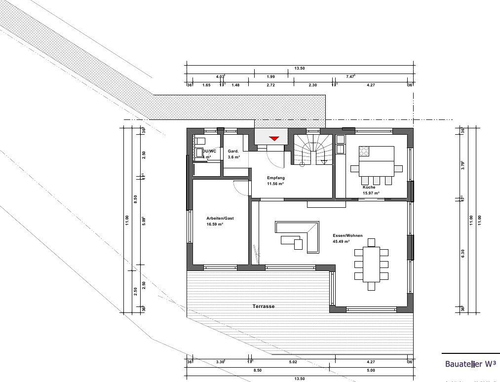
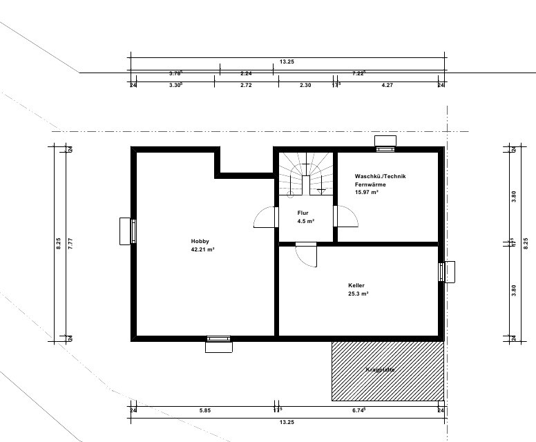
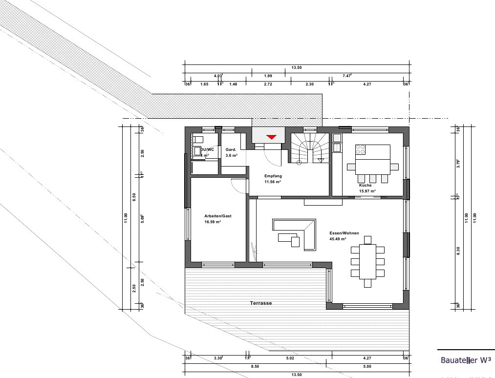
Ich muss gestehen ich war etwas geschockt über die Größe der Kinderzimmer, die etwa 11 qm groß waren. Also unwesentlich kleiner als bei uns geplant. Auf dem Papier kann man sich die Raumgröße ja nur schlecht vorstellen.
Hättet ihr eine Idee wie man die 3 Kinderzimmer im OG vergrößern könnte, ohne gleich den ganzen Grundriss über den Haufen zu werfen?
Bzw. wenn ihr sonst irgendwelche Kritik/Verbesserungsvorschläge einbringen wollt, gerne.
Beste Grüße
Steffen







ich habe ja bereits einen Grundriss im Baukostenforum gepostet.
Da kam bereits die Anmerkung, die Kinderzimmer seien zu klein.
Jetzt war ich gestern in einem Musterhaus für ein Angebot und habe mir
dann dort die Zimmer angesehen.
Ich muss gestehen ich war etwas geschockt über die Größe der Kinderzimmer, die etwa 11 qm groß waren. Also unwesentlich kleiner als bei uns geplant. Auf dem Papier kann man sich die Raumgröße ja nur schlecht vorstellen.
Hättet ihr eine Idee wie man die 3 Kinderzimmer im OG vergrößern könnte, ohne gleich den ganzen Grundriss über den Haufen zu werfen?
Bzw. wenn ihr sonst irgendwelche Kritik/Verbesserungsvorschläge einbringen wollt, gerne.
Beste Grüße
Steffen
Wer hat denn die Planung gemacht?
Mir persönlich gefällt das Haus nicht von außen: es ist wenig gefällig, eher ein Kasten mit etwas zu viel von allem.
Nun denn: als erstes würde ich mal Küche mit Arbeit tauschen, damit die Grillabende gesichert sind.
Zu Deiner Problematik: es gibt da sicherlich Möglichkeiten. Ankleide drehen und Bad verschlanken, sodass die planlinken Kinderzimmers tiefer werden können. Flur verschlanken. Kinderbad auch rechts der Treppe.
Treppe passt mM nach von der "Größe" nicht zum Haus.
Ich würde mich an Deiner Stelle von diesem Entwurf verabschieden und alles neu machen. Nur weil bis ins Detail vermasst wurde, ist das jetzt nicht der beste Entwurf, wo es sich lohnt, daran festzuhalten.
In aller Kürze Grüsse
Mir persönlich gefällt das Haus nicht von außen: es ist wenig gefällig, eher ein Kasten mit etwas zu viel von allem.
Nun denn: als erstes würde ich mal Küche mit Arbeit tauschen, damit die Grillabende gesichert sind.
Zu Deiner Problematik: es gibt da sicherlich Möglichkeiten. Ankleide drehen und Bad verschlanken, sodass die planlinken Kinderzimmers tiefer werden können. Flur verschlanken. Kinderbad auch rechts der Treppe.
Treppe passt mM nach von der "Größe" nicht zum Haus.
Ich würde mich an Deiner Stelle von diesem Entwurf verabschieden und alles neu machen. Nur weil bis ins Detail vermasst wurde, ist das jetzt nicht der beste Entwurf, wo es sich lohnt, daran festzuhalten.
In aller Kürze Grüsse
ypg schrieb:
Wer hat denn die Planung gemacht?Die Planung macht ein Architekt.
ypg schrieb:
Mir persönlich gefällt das Haus nicht von außen: es ist wenig gefällig, eher ein Kasten mit etwas zu viel von allem.Da scheiden sich die Geister, wir finden es eigentlich gelungen. Das einzige, wo ich noch nicht ganz schlüssig bin, sind die bodentiefen Fenster im OG. Das sieht noch nicht perfekt aus.
ypg schrieb:
Zu Deiner Problematik: es gibt da sicherlich Möglichkeiten. Ankleide drehen und Bad verschlanken, sodass die planlinken Kinderzimmers tiefer werden können. Flur verschlanken. Kinderbad auch rechts der Treppe.
Treppe passt mM nach von der "Größe" nicht zum Haus.Bad verschlanken will meine Frau nicht. Obwohl ich es fast für zu groß halte. Größer bauen wäre ein Lösung, aber leider zu teuer.
R
RobsonMKK21.06.17 12:38Ich muss Yvonne irgendwie zustimmen: es sieht aus wie ein riesiger Klotz
Zum OG bzw. der Kinderzimmer Thematik: warum brauchen 2 Menschen die diese Räumlichkeiten eigentlich rein zum schlafen nutzen mehr Platz als 3 Kinder die in Ihren Zimmern spielen und ggf. auch mal Freunde da haben? Ich finde das Wahnsinn (und es wird darüber sicher auch gleich wieder eine Diskussion geben).
Konkrete Vorschläge habe ich keine, würde aber mal drüber nachdenken. Dinge die mir da auffallen sind der Platz für 9!!! Meter Kleiderschrank, ein Doppelwaschtisch für 2 Personen...und dann halt ein Flur der größer ist als jedes der Kinderzimmer. Mir fehlt da euch die Relation.
Wie in einem anderen Thread schon erwähnt, sobald Architekten Platz bekommen, scheint es mit dem planen aufzuhören.
Zum OG bzw. der Kinderzimmer Thematik: warum brauchen 2 Menschen die diese Räumlichkeiten eigentlich rein zum schlafen nutzen mehr Platz als 3 Kinder die in Ihren Zimmern spielen und ggf. auch mal Freunde da haben? Ich finde das Wahnsinn (und es wird darüber sicher auch gleich wieder eine Diskussion geben).
Konkrete Vorschläge habe ich keine, würde aber mal drüber nachdenken. Dinge die mir da auffallen sind der Platz für 9!!! Meter Kleiderschrank, ein Doppelwaschtisch für 2 Personen...und dann halt ein Flur der größer ist als jedes der Kinderzimmer. Mir fehlt da euch die Relation.
Wie in einem anderen Thread schon erwähnt, sobald Architekten Platz bekommen, scheint es mit dem planen aufzuhören.
Ähnliche Themen