ᐅ Grundriss und Ausrichtung Einfamilienhaus – Meinungen/Einschätzung
Erstellt am: 23.06.16 13:31
A
aljoma
Hallo zusammen,
ich (35) meine Frau (34) und unser Sohn (2) haben uns vor einen Jahr entschieden in einem Neubaugebiet am Rande einer deutschen Großstadt ein 618 qm Grundstück zu erwerben.
Da im Moment die Erschließungsarbeiten im vollen Gange sind und sich der Baubeginn wohl noch bis zu einem Jahr hinziehen wird.
Frühzeitig haben wir uns auf einen deutschen Fertighausanbieter festgelegt und durch diesen einen Architekten vermittelt bekommen. Nach mehreren Gesprächen mit dem Architekten haben wir nun einen für unseren Geschmack recht gelungenen Entwurf erhalten (wobei die Fensterplanung nochmal überarbeitet werden müsste).
Da wir recht unerfahren in dem Bereich sind möchte ich Euch um Eure Meinungen zu dem Grundriss und zur Ausrichtung des Hauses bitten.
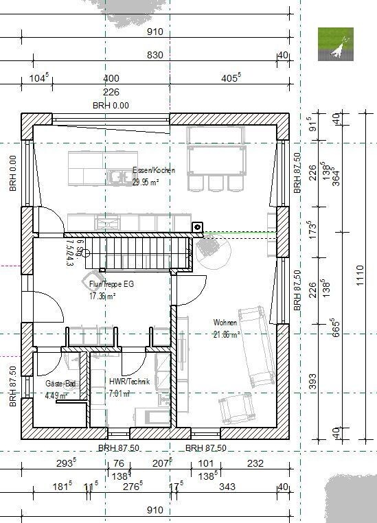
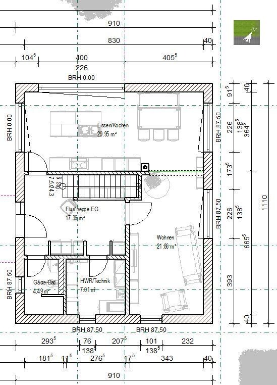
Kurze Beschreibung zum Haus:
geplant wird ein freistehendes Einfamilienhaus mit ca. 150 qm mit Satteldach und Kniestock von 1,60m
ohne Keller und ohne Kamin
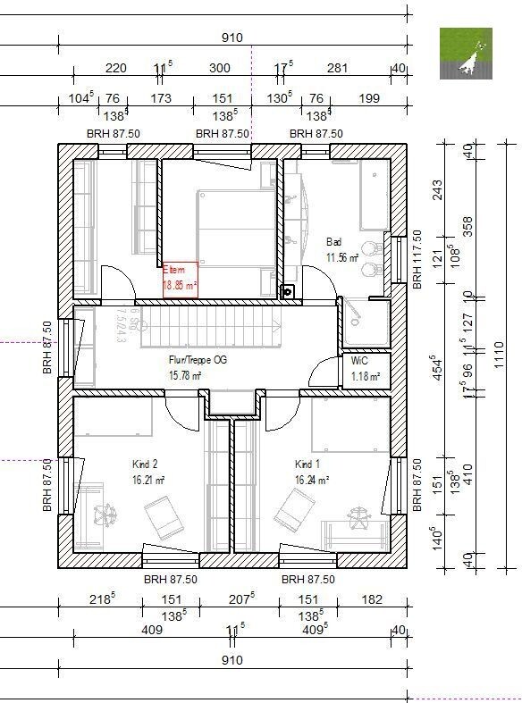
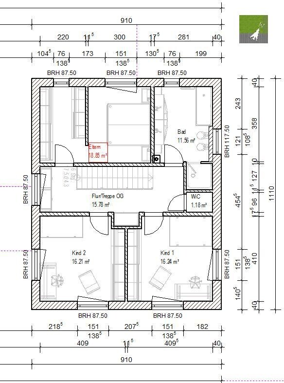
Wunsch war/ist eine grade Treppe und ein Dusch/WC im EG und eine Ankleide im OG
zum Grundstück:
618 qm
Baufenster ist praktisch überall unter Einhaltung der 3 m Grenzbebauung
Garagen können direkt auf die Grenze gesetzt werden
Besonderheit: Zufahrt zum Grundstück nur über die 3,5 m breite Einfahrt möglich



Vorab schon mal vielen Dank für Eure Anregungen
ich (35) meine Frau (34) und unser Sohn (2) haben uns vor einen Jahr entschieden in einem Neubaugebiet am Rande einer deutschen Großstadt ein 618 qm Grundstück zu erwerben.
Da im Moment die Erschließungsarbeiten im vollen Gange sind und sich der Baubeginn wohl noch bis zu einem Jahr hinziehen wird.
Frühzeitig haben wir uns auf einen deutschen Fertighausanbieter festgelegt und durch diesen einen Architekten vermittelt bekommen. Nach mehreren Gesprächen mit dem Architekten haben wir nun einen für unseren Geschmack recht gelungenen Entwurf erhalten (wobei die Fensterplanung nochmal überarbeitet werden müsste).
Da wir recht unerfahren in dem Bereich sind möchte ich Euch um Eure Meinungen zu dem Grundriss und zur Ausrichtung des Hauses bitten.
Kurze Beschreibung zum Haus:
geplant wird ein freistehendes Einfamilienhaus mit ca. 150 qm mit Satteldach und Kniestock von 1,60m
ohne Keller und ohne Kamin
Wunsch war/ist eine grade Treppe und ein Dusch/WC im EG und eine Ankleide im OG
zum Grundstück:
618 qm
Baufenster ist praktisch überall unter Einhaltung der 3 m Grenzbebauung
Garagen können direkt auf die Grenze gesetzt werden
Besonderheit: Zufahrt zum Grundstück nur über die 3,5 m breite Einfahrt möglich
Vorab schon mal vielen Dank für Eure Anregungen
Ich zumindest würde so ansetzen. Und das Haus weitestmöglichst an die Baugrenze planrechts.
Und dann könnte man versuchen, den Eingang evtl. dorthin zu bringen, wo jetzt die Speisekammer ist:
Dann kann die Tür in die Küche mittig werden und evtl. als Glas-Schiebetür in der Wand zur Küche laufen. Und, jemand der reinkommt, kann nicht direkt bis aus Sofa gucken.
An der Wand planunten dann 1 Fenster ggü. der Treppe, da kann man dann eine Kommode stellen und rechts und links davon einfach hohe Schränke für Garderobe und als Vorratsbereich für Sachen wie Konserven, Nudeln, Getränke usw.
Evtl. kann man aus den 160 cm dort noch 170 bis 175 cm machen, dann würde Wohnen/Essen statt 508 nur noch ca. 493 bis 498 cm haben. Position der Treppe könnte bleiben, am Ende der Treppe hätte man nur noch einen größeren Abstellbereich unter der Treppe.
Und dann könnte man versuchen, den Eingang evtl. dorthin zu bringen, wo jetzt die Speisekammer ist:
Dann kann die Tür in die Küche mittig werden und evtl. als Glas-Schiebetür in der Wand zur Küche laufen. Und, jemand der reinkommt, kann nicht direkt bis aus Sofa gucken.
An der Wand planunten dann 1 Fenster ggü. der Treppe, da kann man dann eine Kommode stellen und rechts und links davon einfach hohe Schränke für Garderobe und als Vorratsbereich für Sachen wie Konserven, Nudeln, Getränke usw.
Evtl. kann man aus den 160 cm dort noch 170 bis 175 cm machen, dann würde Wohnen/Essen statt 508 nur noch ca. 493 bis 498 cm haben. Position der Treppe könnte bleiben, am Ende der Treppe hätte man nur noch einen größeren Abstellbereich unter der Treppe.
aljoma schrieb:
@ypg: meinst Du das so mit der Garage?

Ja, ungefähr so 🙂
Warum muss es ein Westgarten sein? Warum das Haus nicht um 90 Grad drehen und neben der Garage platzieren, die gegenüber der Einfahrt ist? Dann habt ihr den Hauptgaerten im Süden und Osten. Fände ich viel besser von der gesamten Zusammenstellung. Wobei dann der Grundriss so nicht mehr ganz funktioniert....
Mal als Anregung, für jemand anders habe ich mal diese Version skizziert. Da ist das Haus etwas breiter, ohne Kamin könnte man es wohl ca. 50 cm schmaler machen, ohne am Layout großartig etwas zu ändern. Die Nordlage war da ähnlich. Außerdem die Einfahrt etwas weiter rechts, das wäre aber ja kein Problem. Hier war der Gedanke eine Garage (eher Fahrrad-/Rasenmäherraum) und die Autos mit der Schnauze unter den "Wandelgang"
Was man halt schön machen kann mit Garage links, dann so eine Art "Wandelgang", um auch trocken ins Haus zu kommen, ist, den Terrassenbereich etwas zu privatisieren.
Es kommt dabei natürlich auch auf die gewollten Nutzungswünsche Küche/Essen/Wohnen an. OG-Bad müßte vermutlich durch einen Schacht rechts an der Esszimmerwand entwässert werden 😉 .. nicht so hyperideal.
Dafür aber viele Stauraumbereiche.




Was man halt schön machen kann mit Garage links, dann so eine Art "Wandelgang", um auch trocken ins Haus zu kommen, ist, den Terrassenbereich etwas zu privatisieren.
Es kommt dabei natürlich auch auf die gewollten Nutzungswünsche Küche/Essen/Wohnen an. OG-Bad müßte vermutlich durch einen Schacht rechts an der Esszimmerwand entwässert werden 😉 .. nicht so hyperideal.
Dafür aber viele Stauraumbereiche.
Original des TE gefällt!
Zumal Grundrisse mit Eingang an der Stirnseite anspruchsvoller sind.
Nur eine Detailanmerkung zugunsten Kinderzimmer OG planrechts. Da sollte die Wandstärke zum Klo stark erhöht werden. Stichwort Spül- und Plumpsgeräusche.....
Abstellraum ohne Keller arg knapp. Wo trocknet Wäsche?
Zumal Grundrisse mit Eingang an der Stirnseite anspruchsvoller sind.
Nur eine Detailanmerkung zugunsten Kinderzimmer OG planrechts. Da sollte die Wandstärke zum Klo stark erhöht werden. Stichwort Spül- und Plumpsgeräusche.....
Abstellraum ohne Keller arg knapp. Wo trocknet Wäsche?
Ähnliche Themen