ᐅ Grundriss und Ausrichtung Einfamilienhaus – Meinungen/Einschätzung
Erstellt am: 23.06.16 13:31
A
aljomaHallo zusammen,
ich (35) meine Frau (34) und unser Sohn (2) haben uns vor einen Jahr entschieden in einem Neubaugebiet am Rande einer deutschen Großstadt ein 618 qm Grundstück zu erwerben.
Da im Moment die Erschließungsarbeiten im vollen Gange sind und sich der Baubeginn wohl noch bis zu einem Jahr hinziehen wird.
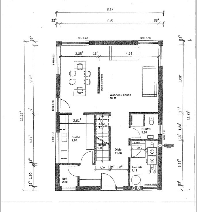
Frühzeitig haben wir uns auf einen deutschen Fertighausanbieter festgelegt und durch diesen einen Architekten vermittelt bekommen. Nach mehreren Gesprächen mit dem Architekten haben wir nun einen für unseren Geschmack recht gelungenen Entwurf erhalten (wobei die Fensterplanung nochmal überarbeitet werden müsste).
Da wir recht unerfahren in dem Bereich sind möchte ich Euch um Eure Meinungen zu dem Grundriss und zur Ausrichtung des Hauses bitten.
Kurze Beschreibung zum Haus:
geplant wird ein freistehendes Einfamilienhaus mit ca. 150 qm mit Satteldach und Kniestock von 1,60m
ohne Keller und ohne Kamin
Wunsch war/ist eine grade Treppe und ein Dusch/WC im EG und eine Ankleide im OG
zum Grundstück:
618 qm
Baufenster ist praktisch überall unter Einhaltung der 3 m Grenzbebauung
Garagen können direkt auf die Grenze gesetzt werden
Besonderheit: Zufahrt zum Grundstück nur über die 3,5 m breite Einfahrt möglich



Vorab schon mal vielen Dank für Eure Anregungen
ich (35) meine Frau (34) und unser Sohn (2) haben uns vor einen Jahr entschieden in einem Neubaugebiet am Rande einer deutschen Großstadt ein 618 qm Grundstück zu erwerben.
Da im Moment die Erschließungsarbeiten im vollen Gange sind und sich der Baubeginn wohl noch bis zu einem Jahr hinziehen wird.
Frühzeitig haben wir uns auf einen deutschen Fertighausanbieter festgelegt und durch diesen einen Architekten vermittelt bekommen. Nach mehreren Gesprächen mit dem Architekten haben wir nun einen für unseren Geschmack recht gelungenen Entwurf erhalten (wobei die Fensterplanung nochmal überarbeitet werden müsste).
Da wir recht unerfahren in dem Bereich sind möchte ich Euch um Eure Meinungen zu dem Grundriss und zur Ausrichtung des Hauses bitten.
Kurze Beschreibung zum Haus:
geplant wird ein freistehendes Einfamilienhaus mit ca. 150 qm mit Satteldach und Kniestock von 1,60m
ohne Keller und ohne Kamin
Wunsch war/ist eine grade Treppe und ein Dusch/WC im EG und eine Ankleide im OG
zum Grundstück:
618 qm
Baufenster ist praktisch überall unter Einhaltung der 3 m Grenzbebauung
Garagen können direkt auf die Grenze gesetzt werden
Besonderheit: Zufahrt zum Grundstück nur über die 3,5 m breite Einfahrt möglich
Vorab schon mal vielen Dank für Eure Anregungen
Wie kommt denn das Haus auf das Grundstück?
Wie ist Garage/Carport geplant?
Grundsätzlich ist eine gefangene Ankleide nicht ideal, auch die Küchensituation mit der Tür ist nicht ideal. Ich wüsste allerdings spontan keine Alternative.
Auf jeden Fall solltet ihr Dusche mit Toilette im OG tauschen.
Und die Trennwand im WZ würde ich um 20/30 cm schieben. Diese eventuell nur als Trockenwand halbhoch, falls sie irgendwann stören sollte.
Kinderzimmer-Fenster etwas breiter.
Wo kommen Waschmaschine und Trockner hin? Wo Bügelbrett und Staubsauger?
Wie ist Garage/Carport geplant?
Grundsätzlich ist eine gefangene Ankleide nicht ideal, auch die Küchensituation mit der Tür ist nicht ideal. Ich wüsste allerdings spontan keine Alternative.
Auf jeden Fall solltet ihr Dusche mit Toilette im OG tauschen.
Und die Trennwand im WZ würde ich um 20/30 cm schieben. Diese eventuell nur als Trockenwand halbhoch, falls sie irgendwann stören sollte.
Kinderzimmer-Fenster etwas breiter.
Wo kommen Waschmaschine und Trockner hin? Wo Bügelbrett und Staubsauger?
Da sprichst Du schon unser Hauptproblem an. Wir sind uns immer noch unsicher wie wir das Haus auf das Grundstück platzieren. Hier haben wir mehrere Möglichkeiten aber im Moment sind wir uns noch nicht einig.
Ein Version wäre diese hier. Problem dabei, da wir nur über die 3,50 m breite Zufahrt auf das Grundstück kommen müssten wir eine große Fläche pflastern wg. Lenkeinschlag von den Autos und der Zugang zum Haus.
Eine weitere Alternative: Garage direkt grade zur Einfahrt. Dann müsste natürlich ein Weg von Garage zum Haus quer durch den halben Garten.
Gibt es Vorschläge wie wir das Haus besser auf dem Grundstück platzieren?

@ypg: Du hast Recht, die Küchensituation mit der Tür ist nicht rund. Unsere Architektin war da auch nicht zufrieden aber etwas besseres konnte sie auch nicht anbieten. Vielleicht hast Du noch eine Idee? Und wie meinste das mit der gefangenen Ankleide? Kannst Du das bitte nochmal erläutern?
Die Trennwand im WZ sollte eigentlich bis zur Decke reichen, die 20/30 cm dann zu Lasten Wohnen und zu Gunsten Essen?
Die Waschmaschine und Trockner sollen in den Hauswirtschaftsraum, sollte doch passen!? Aber klar viel Platz bleibt dann nicht mehr. Im OG kommt die Dusche noch raus, soll nur eine Badewanne bleiben.
Dankeschön
Ein Version wäre diese hier. Problem dabei, da wir nur über die 3,50 m breite Zufahrt auf das Grundstück kommen müssten wir eine große Fläche pflastern wg. Lenkeinschlag von den Autos und der Zugang zum Haus.
Eine weitere Alternative: Garage direkt grade zur Einfahrt. Dann müsste natürlich ein Weg von Garage zum Haus quer durch den halben Garten.
Gibt es Vorschläge wie wir das Haus besser auf dem Grundstück platzieren?
@ypg: Du hast Recht, die Küchensituation mit der Tür ist nicht rund. Unsere Architektin war da auch nicht zufrieden aber etwas besseres konnte sie auch nicht anbieten. Vielleicht hast Du noch eine Idee? Und wie meinste das mit der gefangenen Ankleide? Kannst Du das bitte nochmal erläutern?
Die Trennwand im WZ sollte eigentlich bis zur Decke reichen, die 20/30 cm dann zu Lasten Wohnen und zu Gunsten Essen?
Die Waschmaschine und Trockner sollen in den Hauswirtschaftsraum, sollte doch passen!? Aber klar viel Platz bleibt dann nicht mehr. Im OG kommt die Dusche noch raus, soll nur eine Badewanne bleiben.
Dankeschön
aljoma schrieb:
Da sprichst Du schon unser Hauptproblem an. Wir sind uns immer noch unsicher wie wir das Haus auf das Grundstück platzieren. Hier haben wir mehrere Möglichkeiten aber im Moment sind wir uns noch nicht einig.
Ein Version wäre diese hier. Problem dabei, da wir nur über die 3,50 m breite Zufahrt auf das Grundstück kommen müssten wir eine große Fläche pflastern wg. Lenkeinschlag von den Autos und der Zugang zum Haus.
Eine weitere Alternative: Garage direkt grade zur Einfahrt. Dann müsste natürlich ein Weg von Garage zum Haus quer durch den halben Garten.
Gibt es Vorschläge wie wir das Haus besser auf dem Grundstück platzieren?

@ypg: Du hast Recht, die Küchensituation mit der Tür ist nicht rund. Unsere Architektin war da auch nicht zufrieden aber etwas besseres konnte sie auch nicht anbieten. Vielleicht hast Du noch eine Idee? Und wie meinste das mit der gefangenen Ankleide? Kannst Du das bitte nochmal erläutern?
Die Trennwand im WZ sollte eigentlich bis zur Decke reichen, die 20/30 cm dann zu Lasten Wohnen und zu Gunsten Essen?
Die Waschmaschine und Trockner sollen in den Hauswirtschaftsraum, sollte doch passen!? Aber klar viel Platz bleibt dann nicht mehr. Im OG kommt die Dusche noch raus, soll nur eine Badewanne bleiben.
DankeschönIch würde die Garage gerade ggü zur Auffahrt setzen... Das Haus dann ungefähr dort, wo ihr es geplant habt.
Der Bereich vor dem Haus wird dann ein schöner Vorgarten. Allerdings würde ich das Fenster der Speis weglassen, ansonsten schimmeln Euch sogar die Zwiebeln 😉
Zur Ankleide: Eine Ankleide soll unter anderem den Vorteil haben, dass man im Schlafzimmer keinen mehr stört, wenn man sich Kleidung raussucht. Allerdings ist eine gefangene Ankleide hier kontraproduktiv, da man das Licht im Schlafzimmer wieder anschalten muss, um rauszukommen. Der Schlafende wird wieder geweckt.
Zur Dusche: wir haben auch auf eine Dusche im OG verzichtet, da wir mehr baden und unten eine Dusche ist, die für uns zwei reicht.
Allerdings bereue ich es mittlerweile, da Gewohnheiten und Bedürfnisse sich ändern.
Essbereich: 2,85 reichen nicht, wenn der Tisch mit Gästen besetzt ist. Du kannst dann selbst nicht mehr um den Tisch gehen, Besucher haben es schwer, aufzustehen.
Ähnliche Themen