Hausbau - Ratgeber
Bauherrenhilfe
- Bauherrenhilfe vor Vertragsabschluss
-- Warum einen unabhängigen Baubetreuer?
-- Vertragsgrundlagen
-- Bausumme
-- Zahlungsplan zur Kostenkontrolle
-- Pflichten des Bauherren vor Vertragsabschluss
-- Unterlagen beim Hausbau vor Vertragsabschluss
- Bauherrenhilfe nach Vertragsabschluss
-- Bauantrag bei Behörden
-- Bau-Genehmigungsverfahren bei Baubehörden
-- Bauspezifische Versicherungen
-- Bauzeitenplan
-- Baubeginn - die Letzten Pflichten der Bauherrschaft
- Bauherrenhilfe während der Bauzeit
- Gewährleistungsansprüche
- Bauabnahme
Baufinanzierung
- Baufinanzierung - Allgemeine Fragen
- Kreditarten
- Kredit-Konditionen
- Bausparen
- Staatliche Förderungen
- Verkehrswert
- Haushaltsrechnung und Bonität
Hausbau Planung
- Haustypen
- Hausbau Vorbereitungsarbeiten
- Das Baugrundstück
- Baugrund beim Hausbau
- Baurecht
- Gebäudeschutz
- Erdarbeiten und Wasserhaltung
- Stützmauern
- Einfriedung
- Untergeschoss
- Kanalisation
- Tragende Elemente
- Nichttragende Innenwände
- Fundation / Fundament
- Deckenkonstruktionen
- Dächer
- Kaminanlagen
- Treppen Rampen Leitern
- Dachbeläge und Spengler
- Fenster
- Sonnen und Wetterschutz
- Aussenputze
- Einbauten, Küchen, Türen
- Bodenbeläge und Unterlagsböden
- Parkett
- Gips, Wand, Decke
Haustechnik und Energie
- Heiztechnik
- Lüftung und Klimatechnik
- Sanitärtechnik
- Elektrotechnik
- Erneuerbare Energie
Whirlpools / Jacuzzi
Hausbau Magazin
- Baufinanzierung trotz Krise?
- Das Blockhaus
- Moderne Dämmstoffe im Vergleich
- Erker Vor- und Nachteile
- Glasflächen beim Hausbau
- Günstig ein Haus Bauen
- Mediterraner Hausbaustil
- Mehrgenerationenhaus
- Moderne Architektur
- Gartengestaltung leicht gemacht
- Traditioneller Ziegelbau
- Villa als höchster Traum
- Im Eigenheim Ruhestand geniessen
- Altbau sanieren
- Kauf einer Holzgarage
- Immobilienmakler
- Arbeitshandschuhe für den Winter
- Zuhause verschönern
- Outdoor-Plissees
- Schlafzimmer planen
- Terrassenüberdachung
- Wohngebäudeversicherung
- Zaunarten und Eigenschaften
- Hauseingang gestalten
- Der perfekte Grundriss
- Sparsamer heizen im Altbau
- Einfamilienhaus smart finanzieren
- Planung einer PV-Anlage
- Neues Haus
- Immobilienfinanzierung
- Installation einer Photovoltaikanlage
- Asbest erkennen und entfernen
- Gartenpflege im Frühling – worauf achten
- Sauna im Fokus - Wellness zuhause
- Erfolgreich vermieten
- Die perfekte Winterbekleidung
- Das Niedrigenergiehaus
- Der April und seine Stürme
- Architektonische Vielfalt
- Ökologisch und nachhaltig bauen
- Das perfekte Schlafzimmer
- Nachhaltige Energieversorgung
- Zukunftsorientiert bauen
- Nachhaltigkeit beim Hausbau
- Tiny Houses
- Wärmepumpen als nachhaltige Heizvariante
- Maßgeschneiderten Kleiderschrank
- Der richtige Baukredit
- Ratgeber für erfolgreichen Hausbau
- Haus als Altersvorsorge
Do-it-yourself Anleitungen
- Verlegeanleitung für Bodenbeläge und Parkett
- Bodenbeläge und Parkett reinigen und pflegen
- Malerarbeiten am Haus
- Garten Tipps
- Umzug und Reinigung

ᐅ Grundriss / Schnitte 1,5-geschössige Stadtvilla 200 m2 Feedback?

Erstellt am: 25.04.20 10:44
X
xellus89
X
xellus89
25.04.20 10:44
Hallo,

würde gerne euer Feedback zu den anliegenden Planungsunterlagen hören. Ich weiß, es ist sehr groß (für die meisten wohl zu groß), aber wollten gerne eine Kochinsel UND einen eigenen Essbereich in der Küche. Dadurch wird das Haus relativ tief und folglich die Grundfläche größer. Eine gerade Treppe finden wir auch ganz schick, wodurch der Flur natürlich auch größer wird. Das Grundstück ist eine Baulücke, wofür kein Bebauungsplan existiert. Zusätzlich wollte ich nur kurz abfragen, was ihr ändern würdet / nicht so gut findet. Insofern lasse ich viele Punkte aus dem Fragebogen weg, da wir sie hierfür nicht brauchen.

Bebauungsplan/Einschränkungen
Größe des Grundstücks: >2.000m2
Hang: Nein
Randbebauung: Nein, 3m Abstand sind eingehalten

Anforderungen der Bauherren
Stilrichtung, Dachform, Gebäudetyp: Stadtvilla im Toscana-Stil
Keller, Geschosse: 1,5
Anzahl der Personen, Alter: Noch zwei
Büro: Familiennutzung oder Homeoffice? Beides
konservativ oder moderne Bauweise: modern
offene Küche, Kochinsel: Kochinsel, aber Küche abtrennbar von WZ
Anzahl Essplätze: 4
Kamin: ja
Balkon, Dachterrasse: nein
Garage, Carport: Garage

Hausentwurf
Von wem stammt die Planung:
-Architekt

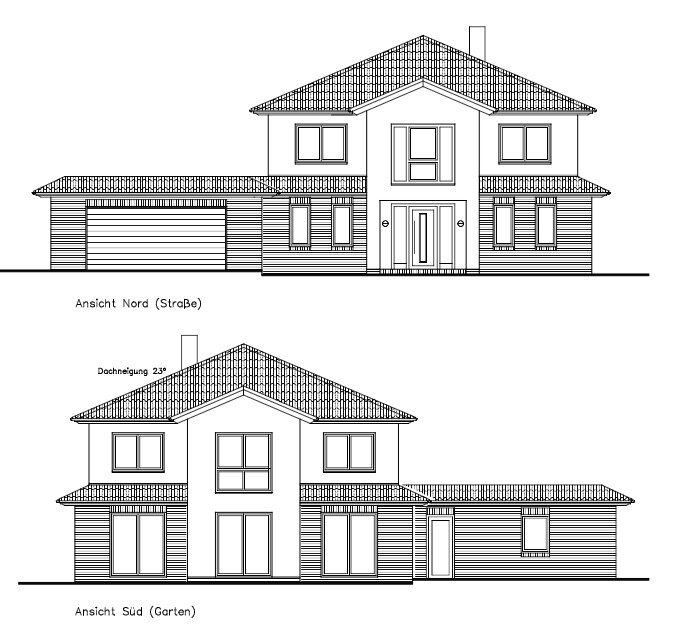
Zweistöckiges Haus mit Garage links, Nordansicht; zentrale Eingangstür, Rückseite mit Terrasse.


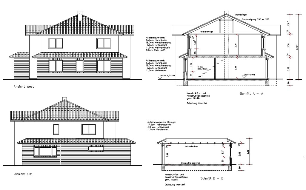
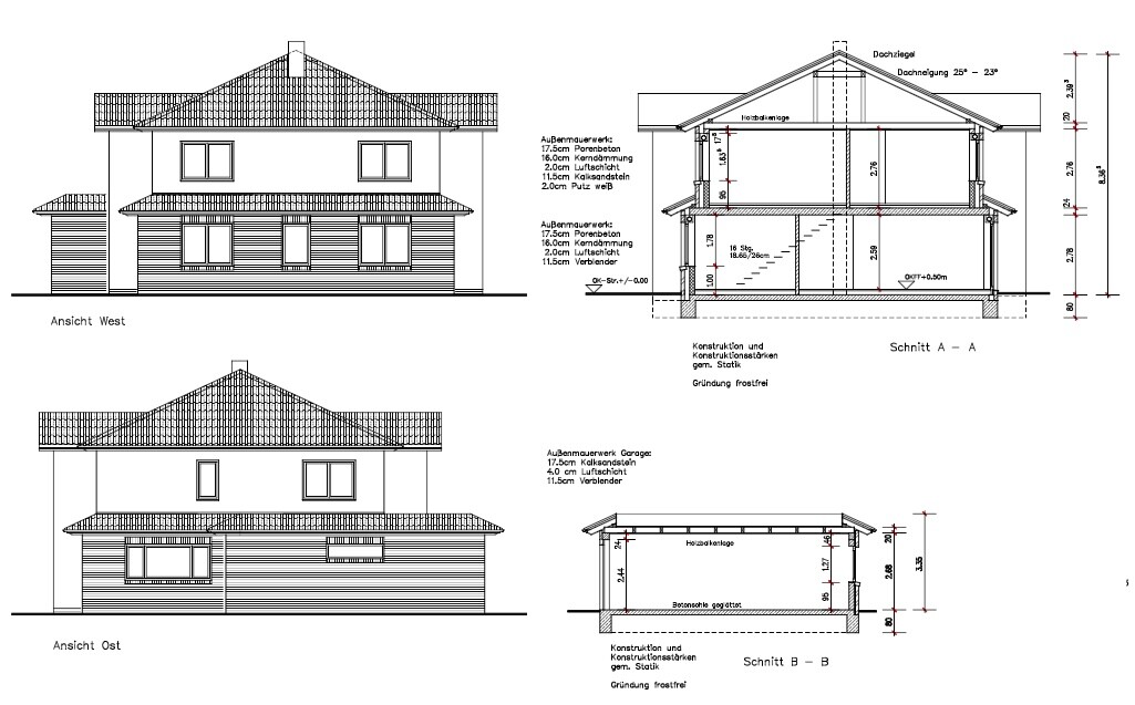
Ansichten West und Ost; Schnitte A-A, B-B eines zweigeschossigen Hauses mit Satteldach.


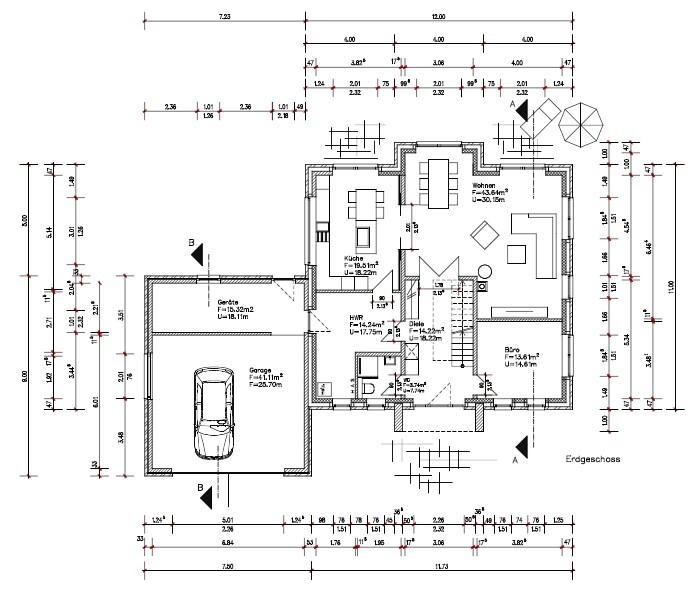
Grundriss-Erdgeschoss eines Einfamilienhauses mit Wohnzimmer, Küche, Bad, Flur, Büro und Garage.


Grundriss Obergeschoss: Flur, Schlafen, Ankleide, Bad, zwei Kinderzimmer, Treppenaufgang.
S
saralina87
25.04.20 11:19
Ich finde den Grundriss eigentlich ganz gut. Was mir spontan auffällt: Wenn wir so groß bauen könnten würde ich deutlich mehr Stauraum integrieren. Eine Speis zum Beispiel oder ein separater Hauswirtschaftsraum im OG.
Aber das ist wohl Geschmackssache.
H
haydee
25.04.20 11:35
Die Garderobe gefällt gar nicht. Finde bei der Größe kann es etwas separierter sein, so dass auch ein Stühlchen für die Kids hin kann oder mal eine Tasche herumstehen kann.
Essplatz fehlt Großzügigkeit. Er funktioniert, ist im Erker jedoch knapp.

Oben würde ich einen Abstellraum einplanen.
Schlafzimmer Richtung Norden.
Elternbereich durch die Ankleide erschließen. Der Schlafrhytmus änderst sich.

Darf das Haus so gebaut werden? Par. 34 sollte bei Baulücke greifen
kaho67425.04.20 14:11
Ich finde den Grundriss solide und gut. Für den Alltag fehlen mir aber auch einige Abstell- und Wirtschaftsräume. Der Hauswirtschaftsraum muss für viele Dinge herhalten und wäre mir ein zu stark frequentierter Raum.

Der Erker über dem Eingang im OG ist m.E. eine teure Hauseingangsüberdachung. Einen zusätzlichen Wert kann ich nicht erkennen. Selbst die Optik könnten man auch ohne aufhübschen. Aber wer hat der hat.

Die Tür ins Schlafzimmer sollte anders herum aufschlagen, sonst gibts Kollisionen mit der Ankleide. Das kann böse Beulen am Kopf geben. Schade, dass man gegen den Schrank läuft, wenn man vom Flur in die Ankleide geht - aber ich würde es auch so lassen für die schönere Außenansicht.

Am merkwürdisgten finde ich allerdings die geringe Deckenhöhe im EG und die im Vergleich dazu großzügige Höhe im OG. Ich kenne es eher anders herum, da die größeren Räume im EG mit mehr Höhe dann weniger drücken. ich vermute, dass die Treppe schuld ist. Eingezeichnet mit 15 Steigungen ist die recht kurz. Wäre sie länger, ist der Plan im Eimer. Das ist Schade und wäre für mich eine große Kröte, die ich vermutlich nicht schlucken würde.
C
Curly
25.04.20 14:50
ihr habt viele verschenkte Quadratmeter. Im OG ein riesiger Flur mit Luftraum und die Ankleide ist groß und hat dafür wenig Platz für Schränke. Was mir persönlich sehr wichtig ist, das ist ein Kinderbad, sofern zwei Kinder geplant sind. Menschen ohne (ältere) Kinder können das noch nicht ganz nachvollziehen .

LG
Sabine
ankleidekochinselkücheflurtreppebaulückebebauungsplangaragegrundrisshauswirtschaftsraum