Hausbau - Ratgeber
Bauherrenhilfe
- Bauherrenhilfe vor Vertragsabschluss
-- Warum einen unabhängigen Baubetreuer?
-- Vertragsgrundlagen
-- Bausumme
-- Zahlungsplan zur Kostenkontrolle
-- Pflichten des Bauherren vor Vertragsabschluss
-- Unterlagen beim Hausbau vor Vertragsabschluss
- Bauherrenhilfe nach Vertragsabschluss
-- Bauantrag bei Behörden
-- Bau-Genehmigungsverfahren bei Baubehörden
-- Bauspezifische Versicherungen
-- Bauzeitenplan
-- Baubeginn - die Letzten Pflichten der Bauherrschaft
- Bauherrenhilfe während der Bauzeit
- Gewährleistungsansprüche
- Bauabnahme
Baufinanzierung
- Baufinanzierung - Allgemeine Fragen
- Kreditarten
- Kredit-Konditionen
- Bausparen
- Staatliche Förderungen
- Verkehrswert
- Haushaltsrechnung und Bonität
Hausbau Planung
- Haustypen
- Hausbau Vorbereitungsarbeiten
- Das Baugrundstück
- Baugrund beim Hausbau
- Baurecht
- Gebäudeschutz
- Erdarbeiten und Wasserhaltung
- Stützmauern
- Einfriedung
- Untergeschoss
- Kanalisation
- Tragende Elemente
- Nichttragende Innenwände
- Fundation / Fundament
- Deckenkonstruktionen
- Dächer
- Kaminanlagen
- Treppen Rampen Leitern
- Dachbeläge und Spengler
- Fenster
- Sonnen und Wetterschutz
- Aussenputze
- Einbauten, Küchen, Türen
- Bodenbeläge und Unterlagsböden
- Parkett
- Gips, Wand, Decke
Haustechnik und Energie
- Heiztechnik
- Lüftung und Klimatechnik
- Sanitärtechnik
- Elektrotechnik
- Erneuerbare Energie
Whirlpools / Jacuzzi
Hausbau Magazin
- Baufinanzierung trotz Krise?
- Das Blockhaus
- Moderne Dämmstoffe im Vergleich
- Erker Vor- und Nachteile
- Glasflächen beim Hausbau
- Günstig ein Haus Bauen
- Mediterraner Hausbaustil
- Mehrgenerationenhaus
- Moderne Architektur
- Gartengestaltung leicht gemacht
- Traditioneller Ziegelbau
- Villa als höchster Traum
- Im Eigenheim Ruhestand geniessen
- Altbau sanieren
- Kauf einer Holzgarage
- Immobilienmakler
- Arbeitshandschuhe für den Winter
- Zuhause verschönern
- Outdoor-Plissees
- Schlafzimmer planen
- Terrassenüberdachung
- Wohngebäudeversicherung
- Zaunarten und Eigenschaften
- Hauseingang gestalten
- Der perfekte Grundriss
- Sparsamer heizen im Altbau
- Einfamilienhaus smart finanzieren
- Planung einer PV-Anlage
- Neues Haus
- Immobilienfinanzierung
- Installation einer Photovoltaikanlage
- Asbest erkennen und entfernen
- Gartenpflege im Frühling – worauf achten
- Sauna im Fokus - Wellness zuhause
- Erfolgreich vermieten
- Die perfekte Winterbekleidung
- Das Niedrigenergiehaus
- Der April und seine Stürme
- Architektonische Vielfalt
- Ökologisch und nachhaltig bauen
- Das perfekte Schlafzimmer
- Nachhaltige Energieversorgung
- Zukunftsorientiert bauen
- Nachhaltigkeit beim Hausbau
- Tiny Houses
- Wärmepumpen als nachhaltige Heizvariante
- Maßgeschneiderten Kleiderschrank
- Der richtige Baukredit
- Ratgeber für erfolgreichen Hausbau
- Haus als Altersvorsorge
Do-it-yourself Anleitungen
- Verlegeanleitung für Bodenbeläge und Parkett
- Bodenbeläge und Parkett reinigen und pflegen
- Malerarbeiten am Haus
- Garten Tipps
- Umzug und Reinigung

ᐅ Grundriss schmales langes Haus (7m) mit Satteldach

Erstellt am: 14.08.21 07:54
N
Niko1611
kbt0914.08.21 13:04
Niko1611 schrieb:

Roter Pfeil unsere Fläche für das haus , grün Auffahrt , Garten gen Westen und ja hier abgeschnitten




Macht schon Sinn, Infos immer wieder zusammenzupacken.

Die Checkliste hat halt auch den Sinn, das ganz bestimmte Infos möglichst immer an derselben Stelle sind und man nicht jeden Text erst analysieren muss 😉.
Und das Grundstück links daneben ist nur für das Nachbarhaus und eure Zufahrt oder wie muss man sich das vorstellen?

Wäre ja auch schick, das Haus einfach mal in dem Grundstück abzubilden.
Würde ja etwa so liegen ... mit Nordpfeil 😉:

Grundriss eines Hauses: Wohn-/Essbereich, Küche, Flur, Bad, Gästezimmer, Treppen, Maße.

Grundriss eines Hauses mit Bad, Flur, Treppe, Schlafzimmer und zwei Kinderräumen.


Liegt der Eingang da nicht etwas ungünstig?
Soll dann planunten, also im Osten nur ein einfacher Stellplatz sein?
Ibdk1414.08.21 13:16
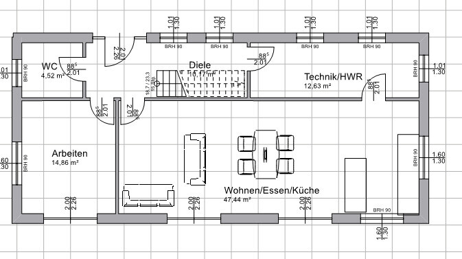
Schau mal bei Schwörerhaus, schmaler Grundriss. Da gibt es einen Grundriss mit gerader Treppe mit 7x11. Wenn du den verlängerst um die 4 Meter, kannst du noch ein Arbeitszimmer im EG unterbringen. Nur als Idee hab ich das mal schnell gemalt - ohne Anspruch auf genaue Maße, soll nur eine Skizze zur Veranschaulichung sein.

Grundriss: Wohnen/Essen/Kochen, Diele, Arbeiten, WC, Technik/HWR.


Grundriss: Diele in der Mitte, Bad links, Schlafen/Ankleide links, Kind 1 und Kind 2 rechts.
kbt0914.08.21 13:27
@idbk14 ... das wird zumindest im OG so schlecht gehen. Nur 100 cm Kniestock, da wird man z. B. im Elternschlafzimmer nicht ums Bett herumkommen.
kbt0914.08.21 13:29
@Niko1611 .. ich sehe auch das Garderobenproblem und sehe auch ein Problem mit geschickter Möblierung des Ess/Koch/Wohnraums. Habt ihr dazu schon Ideen, wie ihr euch das vorstellt?
Ibdk1414.08.21 13:32
kbt09 schrieb:

@idbk14 ... das wird zumindest im OG so schlecht gehen. Nur 100 cm Kniestock, da wird man z. B. im Elternschlafzimmer nicht ums Bett herumkommen.
Stimmt, dann müsste man das Bett um 180° drehen und mit dem Kopfende an die Außenwand stellen. Auch nicht ideal - ich weiß.
S
saralina87
14.08.21 14:33
Wenn du magst kannst du dir unseren Grundriss anschauen.
Haben sehr ähnliche Voraussetzungen.

https://www.hausbau-forum.de/threads/welchen-fertighaus-anbieter-preise-erfahrungen.32592/page-26
grundrissgrundstückbett