ᐅ Grundriss schmales langes Haus (7m) mit Satteldach
Erstellt am: 14.08.21 07:54
Wir haben eine besondere Herausforderung und ein Grundstück (12m x 45m) gekauft, auf dem wir 7m x 15m bauen können. Dazu muss es ein Satteldach werden in eingeschossiger Bauweise, Kniestock 1m, rote Klinkerfassade, weiße Fenster, max 48 Grad Dachneigung.
Ziel wäre eine moderne Bauweise und unten - soweit möglich - ein offenes Konzept.
Neben zwei Kinderzimmern (1 Jahr, 3 Jahre) benötigen wir noch ein Büro/Gastzimmer. Einen Keller wird es nicht geben. Wir haben nun nach diversen Versuchen in Zusammenarbeit mit Bauunternehmen und Architekten eine Richtung gefunden, bei der wir gern eure Einschätzung hätten.
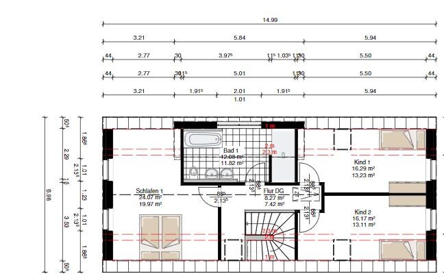
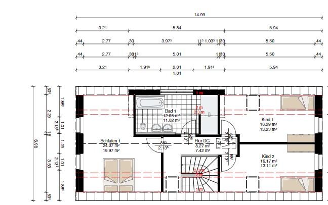
Was haltet ihr davon? Wir haben u.a. zwei Fragestellungen: Wie richtet man das Wohnzimmer/Küche sinnvoll ein und wie verhindern wir, dass wir uns im Dachgeschoss zu eingeengt fühlen. Die Küche soll außerdem noch größer (länger) werden und Büro / Gästebad dafür schmaler. Die Treppe soll eine Betontreppe inkl. Abstellraum werden mit Tür zum Flur, damit etwas mehr Platz für Garderobe geschaffen wird. Oben wird das Schlafzimmer noch schmaler werden zugunsten Bad und Galerie. Die Fensterverteilung ist auch noch nicht optimal . Es ist eine Luftwasser-Wärmepumpe geplant. Die Diele ist klein, aber bisher gab es noch keine andere Lösung.
Sollte jemand alternative Ideen haben für einen Grundriss unter diesen Rahmenbedingungen, sind wir auch dafür sehr dankbar.
Süden ist oben. Wohnzimmer liegt also Richtung Westen, Straße ist im Osten. Die Nachbarn befinden sich im Süden und Norden auf der langen Seite mit jeweils 2,5 Meter Abstand.
Geschossflächenzahl und Grundflächenzahl sind stark reglementiert, da wir hierzu aber sehr intensiv mit dem Bauamt schon im Gespräch sind und eine Sondergenehmigung bekommen, kann das hier außen vorgelassen werden.


Ziel wäre eine moderne Bauweise und unten - soweit möglich - ein offenes Konzept.
Neben zwei Kinderzimmern (1 Jahr, 3 Jahre) benötigen wir noch ein Büro/Gastzimmer. Einen Keller wird es nicht geben. Wir haben nun nach diversen Versuchen in Zusammenarbeit mit Bauunternehmen und Architekten eine Richtung gefunden, bei der wir gern eure Einschätzung hätten.
Was haltet ihr davon? Wir haben u.a. zwei Fragestellungen: Wie richtet man das Wohnzimmer/Küche sinnvoll ein und wie verhindern wir, dass wir uns im Dachgeschoss zu eingeengt fühlen. Die Küche soll außerdem noch größer (länger) werden und Büro / Gästebad dafür schmaler. Die Treppe soll eine Betontreppe inkl. Abstellraum werden mit Tür zum Flur, damit etwas mehr Platz für Garderobe geschaffen wird. Oben wird das Schlafzimmer noch schmaler werden zugunsten Bad und Galerie. Die Fensterverteilung ist auch noch nicht optimal . Es ist eine Luftwasser-Wärmepumpe geplant. Die Diele ist klein, aber bisher gab es noch keine andere Lösung.
Sollte jemand alternative Ideen haben für einen Grundriss unter diesen Rahmenbedingungen, sind wir auch dafür sehr dankbar.
Süden ist oben. Wohnzimmer liegt also Richtung Westen, Straße ist im Osten. Die Nachbarn befinden sich im Süden und Norden auf der langen Seite mit jeweils 2,5 Meter Abstand.
Geschossflächenzahl und Grundflächenzahl sind stark reglementiert, da wir hierzu aber sehr intensiv mit dem Bauamt schon im Gespräch sind und eine Sondergenehmigung bekommen, kann das hier außen vorgelassen werden.
Niko1611 schrieb:
Süden ist oben. Wohnzimmer liegt also Richtung Westen, Straße ist im Osten. Die Nachbarn befinden sich im Süden und Norden auf der langen Seite mit jeweils 2,5 Meter Abstand.Einfach auf dem Grundriss einzeichnen und einen Lageplan beifügen ... ist doch wirklich unfassbar, dass immer diese Textwüsten geschrieben werden, statt einen einfachen Nordpfeil auf die Zeichnung und eben den Lageplan dazu.H
hampshire14.08.21 09:34kbt09 schrieb:
. ist doch wirklich unfassbar, dass immer diese Textwüsten geschrieben werdeneher unfassbar, dieses so zu kommentieren. Da schreibt jemand seinen ersten Beitrag, da genügt ein freundlicher Hinweis.@niko, es gibt hier einen gut gemachten Fragebogen, der allen hilft zielführende Kommentare zu machen, sicher wird der nächste Schreiber den Link dazu einfügen, ist mir mobil gerade nicht gelungen.
Aus der Hüfte geschossen:
7m ist nicht sehr schmal. Die Aufteilung ist pragmatisch und gut strukturiert. Die Räume selbst werden funktionieren.
Folgende Fragezeichen habe ich:
Wie organisierst Du das, was andere mit einer Garderobe im Eingangsbereich machen? Für diese ist kein Platz im Plan.
Habst Du eine Übersicht über euer Hab und Gut? Die Stauraummöglichkeiten sind sehr eingeschränkt, wäre doch schade, wenn Du das, das ihr im Haus haben wollt nicht unterbringen könntest.
Niko1611 schrieb:
Wie richtet man das Wohnzimmer/Küche sinnvoll ein und wie verhindern wir, dass wir uns im Dachgeschoss zu eingeengt fühlen.Das ist eine Sache der Lebenspriorität. Lebt ihr mehr am esstisch oder in der Couch, wie wichtig sind Kochen, Geselligkeit, Glotze, Lichtverhältnisse… Für mich wäre eine gut zu bearbeitende Küche mit Kommunikation zum Essbereich wichtig, Daher würde die Küche größer werden als eingezeichnet und mit langer Kücheninsel in den Nordbereich rutschen. TV wäre recht egal, Die kompakte Ecke, in der jetzt die Küche ist eignet sich perfekt für eine ultragemütliche Togo Sitzgruppe (oder ähnlich, Togo hat erhöhten Entkrümelungsaufwand, ist aber wertstabil, robust und super mit Kindern). Dazu ein grosser Esstisch. Und deutlich mehr Densterfläche und Öffnung.Gegen eingeengt fühlen hilft am Besten eine Management der eigenen Haltung. Das ist etwas sehr Persönliches, die Räume sind objektiv betrachtet nicht zu eng. Sparsam möblieren.
Niko1611 schrieb:
besondere HerausforderungWow, nicht schlecht.Ich gehe mal davon aus, dass da von den Architekten alles ausgereizt ist?
Zu Deinen Fragen wäre es dennoch hilfreich, dass Du den Fragebogen ausfüllst. Ich sehe da 1-2 Mankos. Bevor ich die anspreche, sind Informationen nötig.
Hast Du mal bitte den Schnitt vom Haus? Wie hoch ist es? Was ist mit dem Dachgeschoss?
https://www.hausbau-forum.de/threads/grundrissplanung-unbedingt-vor-beitrag-erstellung-lesen.11714/
Wo soll eine Garage hin? Bitte Lageplan mit aufzeichnen und beifügen.
B
Bertram10014.08.21 10:00Auf den ersten Blick würde mich der nicht vorhandene (Garderoben-)platz im Eingang verrückt machen. Vor allem mit Kindern. Da würde ich wohl die Dusche im EG rausschmeissen und den Platz neu verteilen.
Ähnliche Themen