Grundriss schmales langes Haus (7m) mit Satteldach

5,00 Stern(e) 8 Votes
Zuletzt aktualisiert 20.11.2025
Sie befinden sich auf der Seite 3 der Diskussion zum Thema: Grundriss schmales langes Haus (7m) mit Satteldach
>> Zum 1. Beitrag <<

kbt09

kbt09

Roter Pfeil unsere Fläche für das haus , grün Auffahrt , Garten gen Westen und ja hier abgeschnitten



Macht schon Sinn, Infos immer wieder zusammenzupacken.

Die Checkliste hat halt auch den Sinn, das ganz bestimmte Infos möglichst immer an derselben Stelle sind und man nicht jeden Text erst analysieren muss ;).
Und das Grundstück links daneben ist nur für das Nachbarhaus und eure Zufahrt oder wie muss man sich das vorstellen?

Wäre ja auch schick, das Haus einfach mal in dem Grundstück abzubilden.
Würde ja etwa so liegen ... mit Nordpfeil ;):

Grundriss eines Hauses: Wohn-/Essbereich, Küche, Flur, Bad, Gästezimmer, Treppen, Maße.

Grundriss eines Hauses mit Bad, Flur, Treppe, Schlafzimmer und zwei Kinderräumen.


Liegt der Eingang da nicht etwas ungünstig?
Soll dann planunten, also im Osten nur ein einfacher Stellplatz sein?
 
Ibdk14

Ibdk14

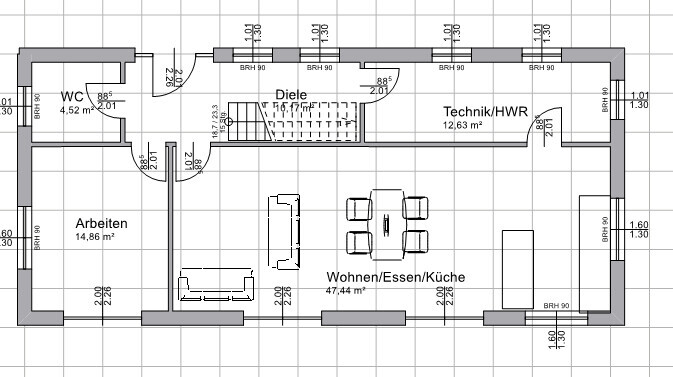
Schau mal bei Schwörerhaus, schmaler Grundriss. Da gibt es einen Grundriss mit gerader Treppe mit 7x11. Wenn du den verlängerst um die 4 Meter, kannst du noch ein Arbeitszimmer im EG unterbringen. Nur als Idee hab ich das mal schnell gemalt - ohne Anspruch auf genaue Maße, soll nur eine Skizze zur Veranschaulichung sein.

Grundriss: Wohnen/Essen/Kochen, Diele, Arbeiten, WC, Technik/HWR.


Grundriss: Diele in der Mitte, Bad links, Schlafen/Ankleide links, Kind 1 und Kind 2 rechts.
 
kbt09

kbt09

@idbk14 ... das wird zumindest im OG so schlecht gehen. Nur 100 cm Kniestock, da wird man z. B. im Elternschlafzimmer nicht ums Bett herumkommen.
 
kbt09

kbt09

@Niko1611 .. ich sehe auch das Garderobenproblem und sehe auch ein Problem mit geschickter Möblierung des Ess/Koch/Wohnraums. Habt ihr dazu schon Ideen, wie ihr euch das vorstellt?
 
S

saralina87

Wenn du magst kannst du dir unseren Grundriss anschauen.
Haben sehr ähnliche Voraussetzungen.

 
Zuletzt aktualisiert 20.11.2025
Im Forum Grundrissplanung / Grundstücksplanung gibt es 2535 Themen mit insgesamt 87978 Beiträgen


Ähnliche Themen zu Grundriss schmales langes Haus (7m) mit Satteldach
Nr.ErgebnisBeiträge
1Grundriss mit Garage auf Grundstück realisierbar? - Seite 429
2Erster Grundriss-Versuch für Kettenhaus auf kleinem Grundstück 94
3Erster Grundriss Einfamilienhaus - Eure Ideen auch zum Grundstück - Seite 333
4Grundstück nicht Rechteckig - Idee für Grundriss gesucht - - Seite 320
5Einfamilienhaus 150m2 Grundriss + Planung auf dem Grundstück 24
6Grundriss Bungalow auf schon genutztem Grundstück 108
7Grundriss-Planung und Platzierung - Einfamilienhaus ca. 200qm auf 900qm Grundstück - Seite 255
8Grundriss Einfamilienhaus, 2 Vollgeschosse ca. 180qm, 600qm Grundstück - Seite 756
9Grundriss Einfamilienhaus 133qm Grundstück 850qm 16
10Grundriss Einfamilienhaus ca. 300qm, Grundstück 780qm 24
11Grundriss Einfamilienhaus 2 Vollgeschoss ~180m² Wohnfläche - 760m² Grundstück - Seite 344
12Planung Grundriss Doppelhaus, kleines Grundstück, Bauhausstil 34
13Grundriss Einfamilienhaus mit Flachdach auf 600m² Grundstück - Seite 419
14Grundriss-Entwurf: Einfamilienhaus mit Keller; 560qm Grundstück - Seite 765
15Grundriss Bungalow 125qm konisches Grundstück - Seite 739
16Grundrissfrage. Grundstück 369qm. Hausgröße 9x9 Meter 20
17Perfekter Grundriss für unser Einfamilienhaus gesucht - Danke für Ideen 29
18Grundriss 165qm ländliches Bayern Meinungen 70
19Stadtvilla Grundriss - Feedback erwünscht 97
20Bungalow-Grundriss Details-Vorschläge - Seite 543

Oben