Grundriss Sanierung

4,00 Stern(e) 3 Votes
Zuletzt aktualisiert 20.11.2025
Sie befinden sich auf der Seite 2 der Diskussion zum Thema: Grundriss Sanierung
>> Zum 1. Beitrag <<

K

Kerba

Fenster nach Westen gibt es im Bad und im WC. In den Anbau kommt auch ein Fenster nach Westen als Lichtband und eine große Fensterfront nach Norden, die sind hier nicht eingezeichnet.
Die Fenster werden erneuert, aber wir wollten keine neuen Durchbrüche machen, wo heute keine sind.
 
kbt09

kbt09

Wie sieht es denn mit Heizung aus? Aktuell und geplant? Liegt bereits Fußbodenheizung? Ist sie generell geplant?
 
K

Kerba

Aktuell sind klassische Heizkörper mit Ölheizung, aber das kommt alles weg. Wir machen eine Luftwärmepumpe und dann teilweise Wandflächen- und teilweise Fußbodenheizung.
 
kbt09

kbt09

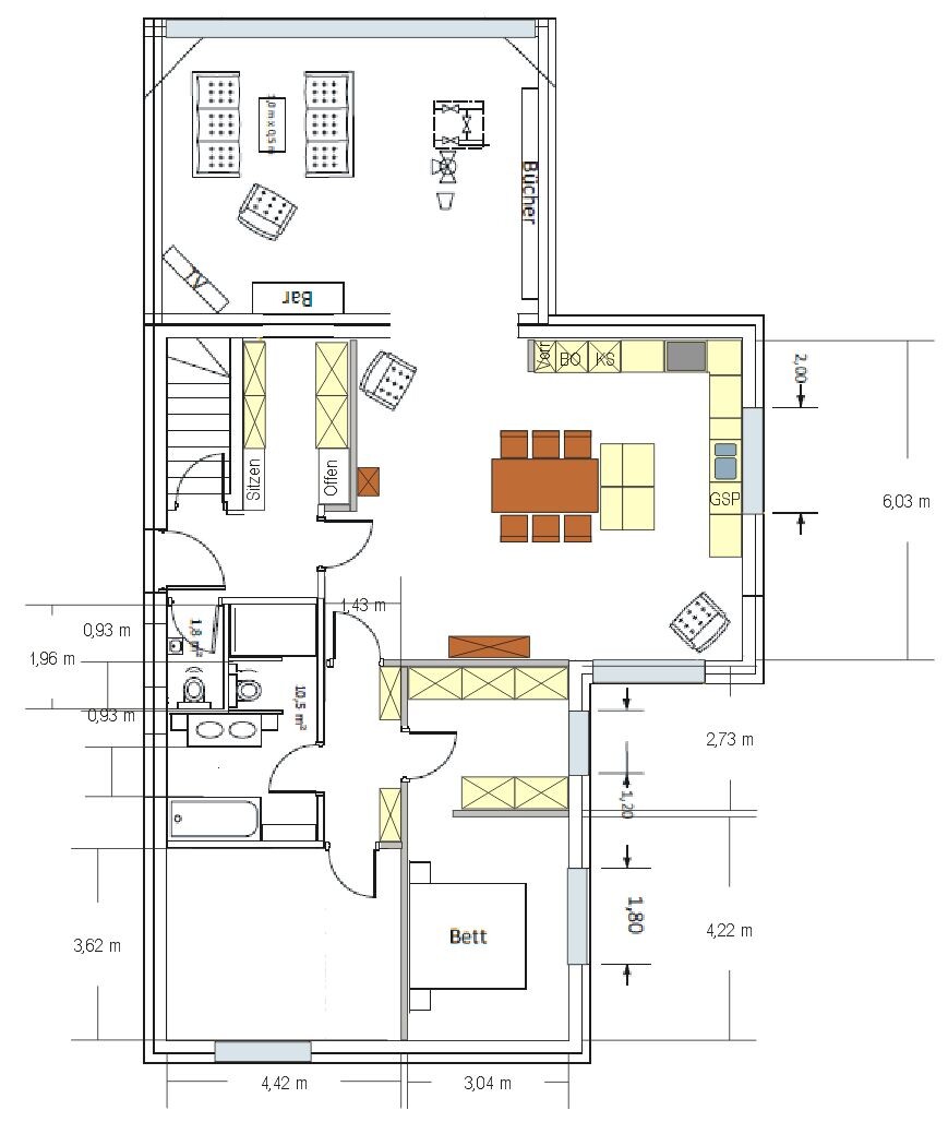
Wenn du dich mit dem Ansatz aus Beitrag 5 anfreunden kannst und auch den Aufwand einer Wasserverlegung für die Küche (unter der Kellerdecke bis zur neuen Position) auf dich nehmen willst, dann würde ich so einteilen:

Grundrissplan eines Wohn- und Küchenbereichs mit Schlafzimmer und Bad


Das Zimmer planunten links hätte so ziemlich genau 16 qm.
Schrankecke dem Schlafzimmer vorgelagert, allerdings mit mehr Platz rund ums Bett.

Im ca. 145 cm breiten Flur hätten noch 40 cm tiefe Schränke für Bettwäsche/Handtücher Platz.

Oben neben dem Kellerabgang könnte man eine ordentliche Garderobenecke für wirklich alle Jacken in den 200 cm schrank, alle Schuhe in dem 200 cm nur 40 cm tiefem Schrank realisieren. Dann eine kleine Sitzbank für Schuheanziehen und noch ca. 100 cm als offenen Garderobeteil mit Haken für Gästejacken etc.

Küche dann als L, dazu einen kleinen Arbeitsblock zum Backen, Buffetanrichten usw. Richtung Tisch mit offenen Regalen, z. B. Toaster, Lektüre, Ladestationen für Handys, Telefon etc.
Locker verteilt noch 2 gemütliche Sessel und du hast einen gut nutzbaren Küchen/Essraum.

Durchgang Wohnbereich wie geplant. Keine Fenster verschoben ;)

WC habe ich etwas länger gemacht, damit die Vorwand für die Waschbecken im Hauptbad etwas mehr nach planunten kommt. WC-Lücke im Hauptbad war nämlich nur ca. 70 cm, viel zu eng.
 
K

Kerba

Wow, vielen Dank!

Die Idee die Küche zu Verlegen und damit eine echte Garderobe zu gewinnen, gefällt uns sehr gut. Der Essbereich ist dann auch viel stimmiger als vorher. Von den Leitungen ist es halt nicht so ideal, aber das kriegt man hin.

Der zusätzliche Platz beim WC ist auch gut. Zwischen Badewanne und Waschtisch bleiben dann 93cm, wenn ich das richtig sehen. Reicht das bequem?

Mit den Zimmern sind wir uns noch nicht so sicher. Unsere Präferenz waren schon 2 Kinderzimmer. Aber da könnte man ja unsere Ursprungsplanung mit deinen Ideen auch gut kombinieren.

Wie funktioniert das mit dem Tisch direkt vor der Kücheninsel? Sind da die Türen seitlich?

Viele Grüße
Kerstin
 
Zuletzt aktualisiert 20.11.2025
Im Forum Grundrissplanung / Grundstücksplanung gibt es 2535 Themen mit insgesamt 87977 Beiträgen


Ähnliche Themen zu Grundriss Sanierung
Nr.ErgebnisBeiträge
1Heizkreise/Thermostate für Wohnen/Essen/Küche bei Fußbodenheizung/Wärmepumpe 35
2Fenster / Türen / Garderobe 13
3Grundriss Einfamilienhaus - Problemfall Küche - Seite 220
4Einteilung Grundriss Allraum Küche Wohnen Essen - Seite 658
5Küchenplanung - Ideenfindung und Planung Küche Neubau 20
6Bungalow 135qm: Grundriss + Fenster - Seite 2104
7Fußbodenheizung in Kinderzimmer? Einige Räume ohne Fußbodenheizung geplant? Luft-Wasser-Wärmepumpe raus? - Seite 348
8Müssen Heizkörper im Neubau immer unter die Fenster? 41
9Küchenplanung: U-Form-Küche und Schubladen kollidieren - Seite 420
10Küchenplanung Umbau: Frage zu Fenster und Elektrogeräten - Seite 441
11Unser Grundriss steht zur Diskussion - Seite 339
12Geschlossene oder offene Küche ? 11
13Elektro-, Fußbodenheizung, Gasbrennwerttechnik statt Heizkörper? - Seite 210
14Fußbodenheizung, Raumthermostate und kalte Fliesen - Seite 428
15Neubau Fußbodenheizung statt Heizkörper und Kontrollierte-Wohnraumlüftung; Ja oder Nein? - Seite 215
16Hilfe bei der Anordnung der Fenster benötigt! 32
17Riesiges Problem mit dem Kondenswasser am Fenster 34
18Probleme bei der aufteilung Küche, Essen , Wohnen 16
19 Küchenplanung mit tiefen Fenster 43
20Grundrissfrage, Treppe, Fenster, Ausrichtung 12

Oben